Do malé vesničky blízko západních hranic naší republiky jsme se vydali na pozvání architekta Dušana Řezáče, který tu společně s německým investorem rekonstruuje a dostavuje velký statek. Na jaře zdárně dokončili první fázi výstavby – moderně střiženou dřevostavbu, sloužící jako dva samostatné apartmány, jimiž nás také architekt s laskavým svolením investora provedl.
Se stavebníkem jsme se seznámili náhodou při mé poznávací cestě po Sardinii. Asi čtrnáct dní poté se mi ozval a domluvil si se mnou schůzku, na které chtěl poradit s rekonstrukcí své nemovitosti. Z realizace nakonec sešlo, ovšem z nás dvou se stali přátelé. O rok později přišel s tím, že hledá starou usedlost, kde by si na stáří vybudoval bydlení.
Z velkého statku na kraji malé vesničky jsem byl nadšený. Bylo to hospodářství, kde se doslova zastavil čas. Od války zde nikdo nebydlel a genuis loci byl všudypřítomný. Navíc se mi líbily její historické kořeny – statek původně patřil německému sedlákovi, kterého z pohraničí po druhé světové válce odsunuli. Opuštěný objekt dostala do vlastnictví česká rodina. Dům se dědil a vlastně v něm nikdo nebydlel, proto také postupně zchátral. Přijde mi příznačné, že se kruh uzavřel a majetek se po několika desítkách let vrací do rukou Němce.
Usedlost se skládala ze tří hlavních objektů – obytného domu se stájemi, stodoly a chlévů. Ty stály tady, na místě současné novostavby. Původně jsme je chtěli částečně zachovat, ukázalo se ale, že případná rekonstrukce je neudržitelná. Stodola a obytný dům jsou na tom lépe.
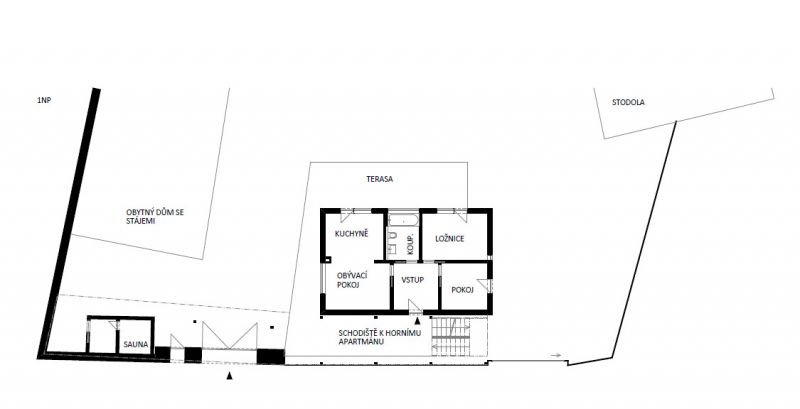
Díky investorově puntičkářství" se projekt měnil a upravoval ve všech svých projekčních fázích, až se nám ho nakonec podařilo vyladit téměř k dokonalosti. Jen na studii jsme ale pracovali skoro rok. Při našich schůzkách nás omezovala absence jakéhokoliv zázemí, proto jsme se nakonec dohodli rekonstrukci statku rozdělit na dvě fáze. V té první vystavíme na místě chlévů soběstačnou novostavbu, oprava ostatních objektů, už pak bude moci probíhat pomaleji. Novostavbu jsme koncipovali jako dva samostatné neprůchozí apartmány o identické dispozici a velikosti 3+kk. Horní apartmán disponuje krytou terasou orientovanou na jih, směrem ke vsi, a je přístupný po krytém venkovním schodišti. Spodní apartmán je naopak více orientovaný na sever, do dvora. Investor chtěl také saunu, která je umístěna v rohu parcely, přístupná od objektu „suchou nohou" pod plochou střechou s extenzivní zelení.
Pro novostavbu jsme zvolili jasný novotvar, maximální autenticitu investor naopak plánuje udržet u dvou stávajících objektů a vytvořit tak zcela zřejmý kontrast. Vzhledem k požadavku na rychlost jsme zvolili technologii montované dřevostavby, tedy dřevo jako tradiční materiál v moderním pojetí.
Na doporučení jsem pro realizaci oslovil inženýra Trgalu a jeho rodinnou firmu. Panely předvyrobené v dílně se pak během tří dnů na místě smontovaly. Na fasádu jsme použili překrývaná prkna, místní architektonický prvek. Oranžová barva okenních rámů a interiérových dveří koresponduje s režným zdivem na okolních objektech.
Chtěli jsme použít co nejvíce místních materiálů a využít práce místních řemeslníků. Modřín na fasádě pochází z pily pět kilometrů odsud, kamenná dlažba v koupelně je z lomu nedaleko Mariánských lázní a rozhozenou dubovou kantovku na podlaze pokládali místní podlaháři. Kámen ze zvětralé skály získaný při úpravách dvora byl použit pro výstavbu kamenného plotu a venkovní dlažbu. Krbová kamna si investor přivezl ze svého domu v Německu. Vytápíme elektrickými rohožemi ve stropě a krbovými kamny. Také jsme museli vybudovat samostatnou čističku.
Dům se dostavěl loni v létě a někteří místní se s ním stále nedokážou sžít. Investor to ale nevzdává, plánuje tu trávit co nejvíce času a aktivně se zapojit do dění v obci, které tu stagnuje. Má rád místní přírodu i české poměry, ve kterých si podle mě dokáže nejlépe odpočinout od sešněrované a vyspělé německé společnosti. Je to hodně společenský člověk, za kterým sem budou jezdit přátelé, navíc objekt je zkolaudovaný jako penzion. Zkrátka si myslím, že tu trochu rozvíří stojaté vody a vnese mezi místní svůj nakažlivý optimismus.
Připravila Dagmar Šimonová
Foto Martin Zeman
| Architekt: |
Dušan Řezáč |
| Realizace: |
Gatr, s.r.o. |
| Technické parametry: | |
| Velikost pozemku: | 2650 m2 |
| Zastavěná plocha: | 177 m2 |
| Užitná plocha: | 220 m2 |
| Stavební systém: | montovaná dřevostavba s difuzně otevřenou konstrukcí |
| Tepelná izolace: | minerální izolace |
| Fasáda: | překládaná nehoblovaná modřínová prkna bez povrchové úpravy |
| Střecha: | plochá střecha s PVC fólií a vrstvou kačírku resp. extenzivní zeleně |
| Okna: | hliníková otevíravá v kombinaci s bezrámovým zasklením |
| Zasklení: | izolační trojsklo |
| Podlahová krytina: | rozhozená dubová kantovka, kamenná dlažba |
| Vytápění: | elektrické topné rohože ve stropě, krbová kamna na dřevo |
| Skladba stěny: | |
| směrem z interiéru | bílý nátěr, sádrovláknitá deska 15 mm, parobrzdná deska 15 mm, minerální tepelná izolace 240 mm, dřevovláknitá deska 30 mm, dřevěný vodorovný rošt s větranou mezerou 40 mm, modřínový překládaný obklad z nehoblovaných prken 25 mm |
| Celková tloušťka stěny: | 365 mm |
| Hodnota U: | 0,16 W/m2K |
Rodinný dům Tábor - dřevostavba na klíč
ALFAHAUS s.r.o.
Užitná plocha: 137 m²
Dispozice: 4+kk / 4+1
Moderní roubenka v trampské osadě
OK PYRUS, s.r.o.
Užitná plocha: 117 m²
Lesníkova roubenka
EKOPANELY SERVIS s.r.o.
Užitná plocha: 260 m²
Dispozice: 5+kk / 5+1
Dům se sloupy z douglasky
ARCHCON atelier, s.r.o., DŘEVOSTAVBY BISKUP, s.r.o.
Užitná plocha: 118.44 m²
Dispozice: 4+kk / 4+1
Optimal 02 - dřevostavba na klíč
PENATUS s.r.o.
Užitná plocha: 124 m²
Dispozice: 4+kk / 4+1
Pavo 111 - dřevostavba na klíč
A T R I U M, s.r.o.
Užitná plocha: 111.03 m²
Dispozice: 5+kk / 5+1
LUCERN 116 - dřevostavba na klíč
LUCERN dřevostavby s.r.o.
Užitná plocha: 103.1 m²
Dispozice: 4+kk / 4+1
RD Mnichovice
EKOPANELY SERVIS s.r.o.
Užitná plocha: 124.3 m²
Dispozice: 3+kk / 3+1
Nízkoenergetická dřevostavba
EKOPANELY SERVIS s.r.o.
Užitná plocha: 115 m²
Dispozice: 4+kk / 4+1
Ekologická dřevostavba
EKOPANELY SERVIS s.r.o.
Užitná plocha: 128 m²
Dispozice: 3+kk / 3+1
EKONOMY MS 04 - dřevostavba na klíč
MS HAUS s.r.o.
Užitná plocha: 85 m²
Dispozice: 4+kk / 4+1
Futura Freestyle - dřevostavba na klíč
Prodesi I Domesi
Užitná plocha: 107.8 m²
Dispozice: 3+kk / 3+1
Rodinný dům 307 - dřevostavba na klíč
MARTINICE GROUP s.r.o.
Užitná plocha: 130 m²
Dispozice: 5+kk / 5+1
Bennet
KANADSKÉ SRUBY TÁBOR, s.r.o.
Užitná plocha: 177 m²
Dispozice: 5+kk / 5+1
Chata v Jizerských horách - dřevostavba na klíč
3AE s.r.o.
Dřevostavba roku - archiv
Copyright © 2026 Českobrodská 35, 190 12 Praha 9 - Dolní Počernice Kontakt
