Kromě troubení jelenů, které dosud ve svém životě neslyšel, překvapila Petra na Šumavě tma tmoucí. Opravdová tma, ve které nevidíte vlastní ruku, zato nad vámi září úžasné nebe s milióny jasných hvězd. Plánuje si pořídit hvězdářský dalekohled a rozšířit tak své záliby, které s profesí ajťáka nemají mnoho společného, zato ho táhnou do přírody, kde teď také stojí jeho vlastní roubenka.
Do Šumavy jsem se zamiloval už jako dítě. Často jsem s dědou chodil po lese a chtěl se stát lesníkem. Až během studia technických oborů mě tohle nadšení opustilo. Před pár lety se ale manželce začaly hodně líbit roubenky a nejprve jsme zvažovali, že bychom si ji postavili u nás ve středních Čechách. Atraktivita blízkosti Prahy s přijatelným dojezdem do zaměstnání však cenu vhodných pozemků – dostatečně velkých a hezky umístěných – žene příliš nahoru, proto jsme začali znovu pokukovat po Šumavě. Zdejší část v blízkosti nádherné Teplé Vltavy se nám zdála nejvhodnější, protože tady se dají provozovat veškeré outdoorové aktivity, které máme rádi. Jsem rybář a horní tok Vltavy je bohatý na pstruhy a lipany, přes pozemek nám v zimě vede upravovaná běžecká stopa, v dosahu jsou tři skvělá lyžařská střediska na českém, německém i rakouském území, v teplejším období využíváme nedalekou přírodní šestnáctikilometrovou stezku pro inline bruslení, chodíme po kopcích, jezdíme na kolech..., takže když se ve zdraví dožijeme důchodu, pořádně si to tady ještě užijeme! Zatím kvůli zaměstnání sem dojíždíme tak ve čtrnáctidenním režimu.
Naše nádherná a voňavá roubenka stojí na jediném pozemku s výhledem, kde jsme mohli v této části Chráněné krajinné oblasti bez problémů stavět. V původním územním plánu v době, kdy jsme pozemek kupovali, tady bylo možné postavit pouze zemědělskou usedlost, což by znamenalo využít dvě třetiny stavby pro zemědělství. Zároveň ale už probíhala jednání o novém plánu, ve kterém nebyla vazba na zemědělství a počítalo se s běžným domem pro bydlení a rekreaci. V té době už jsme měli na internetu vyhlídnuté firmy, jejichž roubenky se nám typově líbily a které měly s jejich stavbou hodně zkušeností. Volba padla na firmu Haniš srubové domy a byli jsme s ní moc spokojeni, od samého počátku až do konce realizace. Projektantovi, doporučenému panem Hanišem, jsme předali příručku, která je přístupná na internetových stránkách CHKO a definuje kritéria výstavby ve zdejší lokalitě - tvary půdorysu, střechy, její přesahy a sklon, velikost oken, stavební materiály, což je samozřejmě i dřevo. Jednání na stavebním úřadě a schválení hotového projektu proběhlo pak velmi hladce.
Štěstí jsme měli i na další řemeslníky. Základová deska se nám sice trochu prodražila, než jsme očekávali, protože parcela je ve svahu, podklad se musel hodně dosypávat a armovat, takže cena základů je v takovém případě jiná, než na rovném pozemku a kousek od betonárky, bez dopravy na odlehlejší Šumavu. Firma práci ale odvedla perfektně, dodržela přesnou rovinu, která je pod dřevostavbou nutností. Další starostí bylo vyřešit zdroj pitné vody. Na pozemku je kopaná studánka na vydatném prameni, ale původní majitelé si nechali udělat rozbor, který odhalil ve vodě škodlivé bakterie. Rozhodli jsme se proto pro vrtanou studnu, dostali jsme se do 35-metrové hloubky přes pevné žulové podloží, které zase naopak bylo důvodem příznivější ceny, protože se vrt nemusel dvakrát pažit jako třeba v nestabilním písku. Studna dává deset až dvanáct kubíků perfektní měkké vody za den. Složitější je to v CHKO Šumava s likvidací odpadních vod. K domovní čistírně odpadních vod jsme měli vypracovaný hydrologický posudek potvrzující, že nebudeme znečišťovat spodní vody. Tvoří ji tříkomorový biologický septik, ze kterého odchází voda do štěrkového a pískového filtru a dál do zasakovacího drenu z perforovaných trubek uložených v šachtě zhruba pět krát tři metry. Pravidelně musíme odvážet vzorky na rozbor, kde dosahujeme opravdu jen desetin až tisícin sledovaných hodnot.
Montáž roubenky probíhala v roce 2012 zhruba od června do srpna. Stavební firma od investora požaduje, aby na pozemku byl zajištěn zdroj vody a připojení elektřiny. Elektrická přípojka tady už byla, jen jsme zesílili přívod a zajistili stavební rozvaděč. Firma převzala základovou desku a inženýrské sítě, přivezla si surové dřevo, smrky vytěžené v zimním období, a pak tady parta zkušeného pana Jirků vyřezávala trámy rychle a perfektně přímo na místě. Předák měl za sebou už hodně postavených roubenek, ta naše byla jeho devatenáctá, a proto si tak věřil, že všechny rybinové spoje řezal motorovou pilou rovnou bez šablon – vlas do nich nevložíte. Bydleli v maringotce, pracovali dvanáct hodin denně i přes víkendy, jen jednou za dva týdny odjeli na prodloužený víkend.
Stěny tvoří trámy 24 krát 26 centimetrů spojené v rozích klasickým rybinovým spojem, vodorovně na pero-drážku s mezerou, do které se z obou stran vkládá izolace, v našem případě z ovčí vlny. Jak dřevo vysychá a stěna si sedá, mezery se zmenšují. Doprostřed svislé stěny firma vsazuje trámek, kterým ji zajišťuje proti vyvalení, takže i po seschnutí zůstává pěkně rovná. Zatím za tři roky si naše roubenka sedla o osm centimetrů a věřím, že teď už se ani nehne. Čekali jsme větší pohyb, protože běžně se uvádí pokles 6 cm na jeden metr výšky stěny, to znamená 12 až 15 cm celkem.
Hlavní nosné sloupy dřevěné konstrukce jsou se zemí spojené přes rektifikační šrouby, které se musí podle pravidelného měření sedání stavby povolovat. Na jednom z nich, ke kterému je horší přístup, se mi podařilo zaoblit hrany povolovací matice natolik, ze s ní už nebylo možné pootočit a povolit sloup, proto jsem musel příčný vodorovný trám podepřít, rozbrušovačkou rektifikační šroub uříznout a vadnou matici vyměnit – vše bylo konzultováno s panem Hanišem, který byl ochoten přijet a pomoci, ale zvládnul jsem to svépomocí. Byla to taková drobnost, která nás potkala. Stejně jako mírné prohnutí stěny u vchodových dveří. Se stavební firmou máme domluvené, že když bude stěna dál pracovat, přijede dřevo kolem dveří seříznout. Pohyb se ale zastavil, dveře nedrhnou, tak to asi bude v pohodě. Jinak se žádnými velkými problémy jsme se nesetkali.
Hrubá stavba končí hotovými krovy, natažením paropropustné fólie a zaklopením stropu. Při předávání jsme dostali od pana Haniše instrukce, jak pokračovat v dokončovacích pracích, aby navazující řemeslníci nezapomněli na nutné dilatace například při napojení zděných příček, komína, provedení instalačních prostupů v dřevných stěnách a stropech. Téměř všechno zvládla jedna šikovná místní firma: podlahy, dlažby, palubkové obklady, střechu, izolace, i s bezchybným dodržením specifik dřevostavby.
Extrémní teploty kolem mínus dvaceti stupňů tady nikoho nepřekvapí. Hlavním zdrojem vytápění roubenky jsou kromě kachlových kamen topné kabely zalité v anhydritu v podlahách. Elektrický přímotop má jednu centrální řídící jednotku na chodbě a komunikuje bezdrátově s relátky, která spínají topné smyčky v místnostech. Do podkroví jsme umístili konvektory, i když zprvu jsem tak malý krabičkám nevěřil, ale mají výbornou účinnost, během chvíle místnosti vytopí. V době naší nepřítomnosti je teplota v celém domě snížená na deset stupňů, ráno před příjezdem začne systém topit a večer tu máme tak 16 až 18 stupňů tepla. Pak zatopíme v kachlových kamnech, dům dohřejeme na příjemných dvacet stupňů a během pobytu do nich občas přihodíme polínko. Elektrické vytápění pak už vůbec nespíná, mnoho peněz tedy neprotopíme, protože vlastního dřeva zatím máme dost. Spalujeme zbytky ze stavby a museli jsme pokácet také pár náletových bříz a osik.
Nepřišli jsme ještě na nic, co bychom udělali jinak. Víkendové bydlení v roubence, zdejší přírodu a krajinu si užíváme, ale práce je tu také dost, jen než posečeme okolní pozemek! Zato tady můžeme v noci s baterkou sbírat vlastní křemenáče, kozáky a praváky. Jeho raritou je i to, že na něm stojí malý obranný bunkr se střílnou, kde plánujeme vybudovat pěkný sklípek, až nám ho armáda časem odprodá. Jsme tady spokojení, při každém odjezdu už se těšíme na další návrat.
Spodní stavba: betonová základová deska
Stavební systém: srubová konstrukce
Krov: dřevěný - smrk
Střešní krytina: betonová taška Bramac Tegalit
Vstupní dveře: dřevo, masiv
Okna: dřevo, masiv
Zasklení: izolační dvojsklo
Podlahy: dlažba, dřevěná palubková podlaha
Topení: podlahové el. topení, el. konvektory a kachlová kamna
Pozemek: 16.302 m2
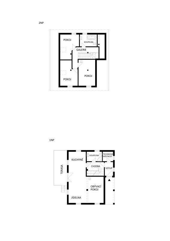
Zastavěná plocha: 109 m2
Obytná plocha: 125 m2
Realizace: Haniš Srubové domy s.r.o.
Optimal 02 - dřevostavba na klíč
PENATUS s.r.o.
Užitná plocha: 124 m²
Dispozice: 4+kk / 4+1
Nízkoenergetická dřevostavba
EKOPANELY SERVIS s.r.o.
Užitná plocha: 115 m²
Dispozice: 4+kk / 4+1
Ekologická dřevostavba
EKOPANELY SERVIS s.r.o.
Užitná plocha: 128 m²
Dispozice: 3+kk / 3+1
EKONOMY MS 04 - dřevostavba na klíč
MS HAUS s.r.o.
Užitná plocha: 85 m²
Dispozice: 4+kk / 4+1
Futura Freestyle - dřevostavba na klíč
Prodesi I Domesi
Užitná plocha: 107.8 m²
Dispozice: 3+kk / 3+1
Dům se sloupy z douglasky
ARCHCON atelier, s.r.o., DŘEVOSTAVBY BISKUP, s.r.o.
Užitná plocha: 118.44 m²
Dispozice: 4+kk / 4+1
Moderní roubenka v trampské osadě
OK PYRUS, s.r.o.
Užitná plocha: 117 m²
RD Mnichovice
EKOPANELY SERVIS s.r.o.
Užitná plocha: 124.3 m²
Dispozice: 3+kk / 3+1
Rodinný dům Tábor - dřevostavba na klíč
ALFAHAUS s.r.o.
Užitná plocha: 137 m²
Dispozice: 4+kk / 4+1
Lesníkova roubenka
EKOPANELY SERVIS s.r.o.
Užitná plocha: 260 m²
Dispozice: 5+kk / 5+1
Bennet
KANADSKÉ SRUBY TÁBOR, s.r.o.
Užitná plocha: 177 m²
Dispozice: 5+kk / 5+1
Chata v Jizerských horách - dřevostavba na klíč
3AE s.r.o.
Rodinný dům 307 - dřevostavba na klíč
MARTINICE GROUP s.r.o.
Užitná plocha: 130 m²
Dispozice: 5+kk / 5+1
LUCERN 116 - dřevostavba na klíč
LUCERN dřevostavby s.r.o.
Užitná plocha: 103.1 m²
Dispozice: 4+kk / 4+1
Dům venkovského stylu
EKOPANELY SERVIS s.r.o.
Užitná plocha: 153 m²
Dispozice: 4+kk / 4+1
Dřevostavba roku - archiv
Copyright © 2026 Českobrodská 35, 190 12 Praha 9 - Dolní Počernice Kontakt
