Spíše než cesta sem vede procházková trasa místních. Stráň nabízí výhled na celé město, ovšem není to jen výhled, co zde příchozího zaujme. Okolní louky a polnosti patřily dříve k hospodářské usedlosti s půvabným názvem Dvůr U lípy a něco ze stávajícího genia loci je tu stále všude přítomno. I ve stavbě kousek od cesty na hranici lesa, kterou si nechali postavit manželé Jitka a František. A ač nejde o dřevostavbu, spojuje své obyvatele s lesem a přírodou více než jen svou fasádou.
„Bydleli jsme v bytě ve městě. Ale jsem z vesnice, rodiče mají dům a zahradu, a to mi začalo stále víc a víc chybět," začíná vyprávět Jitka příběh vzniku jejich domu. „Začali jsme proto uvažovat o stavbě. Pozemek jsme kupovali s tím, že na něm zatím nelze stavět, stavební parcela se z něj stala až po čase se změnou územního plánu. Líbil se nám dům zapuštěný do svahu, současně jsme toužili po co největším propojení s okolní přírodou. Měla jsem vizi domu s terasou a přímým vstupem ven, tak, jako tomu bývalo dříve u venkovských domů – udělám krok a jsem na zápraží. Nemusím nikam cestovat, aby si mohla užít přírodu."
Ke mně čelem, k Ivanovi také
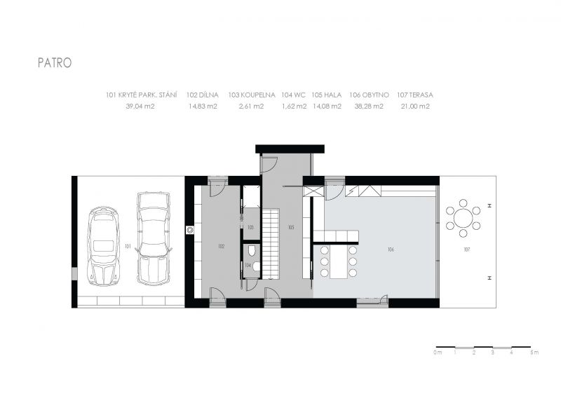
Díky příbuzenskému vztahu s majiteli byl výběr architekta víceméně daný. Ovšem navrhnout dům v prudkém svahu tak, aby dobře zapadl do krajiny a současně se v něm dobře bydlelo, nebylo snadné. „Místo je to krásné, s pěkným výhledem na město, nejen ve dne, ale i večer, když svítí, zatímco tady už je tma," hodnotí lokaci architekt Jaromír Veselák. „Na Šumavě nebo v jiném krajinném kontextu se nemusí stavět klasické chaloupky. Dům je sice podélného tvaru, podobně, jako bývají staré chalupy na šumavských kopcích, ale jeho hmota je nízká, zapuštěná do svahu a z mého pohledu je ke krajině mnohem mírumilovnější než mnohé stavby se sedlovou střechou, citující tvarosloví chalup stavěných před sto lety. Koncepce a jeho zasazení do terénu byly pak vedeny snahou využít výhledy, které se zde naskýtají. Společenská část domu je proto situovaná v horním podlaží, ložnice a soukromá část jsou trochu neobvykle ve spodní části stavby. Z obou podlaží lze tak vyjít hned ven, z kuchyně směrem k lesu na bylinkovou zahrádku a dvůr, ze spodního podlaží na zahradu na opačné straně. Díky zapuštění ve svahu jsou zde vlastně dvě přízemí."
Beton a modřín jako mimikry
Použité stavební materiály byly zvoleny tak, aby co nejlépe ladily s okolím. Kombinace přírodního dřeva na fasádě má vztah k otištěnému dřevěnému reliéfu v monolitickém betonu, použitém jak na štítové stěně, která dům chrání zvenčí a z návětrné strany, tak i na stropech v obou podlažích. Fasáda je obložena sibiřským modřínem a i když vypadá jednolitě, je na ní použito několik typů překryvu prken, jde vlastně o starý princip provětrávané fasády, dříve využívaný na Šumavě na stěnách stodol. „Fasáda nyní přirozeně stárne," pochvaluje si obklad František, „dříve jsme při pohledu z protisvahu ve stráni svítili, modřín byl čerstvý. Dnes, když jsou stromy zelené, dům skoro není vidět, příjemně splývá s okolím. A až bude hotová vegetační střecha, bude součástí okolí i při pohledu shora."
Velikost pozemku: 2 982 m2
Zastavěná plocha: 176 m2
Užitná plocha: 273,7 m2
Obytná plocha: 180,4 m2
Spodní stavba: železobetonová bílá vana
Stavební systém: zděná konstrukce – cihelné tvárnice tl. 300mm, stěnový systém – příčné stěny a plus dvě nosné podélné stěny, železobetonové monolitické stropy
Skladba stěny: 1. NP pod úrovní terénu - cihelné tvárnice 400 mm + polystyren 100 mm v kombinaci s nosnou stěnou železobetonové bílé vany 250 mm a tepelnou izolací 80 mm; 1. NP a 2. NP nad terénem - cihelné tvárnice 300 mm + minerální izolace 150 mm
Fasáda: přírodní sibiřský modřín
Střecha: jednoplášťová neprovětrávaná plochá
Střešní krytina: PVC fólie s krycím násypem z praného říčního kačírku o tloušťce 60 mm
Okna: dřevěné profily EURO sibiřský modřín
Dveře: vnitřní dveře – dřevěné částečně prosklené obložkové, vstupní dveře dřevěné zateplené lamelové, částečně prosklené s dřevěnou rámovou zárubní
Podlahy: marmoleum, trachyt
Teplo: podlahové topení – tepelné čerpadlo země/ voda s plošným kolektorem na zahradě, krb jako doplňkový zdroj
Celková tloušťka stěny: 455 mm
Součinitel prostupu tepla stěnou: 0,18 W/m2K
Projekt: Ing. arch. Jaromír Veselák, Atelier AeroPLAN
Optimal 02 - dřevostavba na klíč
PENATUS s.r.o.
Užitná plocha: 124 m²
Dispozice: 4+kk / 4+1
Dům venkovského stylu
EKOPANELY SERVIS s.r.o.
Užitná plocha: 153 m²
Dispozice: 4+kk / 4+1
EKONOMY MS 04 - dřevostavba na klíč
MS HAUS s.r.o.
Užitná plocha: 85 m²
Dispozice: 4+kk / 4+1
RD Mnichovice
EKOPANELY SERVIS s.r.o.
Užitná plocha: 124.3 m²
Dispozice: 3+kk / 3+1
Lesníkova roubenka
EKOPANELY SERVIS s.r.o.
Užitná plocha: 260 m²
Dispozice: 5+kk / 5+1
Bennet
KANADSKÉ SRUBY TÁBOR, s.r.o.
Užitná plocha: 177 m²
Dispozice: 5+kk / 5+1
Rodinný dům Tábor - dřevostavba na klíč
ALFAHAUS s.r.o.
Užitná plocha: 137 m²
Dispozice: 4+kk / 4+1
Nízkoenergetická dřevostavba
EKOPANELY SERVIS s.r.o.
Užitná plocha: 115 m²
Dispozice: 4+kk / 4+1
Ekologická dřevostavba
EKOPANELY SERVIS s.r.o.
Užitná plocha: 128 m²
Dispozice: 3+kk / 3+1
Chata v Jizerských horách - dřevostavba na klíč
3AE s.r.o.
Pavo 111 - dřevostavba na klíč
A T R I U M, s.r.o.
Užitná plocha: 111.03 m²
Dispozice: 5+kk / 5+1
LUCERN 116 - dřevostavba na klíč
LUCERN dřevostavby s.r.o.
Užitná plocha: 103.1 m²
Dispozice: 4+kk / 4+1
Rodinný dům 307 - dřevostavba na klíč
MARTINICE GROUP s.r.o.
Užitná plocha: 130 m²
Dispozice: 5+kk / 5+1
Moderní roubenka v trampské osadě
OK PYRUS, s.r.o.
Užitná plocha: 117 m²
Futura Freestyle - dřevostavba na klíč
Prodesi I Domesi
Užitná plocha: 107.8 m²
Dispozice: 3+kk / 3+1
Dřevostavba roku - archiv
Copyright © 2026 Českobrodská 35, 190 12 Praha 9 - Dolní Počernice Kontakt
