Cestou na tuto návštěvu projíždím satelitním městečkem. Typické katalogové domy minulého století, některé zvláště nevkusné, s fialovou či zelenou fasádou, sem tam „vylepšené" balkonkem či zlatým rámem oken. U nich minizahrady s plotem z tújí a výhled do pole. Přemýšlím nad tou necitelnou, praktickou rovinou zmrzačené architektury, když tu na konci myšlenky vytane otázka: Co je vlastně příčinou toho, že ze stavby máme dobrý pocit? Odpověď nacházím záhy; hned za brankou sázavské dřevostavby. Idea je to tak prostá a srozumitelná, že nechápu, proč se neužívá častěji.
První dojem je strhující. Dům stojí jako moderní bašta, vklíněná do svahu pozemku v meandru řeky Sázavy a s přehledem přijímá odraz zahrady, lesa i okolních kopců. Jakoby v souladu s rytmem onoho odpoledne, ročního období i geometrické harmonie útočí na moje smysly proporcemi, barvami, světlem, vůněmi i zvuky. Interakce umělého (novodobého) s přírodním (původním) tu smazává ostrou hranici a doslova protéká prostorem a vším, co se v něm kdy přihodilo. Dům tu přestává být izolovanou jednotkou a stává se organickým artefaktem, vycházejícím z podstaty místa. Za jeho metamorfózou stojí uchopení morfologie prostředí a pochopení spirituální roviny přírodních nebo chcete-li přirozených předobrazů, a zakotvení stavby formou, usazením i volbou materiálů v časové a kulturní kontinuitě. Dům se stává součástí krajiny a krajina součástí domu.
Rozhraní mezi viděným a neviděným pak představuje zvláštní vztah, který vnímáme instinktivně a se kterým se setkáváme v přírodě, aniž bychom si to uvědomovali; v ulitách mlžů, rozích turů či u celé řady vyšších rostlin. Řeč je o Fibonacciho posloupnosti neboli poměru částí vůči celku, kdy jedno se dělí ve dví a přitom zůstává částí jednoty. Je to tak zvaný zlatý řez či zjednodušeně řečeno ideální proporce. Z nějakého důvodu se jím příroda řídí a designéři, umělci i architekti obvykle také. Nevědomky jej používáme i my obyčejní, třeba když si vybíráme partnera nebo si jen chceme pověsit na stěnu obraz. Tahle „posvátná geometrie" dokáže propojit intuitivní mozkovou hemisféru s tou analytickou, a výsledkem je, že pozorovaná realita působí na naši psychiku jako přirozená, přitažlivá a srozumitelná či řečeno jedním slovem – krásná. A přesně takový je i tento dům.
Usazení domu v severovýchodní části pozemku, rovnoběžně s jeho delší hranou, a jižní orientace obytných místností umožňuje co nejvíce využívat solárních tepelných zisků. V půdorysné stopě dům kopíruje rozměr původního přízemního domu, respektive je vystavěn na základech a částečném podsklepení chaty, kde Jan trávil čas prakticky nepřetržitě od dětství. „Mám tohle místo moc rád a přál jsem si, aby rodinný příběh pokračoval. Zprvu jsme sice uvažovali v jiných intencích, ale pak se nám zalíbilo konstrukční dřevo a jsme za to rádi," vypráví příběh svého domu Jan.
Jednopodlažní dům s podkrovím je tvořen jednoduchou kompaktní hmotou kvádru se sedlovou střechou bez přesahů o sklonu třicet šest stupňů. Na jihozápadní fasádě je hmota doplněna v úrovni přízemí a suterénu o rizalit, vystupující z líce průčelí pokojem pro hosty a nad ním v podobě celoplošně prosklené jídelny. „Původně jsme zamýšleli umístit v tomto výklenku zimní zahradu, ale výhled z něj si nás podmanil natolik, že si tu spolu s ním vychutnáváme i jídlo," upřesňuje Jan genezi nejvyužívanějšího obytného prostoru. Na výklenek navazuje po obou stranách poměrně dominantní dřevěná terasa, zastíněná rovněž dřevěnou pergolou. Vegetace, která ji porůstá, je spolu s textilními roletami a markýzou oživujícím prvkem fasády. Symetrie jihozápadní fasády je pak podtržena velkým vikýřem ve tvaru trojúhelníku, jehož okno vpouští světlo do pracovny v podkroví.
S touhou investora po velké volnosti pohybu a propojení interiéru s exteriérem pak korespondují všechna okna přízemí, která prolamují fasádu v plné výšce stěn. Fixní i otvíravá okna mají rám v jednotném designu, přičemž rám otvíravých skleněných ploch není z exteriéru patrný. Aby přístavba suterénu nerušila vnímání přírodního kamene, je stěna pojata bělavou omítkou. Při pohledu z dálky je tak sjednocená se stávajícím suterénem, ovšem tak, že si původní a nové materiály nekonkurují.
Ze severozápadu je dům stíněn také dřevěnou pergolou, která je podél stěn vynesena táhly. Plné přiznání odlišnosti nové dřevěné stavby od staré kamenné podezdívky posouvá symbiózu horního s dolním na úroveň respektu a plnohodnoty obou řešení.
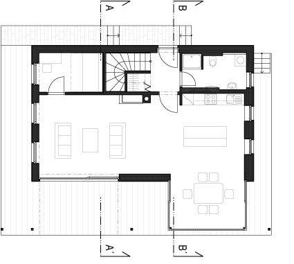
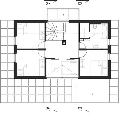
Nenápadný vstup do domu je krytý stříškou a hned za ním následuje zádveří se šatní skříní a botníkem. Na jedné straně chodby je přístupná menší koupelna s toaletou a sprchovým koutem, proti ní stoupá schodiště do podkroví. Zrcadlově proti domovním dveřím je pak umístěný vstup do obytného prostoru, propojeného s venkovní terasou posuvnými dveřmi, který společně s prosklenou jídelnou rozpouští pohled v baldachýnu přilehlého lesa. Podkroví poskytuje prostor třem pokojům a prostorné koupelně s vanou a infrasaunou. Na schodišťovou halu pak navazuje pracovna s prosklenými posuvnými dveřmi, které propouštějí světlo z okenního vikýře dál do haly.
Připravila Dana Jakoubková
Foto Martin Zeman
Zastavěná plocha 88 m²
Užitná plocha dům 150 m², vstup a terasy 40 m2
Spodní stavba založení na stávajících základových konstrukcích po demolici původního objektu-vyspraveno, nový štěrkopískový podsyp tl. 150 mm, nová ŽB deska tl. 150 mm+SBS modifikovaný pás a s výztužnou vložkou ze skleněné takaniny+pěnový polystyren EPS 100 Z 180 mm
Konstrukční systém obvodové stěny KLH třívrtsvé masivní panely tl. 95 mm a 120 mm (pohledová kvalita)+vnitřní nosné a ztuž. Stěny KLH třívrtsvé masivní panely tl. 95 mm
Tepelná izolace obvodové stěny exteriér dřevovláknitá izolace tl. 200 mm+střecha dřevovláknitá izolace tl. 240 mm +100 mm, dřevovláknitá izolace tl. 240 mm+100 mm
Fasáda silikonová difuzně otevřená omítka
Střešní krytina falcovaná plechová krytina z hliníkových pásů
Okna hliníková okna Uw ≤ 1,1 W/m2K, hliníková okna Uw ≤ 1,1 W/m2K
Podlahy těžká plovoucí, 1.NP slinutá dlažba,mramor (hlavní obytný prostor), 2.NP slinutá dlažba (koupelna), masivní dřevěná podlaha
Teplo elektrické vytápění, 1.NP podlahové vytápění (topné rohože), 2.NP přímotopy, koupelny – podlahové vytápění + topné žebříky, elektrický zásobníkový akumulační ohřívač o objemu 150 l, cirkulace
Skladba stěny (směrem zevnitř) masivní dřevěné panely KLH (třívrstvé) pohledová kvalita 95 mm+parobrzdná fólie+dřevovláknitá izolace 160 mm+dřevovláknitá izolace pro kontaktní zateplovací systém 40 mm+difuzně otevřená omítka vč. armovací hmoty a síťoviny 10 mm
Celková tloušťka stěny 30,5 cm
Součinitel prostupu tepla stěnou 0,178 W/m2K
Projekt Ing. Irena Truhlářová, ARCHCON atelier, s.r.o.
Realizace DŘEVOSTAVBY BISKUP s.r.o., 2011
Pavo 111 - dřevostavba na klíč
A T R I U M, s.r.o.
Užitná plocha: 111.03 m²
Dispozice: 5+kk / 5+1
Optimal 02 - dřevostavba na klíč
PENATUS s.r.o.
Užitná plocha: 124 m²
Dispozice: 4+kk / 4+1
LUCERN 116 - dřevostavba na klíč
LUCERN dřevostavby s.r.o.
Užitná plocha: 103.1 m²
Dispozice: 4+kk / 4+1
EKONOMY MS 04 - dřevostavba na klíč
MS HAUS s.r.o.
Užitná plocha: 85 m²
Dispozice: 4+kk / 4+1
Nízkoenergetická dřevostavba
EKOPANELY SERVIS s.r.o.
Užitná plocha: 115 m²
Dispozice: 4+kk / 4+1
Chata v Jizerských horách - dřevostavba na klíč
3AE s.r.o.
Lesníkova roubenka
EKOPANELY SERVIS s.r.o.
Užitná plocha: 260 m²
Dispozice: 5+kk / 5+1
Rodinný dům 307 - dřevostavba na klíč
MARTINICE GROUP s.r.o.
Užitná plocha: 130 m²
Dispozice: 5+kk / 5+1
Ekologická dřevostavba
EKOPANELY SERVIS s.r.o.
Užitná plocha: 128 m²
Dispozice: 3+kk / 3+1
Bennet
KANADSKÉ SRUBY TÁBOR, s.r.o.
Užitná plocha: 177 m²
Dispozice: 5+kk / 5+1
Rodinný dům Tábor - dřevostavba na klíč
ALFAHAUS s.r.o.
Užitná plocha: 137 m²
Dispozice: 4+kk / 4+1
Futura Freestyle - dřevostavba na klíč
Prodesi I Domesi
Užitná plocha: 107.8 m²
Dispozice: 3+kk / 3+1
Dům se sloupy z douglasky
ARCHCON atelier, s.r.o., DŘEVOSTAVBY BISKUP, s.r.o.
Užitná plocha: 118.44 m²
Dispozice: 4+kk / 4+1
Moderní roubenka v trampské osadě
OK PYRUS, s.r.o.
Užitná plocha: 117 m²
Dům venkovského stylu
EKOPANELY SERVIS s.r.o.
Užitná plocha: 153 m²
Dispozice: 4+kk / 4+1
Dřevostavba roku - archiv
Copyright © 2026 Českobrodská 35, 190 12 Praha 9 - Dolní Počernice Kontakt
