Roubenka zůstávala až do poslední chvíle skryta za stromy a ani poté, co jsme vystoupili z auta, se neukazovala příliš ochotně. Ne nadarmo je však roubenka rodu ženského. Rafinovaně si to nejkrásnější schovávala pro moment překvapení. Když jsme došli až k ní, otevřela se před námi v plné kráse, zároveň s nádhernou zahradou a úžasným výhledem do Brdských lesů.
Petra a Zsolt žijí v Čechách již osm let. „Nejsme takoví typičtí městští lidé, chtěli jsme více do přírody," vysvětluje Petra, „a pak jsme našli pozemek o rozloze 3 700 m2. Naším snem byla prakticky vždycky dřevostavba z masivního dřeva, já jsem předtím žila a pracovala v Rakousku a líbily se mi tam dřevěné domy s muškáty za okny, bylo to prostě něco úplně jiného než běžný dům."
Ve vesnickém stylu
Pak nastalo klasické kolečko všech stavebníků masivní dřevostavby – vyhledávání firem, které takové domy staví, a návštěvy výstav s touto tematikou. „Pokud jde o typ domu a jeho vzhled, museli jsme respektovat omezení ze strany stavebního úřadu," dodává Zsolt. „Jsme v chráněné krajinné oblasti, není zde proto možné postavit cokoli, zvolili jsme tedy jednoduchý projekt – vesnický styl, sedlová střecha, nic zvláštního. Nejdříve jsme chtěli stavět srub, ten nám zamítli, takže zůstala roubenka. A nakonec to byla z našeho pohledu mnohem lepší volba."
Dům je nepodsklepený, protože je na pozemku spodní voda, sklep by tedy mohl být rizikový. Pro chybějící sklípek se najde místo na zahradě. Roubenka je postavena ze smrkového dřeva vytěženého v Čechách. Dřevo bylo přivezeno z pily na staveniště a po opracování se hned stavěl dům. Stavba začala 28. ledna a téměř na den přesně za čtyři měsíce byla roubenka pod střechou. V říjnu se majitelé mohli nastěhovat do domu sice nezařízeného, ale vhodného k užívání, a postupně ho dokončovali a zařizovali. „Dům jsme si zvenka natírali sami, abychom se také nějak podíleli na jeho vzniku, uvnitř jsme použili jen čirý otěruvzdorný nátěr, zvenku pak olejový nátěr, který dřevo nasaje a pak je odolné i proti vodě, takže je možné ho třeba omýt proudem vody."
Račte se kochat
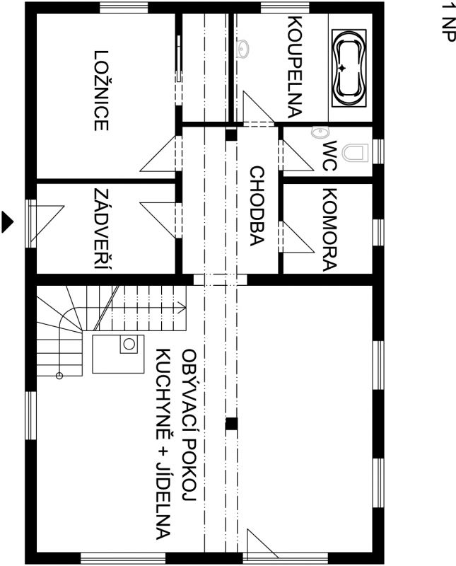
Pozemek je mírně svažitý, přední část roubenky je tedy ve výšce 1,3 metru. K domu proto z boku přiléhá ochoz a zepředu velká nezastřešená terasa, pod níž je otevřený prostor na uskladnění dřeva.
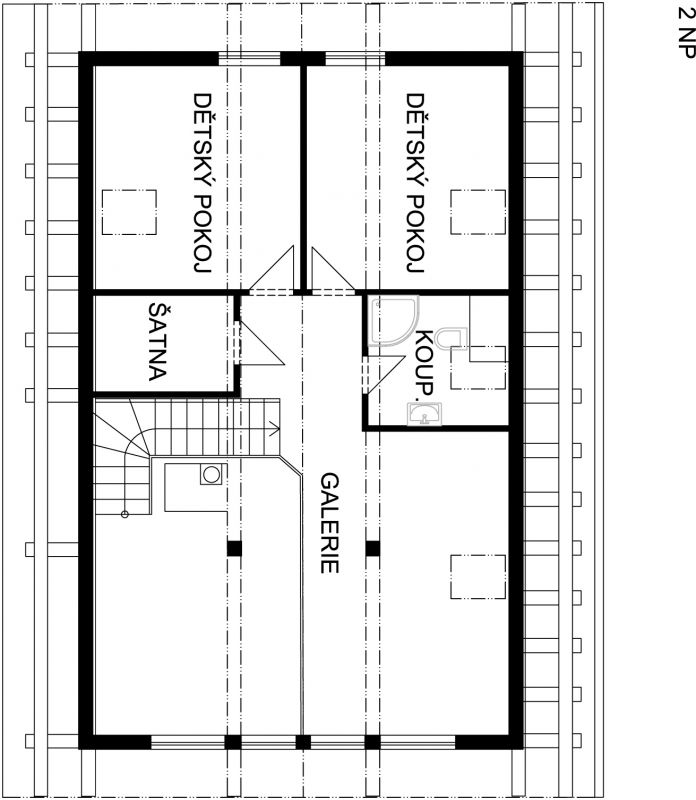
Petra se Zsoltem si původní projekt do jisté míry upravili. Vzdali se jedné místnosti a v patře si nechali zřídit galerii s velkými okny. Získali tak propojení prostoru v přízemí s podkrovím, galerie se navíc dá i tak využít k občasnému přespání návštěv. V budoucnu majitelé plánují, že bude na galerii pracovna. „Je tu nádherný výhled, kvůli němu jsme volili velká okna i polohu domu," říká Zsolt, ale Petra vnáší do romantiky trochu reality: „Tu krásu však trochu kazí, že se okna špatně myjí. Je to vlastně jediná věc, kterou bych vyřešila jinak. Na vnitřní stranu musíme při mytí oken přistavit třímetrový žebřík, měli jsme tam prostě nechat ochoz. A zvenku je to samozřejmě také problém, protože je to vysoko...".
Máte v domě nějaká zajímavá řešení, „vychytávky"?
Za prospěšné považujeme svedení dešťové vody ze střechy do sběrné akumulační nádrže. Na ní je retro pumpa, ale ta mechanicky nefunguje, je tam zabudovaný elektrický vypínač pro čerpadlo. Tohle opatření se nám už vyplatilo loni v době sucha a velkých veder, kdy jsme vodu využili.
Za vychytávku můžeme považovat řešení příček z šedého pórobetonu. Mezi stropem a příčkou byla ponechaná mezera asi 25 cm. Když dům sedl asi o 15 cm, udělali jsme dřevěný obklad, který klesá současně s domem a máme tak schované mezery mezi dřevěnou a pórobetonovou částí. Současně obklad zamezuje proudění vzduchu a utěsňuje místnosti zvukově. V přízemí máme tedy příčky z pórobetonu, v patře jsou tvořeny kovovou konstrukcí a obloženy sádrokartonem, uvnitř není nic, žádná tepelná izolace.
Velmi praktický je také domovní telefon. Máme branku celkem daleko od domu, takže zvenku je zvonek s kamerou, uvnitř monitor, na němž vidíme, kdo je u brány. Pokud nejsme doma, může nechat vzkaz. Zařízení je možné napojit na pult centrální ostrahy, ale my ho používáme hlavně jako zvonek, abychom věděli, kdo je za branou. Vnitřní zařízení má také vypínač, kterým se dá otevřít branka na dálku.
Které místo máte v domě nejraději?
Nejvíce se zdržujeme v obývacím pokoji a v kuchyni. Ale když je krásně, trávíme čas venku. Máme dva psy, je to japonské plemeno Akita Inu, fenka a pes. Jsou to rodinní psi, ale hlídají, takže tady pobíhají volně.
A za kamny máme takovou zašívárnu... Kachlová kamna si manželka navrhla sama. Trochu jsme se báli, že budou příliš velká, ale nakonec je to velmi pěkná součást vybavení místnosti. A měli jsme představu, sen z pohádek, kde sedí pecivál za kamny, tak jsme si k nim pořídili takové zápecí. Leželi jsme tam však zatím asi jednou...ale když přijede návštěva s dětmi, tak tam hned zalezou a už o nich nevíme.
Já mám ráda svou vanu v koupelně, i přesto, že jsem o ní měla původně úplně jinou představu. Při stavbě koupelny vyšel vývod na vanu při dřevěné stěně, ale bylo nám líto ji zakrýt, tak jsme zvolili samostatně stojící vanu se samostatným kohoutkem. Jsme spokojeni. I když manžel říká, že je pro něj vana malá, že v ní nemá takové pohodlí.
Připravila Dana D. Daňková
Foto Jiří Ernest
Zastavěná plocha: 100 m2
Užitná plocha: 151 m2
Spodní stavba: základové pasy a deska (bez podsklepení)
Stavební systém: roubená konstrukce ze syrového smrkového dřeva
Vnitřní příčky: přízemí pórobeton, podkroví sádrokartonové
Střešní krytina: betonová Bramac Max
Okna: dřevěná EURO 68 Tredo
Podlahy: dlažba, dřevo, plovoucí podlaha laminátová
Teplo: kachlová kamna, elektrokotel — přízemí podlahové teplovodní topení, v patře radiátory
Celková tloušťka stěny: 300 mm
Součinitel prostupu tepla stěnou: 0,26 W/m2K
Projekt: Daniel Vlček
Realizace: Haniš srubové domy s.r.o.
Bennet
KANADSKÉ SRUBY TÁBOR, s.r.o.
Užitná plocha: 177 m²
Dispozice: 5+kk / 5+1
Moderní roubenka v trampské osadě
OK PYRUS, s.r.o.
Užitná plocha: 117 m²
Pavo 111 - dřevostavba na klíč
A T R I U M, s.r.o.
Užitná plocha: 111.03 m²
Dispozice: 5+kk / 5+1
Optimal 02 - dřevostavba na klíč
PENATUS s.r.o.
Užitná plocha: 124 m²
Dispozice: 4+kk / 4+1
Dům se sloupy z douglasky
ARCHCON atelier, s.r.o., DŘEVOSTAVBY BISKUP, s.r.o.
Užitná plocha: 118.44 m²
Dispozice: 4+kk / 4+1
Ekologická dřevostavba
EKOPANELY SERVIS s.r.o.
Užitná plocha: 128 m²
Dispozice: 3+kk / 3+1
RD Mnichovice
EKOPANELY SERVIS s.r.o.
Užitná plocha: 124.3 m²
Dispozice: 3+kk / 3+1
Rodinný dům 307 - dřevostavba na klíč
MARTINICE GROUP s.r.o.
Užitná plocha: 130 m²
Dispozice: 5+kk / 5+1
Chata v Jizerských horách - dřevostavba na klíč
3AE s.r.o.
Futura Freestyle - dřevostavba na klíč
Prodesi I Domesi
Užitná plocha: 107.8 m²
Dispozice: 3+kk / 3+1
EKONOMY MS 04 - dřevostavba na klíč
MS HAUS s.r.o.
Užitná plocha: 85 m²
Dispozice: 4+kk / 4+1
LUCERN 116 - dřevostavba na klíč
LUCERN dřevostavby s.r.o.
Užitná plocha: 103.1 m²
Dispozice: 4+kk / 4+1
Dům venkovského stylu
EKOPANELY SERVIS s.r.o.
Užitná plocha: 153 m²
Dispozice: 4+kk / 4+1
Lesníkova roubenka
EKOPANELY SERVIS s.r.o.
Užitná plocha: 260 m²
Dispozice: 5+kk / 5+1
Nízkoenergetická dřevostavba
EKOPANELY SERVIS s.r.o.
Užitná plocha: 115 m²
Dispozice: 4+kk / 4+1
Dřevostavba roku - archiv
Copyright © 2026 Českobrodská 35, 190 12 Praha 9 - Dolní Počernice Kontakt
