Na první pohled zaujme svým rázným tvaroslovím. Jako celek se smíšeným lesem v těsné blízkosti skutečně působí jako usedlost. Rozhodně však ne z minulého století. Snoubí tradiční představu o bydlení na vesnici s novodobým komfortem a estetikou. Co jí říkáte?
Vždycky jsem chtěl dům. Bydlel jsem v pražském bytě a věděl jsem, že je to dočasné. Prošel jsem ale určitým vývojem. Dospíval jsem v 90. letech a tenkrát frčely satelity jako synonymum určitého životního luxusu. Od té doby se věci změnily, ale tehdy to tak bylo. Koupil jsem zhruba před 15 lety pozemek právě v satelitu. V té době to bylo spíš pole. Nezačal jsem stavět hned a mezitím si majitelé v okolí na svých pozemcích zrealizovali své „sny". Jednou to byla roubenka, podruhé supermoderní skleněný palác. Výsledkem byl totální chaos – každá fasáda i střecha jiná, orientace domů nedávaly smysl... Pozemek jsem ještě nezastavěný prodal a dnes jsem za to rozhodnutí moc rád.
Jako za starých časů
Parcela, na níž stojí náš současný dům, je rodinným darem a přišla v pravý čas. Plní mi sen o bydlení přímo u lesa. Je výjimečná mimo jiné svojí rozlohou kolem 4000 m2. Vzhledem k velikosti jsem ji nechtěl zastavět pouze jedním domem, ale využít ji pro vícegenerační řešení, nechat otevřenou možnost přistavovat další stavby. Nejen další obydlí, ale třeba i stavby technické, wellness a podobně. Výsledné rozmístění hmot, objektů a ploch mělo jako celek dávalo pocit usedlosti, ne solitérního domu. Na jazyku jsem měl pojem „moderní tvrz".
Důležitý průvodce na cestě
S architektem jsme se potkali přibližně již před 15 lety. Tenkrát se zmiňoval, že až dostuduje, bude se věnovat dřevostavbám. Řadu let jsme se pak neviděli a setkali se až náhodou na veletrhu, kde prezentoval svoji firmu. Líbilo se mi, že u svého přesvědčení vytrval. Oslovil jsem jej a začala naše spolupráce na novém domě. Vždy jsem chtěl architekta, nikdy ne pouze typový dům, i když jsem pochopitelně prohlížel různé nabídky, abych si ujasnil, co se mi líbí.
Sny usazené do reality
Mojí původní představou byl srub z kulatiny, postupně jsem se však přesvědčil, že tudy cesta nepovede. V případě srubu je architektura daná materiálem a člověk nevykouzlí nic jiného než chalupu. Já naproti tomu toužil mít hodně prosklených ploch, což by po estetické stránce nefungovalo. Návrh vyplynul z požadavku rozmístění staveb na pozemku, z principu usedlosti. Objekt je umístěn pouze do části parcely s tím, že na dalších plochách mohou vyrůstat další objekty.
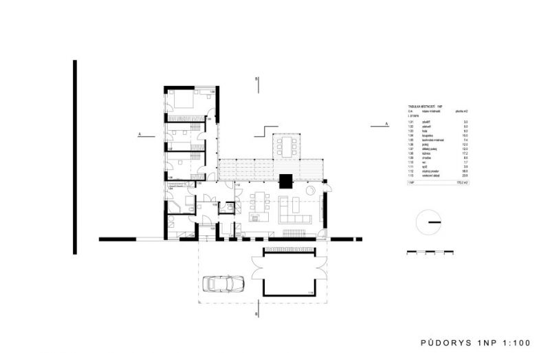
Stavba je funkčně rozdělena do noční části s ložnicemi orientované na jih do klidného borového lesa a denní části s otevřeným obývacím pokojem a galerií. Záměrem bylo vytvořit raději jeden univerzální prostor pro různé funkce, než mít několik pro každou funkci zvlášť. Galerie se tedy dá využít pro cvičení, jako herna, případně tam lze vybudovat dva plnohodnotné pokoje s koupelnou. Rozvody jsou připraveny.
Čerstvý vzduch ve dne v noci
Ideje o energetickém fungování domu jsme příliš neměli. Dům je otevřený, jsou v něm galerie, kdybychom šli po úspoře energií, řešení by nejspíš vypadalo jinak. My jsme chtěli vzdušný dům s velkým množství prosklených ploch. Máme krb, ve kterém denně topíme, vzduchotechniku s rekuperací, kde je přitápění (nastavujeme teplotu na termostatu u rekuperace), plus máme ještě elektrické přímotopy. Ty ale spíše temperují, nefungují jako významný zdroj tepla. V případě rekuperace jsem dal na architekta a zejména v zimě jsme maximální spokojení.
Vydýchaný vzduch v ložnici, který jsem dříve zažíval v paneláku, nyní neznám. A to s námi spí v ložnici čtyři psi. Četl jsem nějaké zkušenosti o tom, že vzduchotechnika hučí a vytváří průvan, nám se to ale nepotvrdilo. V ložnici navíc netopíme, zejména kvůli psům. Ve velkém teple se jim špatně dýchá, běžně tedy spíme i ve 13 stupních a nevadí nám to. Obecně nám vyhovují nižší teploty. Pro normální život je optimální 17, 18 stupňů, pro klidné sezení u televize přibližně 20.
Zkušenosti s odstupem času
Pokud bych měl udělat něco jinak, byla by to zateplená garáž. A také úložných prostor není nikdy dost, ale nemohu říct, že bych je řešil jinak. Jsou adekvátní k proporci domu. V budoucnu ovšem budeme potřebovat více místa na různé potřeby k zahradničení a dalším našim koníčkům a radostem spojeným s životem na vesnici.
Považujeme si, že je dům do L a je vidět z ložnic do obýváku. Z postele člověk vidí, co se děje v kuchyni, i když jej dělí dvě okenní plochy. Senzační jsou také světelné efekty. Když někdo svítí svíčkou nebo lampičkou, osvětluje současně druhé křído domu. Je to příjemné.
Tyto nejrůznější průhledy si užíváme a jsou takovým nečekaným překvapením tohoto bydlení.
Zastavěná plocha: 233 m2
Užitná plocha: 198 m2
Konstrukční systém: masivní dřevěné panely (CLT)
Teplo a větrání: přímotopy, rekuperace, krbová kamna
Skladba stěny: 84 mm panel Novatop Solid, 180 mm
minerální izolace Orsil Osik, provětrávaná mezera, 33 mm
modřínové palubky
Součinitel prostupu tepla stěnou: U = 0,202 W/m2K
Projekt: Prodesi, v.o.s., autor Ing. arch. Václav Zahradníček,
spolupráce Ing. arch. Michal Kotlas, projektant Jan Švarc
Realizace: Domesi, s.r.o., www.domesi.cz, 2015
Bennet
KANADSKÉ SRUBY TÁBOR, s.r.o.
Užitná plocha: 177 m²
Dispozice: 5+kk / 5+1
LUCERN 116 - dřevostavba na klíč
LUCERN dřevostavby s.r.o.
Užitná plocha: 103.1 m²
Dispozice: 4+kk / 4+1
RD Mnichovice
EKOPANELY SERVIS s.r.o.
Užitná plocha: 124.3 m²
Dispozice: 3+kk / 3+1
Optimal 02 - dřevostavba na klíč
PENATUS s.r.o.
Užitná plocha: 124 m²
Dispozice: 4+kk / 4+1
EKONOMY MS 04 - dřevostavba na klíč
MS HAUS s.r.o.
Užitná plocha: 85 m²
Dispozice: 4+kk / 4+1
Dům venkovského stylu
EKOPANELY SERVIS s.r.o.
Užitná plocha: 153 m²
Dispozice: 4+kk / 4+1
Rodinný dům Tábor - dřevostavba na klíč
ALFAHAUS s.r.o.
Užitná plocha: 137 m²
Dispozice: 4+kk / 4+1
Lesníkova roubenka
EKOPANELY SERVIS s.r.o.
Užitná plocha: 260 m²
Dispozice: 5+kk / 5+1
Moderní roubenka v trampské osadě
OK PYRUS, s.r.o.
Užitná plocha: 117 m²
Futura Freestyle - dřevostavba na klíč
Prodesi I Domesi
Užitná plocha: 107.8 m²
Dispozice: 3+kk / 3+1
Nízkoenergetická dřevostavba
EKOPANELY SERVIS s.r.o.
Užitná plocha: 115 m²
Dispozice: 4+kk / 4+1
Chata v Jizerských horách - dřevostavba na klíč
3AE s.r.o.
Ekologická dřevostavba
EKOPANELY SERVIS s.r.o.
Užitná plocha: 128 m²
Dispozice: 3+kk / 3+1
Dům se sloupy z douglasky
ARCHCON atelier, s.r.o., DŘEVOSTAVBY BISKUP, s.r.o.
Užitná plocha: 118.44 m²
Dispozice: 4+kk / 4+1
Rodinný dům 307 - dřevostavba na klíč
MARTINICE GROUP s.r.o.
Užitná plocha: 130 m²
Dispozice: 5+kk / 5+1
Dřevostavba roku - archiv
Copyright © 2026 Českobrodská 35, 190 12 Praha 9 - Dolní Počernice Kontakt
