Tentokrát jsme s fotografem neparkovali mezi typickou volnější zástavbou rodinných domků, ale v úzké uličce na okraji velkoměsta, kde na nás čekala roztomilá řadovka. Dřevostavba, na jejíž realizaci dohlížel sám majitel domu. Ujal se totiž pozice stavebního dozoru. A jak to dopadlo?
Pozemek na okraji města v dosahu MHD je vzácnost a majitelé věděli, že zde jednou bude stát dům. Ať už jejich, nebo dětí.
„Okolnosti nám přály a tak jsme se po krátké rozvaze rozhodli prozkoumat možnosti pozemku a zadali studii. Do výsledné podoby stavby uběhla od té doby ještě dlouhá cesta, ale první krok byl vykonán," začíná vyprávění Jiří, majitel domu.
„Pozemek je proluka v původní řadové zástavbě, takže bylo od začátku jasné, že se bude jednat o řadovku. To s sebou neslo první komplikaci – absenci katalogových domů, ze kterých bychom získali alespoň základní představu o možnostech a finanční náročnosti takové stavby."
Původně majitelé chtěli dům, ze kterého by chodili přímo na zahradu s tím, že nebudou mít garáž a parkovat se bude pouze před domem. Jenže předpis městské části požaduje k dané užitné ploše domu tři parkovací místa na vlastním pozemku, takže koncept dostal jinou podobu. A proč právě dřevostavba?
„Metodika dřevostaveb se mi prostě líbí. První architektka, autorka studie, si s námi v tomto směru nerozuměla a tak jsme hledali dál."
Jiří s manželkou Lenkou navázali spolupráci s firmou v místě bydliště, což mělo velké plus – vše se dalo řešit velmi operativně. Projekt se následně ještě nějakou dobu upravoval, aby vyhovoval po všech stránkách – funkční, vizuální i té finanční. Ukázalo se, že je snazší najít možnosti úspor v podrobněji rozkresleném projektu pro stavební povolení.
Z hlediska požárně-bezpečnostního a návazně konstrukčního řešení je dřevostavba v řadové zástavbě v návaznosti na stávající zděný objekt poměrně zajímavým řešením. To, že je třípodlažní, respektive dvoupatrová je už v zásadě detail.
Za výjimečný a nestandardní lze však považovat fakt, že si majitel domu dozoroval stavu svépomocí.
Co vás přivedlo k myšlence dozorovat dům sám?
Asociace dodavatelů montovaných domů (ADMD) má zpracovaný takzvaný Dokument národní kvality (DNK), což je soupis požadavků které musíte splnit, aby byla dřevostavba postavena v požadované kvalitě. Pokud si DNK nastudujete spolu s dalšími navazující dokumenty (ČSN, projektová dokumentace) a pokud jste technicky vzdělaný člověk, za kterého se považuji, neměl byste mít problém dozorovat si stavbu sám, i když procházka růžovým sadem to není.
Dokument národní kvality se mi moc líbil od začátku, kdy jsme s dodavatelskou firmou jednali o metodice stavby a rozhodovali se, zda dozor najmout nebo ne. Je to opravdu velice dobře zpracovaný dokument, který postupuje logicky se stavbou domu se zřetelem na kritická místa dřevostavby, která ovlivňují její kvalitu.
Kromě tohoto podkladu jsem v průběhu stavby nahlížel do projektové a konstrukční dokumentace a technických listů dodavatele (dokument s detailním rozpracováním konstrukčních uzlů stavby – know how dodavatele). Dokument odkazuje na platné normy ČSN, se kterými jsem se před a v průběhu stavby seznamoval.
Jste zpětně spokojený s rozhodnutím dozorovat si stavbu sám?
Ano, velmi. Nejsem člověk příliš manuálně zručný. V případě, že bych si měl dům stavět svépomocí, nikdy ho nedokončím. Nemám ten dlouhodobý tah na branku a při práci ani čas. Takže s rozhodnutím nechat si postavit dům na klíč a sám si ho dozorovat jsem naprosto spokojený.
Kolik času dozorování stavby vyžadovalo? Jak dlouho trvala stavba?
Jedenkrát týdně probíhal kontrolní den se stavbyvedoucím, kde jsme řešili aktuální problémy, stav rozpracovanosti, sledovali časový harmonogram a diskutovali výhled na nejbližší období. Časová náročnost se odvíjela podle toho, jaké práce se zrovna prováděly, ale bylo to zhruba jednou za dva dny, plus všechno důkladně zkontrolovat během víkendu. U příchozího materiálu bylo třeba vždy zkontrolovat technický dodací list a jeho shodu se specifikací, a věci, které běžně přísluší technikům nebo stavebnímu dozoru, jako použití správného spojovacího materiálu, dodržení skladby hydro a tepelné izolace, technologická kázeň při použití stavební chemie a tak dále. V tomhle člověk musel být důsledný.
Dům byl postaven za necelý rok od prvního kopnutí do země do stěhování. Jednalo se o staveništní montáž, protože nebylo možné na pozemek přistavit zároveň jeřáb a kamion s předvyrobenými panely. Jen hrubá stavba trvala tři měsíce, rychleji to nešlo.
Co byl nejnáročnější technický detail?
Nejvíc nás potrápila vlhkost. Stavělo se v zimě a v době, kdy mělo dojít k zaklopení parozábrany, dřevěná konstrukce neměla méně než požadovaných dvacet procent vlhkosti. Počasí zrovna nepřálo, takže některé konstrukční detaily – zvláště v rozích nebo tam, kde na ně napršelo, měly třeba třicet, pětatřicet procent vlhkosti. Takže jsme čekali, až konstrukce vyschne. Vytvořili jsme tabulky a dům pravidelně obcházeli a měřili vyznačené referenční body konstrukce – patnáct až dvacet bodů ve dvou rovinách na patro. Dům už byl v té době zavřený, měl okna a dveře. Zvenku byla konstrukce zaklopená sádrovláknitou deskou a zevnitř byla otevřená, místy vystlaná vatou, bez parozábrany (konstrukce je difuzně uzavřená). Po instalaci vysoušecího zařízení a během zhruba čtyř dnů vlhkost všude klesla pod dvacet procent, takže se mohlo zaklopit a pokračovat. Tím jsme ztratili skoro měsíc.
Celý dům byl dodavatelsky zajištěný jednou firmou, nenajímali jste si jednotlivé profese sami?
Ne, dům byl kompletně na klíč. Profesně se pohybuji v kontrole kvality a (což trošku zjednodušilo moji schopnost dozorovat si stavbu, navíc mě to baví) pohybuji se v investiční výstavbě. Vím tedy, že jakmile jsou někde dva a více dodavatelů a nastane nějaká kolize, je řešení obtížné. Jeden svaluje vinu na druhého. Jako investor v tom zůstáváte zamknutý a nemá to řešení. Už nezjistíte, kdo rozbil to okno nebo zlomil tuhle tyčku. Toho jsem se chtěl vyvarovat, proto jsem zvolil stavbu na klíč od jedné firmy.
Co vás v novém domě překvapilo? Museli jste si na něco zvykat?
Tepelný komfort – dům je rychle vytopitelný a má jen malou tepelnou setrvačnost. S udržením tepelného komfortu stále ještě laborujeme a zvykáme si na jiný způsob topení. Ale již nyní víme, že je to velmi příjemné zvykání. Ještě nemáme za sebou první celé léto, ale již nyní je zřejmé, že se nenaplní naše obava z letního přehřívání domu. Na oknech z jižní strany domu jsou instalovány předokenní žaluzie, které nežádoucí teplo dokážou odstínit a interiér zachovat příjemně chladný. Naopak v zimních slunečných dnech nás příjemně překvapilo teplo získané ze slunečního svitu.
Podlahy jsou jednou z úspor, které zpětně trochu litujeme. Byla použita suchá skladba a na její akustický projev jsme si museli zvykat. Věděli jsme, že tento efekt existuje, ale nemysleli jsme si, že bude tak výrazný. Nenavštívili jsme dům se stejnou skladbou podlah, takže jsme si vliv neuměli představit. Také jsme si museli zvyknout na schody, které fungují jako zvukovod. Když někdo nahoře nebo dole mluví, vůbec nevíte, odkud to jde, ale slyšíte výborně, jako by ten člověk seděl proti vám.
Jinak se nám nové bydlení moc líbí. Bydlíme tu rádi a moc oceňujeme alespoň malou zahrádku. Skvělý je vesnický charakter oblasti. Není znát, že jsme ve městě.
Jak je dům vytápěn?
Topení je částečně elektrické podlahové – v kuchyni, předsíní a koupelně, přímotopné radiátory v pokojích a krbová kamna v hlavním obytném prostoru. Máme za sebou první zimu, tuhou zimu, kdy bylo dlouho trvale pod nulou. Dům nás příjemně překvapil. V podstatě jsme měli trvale zapnuté podlahové topení, které jsme ráno doplnili přímotopy, večer pak krbovkami. Než jsme se s nimi naučili zacházet, mívali jsme v obývacím pokoji i dvacet sedm stupňů, takže jsme kamna postupně nechávali vyhasnout a větrali. Tepelný komfort naprosto dostačující. Už někdy v březnu jsme přestali topit elektrickými přímotopy a topili pouze v krbových kamnech.
Už jste monitorovali měsíční náklady?
Náklady monitorujeme; každý měsíc se dívám na odečet elektřiny. V těch největších lednových mrazech jsme za měsíc spotřebovali 1 200 kWh. Z toho jsme přibližně 900 kWh protopili. Zjistili jsme, že neprotopíme víc, než v bytě, což nás příjemně překvapilo.
Co byste poradili budoucím stavebníkům?
Určitě se nebát dřevostavby, je to úžasná technologie. Projít si několik referenčních domů, probrat to s majiteli, nelitovat námahy, času a peněz. Bydlení v dřevostavbě je jiné než v domě nebo bytě klasické konstrukce, člověk se musí naučit využívat jejich výhod. Neustupovat ze svých požadavků, i když norma a projektant říká něco jiného. Pokud schodiště má být devadesát centimetrů široké a člověk má pocit, že je to málo, tak to málo je. Stát si za svým. Třeba dostat sem jídelní stůl by bylo při jeho velikosti nemožné, jsme rádi, že jsme schodiště udělali širší. To stejné platí o toaletách a chodbách, minimální rozměry dle ČSN nemusejí poskytovat optimální řešení. Nebát se prosklených ploch, to je velice příjemná a pěkná věc. A rozhodně zvolit betonové podlahy.
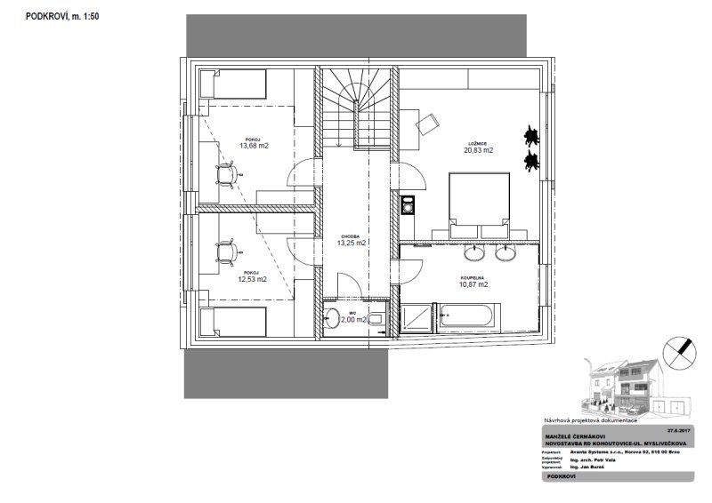
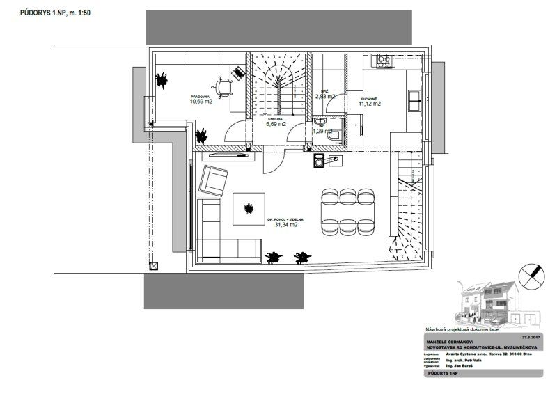
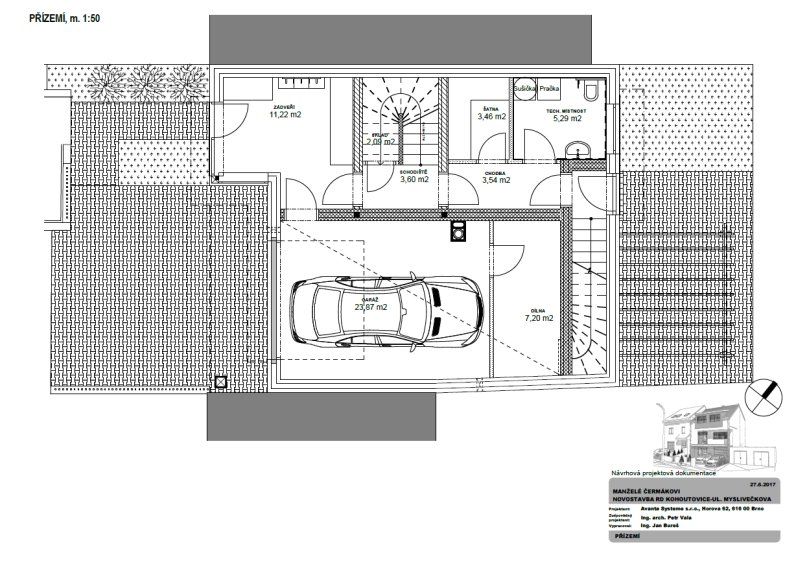
Technické parametry
Typ domu: nízkoenergetický
Zastavěná plocha: 83,88m2
Užitná plocha: 176,42m2
Konstrukční systém: staveništní montáž sloupkové dřevěné konstrukce
Teplo a větrání: vytápění podlahové + elektrické přímotopy + krbová kamna na dřevo, TUV řešena pomocí elektrických ohřívačů
Součinitel prostupu tepla stěnou: U = 0,19 W/(m2·K)
Projekt a realizace: Avanta Systeme, spol. s r.o., www.avanta.cz
Futura Freestyle - dřevostavba na klíč
Prodesi I Domesi
Užitná plocha: 107.8 m²
Dispozice: 3+kk / 3+1
Dům se sloupy z douglasky
ARCHCON atelier, s.r.o., DŘEVOSTAVBY BISKUP, s.r.o.
Užitná plocha: 118.44 m²
Dispozice: 4+kk / 4+1
Bennet
KANADSKÉ SRUBY TÁBOR, s.r.o.
Užitná plocha: 177 m²
Dispozice: 5+kk / 5+1
Pavo 111 - dřevostavba na klíč
A T R I U M, s.r.o.
Užitná plocha: 111.03 m²
Dispozice: 5+kk / 5+1
Rodinný dům Tábor - dřevostavba na klíč
ALFAHAUS s.r.o.
Užitná plocha: 137 m²
Dispozice: 4+kk / 4+1
Rodinný dům 307 - dřevostavba na klíč
MARTINICE GROUP s.r.o.
Užitná plocha: 130 m²
Dispozice: 5+kk / 5+1
Dům venkovského stylu
EKOPANELY SERVIS s.r.o.
Užitná plocha: 153 m²
Dispozice: 4+kk / 4+1
Chata v Jizerských horách - dřevostavba na klíč
3AE s.r.o.
Moderní roubenka v trampské osadě
OK PYRUS, s.r.o.
Užitná plocha: 117 m²
Optimal 02 - dřevostavba na klíč
PENATUS s.r.o.
Užitná plocha: 124 m²
Dispozice: 4+kk / 4+1
Ekologická dřevostavba
EKOPANELY SERVIS s.r.o.
Užitná plocha: 128 m²
Dispozice: 3+kk / 3+1
Lesníkova roubenka
EKOPANELY SERVIS s.r.o.
Užitná plocha: 260 m²
Dispozice: 5+kk / 5+1
RD Mnichovice
EKOPANELY SERVIS s.r.o.
Užitná plocha: 124.3 m²
Dispozice: 3+kk / 3+1
LUCERN 116 - dřevostavba na klíč
LUCERN dřevostavby s.r.o.
Užitná plocha: 103.1 m²
Dispozice: 4+kk / 4+1
EKONOMY MS 04 - dřevostavba na klíč
MS HAUS s.r.o.
Užitná plocha: 85 m²
Dispozice: 4+kk / 4+1
Dřevostavba roku - archiv
Copyright © 2026 Českobrodská 35, 190 12 Praha 9 - Dolní Počernice Kontakt
