Na Šumavě, v těsné blízkosti lokální železniční trati, stojí úhledná roubenka. Stávala tu již před mnoha lety, pamatovala, když kolem jezdil vlak s uhlákem a parní lokomotivou. Dnes tu jezdí lokálka a roubenka, ač velmi podobná své předchůdkyni, je již druhá v pořadí. Obě však spojuje nejen podoba, ale, jak se ukázalo v jednom létě, také historie.
Když opravíte starý dům nebo si pořídíte novostavbu ve stopě původního stavení, nemusí být připomenutí časů minulých tak překvapivé.
Svět je opravdu malý
Původní dům koupili Jan a Petra vlastně již jako ruinu. Jeho historii znali jen částečně – věděli, kdy byl postaven, jak dříve vypadal, ale nevěděli, kdo v něm žil. „V létě před dvěma lety sem přijelo auto, pán s paní," začíná vyprávět o neobyčejném setkání Jan. „Nejdříve jen nesměle okukovali místo, pak pán přišel a řekl, že tu bydlel jako dítě. Přinesl obrovské album... Na těch fotografiích bylo vidět, jak byl tehdy les malý – od domu bylo vidět až na Boubín. Třešně, které jsme museli pokácet, byly tehdy v plné síle. Pán chodil po domě a vzpomínal, jak jim v místnosti, kde spali, přimrzala peřina ke zdi, jaká tam byla zima... Tady byl potok, tady si s kluky hráli a tady dělali dřevo... Byl velmi dojatý, vzpomínal, jak vždycky zastavil vlak a složili jim na pozemku uhlí. Najednou se ten dům jeví ve zcela jiném světle..."
Roubená část je postavena ze syrového smrkového dřeva ze zimní těžby. Byla vyrobena a sestavena v továrně v Sušici, poté převezena na místo a postavena již natrvalo.
„I když jsme ve třetí zóně národního parku, neměli jsme se stavbou problém," vysvětluje Jan, „původní objekt měl číslo popisné, takže oficiálně šlo vlastně o rekonstrukci."
Určité kouzlo domu dodává také skutečnost, že on sám či jeho vybavení v sobě nesou své příběhy.
Další dotek minulosti
V hlavní denní místnosti stojí za pozornost kuchyně. „Korpus je z bílého lamina, dvířka a pohledové části jsou ze dřeva ze zámečku Buquoyů na Žofíně v Novohradských horách. Když tam bourali faru, bylo mi líto, že by takové pěkné dřevo přišlo vniveč, a také jsme pořád nevěděli, z jakého materiálu kuchyni udělat, podlahové fošny o průřezu 30 × 3 cm jsem si tedy vzal. Truhlář materiál odmítl zpracovat – zničil by si na něm stroje, přes zimu jsem ho proto zbavil hřebíků, pak nechal vyschnout, a když jsem dřevo očistil kartáčem, napadlo mě, že by se hodilo na kuchyni. Z kuchyně mám radost, zřejmě i proto, že stála mnoho času a námahy – nejdříve mě a poté ještě truhláře."
Dominantou prostoru jsou kachlová kamna, také stavěná na zakázku. „Kamnáři jsme řekli, jak bychom si ta kamna představovali, vybrali si barvu, on nám je od ruky nakreslil už i v měřítku, takže jsme si dokázali představit, jak budou vypadat, a vcelku rychle jsme se rozhodli." Dalším zdrojem vytápění je tepelné čerpadlo. Důvodů pro jeho instalaci bylo hned několik – vytápění bazénu, temperování objektu v zimě, když dům není obýván (výhodou je také možnost vytopit ho dálkově před příjezdem). Současně majitelé mysleli již také na to, že až zestárnou, nebudou moci třeba dřevem již topit a ztratili by tak možnost na chalupě pobývat.
Sami, „těmahle rukama"
Kromě kuchyně, o které jsem mluvil, jsme natírali roubenku zvenku i uvnitř, a také podlahy. S nátěrem byl ale problém. Roubení jsem natřel barvou na doporučení tesařů, kteří stavěli roubenky v Srní (nachází se také v NP Šumava - pozn. red.). Jenže památkáři vyžadovali co nejtmavší odstín, nejlépe černý, protože dřív byly roubenky černé. Původní nátěr byl vodou ředitelný, další už syntetický, a na dřevě už tolik nedrží. A není to pouze tím, že jde o jižní, povětrnostními vlivy více namáhanou stranu. Nyní stále přemýšlím, jak dřevo natřít, abych nemusel znovu spárovat. Samotné natření je otázka jednoho odpoledne, ale tím, že jsou mezery vyspárované, je to problematické.
Technické ukazatele:
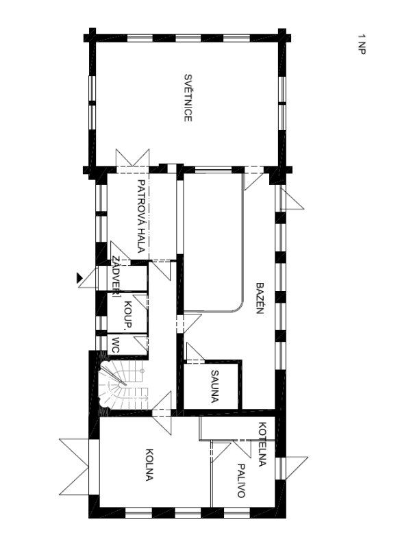
Užitná plocha: 149 m²
Konstrukční systém: roubený, cihelné zdivo
Ošetření stěn: interiér – lněný olej, exteriér – syntetický nátěr
Teplo: kachlová kamna s krbovou vložkou, tepelné čerpadlo, radiátory
Projekt: Ing. arch. Jan Míka
Optimal 02 - dřevostavba na klíč
PENATUS s.r.o.
Užitná plocha: 124 m²
Dispozice: 4+kk / 4+1
Dům venkovského stylu
EKOPANELY SERVIS s.r.o.
Užitná plocha: 153 m²
Dispozice: 4+kk / 4+1
Moderní roubenka v trampské osadě
OK PYRUS, s.r.o.
Užitná plocha: 117 m²
Pavo 111 - dřevostavba na klíč
A T R I U M, s.r.o.
Užitná plocha: 111.03 m²
Dispozice: 5+kk / 5+1
Bennet
KANADSKÉ SRUBY TÁBOR, s.r.o.
Užitná plocha: 177 m²
Dispozice: 5+kk / 5+1
Lesníkova roubenka
EKOPANELY SERVIS s.r.o.
Užitná plocha: 260 m²
Dispozice: 5+kk / 5+1
Futura Freestyle - dřevostavba na klíč
Prodesi I Domesi
Užitná plocha: 107.8 m²
Dispozice: 3+kk / 3+1
Chata v Jizerských horách - dřevostavba na klíč
3AE s.r.o.
EKONOMY MS 04 - dřevostavba na klíč
MS HAUS s.r.o.
Užitná plocha: 85 m²
Dispozice: 4+kk / 4+1
LUCERN 116 - dřevostavba na klíč
LUCERN dřevostavby s.r.o.
Užitná plocha: 103.1 m²
Dispozice: 4+kk / 4+1
Rodinný dům 307 - dřevostavba na klíč
MARTINICE GROUP s.r.o.
Užitná plocha: 130 m²
Dispozice: 5+kk / 5+1
Ekologická dřevostavba
EKOPANELY SERVIS s.r.o.
Užitná plocha: 128 m²
Dispozice: 3+kk / 3+1
Nízkoenergetická dřevostavba
EKOPANELY SERVIS s.r.o.
Užitná plocha: 115 m²
Dispozice: 4+kk / 4+1
RD Mnichovice
EKOPANELY SERVIS s.r.o.
Užitná plocha: 124.3 m²
Dispozice: 3+kk / 3+1
Dům se sloupy z douglasky
ARCHCON atelier, s.r.o., DŘEVOSTAVBY BISKUP, s.r.o.
Užitná plocha: 118.44 m²
Dispozice: 4+kk / 4+1
Dřevostavba roku - archiv
Copyright © 2026 Českobrodská 35, 190 12 Praha 9 - Dolní Počernice Kontakt
