Když se Zuzana a Otto rozhodli stavět, přáli si, aby se mohli stěhovat velmi brzy. To v případě domu z masivního dřeva zase není takový problém. Stavba byla zahájena počátkem února 2016 a 21. června téhož roku se již mohli stěhovat – dům byl až na drobnosti hotový.
Smrk nemusí znamenat méně než cedr
Roubenka je postavena s vysušeného lepeného smrkového dřeva, sedání stavby bylo proto minimální. „Museli jsme pouze nepatrně seřídit dveře, jinak bylo vše v pořádku," vysvětluje Zuzana. „Z hlediska materiálu jsme však příliš na výběr neměli. Manžel chtěl původně cedr, ale protože jsme byli limitováni časem (mohli jsme zůstat v našem původním bytě, než postavíme dům) a na cedr bychom museli čekat dva roky, zvolili jsme smrk. Pravdou je také, že cena cedrového domu by byla výrazně vyšší. I dům ze smrkového dřeva byl celkem finančně náročný, protože je poměrně velký. Ovšem hlavním ukazatelem byl čas. Tuto variantu nám doporučil i majitel stavební firmy – bungalov je velmi dlouhý a trámy takových rozměrů je možné zhotovit pouze z lepených profilů. Navíc jde o dřevo lepené a vysušené, stavba je tedy stabilní. Když byl dům hotový, byli jsme za toto rozhodnutí rádi.
Dřevo je krásné...
... a to jak samo o sobě, tak ve spojení s jinými materiály. „Dřevěný dům byla pro nás jasná volba. Nám se velmi líbí kombinace dřeva, kamene a skla, navíc sem na toto místo se dřevěný dům velmi hodí. Nadto manžel má dřevo rád a má k němu silný vztah, protože vyrostl v lese. To byl také jeden z důležitých důvodů pro stavbu domu ze dřeva. Líbí se nám, jak to v něm voní, když vejdeme dovnitř. A pocitově se tu cítíme lépe – když se tu v zimě topí na stejnou teplotu, jakou jsme mívali ve zděném bytě, je tu příjemněji.
Zahrada s ovocným sadem
Kolem domu už je pěkně vzrostlá zahrada s květinovými záhonky, část je vyčleněna pro sad. „Je zde něco přes třicet ovocných stromků, sad jsme si s manželem oba přáli. Měl by tu být také bazén, máme na něj připravené všechny potřebné přípojky, ale zatím v plánu není. Dokud jsme pouze dva, stačí na relaxování po návratu ze zaměstnání nebo po práci na zahradě ideálně vířivka. Celá zahrada zatím není hotová, příští rok bychom chtěli vybudovat jezírko, takže upravený trávník je zatím pouze v sadu, do okolí domu budeme ještě zasahovat."
Úprava zahrady je zde celkem pracná, kultivaci ztěžuje velmi kamenitá půda. Vždy je nejdříve třeba místo vyčistit, kameny jsou pak opět v zahradě využity na vytváření valů a členicích ploch.
Technické parametry:
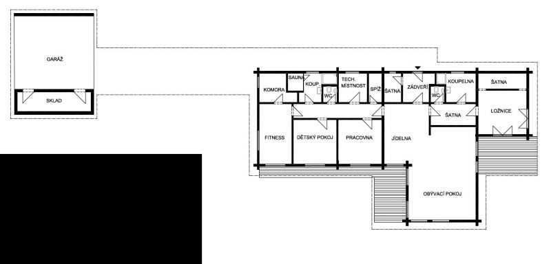
Zastavěná plocha: 438,8 m²
Obytná plocha: 208 m²
Konstrukční systém: TRIO hranoly na pero/drážka, sloupková konstrukce z KVH hranolů
Ošetření stěn: bez ošetření
Teplo: tepelné čerpadlo země–voda, podlahové vytápění, krbová kamna
Projekt: Ing. arch. Viktor Fehrer
Realizace: Bartoš Dřevostavby s.r.o., www.bartos.cz
Rodinný dům 307 - dřevostavba na klíč
MARTINICE GROUP s.r.o.
Užitná plocha: 130 m²
Dispozice: 5+kk / 5+1
Chata v Jizerských horách - dřevostavba na klíč
3AE s.r.o.
EKONOMY MS 04 - dřevostavba na klíč
MS HAUS s.r.o.
Užitná plocha: 85 m²
Dispozice: 4+kk / 4+1
Dům se sloupy z douglasky
ARCHCON atelier, s.r.o., DŘEVOSTAVBY BISKUP, s.r.o.
Užitná plocha: 118.44 m²
Dispozice: 4+kk / 4+1
Pavo 111 - dřevostavba na klíč
A T R I U M, s.r.o.
Užitná plocha: 111.03 m²
Dispozice: 5+kk / 5+1
Dům venkovského stylu
EKOPANELY SERVIS s.r.o.
Užitná plocha: 153 m²
Dispozice: 4+kk / 4+1
Rodinný dům Tábor - dřevostavba na klíč
ALFAHAUS s.r.o.
Užitná plocha: 137 m²
Dispozice: 4+kk / 4+1
Nízkoenergetická dřevostavba
EKOPANELY SERVIS s.r.o.
Užitná plocha: 115 m²
Dispozice: 4+kk / 4+1
Futura Freestyle - dřevostavba na klíč
Prodesi I Domesi
Užitná plocha: 107.8 m²
Dispozice: 3+kk / 3+1
LUCERN 116 - dřevostavba na klíč
LUCERN dřevostavby s.r.o.
Užitná plocha: 103.1 m²
Dispozice: 4+kk / 4+1
Bennet
KANADSKÉ SRUBY TÁBOR, s.r.o.
Užitná plocha: 177 m²
Dispozice: 5+kk / 5+1
Lesníkova roubenka
EKOPANELY SERVIS s.r.o.
Užitná plocha: 260 m²
Dispozice: 5+kk / 5+1
Ekologická dřevostavba
EKOPANELY SERVIS s.r.o.
Užitná plocha: 128 m²
Dispozice: 3+kk / 3+1
Optimal 02 - dřevostavba na klíč
PENATUS s.r.o.
Užitná plocha: 124 m²
Dispozice: 4+kk / 4+1
RD Mnichovice
EKOPANELY SERVIS s.r.o.
Užitná plocha: 124.3 m²
Dispozice: 3+kk / 3+1
Dřevostavba roku - archiv
Copyright © 2026 Českobrodská 35, 190 12 Praha 9 - Dolní Počernice Kontakt
