Lucie Němcová | Úterý, 25. březen 2014 |
Domy Avanta Systeme rostou o další rozměr - poradenství feng-shui. Vydejme se společně na cestu bezpečného stavění v harmonii s okolním prostředím.
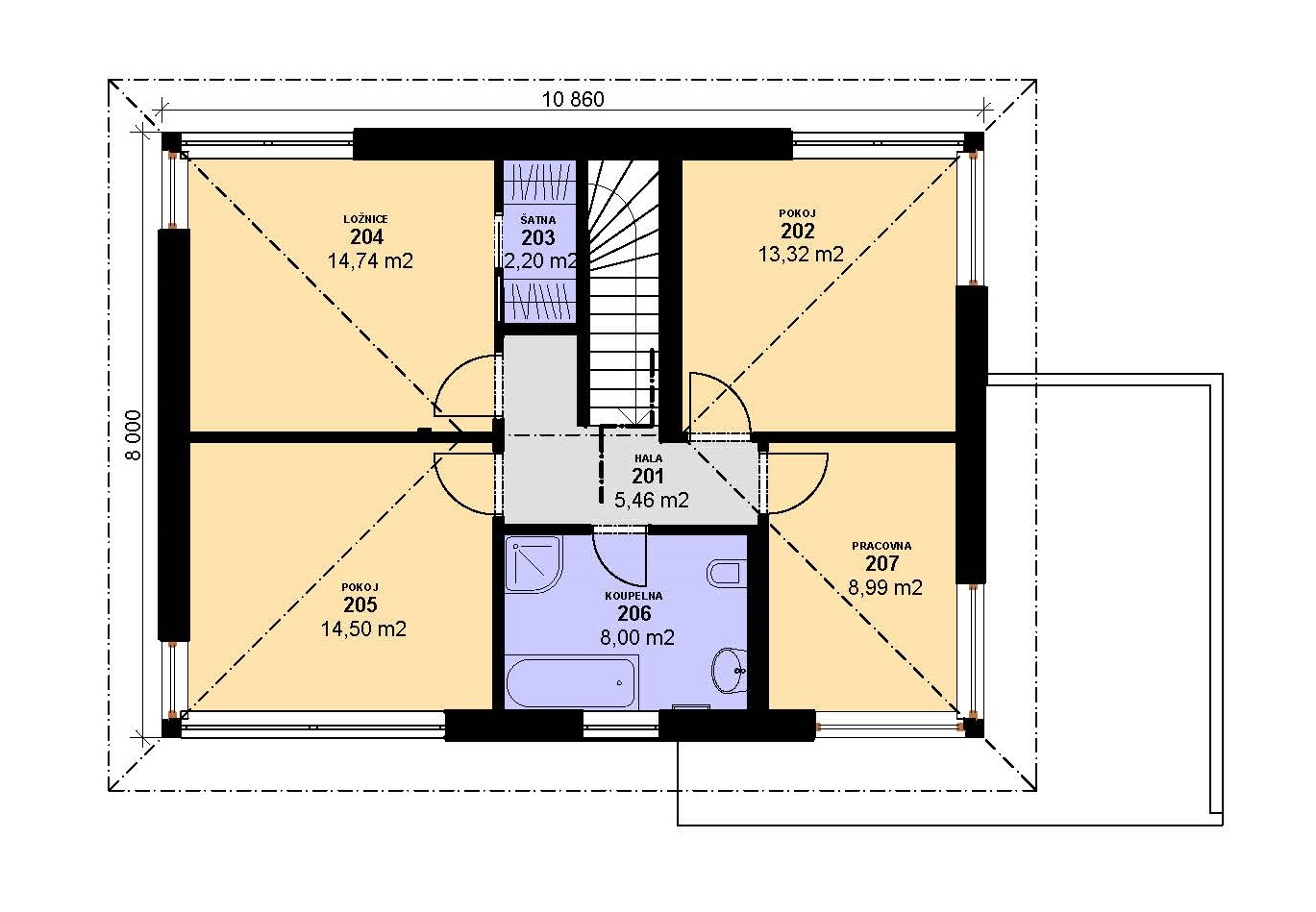
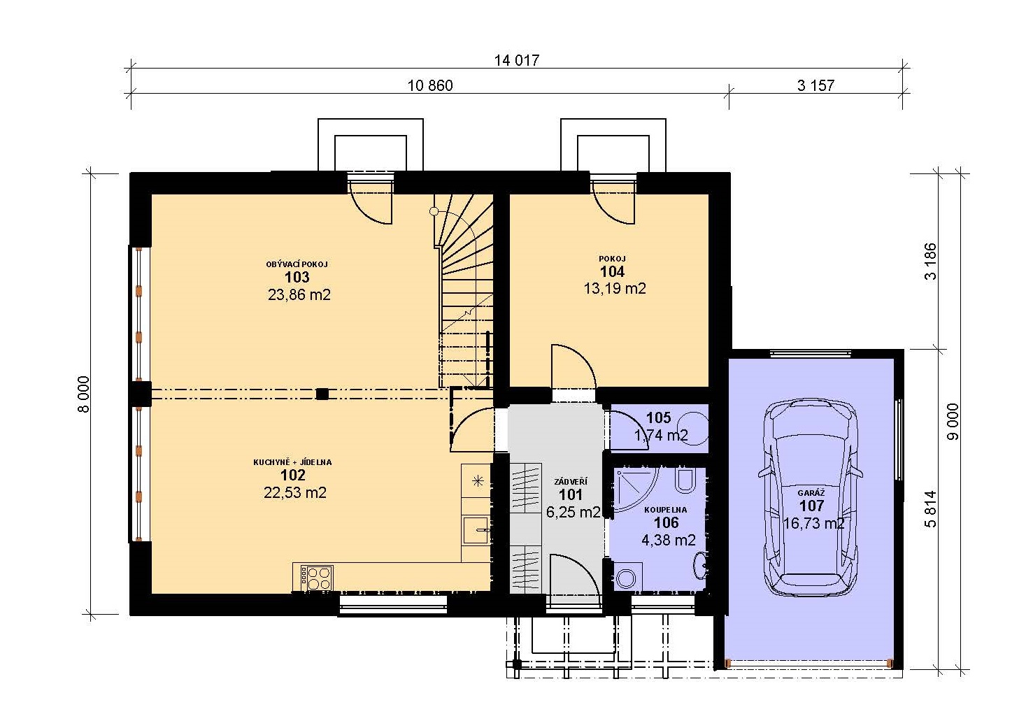
Prostorný rodinný dům RD 170K je řešen jako kombinace rámové a skeletové dřevostavby. Účelně a promyšleně navržená dispozice skýtá dostatek pohodlí pro vícečlennou rodinu. Ve dvou plnohodnotných patrech je prostor využit skutečně efektivně. Obytný prostor v přízemí doplňuje pracovna či pokoj pro hosty, v patře se pak nacházejí další čtyři místnosti a prostorná koupelna. Vnitřní dispozice domu lze snadno modifikovat.
Parametry domu:
Užitná plocha dům: 156 m2 (včetně garáže)
Zastavěná plocha: 86 m2
Výška hřebene: 7 m
Dispozice: 6+kk
Cena na klíč: 2 989 000 Kč (včetně základů a DPH)![]()
![]()
Kvalita a záruky:
- záruka 30 let
- certifikovaná kvalita podle Dokumentu národní kvality
- garance pevné ceny
- energeticky úsporné bydlení
- zvýhodněné podmínky financování
Služby projekční:
- projektová dokumentace na ohlášení stavby
- individuální úprava domu
Služby poradenské:
- individuální hodnocení energetické náročnosti domu
- poradenství k vyřízení ohlášky nebo stavebního povolení
- poradenství feng-shui
Nejnovější články v kategorii “Aktuálně”
-
NOVATOP na FOR WOOD 2026: dřevo je především o lidech a vztazích
Značka NOVATOP bude i letos součástí veletrhu FOR WOOD 2026, který dlouhodobě vnímá především jako místo osobních setkání s partnery, architekty, investory i koncovými zákazníky se…
-
Stavby s vůní dřeva: nový dokumentární film jde do televizního vysílání
Dřevo jako moderní, udržitelný a technologicky vyspělý stavební materiál představuje nový dokumentární film Stavby s vůní dřeva, který vznikl na Fakultě lesnické a dřevařské…
-
Vstupenky zdarma na stavební veletrh FOR WOOD a FOR PASIV 2026
Jít na největší stavební veletrh FOR WOOD a FOR PASIV se vstupenkou ZDARMA? S námi je to možné! Stáhněte si vstupenku zdarma už teď!
Veletrhy FOR PASIV a FOR WOOD 2026: energeticky úsporné bydlení – výhody a novinky













Vytvořeno v xart.cz