Redakce | Čtvrtek, 13. únor 2020 |
Prodesi/Domesi, architekti realizující dřevostavby, představili na veletrhu FOR WOOD 2020 koncepty dvou nových typových domů. Dřevostavba Futura Weekend jak napovídá i název, je určená do venkovských a turistických přírodních lokalit. Přízemní dům Futura Level osloví svým celkovým řešením spíše zájemce o zdravé bydlení v městském prostředí na rovinatých pozemcích.
Futura Level - typový dům pro městské bydlení
Futura Level je přízemní typový dům s plochou střechou, který je koncipován tak, že nabízí různě veliké dispoziční řešení od 3+kk s možností rozšíření na přízemní úrovni. Variabilita řešení tak umožňuje nakonfigurovat dům pro různě velké rodiny a splnit rozmanité požadavky na dispozici domu a přilehlých terasových venkovních prostor.

Dispozice je navržena kolem hlavní komunikační osy procházející celým domem, takže žádné bariéry neomezují váš pohyb. Na tomto komunikačním jádru jsou na jedné obvodové stěně řešeny skříně, pracovna, kuchyňská linka, šatna apod.
Na druhé stěně tedy vnitřní příčce, potom dveře do jednotlivých místností. Celé toto páteřní řešení usnadňuje komunikaci a nabízí velké množství úložných prostorů. Vhodným materiálovým řešením si z Levelky dokážete udělat útulný ateliér, útočiště na víkendy, nebo velkorysou městskou vilu.
Hlavní fasáda je prosklena okny sahajícími od podlahy až ke stropu, takže se interiér na jedné úrovni a zahrada za okny mnohem lépe opticky propojují. Žijte na jednom, vyšším Levelu!

Přesah střechy
- Chrání vás před sluncem, deštěm a sněhem.
- Suchou nohou obejdete dům.
- Suchou nohou se dostanete od auta do domu.
- Opřete kolo pod střechu, nebo uskladníte dřevo do krbu.
Jedna úroveň a vyšší stropy
- Žádné schody do patra, žádné bariéry.
- Možnost pracovat s výškou stropu a dosáhnout vzdušného loftového efektu.
Modulovost
- Vaše individuální Futura Level vznikne naskládáním jednotlivých modulů v libovolném počtu a pořadí, takže velikost i rozpočet domu máte pevně v rukou jen vy sami.
Technické parametry
- Užitná plocha: od 84,8 m2
- Cena realizace: od 3 880 000 Kč vč. DPH a základové desky
- Konstrukce: CLT panely

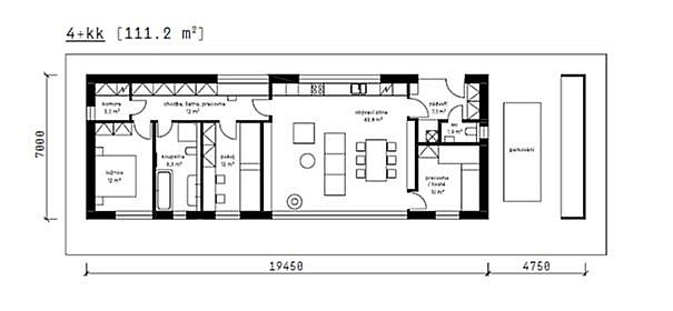
obr.: Půdorys varianty domu s dispozicí 4+kk s užitnou plochou 111,2 m2.

obr.: Půdorysy variant domu s dispozicí 4+kk s užitnou plochou 124,8 m2 a 5+kk s dispozicí 134,1 m2.
Futura Weekend - typový dům na venkov
Futura Weekend je kompaktní víkendový dům, který vám poskytne tolik kýžený odpočinek a relax. Není velký, ale o to příjemnější je ve své kompaktnosti a jednoduchosti. Tvarově je řešen tak, aby splňoval i přísná kritéria na výstavbu v CHKO či Národního parku a dokonale zapadal do české krajiny.
V přízemí se nachází obytný prostor s kuchyní a krbovými kamny umístěnými před prosklenou stěnou, takže se můžete pokochat pohledem do krajiny přes plápolající oheň. V přízemí je také plnohodnotná koupelna se sprchovým koutem nebo i vanou, pokud si rádi vychutnáte po výletu horkou koupel.


Spaní až pro 8 lidí
Do obytného prostoru se vejde velký stůl až pro 8 lidí. Zároveň až 8 lidí může v domě Futura Weekend přespat díky velkému podkroví o ploše 36 m2, kam se kromě 6 postelí vejde případně i komfortní pracovna. Rozkládací sedačka v přízemí potom může nabídnout zbylá 2 místa na spaní. Nebo si můžete prostor v podkroví libovolně předělit příčkou s dveřmi a získat tak oddělenou ložnici.
Krytá terasa
Velkým benefitem Futury Weekend je krytá venkovní terasa o ploše 10 m2, která vás bude chránit v létě před sluncem a v zimě před sněhem a deštěm. Terasa je propojená s obytným prostorem velkou prosklenou stěnou s dvoukřídlými balkónovými dveřmi, které se mohou v létě zcela otevřít a obývaná plocha dosáhne i s terasou 34 m2 užitné plochy.
Přesahy střechy
Praktické jsou také přesahy střech na bocích domu. U vstupu tak můžete opřít například lyže, na opačné straně domu potom naskládat dřevo do kamen nebo doplnit na přání uzavíratelným skladem. Ve standardu se rovněž počítá s dálkovým ovládáním elektrických přímotopů, takže v zimě přijíždíte do již vytopeného domu.
Technické parametry
- Užitná plocha: 65 m2 + 10 m2 krytá terasa
- Cena realizace: od 2 280 000 Kč vč. DPH na klíč a základové desky
- Konstrukce: sloupková - KVH, alternativně CLT panely
- Vytápění: elektrické přímotopné + krbová kamna

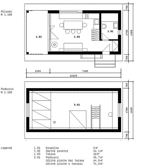
obr.: Půdorys typového domu Futura Weekend.

Zaujaly vás nové typové projekty dřevostaveb od Prodesi/Domesi? Zašlete dodavateli dotaz nebo nezávaznou poptávku!
Architektonický ateliér a realizační společnost Prodesi | Domesi specializující se výhradně na dřevostavby. Provede vás celým procesem stavby od první skici přes projektovou přípravu, až po předání klíčů od dokončené stavby. Mimo individuálních projektů nabízí také typové domy. Společnost funguje na trhu od roku 2002 a má na svém kontě více než stovku realizovaných dřevostaveb.
Zaslat dotaz nebo nezávaznou poptávku
Dřevostavba na zkoušku
Architekti Prodesi/Domesi měli doposud v nabídce dva typové domy – Futura Freestyle a Futura Neo, které realizovali i ve formě vzorových domů v Pulečným a v Budíkově. V obou je možné objednat si „testovací jízdu" v moderní dřevostavbě na víkend i na delší pobyt.

obr. Futura Neo
Typový dům Futura Freestyle realizovali Prodesi/Domesi doposud pro více než 50 klientů v ČR a SR. Jde o vysoce variabilní a tvarově líbivý dům, který je možné obměňovat a investoři jej vyhledávají jak na rodinné, tak i na víkendové bydlení.

obr.: Futura Freestyle

Chcete si vyzkoušet dřevostavbu od Prodesi | Domesi na vlastní kůži? Navštivte vzorový dům dodavatele!
Vzorové dřevostavby slouží jako veřejně přístupné domy, které můžete navštívit a vyzkoušet si, jak se v dřevostavbě žije, zažít si jednoduše dřevostavbu na vlastní kůži. V řadě vzorových dřevostaveb můžete získat odpovědi na vaše otázky týkající se smlouvy, dodávky, stavby či technických parametrů domu přímo od odborníků na místě.
Zobrazit vzorové domy dodavatele
Nejnovější články v kategorii “Aktuálně”
-
NOVATOP na FOR WOOD 2026: dřevo je především o lidech a vztazích
Značka NOVATOP bude i letos součástí veletrhu FOR WOOD 2026, který dlouhodobě vnímá především jako místo osobních setkání s partnery, architekty, investory i koncovými zákazníky se…
-
Stavby s vůní dřeva: nový dokumentární film jde do televizního vysílání
Dřevo jako moderní, udržitelný a technologicky vyspělý stavební materiál představuje nový dokumentární film Stavby s vůní dřeva, který vznikl na Fakultě lesnické a dřevařské…
-
Vstupenky zdarma na stavební veletrh FOR WOOD a FOR PASIV 2026
Jít na největší stavební veletrh FOR WOOD a FOR PASIV se vstupenkou ZDARMA? S námi je to možné! Stáhněte si vstupenku zdarma už teď!
Veletrhy FOR PASIV a FOR WOOD 2026: energeticky úsporné bydlení – výhody a novinky












Vytvořeno v xart.cz