Dana Jakoubková | Pátek, 14. leden 2022 |
Překvapivá stavba, postavená na bulharském pobřeží Černého moře, představuje skromný, ale sofistikovaný architektonický objekt, který citlivě reaguje na přírodní jevy na všech úrovních. S využitím Slunce i jedinečného terénu je dům Equinox energeticky výrazně efektivnější, než vyžaduje pasivní standard, a využívá nové materiály, které vytvářejí jednoduchý, čistý design otevřený do výjimečné fasády.
Strmé místo s úžasným výhledem na jih k moři a převládající severní větry vedly autora návrhu k jednoduchému lineárnímu řešení, které usadil do vrcholu pobřežních útesů. Nízký profil ze severu činí dům téměř neviditelným a dobře chráněným. Zakřivená vegetační střecha a schoulený profil domu vychylují severní větry a chladný vzduch v zimě, aby se snížily tepelné ztráty, a absorbuje jej v létě, čímž snižuje spotřebu klimatizace.
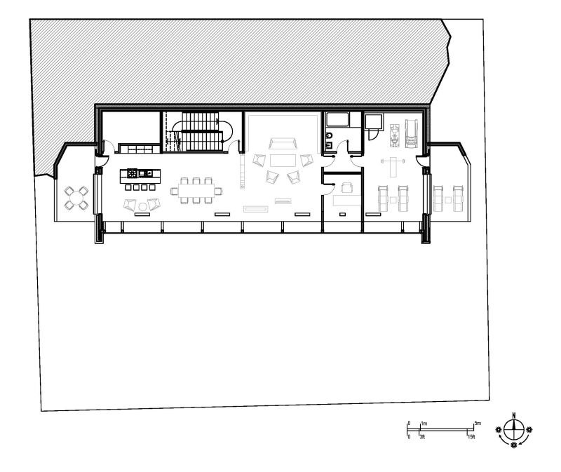
Rezidenční „program" je řešen na třech úrovních: vchod se vynořuje ze střešní trávy jako dveře sklepa a otevírá se do nejhořejšího patra. Denní funkce zastává střední, prosvětlená část budovy a na noc se obyvatelé přesouvají nejníže, do tmavších a chladnějších prostor domu. Stejně jako u pohanských staveb jsou sklon fasády a proporce průřezu budovy určované solárními rovnoběžkami i úhly, a přeměňují se tak na nebeský nástroj nejvíce patrný přes úzký okulus střechy v den letního slunovratu, kdy přes něj vplouvají sluneční paprsky do obývacího pokoje a promítají se do „kalendáře solárního lustru".
Na technologické úrovni dům překračuje pasivní normy pro mimořádně nízkou spotřebu energie. Trojité zasklení je součástí izolované obálky, která se netuctově vyrovnala se Sluncem. Přední stěna oken je předkloněná, aby dokonale odpovídala úhlu paprsků v den nejvyšší deklinace vůči rovníku. To znamená, že v polovině léta se do oken nedostane žádné slunce. V čase zimního slunovratu se naopak nízký úhel Slunce dotkne středu bazénu na terase a odráží se do domu jako další tepelný i světelný zisk.
Integrovaný větrací systém s rekuperací a solární panely zajišťuje pasivní vytápění a chlazení. Lineární bazén využívá dodatečnou energii ze solárních kolektorů v létě. Provoz domu zužitkuje i dešťovou vodu a malá biologicky aktivní čistička převádí odpad na suchý biokompost a vodu závlahovou. Dřevo použité v interiéru a exteriéru pochází z místních lesů a přírodní kámen na fasádě z místního lomu. V přehlídce nápaditých a ambiciozních projektů WAN Awards získal dům nejvyšší ocenění.
Technické parametry
- Typ domu: pasivní
- Projekt: individuální
- Zastavěná plocha: 250 m2
- Užitná plocha: 512 m2
- Dispozice: 8+kk
- Konstrukční systém / izolace: železobetonový
- Zdroj energie: tepelené čerpadlo + solární panely
- Vytápěcí systém: podlahové topení
- Větrání: řízené s rekuperací
- Autor studie a projektu: Boris Ignatov, Bignatov Studio
- Foto: Bignatov Studio

PASIVNÍ domy - jak se staví, jak se v nich žije...
- Návrh a stavba pasivního domu
- Technologie
- Projekty a realizace
- Zkušenosti
Objednejte si krásně vonící výtisk časopisu s kvalitními fotografiemi. Přes 220 stran informací pouze za 95 Kč
koupit časopis
Nejnovější články v kategorii “Pasivní domy”
-
České bateriové stanice HES s kapacitou až 41,1 kWh snižují díky spotovému nakupování cenu elektrické energie
Střešní solární elektrárny na rodinných domech se pomalu stávají v Česku standardem a zájem výrazně zvýšila i rostoucí cena energií. S vlastní fotovoltaikou zákazníci šetří…
-
Navštivte pasivní rodinný dům, který se testuje za provozu
O světě pasivních a nízkoenergetických rodinných domů koluje řada mýtů a polopravd. Je lepší zvolit difúzně otevřený nebo uzavřený konstrukční systém? Jaké materiály je vhodné…
-
Petr Dusil: Cílem není pouze pasivní, ale kvalitní dům
Současná doba je takovým ukazatelem naší připravenosti na změny a krize mnoha odstínů. Jak si v jejich světle stojí současné stavebnictví, v posledních letech postavené rodinné domy…
-
Radon v pasivních domech
O radonu jako život ohrožující látce se hovoří už poměrně dlouho. Tento radioaktivní plyn vzniká přeměnou uranu a radia v zemské kůře a sám se přeměňuje na další radioaktivní…




















Vytvořeno v xart.cz