Markéta Kristová | Úterý, 24. leden 2023 |
O světě pasivních a nízkoenergetických rodinných domů koluje řada mýtů a polopravd. Je lepší zvolit difúzně otevřený nebo uzavřený konstrukční systém? Jaké materiály je vhodné při stavbě kombinovat, nebo jakým chybám je dobré se vyhnout? S jakými vadami se může majitel dřevostavby běžně setkat a jak případným chybám předcházet?
Tyto a řadu dalších otázek si klade mnoho investorů připravujících se na stavbu rodinného domu. Představujeme vám referenční rodinný dům firmy VIKYMONT, jehož stavba byla pojata jako jeden velký výzkumný projekt, do kterého můžete sami nahlédnout.
Pasivní dřevostavba osazená téměř stovkou výzkumných čidel je skrytou stavební laboratoří
Referenční rodinný dům společnosti VIKYMONT stavby s.r.o. je domem, ve kterém se nejen bydlí a pracuje. Rodinný dům je také přímým objektem pro výzkum a testování technologií běžně používaných při výstavbě dřevostaveb.
Dům je vytápěn tepelným čerpadlem, vybaven rekuperací, fotovoltaikou i bateriovým úložištěm. Výzkumný projekt spočívá v testování technologií a materiálů používaných při výstavbě pasivních a nízkoenergetických dřevostaveb.
Měří se přehřívání různých typů konstrukcí a materiálů, názorně vám budou ukázány rozdíly mezi otevřeným a uzavřeným systémem konstrukce. Cíleně se zde testuje také konkrétní stavební vady, abyste se jich vy už nemuseli dopouštět na vaší budoucí stavbě. V domě je k tomuto účelu nainstalováno téměř 100 čidel.
Navštivte tento pasivní rodinný dům, který splňuje ty nejpřísnější podmínky pro pohodlné a energeticky přívětivé bydlení.
Ve firmě VIKYMONT stavby s.r.o. v Kopřivnici na vás čekají specialisté na pasivní a nízkoenergetické dřevostavby a rádi vás tímto domem osobně provedou. Prohlédněte si galerie jejich dalších realizovaných nízkoenergetických a pasivních rodinných domů. Pro více informací pište na Tato emailová adresa je chráněna před spamboty, abyste ji viděli, povolte JavaScript .
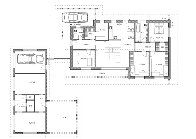
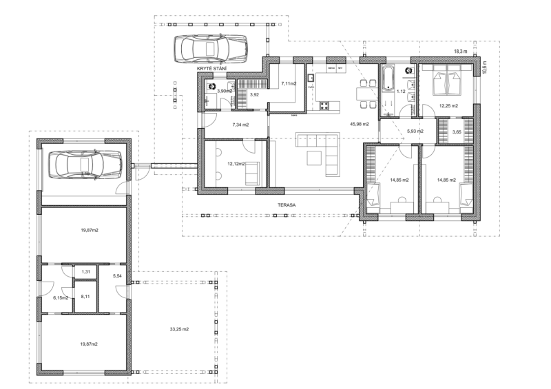
Technické parametry bungalovu 5+kk
- Realizace: VIKYMONT stavby s.r.o.
- Název domu: vzorový bungalov 5+kk Sýkorec
- Počet podlaží: jednopodlažní
- Typ stavby: pasivní dřevostavba
- Dispozice: 5+kk
- Užitná plocha: 140 m²
- Zastavěná plocha: 170 m²
Nejnovější články v kategorii “Pasivní domy”
-
České bateriové stanice HES s kapacitou až 41,1 kWh snižují díky spotovému nakupování cenu elektrické energie
Střešní solární elektrárny na rodinných domech se pomalu stávají v Česku standardem a zájem výrazně zvýšila i rostoucí cena energií. S vlastní fotovoltaikou zákazníci šetří…
-
Petr Dusil: Cílem není pouze pasivní, ale kvalitní dům
Současná doba je takovým ukazatelem naší připravenosti na změny a krize mnoha odstínů. Jak si v jejich světle stojí současné stavebnictví, v posledních letech postavené rodinné domy…
-
Radon v pasivních domech
O radonu jako život ohrožující látce se hovoří už poměrně dlouho. Tento radioaktivní plyn vzniká přeměnou uranu a radia v zemské kůře a sám se přeměňuje na další radioaktivní…
-
Nejmenší pasivní dům na světě
Wassenberg je malé německé město nedaleko nizozemských hranic, jehož třetina obyvatel žije v centru města. Patří mezi ně i Inge, která koupila starý domek přímo na bývalých…
























Vytvořeno v xart.cz