| Název: | Vzorový dům Sýkorec |
| Kategorie: | Vzorové domy - dřevostavby na klíč pro veřejnost |
| Společnost: | Vikymont stavby, s.r.o. |
| Jméno: | Dalibor Kološ |
| Adresa: | Lubina 639 Kopřivnice 742 21 |
| Kraj: |
|
| Mobil: | 775 865 170 |
| E-mail: | dalibor.kolos@vikymont.cz |
| Web: | vikymont.cz |
| Charakteristika domu: |
|
| Počet podlaží: | jednopodlažní |
| Generačnost: | jednogenerační |
| Konstrukční systém: |
|
| Ostatní parametry: |
|
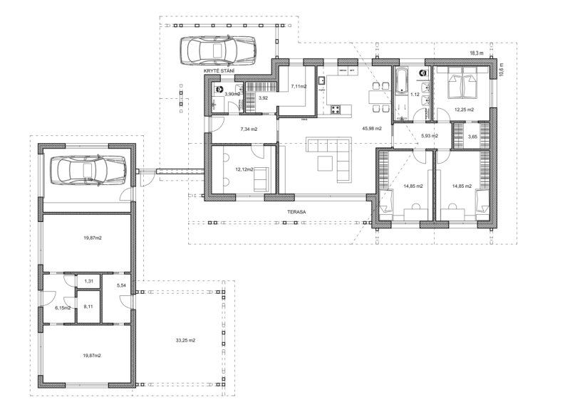
| Podlahová plocha (užitná): | 140,05 m² |
| Zastavěná plocha: | 170,25 m² |
| Dispozice: | 5+kk / 5+1 |
| Otevřeno: | 8 - 16 hod |
Navštivte náš pasivní rodinný dům, který splňuje ty nejpřísnější podmínky pro pohodlné a energeticky přívětivé bydlení. Rodinný dům je vytápěn tepelným čerpadlem, vybaven rekuperací, fotovoltaikou i bateriovým úložištěm. Tento vzorový dům je navíc součástí vývojových aktivit našeho oddělení výzkumu a vývoje. Návštěvníci tak mohou na místě vidět testování různých technologií a materiálů používaných při výstavbě dřevostaveb. V domě je k tomuto účelu nainstalováno téměř 100 čidel. Testujeme a měříme přehřívání různých typů konstrukcí a materiálů, názorně vám ukážeme rozdíly mezi otevřeným a uzavřeným systémem. Jsme specialisté na pasivní a nízkoenergetické dřevostavby a rádi vás tímto domem osobně provedeme.
|
Oznámkujte |
Oblíbené: 0 |
|
EKONOMY MS 04 - dřevostavba na klíč
MS HAUS s.r.o.
Užitná plocha: 85 m²
Dispozice: 4+kk / 4+1
Pavo 111 - dřevostavba na klíč
A T R I U M, s.r.o.
Užitná plocha: 111.03 m²
Dispozice: 5+kk / 5+1
Nízkoenergetická dřevostavba
EKOPANELY SERVIS s.r.o.
Užitná plocha: 115 m²
Dispozice: 4+kk / 4+1
Dům venkovského stylu
EKOPANELY SERVIS s.r.o.
Užitná plocha: 153 m²
Dispozice: 4+kk / 4+1
Rodinný dům 307 - dřevostavba na klíč
MARTINICE GROUP s.r.o.
Užitná plocha: 130 m²
Dispozice: 5+kk / 5+1
LUCERN 116 - dřevostavba na klíč
LUCERN dřevostavby s.r.o.
Užitná plocha: 103.1 m²
Dispozice: 4+kk / 4+1
Ekologická dřevostavba
EKOPANELY SERVIS s.r.o.
Užitná plocha: 128 m²
Dispozice: 3+kk / 3+1
Futura Freestyle - dřevostavba na klíč
Prodesi I Domesi
Užitná plocha: 107.8 m²
Dispozice: 3+kk / 3+1
Bennet
KANADSKÉ SRUBY TÁBOR, s.r.o.
Užitná plocha: 177 m²
Dispozice: 5+kk / 5+1
RD Mnichovice
EKOPANELY SERVIS s.r.o.
Užitná plocha: 124.3 m²
Dispozice: 3+kk / 3+1
Dům se sloupy z douglasky
ARCHCON atelier, s.r.o., DŘEVOSTAVBY BISKUP, s.r.o.
Užitná plocha: 118.44 m²
Dispozice: 4+kk / 4+1
Moderní roubenka v trampské osadě
OK PYRUS, s.r.o.
Užitná plocha: 117 m²
Chata v Jizerských horách - dřevostavba na klíč
3AE s.r.o.
Optimal 02 - dřevostavba na klíč
PENATUS s.r.o.
Užitná plocha: 124 m²
Dispozice: 4+kk / 4+1
Rodinný dům Tábor - dřevostavba na klíč
ALFAHAUS s.r.o.
Užitná plocha: 137 m²
Dispozice: 4+kk / 4+1
Proč jste na portále DŘEVO&stavby?
Copyright © 2026 Českobrodská 35, 190 12 Praha 9 - Dolní Počernice Kontakt
