Redakce | Pondělí, 14. únor 2022 |
Jiří se Simonou bydleli několik let v klasickém panelákovém bytě, a ačkoliv s ním byli vcelku spokojeni, snili o soukromí a především zahradě, kde si budou moci hrát jejich děti. Snili dlouho, protože bylo předem jasné, že budou stavět pasivní dům a budou pro něj potřebovat optimální pozemek. Když po pěti letech konečně objevili přesně takové místo, které si představovali, byla to spíše náhoda. Podle Jiřího totiž u nás v důsledku špatné legislativy vznikají územní plány, které stavbu pasivních domů spíše vylučují.
O tom, že se bude stavět pasivní dům, bylo rozhodnuto předem, protože stavby pasivních domů Jiřího živí. Ve své firmě navrhují, projektují a stavějí individuální zděné pasivní domy. Jenže kolem roku 2008 se o pasivním stavění vědělo obecně velmi málo a i v odborných kruzích se k této problematice přistupovalo značně s rezervou.
Zděný pasivní dům
„Byli jsme spíš za blázny než za odborníky," vzpomíná Jiří. „Hodně jsem tehdy čerpal ze zkušeností kolegů v Centru pasivního domu a ze zahraničí, kde byli a stále ještě jsou přece jen trochu napřed. Největší přínos ale mají reálné zkušenosti z praxe a jejího propojení s projekcí, protože ne všechno, co je navrženo v projektu, lze postavit." Také o konstrukčním systému nebylo pochyb, protože Jiří sice dřevostavby nezatracuje, nicméně osobně preferuje zděné domy. „S vápenopískovými cihlami máme výborné zkušenosti a dobrou zpětnou vazbu od našich klientů. Ve srovnání se dřevem mají pro nás zděné domy řadu výhod, i když doba realizace může být delší. Nicméně díváme se na to racionálně – stavíme dům, ve kterém chceme bydlet 30 až 40 let, a jestli bude hotový za šest, nebo osmnáct měsíců, pro nás nehraje roli."
"Doporučuji všem, aby si pro stavbu vybrali firmu, která zároveň vytvoří i návrh domu a projekt. Je to zárukou, že všechno, co bude navrženo, bude i možné realizovat."
Návrh a projekt pasivního domu
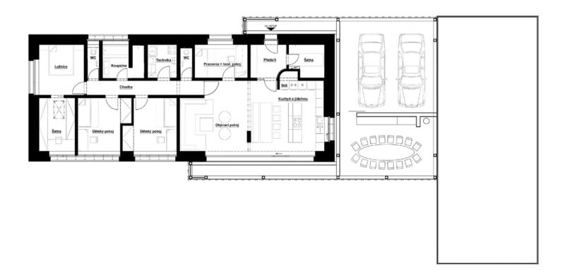
Architektonická studie, návrh domu i projekt probíhal u Jiřího ve firmě. Tak jak je obvyklé, vycházel návrh domu nejen z okolní zástavby a krajiny, ale také z orientace pozemku, územních regulativů a samozřejmě představ a požadavků stavebníků: „Často vzniká mnoho kompromisů, ale my jsme jich díky vhodnému pozemku měli minimum," vysvětluje Jiří. „Ačkoliv je v okolí vzrostlá zeleň, domu přímo žádné stromy nestíní, takže můžeme od podzimu do jara využívat slunce jako pasivní zdroj tepla. Díky vápenopískovým cihlám, propojení sádrových omítek se zdivem, venkovním stínicím prvkům a celulózovým izolacím je v domě příjemné klima nejen v zimě, ale i v létě. Už při návrhu domu jsme totiž mysleli více na přehřívání než vytápění. Kombinovali jsme i různé stínicí prvky, aby odpovídaly charakteru užívání jednotlivých částí domu."
Výhody bydlení v pasivním domě
Rodina se do domu stěhovala za dva roky od zahájení stavby. „Chtěli jsme se přestěhovat do domu tak, aby bylo maximum hotovo včetně zahrady," vysvětluje Jiří a bydlení si nemůže vynachválit: „Máme více prostoru, výborné klima uvnitř a přímý vstup na zahradu, kam můžeme kdykoliv vypustit děti. ´Pasivitu´ domu vnímáme zejména tak, že jsme v mnoha místnostech dodnes neotevřeli okna, přesto žijeme neustálena čerstvém vzduchu, v teplotním komfortu a s optimální vlhkostí vzduchu (v zimě kolem 50 %). V neposlední řadě jsme spokojeni i s nízkými náklady na provoz domu." Dům vytápí tepelné čerpadlo systému země-voda, které zároveň zajišťuje i ohřev vody. „Náklady na vytápění a ohřev vody máme přesně měřené a zaznamenáváme si je od nastěhování. Roční náklady na vytápění a teplou vodu se pohybují kolem osmi tisíc korun ročně. Přispívá k tomu i řízené větrání s rekuperací tepla, s nímž jsme mimořádně spokojeni – otevíráme vlastně jen dvě okna na terasu, ostatní zůstala od nastěhování zavřená."
Vychytávky domu
Zajímavým vybavením domu jsou rozvody vody v systému MHS Vital box, které řeší hygienu, kvalitu a úsporu pitné vody. Stagnace vody v potrubí podporuje množení bakterií a snižuje její kvalitu. Systém MHS Vital je navržen tak, aby například při každém spláchnutí toalety nebyla použita čerstvá voda, ale voda odstavená v potrubí. Tímto způsobem je trvale proplachován celý potrubní systém studené a teplé vody. Zároveň se šetří i spotřeba vody, protože není třeba čekat na její správnou teplotu pro pití nebo sprchování. Významnou úsporu představuje také systém pro zadržování dešťových vod a její zpětné využití pro zálivku zahrady. Nejen té kolem domu, ale vertikální na fasádách domu. Střešní zahrada si díky osázení vhodnými rostlinami vystačí po celý rok bez závlahy.
"Na našem domě si ceníme nejvíce toho nehmotného – že se nám v něm dobře žije a že bychom dnes nic neměnili."
Článek byl publikován v ročence PASIVNÍ DOMY 2022, kterou vydává naše vydavatelství společně s časopisy DŘEVO&stavby a sruby&ROUBENKY
Technické parametry
- Zastavěná plocha: 175 m2
- Užitná plocha: 133 m2
- Obestavěný prostor: 1 025 m3
- Konstrukční systém: zděný z vápenopískových cihel, zateplení celulózou
- Měrná potřeba tepla: 13 kWh/m2a
- Součinitel prostupu tepla stěnou: 0,09 W/m2K
- Vytápění/větrání: tepelné čerpadlo NIBE 1255 země-voda, výkon 1,5–6 kW, větrací jednotka Brink Flair 325 s rekuperací tepla (účinnost 91 %)
- Projekt a realizace: Pasivní domy Hradec Králové s.r.o., www.pasivnidomyhk.cz, 2017–2019
- Náklady: 7 mil. Kč
- Autor a zdroj fotografií: se souhlasem PASIVNÍ DOMY HK (článek je publikován v ročence PASIVNÍ DOMY 2022)

ročenka PASIVNÍ domy 2022 - jak se staví, jak se v nich žije...
- Návrh a stavba pasivního domu
- Technologie pasivního domu
- Projekty a realizace pasivních domů
- Zkušenosti s bydlením v pasivním domě
Objednejte si krásně vonící výtisk časopisu s kvalitními fotografiemi. Přes 200 stran informací pouze za 99 Kč
koupit časopis
Nejnovější články v kategorii “Pasivní domy”
-
České bateriové stanice HES s kapacitou až 41,1 kWh snižují díky spotovému nakupování cenu elektrické energie
Střešní solární elektrárny na rodinných domech se pomalu stávají v Česku standardem a zájem výrazně zvýšila i rostoucí cena energií. S vlastní fotovoltaikou zákazníci šetří…
-
Navštivte pasivní rodinný dům, který se testuje za provozu
O světě pasivních a nízkoenergetických rodinných domů koluje řada mýtů a polopravd. Je lepší zvolit difúzně otevřený nebo uzavřený konstrukční systém? Jaké materiály je vhodné…
-
Petr Dusil: Cílem není pouze pasivní, ale kvalitní dům
Současná doba je takovým ukazatelem naší připravenosti na změny a krize mnoha odstínů. Jak si v jejich světle stojí současné stavebnictví, v posledních letech postavené rodinné domy…
-
Radon v pasivních domech
O radonu jako život ohrožující látce se hovoří už poměrně dlouho. Tento radioaktivní plyn vzniká přeměnou uranu a radia v zemské kůře a sám se přeměňuje na další radioaktivní…
























Vytvořeno v xart.cz