Radek Beneš | Neděle, 06. červen 2021 |
Bydlení na horách není pro každého, ale ten, kdo kouzlu kopců u nás propadne, pak jen stěží bude hledat domov jinde. Ne jinak tomu bylo v případě našich hostitelů – mladé dvojice, jejíž metou se stalo bydlení na dosah rozkvetlým stráním s horskou květenou, srnkám snídajícím pod okny během léta a vysoké sněhové peřině v zimě. Vysněný cíl si dnes už manželé dokázali splnit. A stylově – v čem jiném bydlet na horách, než ve stylové dřevostavbě. Využili jsme pozvání, abychom se do jejich nízkoenergetického domova podívali.
Vždycky jsme si přáli bydlet v Českém ráji nebo na horách. K tomu pak samozřejmě směřovalo i naše hledání nového domova. Přes realitní společnost se nám podařilo v roce 2003 objevit objekt horské chalupy z poloviny 19. století a během tří dnů byl dům náš. Přiznám se, že ke koupi došlo, aniž bychom vstoupili dovnitř. S lehkou rekonstrukcí jsme stejně počítali a tak působivé místo s chalupou nás oslovilo natolik, že nebylo o čem přemýšlet.
Měla to být „lehká" rekonstrukce roubenky
Při bližším prozkoumání, odkrytí střešní krytiny a originálních konstrukcí bylo jasné, že budeme muset přistoupit víc než k lehké rekonstrukci objektu. Pozednice byly naprosto ztrouchnivělé, hlavní trámoví shnilé, izolace tady chyběly úplně, nedalo se s tím vůbec nic dělat. Nakonec se celá chalupa zbourala až na základ s výjimkou nově přistavěné části a sklepa a rekonstrukce byla rázem zcela zásadní.
Musel být vytvořen nový projekt, v němž jsme trvali na zachování původního rázu roubené stavby. Dlouhý čas jsme věnovali „průzkumu" tradičního stylu v Bedřichově a okolí, z kterého vznikl finální návrh vnější podoby dřevostavby. Okna, dveře, lomenice, to vše je uděláno s ohledem na místní tradice.
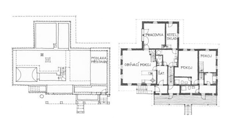
Vzhledem k velikosti obnažených základů byl dům v novém pojetí rozdělen na tři části, z nichž první slouží nám k trvalému bydlení a zbylé dvě pak využíváme pro krátkodobý pobyt hostů a přátel, kteří sem jezdí nejen za námi, ale také za přírodou a sportem – bezprostředně na apartmány totiž navazuje sjezdovka.

Foto: Martin Zeman

obr.: Bydlení v souladu s tradicí a přírodou – to je trvale obydlená roubenka v Bedřichově. Pro laika je až neuvěřitelné, že tato stavba dokáže být navíc nízkoenergetickým objektem, který nezatěžuje životní prostředí a ani pěněženku majitelů. Foto: Martin Zeman

Foto: Martin Zeman

obr.: Jen málo osvícenců u nás se dokáže o svůj pozemek podělit s návštěvníky okolních zahrad, luk, mokřadů a ulice prostřednictvím jednoduchého plotu z kulatiny či živého plotu. Stavbám takové „oplocení" však sluší. Foto: Martin Zeman
Trojí dispozice v jedné dřevostavbě
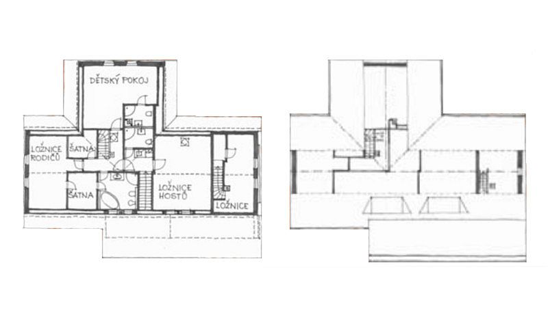
Stavba ve tvaru písmene T s obytným podkrovím nabízí opravdu dostatek prostoru k bydlení i pronajímání. Naše rodina obývá část koncipovanou ve stylu původní roubené stavby, kde je v podstatě byt ve dvou podlažích – v prvním světnice jako hlavní obývací prostor s kuchyní, jídelním stolem a posezením s vnitřním rozměrem 6,2 x 6,2 metrů, vedle pracovna a v druhém podlaží pak dětský pokoj, ložnice s koupelnou, které jsou propojeny praktickou šatnou.
Dřevo jsme chtěli vnímat i uvnitř našeho nového bytu, proto je všechen nábytek ze dřeva vyrobený kromě kuchyně na míru, do patra vedou dřevěné schody a dřevěné jsou i podlahy. Podkrovní část je nad schodištěm otevřena až do hřebene, opticky pak dostavěna hambalky. Prostor nad místnostmi v patře jsme využili pro uskladnění sezónních věcí.
Druhou, prostřední část domu, jsme pojali jako apartmán s veškerým potřebným vybavením s variabilním využitím buď pro naše přátele, nebo pro hosty. Oddělení, respektive kontakt s osazenstvem zajišťují akusticky izolované dveře mezi naším bytem a apartmánem, který má i svůj samostatný vchod zvenčí. A poslední část domu, rovněž se samostatným vstupem, nabízí další byt k samostatnému užívání.

obr.: Až na kuchyni je všechen mobiliář domu vyroben na zakázku. Mohlo by se zdát, že dřeva je tu příliš, ale interiéru této roubenky dřevo prostě sluší a nijak nediskutuje s moderním bydlením. Foto: Martin Zeman

Foto: Martin Zeman

obr.: Velmi citlivě připojená terasa k domu tady navazuje na pracovnu. Obdiv patří tomu, kdo se dokáže v takovém prostředí upoutat k práci a udrží své myšlenky na monitoru počítače... Foto: Martin Zeman

obr.: Částečně přiznaná konstrukce krovu umožňuje zařídit dětský pokoj i méně obvyklým mobiliářem. Foto: Martin Zeman

obr.: Soudobé úložné prostory nechybí ani v roubence – důkazem je šatna propojující ložnici a koupelnu v patře. Podkrovní prostor jich nabízí rovněž víc než dost... Foto: Martin Zeman
Konstrukční řešení nízkoenergetické dřevostavby
Naším cílem bylo mimo jiné bydlení dosahující nízké spotřeby energie. Proto je roubenka koncipována jako nízkoenergetická stavba se spotřebou tepla na vytápění v rozmezí 30-35 kWh/m2 za rok, které je dosaženo konstrukčním řešením a dalšími stavebně technickými prvky a rovněž orientací obytné části na jihovýchodní až jihozápadní stranu.
Hlavní konstrukce ve formě skeletové dřevostavby je tvořena dřevěnými hranoly 120 x 120 mm, s tepelnou izolací tloušťky 280 mm. Vnější fasádu pak tvoří fošny, které jsou vymazány tradiční hmotou složenou z klihu, sádry, cementu a pilin pro dodržení původní technologie stavby. Vnitřní stěny tvoří sádrokarton s hrubou úpravou povrchu.
Stropní trámy byly výrazně přesazeny přes obrys stavby, aby vznikl větší obytný prostor v podkroví a navíc aby přesah chránil vstup před nepřízní počasí. Okna jako velmi výrazný prvek každého domu jsme volili s ohledem na ráz stavby – dům má tradiční špaletová okna s rozšířením o 15º směrem do interiéru, aby bylo zajištěno dostatečné prosvětlení místností při zachování tradičního vzhledu.
Jakkoli stavba vypadá náročně, její realizace proběhla velmi rychle – dům jsme koupili v únoru, v srpnu se začalo stavět a Vánoce jsme trávili v novém domově.

obr.: Galerie v patře propojuje ložnici, koupelnu, apartmán pro přátele a pohádkové dětské království. Dřevěné prvky i tady dodávají všemu kouzlo romantiky. Foto: Martin Zeman

Foto: Martin Zeman
Vytápění roubenky
Zdrojem tepla je kotel na dřevo (zplynovací) a elektro spirály ve dvou integrovaných akumulačních nádržích – první je pro obytnou část a druhá pro apartmány. Toto řešení bylo zvoleno ze dvou důvodů – za prvé z hlediska výkonu dřevokotle je vhodnější větší akumulační prostor a jednak s ohledem na současnou potřebu teplé užitkové vody pro pět koupelen, které se v objektu nacházejí a mohou být především v zimní sezóně využívány současně – přeci jen v zimě v chalupě běžně pobývá až 18 lidí.
Protože se ve své práci věnuji vzduchotechnice, ani ta u nás nesměla chybět. Obytná část je vytápěna teplovzdušně se zpětným získáváním tepla – rekuperací. Vzduch je přiváděn do obytných místností (světnice, pracovna, pokoje) v množství podle vypočítané tepelné ztráty jednotlivých místností.
Odpadní vzduch je pak odsáván z koupelen, záchodů a kuchyně. Tento vzduch odevzdává teplo v rekuperačním výměníku a je vyveden mimo objekt. Čerstvý vzduch nasávaný na fasádě je předehříván v rekuperačním výměníku s účinností přibližně 70 % a po smíchání se vzduchem cirkulačním je dohříván na požadovanou teplotu a přiváděn do obytných místností plochými podlahovými kanály a podlahovými vyústkami. Cirkulační vzduch je odváděn jednak v nejvyšším místě pod střechou, jednak u kachlových kamen v obytné světnici.
Za vytápění platíme ročně za obytnou část o ploše 120 metrů čtverečních zhruba sedm tisíc korun. Pro navození přírodního tepla a správné zimní atmosféry na horách jsme si nechali ve světnici postavit také kachlová kamna, a to samotným mistrem Cechu kamnářů. Díky teplovzdušnému systému vytápění je tak zajištěn i rozvod tepla od kamen do všech ostatních místností bytu.

obr.: Co by to bylo za stavení na horách bez kachlových kamen. Tahle pocházejí z rukou mistra Cechu kamnářů. Foto: Martin Zeman
Zahrada všude kolem
Prostředí, kde žijeme, je sama příroda, proto nebylo nutné okolí roubenky nijak náročně dotvářet z hlediska zahradních úprav. Stačilo připravit místo pro jezírko a osázet jej vodními rostlinami, v okolí pak dosadit několik málo dřevin. Protože s dětmi moc rádi pobýváme venku, navazuje na pracovnu veliká terasa, kde trávíme podstatnou část volných chvílí.
Oplocení pozemku o výměře 1 600 metrů čtverečních jsme vyřešili velmi jednoduše, prakticky a stylově – je tvořeno v podstatě dřevěnou ohradou, která nijak nenarušuje výhled do okolí, naopak s ním přirozeně splyne a zahrada přechází do okolních luk. Máme tak zahradu vlastně mnohem větší...

Foto: Martin Zeman
Komentář stavebníka
Bydlení na horách v roubence má své kouzlo. Bedřichov je díky své poloze uprostřed Jizerských hor ideálním místem pro děti a sport. Chalupa nás při koupi nadchla svoji polohou i okolními vzrostlými stromy. Menší horor nastal při pokusu o opravu. Rozhodnutí starý dům strhnout a postavit nový, věrně kopírující původní, umožnilo celý objekt koncipovat jako nízkoenergetický, s velmi dobrou tepelnou izolací a teplovzdušným vytápěním. Po letech užívání i včetně zim rozhodně nelitujeme. Dřevo v interiérech je velmi příjemné, a v kombinaci s větráním s rekuperací vytváří ideální vnitřní prostředí. Dnes bychom rozhodně neměnili za něco jiného.

majitelé roubenky

Foto: Martin Zeman

Foto: Martin Zeman
Komentář dodavatele

Tomáš Mrklas
BAK, a.s. Trutnov
Požadavek provést rekonstrukci dřevěné chalupy v Bedřichově na nízkoenergetický dům pro mladý manželský pár byl pro mne výzvou, která se nedala odmítnout. Naše firma realizovala jednotlivé etapy rekonstrukce ve výjimečné shodě objednatele, architekta a dodavatele.
Zásadní a nelehkou podmínkou vlastní výstavby bylo dodržení charakteru jizerskohorské „dřevěné" architektury a detailů jednotlivých prvků s cílem postavit nízkoenergetickou dřevostavbu.
Tesařské spoje, jednoduché, přitom však ozdobné prvky viditelných částí dřevěné konstrukce, špaletová okna s využitím odolných dithermových skel a další doplňky byly zpracovány tak, aby tvořily celek, který odpovídá funkčnosti i estetickým požadavkům a je součástí architektury Jizerských hor.
Tomáš Mrklas, vedoucí střediska tesařů firmy BAK, a.s. Trutnov
(kromě montáže tesařských konstrukcí se ve firmě zabývá realizací pasivních domů)

Foto: Martin Zeman
Technické parametry
- Spodní stavba: betonová základová deska
- Konstrukční systém: skeletová dřevostavba
- Fasáda: dřevo
- Tepelná izolace: minerální
- Krov: dřevěný
- Střešní krytina: bonnský šindel
- Okna: dřevěná špaletová
- Zasklení: vnější křídla jednoduché, vnitřní dvojité
- Dveře vstupní: dřevěné
- Podlahová krytina: dřevo masiv – přízemí dub, podkroví borovice
- Vytápění obytná část: teplovzdušné s rozvody v podlaze
- Pozemek: 1 600 m2
- Zastavěná plocha: 180 m2
- Podlahová plocha: 300 m2 (z toho obytná část cca 150 m2)


Vizualizace půdorysů: autor článku
Vaše komentáře (0)Nejnovější články v kategorii “Rekonstrukce”
-
Poctivá rekonstrukce památkově chráněného objektu Roubenka
Rekonstrukce historicky cenných objektů nebývají jednoduchou záležitostí, obzvlášť těch památkově chráněných. Když se ale spojí vědomosti, pokora, ochota naslouchat a snaha o…
-
Oprava dřevěné a nosné konstrukce krok za krokem
Oprava dřevěných a nosných konstrukcí patří spolu s výměnou střechy k nejdůležitějším a také nejdražším částem rekonstrukce roubené stavby. Teprve když je stavba „v suchu" a…
-
Jak na opravu roubenky krok za krokem
Pro majitele je dnes nejtěžší zorientovat se v množství často protichůdných informací a naplánovat opravu tak, aby přinesla kýžený výsledek – obvykle zvýšení komfortu pro…
-
Jak funguje technologie čištění dřeva suchým ledem a v čem je unikátní
Mezi metody čištění a oživení starších dřevěných prvků přibyla nová, efektivní a ekologická metoda čištění peletami suchého ledu. Kromě údržby a renovace straších…












Vytvořeno v xart.cz