
Dřevostavba ve strmém svahu, a na úzkém pozemku, byla pro majitele výzvou, kterou však zvládli na jedničku
a.janousek | Pondělí, 25. listopad 2019 |
Postavit dům na pozemku o rozměrech 17 x 125 metrů bylo pro tvůrce celého projektu opravdovou výzvou! Úkolu se zhostil s důmyslností a respektem. Výsledkem je dřevostavba, s kterou může být nadmíru spokojen. Ne náhodou byl rodinný dům nominován do soutěže Stavba roku.
Se svými šesti dětmi jsme asi deset let bydleli ve velkém rodinném domě nedaleko Prahy. Když děti vyrostly a zařídily si vlastní bydlení, zůstala velká část domu opuštěná a nevyužitá. Rozhodli jsme se proto pro stavbu menšího a jednoduššího domu.
Pomalu už začínáme myslet na stáří, a tak jsme své budoucí bydlení začali s nadsázkou nazývat výminkem, i když velikostí dům výminek nijak nepřipomíná. Bydlí zde s námi ještě nejmladší syn a ostatní děti s rodinami nás rádi navštěvují. Spokojenému bydlení však předcházela dlouhodobá příprava.
Úzký pozemek ve svahu jako architektonická výzva
Od začátku jsme chtěli bydlet na západním okraji Prahy. Zdejší kraj se nám oběma zamlouval, a tak jsem se mohl začít poohlížet po vhodném stavebním pozemku. V požadované lokalitě byla ke koupi parcela, která se nacházela v příkrém, jižně orientovaném svahu. Kvůli atypickému rozměru – 17 x 125 metrů – nebyla její cena nijak vysoká.
Pozemek to byl krásný – na konci obce, otevřený do volné krajiny a navíc mě svou atypičností provokoval. Protože projektování se věnuji prakticky celý život, byl pro mě návrh vlastního domu, navíc ve složitějších morfologických podmínkách, skutečnou výzvou.
TIP: Dřevostavba do svahu - problém, nebo unikát?

Obr.: Atypický tvar parcely si vyžádal oddělení rodinného domu od níže položené garáže, kterou spojuje s domem pouze obvodová zeď. Foto: Martin Zeman
Projekt dřevostavby
Na projektu dřevostavby jsme pracovali v ateliéru s kolegyní architektkou Ivou VeseIou. Ve fázi přípravy jsem často chodil na pozemek a snažil se vnímat zdejší atmosféru v různých denních dobách i ročních obdobích. Bylo to hledání genia loci.
Důvody pro dřevostavbu
Nejprve jsme uvažovali o klasickém zděném domě, jak se ale postupně projekt rodil, začali jsme se přiklánět k ekologičtější technologii – k dřevostavbě. Tento posun ovlivnilo několik skutečností: úžasné přírodní prostředí, ve kterém se parcela nacházela, snaha o budoucí bezproblémovou a šetrnou recyklaci a v neposlední řadě také vliv mého kamaráda architekta Aleše Brotánka, který nás vytrvale přesvědčoval o výhodách dřevostavby a poukazoval na její nejmenší ekologickou stopu. Takže nakonec jsme své původní rozhodnutí změnili. A nelitujeme...

Obr.: Ačkoli to na první pohled nevypadá, jedná se o čistou dřevostavbu, která je postavena na dřevěných pozednicích z modřínu. Pro ochranu západní strany domu před silnými větry zvolili majitelé gabionovou zeď. Foto: Martin Zeman

Dřevostavba je „posazena" na masivních dřevěných pozednicích uložených na základových patkách. Tím je vytvořena dostatečná vzduchová mezera pod objektem, která pokračuje i po obvodu domu, takže vzduch proudí kolem celého objektu a odvádí vlhkost, která pro dřevěné konstrukce představuje z hlediska životnosti největší problém. Tento způsob založení umožňuje vytvořit kompaktní obálku domu, která není ničím přerušena a má ve všech místech stejné tepelně technické vlastnosti.
Dřevostavba na míru
Podle mého názoru je rodinný dům záležitostí dvou generací. Životní styl se tak rychle proměňuje, že domy brzy zastarávají a další generaci už nemusí vyhovovat to, co vyhovovalo nám. Nejsem zastáncem jakéhokoliv „univerzálního bydlení" ani typových projektů, do nichž není možné promítnout individuální potřeby. Dům by měl být vytvořen na míru pro svého uživatele. Nemohlo tomu být jinak ani v našem případě.

Obr.: Zatravněná střecha měkce integruje dřevostavbu do okolní krajiny. Foto: Martin Zeman
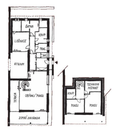
Jelikož jsme manželé už přes třicet let, přesně jsme věděli, co nám v bydlení vyhovuje a čemu dáváme přednost. Hlavní koncepce spočívá v oddělení společenské části domu od části soukromé. Dominantou domu je část společenská s obývacím pokojem – tady se setkává celá naše velká rodina, která se ještě rozrostla o vnoučata.
Obývací pokoj sousedí se zimní zahradou oddělenou pouze prosklenou posuvnou stěnou, takže ji v létě můžeme snadno otevřít a tím zvětšit prostor obývacího pokoje.
V teplých měsících trávíme spoustu času na naší terase, která je rovněž přístupná z této společenské části. Když chceme dát v létě přednost soukromí, uspořádáme naše posezení v atriu – to je s okolním světem spojeno pouze podlouhlým otvorem, kterým vidíme na nedaleký klášter – dominantu obce.

Obr.: Atrium představuje intimní prostor propojený s okolním světem pouze úzkým průzorem s výhledem na místní klášter. Foto: Martin Zeman

Obr.: Ložnici, která se nachází v soukromé části domu, dělí od atria pouze prosklená posuvná stěna. Foto: Martin Zeman
Protože západní strana domu je v našich podmínkách vystavena extrémním povětrnostním vlivům, je subtilní dřevostavba z této strany chráněna masivní gabionovou stěnou porostlou popínavou zelení, která hrubou kamennou stěnu „změkčuje". Dům se tedy otevírá na jih i na východ, odkud je možno pozorovat úžasné každodenní divadlo vycházejícího slunce.
Gabionová stěna pak přechází v oplocení stejného materiálu, které na západní straně lemuje celý pozemek a tvoří stěnu níže položené samostatné garáže. Její „střechu" tvoří trávník a stavba tak měkce navazuje na terén pozemku.

Obr.: Z dalekohledu umístěného v zimní zahradě pozorují majitelé noční oblohu. Foto: Martin Zeman
Bezbariérová dřevostavba
Velice důležitá pro nás byla příjemná atmosféra v domě a celková jednoduchost bydlení. Předem jsme věděli, že nebudeme chtít v domě patro – točité schodiště vede jen do suterénu, kde se nachází pokoj syna a pokoj pro hosty, oba s přímým vstupem do zahrady, a také technická místnost. Jinak je celý dům bezbariérový a všechny jeho tvary jsou veskrze minimalistické.

Obr.: Obývací pokoj je místem rodinných setkání. Americká kamna neslouží v domě jako zdroj tepla, ale spíše pro příjemné posezení u plápolajícího ohně. Foto: Martin Zeman

Obr.: Díky prosklené posuvné stěně se v létě obývací pokoj rozšiřuje o prostor zimní zahrady. Foto: Martin Zeman
Vytápění dřevostavby
Pro vytvoření izolačního pláště domu jsme použili technologii dřevostaveb STEICO s tepelnou izolací z foukané celulózy. Sedmicentimetrová jílová omítka na laťovém roštu vytváří na všech vnitřních stěnách domu výbornou akumulační plochu a slouží jako regulátor vnitřní vlhkosti. Střecha dřevostavby je zelená s monokulturní vegetací, která koresponduje s okolním prostředím.
Vytápění dřevostavby je teplovzdušné. Zdrojem tepla je zásobník o objemu 650 litrů napojený na solární panely a tepelné čerpadlo voda – vzduch. V případě potřeby slouží pro dotápění elektrické patrony.
Teplovzdušný výměník pak rozvádí vzduch do jednotlivých místností. Tento systém doplňuje instalovaná rekuperační jednotka, která předehřívá čerstvý vzduch z exteriéru. Hodinová tepelná ztráta se díky těmto systémům pohybuje okolo 4,5 kWh, což nám vyneslo nominaci na cenu za energetickou úspornost a zařadilo náši dřevostavbu do nízkoenergetického standardu. Když srovnáme stávající spotřebu se spotřebou v našem předchozím – zděném – domě, je dokonce třetinová!

Obr.: Kvůli svému čtyřnohému příteli plánovali majitelé ve společenské části původně dlažbu. Pak se však karolovi podařilo zachránit 200 let staré stavební dříví určené na topení, které se po patřičném ošetření proměnilo v daleko příjemnější dřevěnou podlahu. Foto: Martin Zeman

Hodnocení dřevostavby
Kdybychom stavěli znovu, nejspíš bychom na domě nic nezměnili. Ale bydlíme tady zatím krátce na to, abychom stihli být s něčím nespokojeni.
Slovo projektanta
Tento projekt byl atypický tím, že jsem byl zároveň stavebníkem, projektantem i koordinátorem realizace stavby. Dalo by se říct – ideální stav. Při práci projektanta považuji za nejdůležitější fázi dialog s budoucím uživatelem. Kvalitní dům je možné navrhnout jenom tehdy, když dobře poznáte životní styl, rituály, zvyklosti a způsoby budoucího uživatele. Když se s ním prakticky ztotožníte. Je to něco podobného, jako když herec studuje svou roli. Dobře ji zahraje jenom tehdy, když se s ní ztotožní, když hraje, jako by hrál sám sebe. Podobné je to i u navrhování staveb.
Aby se v situaci, kdy jeden člověk je uživatelem, projektantem a dodavatelem, nevytratil tvůrčí dialog, bylo nutné do každé z etap přizvat partnera k tomuto dialogu. Ve fázi uživatelské to byla moje žena, se kterou jsme tvořili základní koncepci, ve fázi navrhování to byla moje kolegyně architektka Iva Veselá, která podstatně ovlivnila celkový vzhled domu, a ve fázi realizace to byl Jan Málek, se kterým jsme hledali optimální postupy pro takto atypickou stavbu.
Všichni jmenovaní sehráli v celém tvůrčím procesu nezastupitelnou roli a výsledkem je dům, který se myslím docela povedl.
Ing. Karol Böhm – majitel a vedoucí architektonicko-stavebního ateliéru
Ateliér AMA invest s.r.o. se zaměřuje na komplexní návrhy staveb se zvláštním zřetelem na dřevostavby v nízkoenergetickém a pasivním standardu

Obr.: Točité schodiště využívají převážně děti, které mají pokoje v suterénu domu. Foto: Martin Zeman
Slovo stavebníka
Po 30letém soužití v manželství, kdy už dobře známe své zvyky (i zlozvyky), máme ustálené své rodinné rituály a víme, co je pro nás prioritou, bylo pro nás potěšením vtělit toto vše do základní dispozice nového domu.
Byly to příjemné dlouhé tvůrčí hovory o tom, na čem nám hodně záleží a co už nepotřebujeme. Rébusem bylo zkombinovat různé varianty – po odchodu dospělých dětí z rodiny se původně veliká domácnost zásadně zmenšila, ale zároveň se všichni stále rádi schází v rodičovském domě, a to včetně našich devíti vnoučat.
S výsledkem našich hovorů pak už skvěle pracovali architekti. Od začátku byl pro nás inspirací jeden krásný starý hebrejský text, ve kterém se mluví o ochraně lidského obydlí. Ten jsme si nakonec napsali na betonovou zeď v naší zimní zahradě.

majitelé dřevostavby

Obr.: V koupelně je využita atraktivní kombinace velkoformátové dlažby a mozaiky. Bodové osvětlení nad vanou majitelce zajišťuje kvalitní čtenářský zážitek. Foto: Martin Zeman

Slovo redaktora
Stavba rodinného domu ve strmém svahu a ještě k tomu na tak neobvyklém tvaru parcely vyžadovala přinejmenším důvtip a odbornou dovednost. Díky citlivému přístupu ke krajině a vnímavosti vůči místní atmosféře se podařilo vytvořit projekt dřevostavby, který nijak nenarušuje své okolí a použitými materiály do něj dokonale zapadá. Díky své energetické úspornosti dřevostavba funguje takřka sáma pro sebe, což jí umožňuje využívání obnovitelných zdrojů energie. Zároveň se stává místem rodinných setkání, která jsou vzdálená smutným návštěvám dětí u rodičů na výminku... Není pochyb: nominaci na Stavbu roku získala dřevostavba zcela oprávněně!
Ondřej Zaorálek
Technické parametry
Zastavěná plocha: 276 m2 + garáž 63 m2
Podlahová plocha: 206 m2
Spodní stavba: podsklepení částečné
Stavební systém: montovaná dřevostavba
Tepelná izolace: Climatizer plus – stěny, stropy, podlaha; dřevovláknitá deska – vnější část fasády
Střešní krytina: vegetace
Okna: dřevohliníková
Zasklení: trojité
Podlahová krytina: dřevo, koberce, dlažba
Vytápění: tepelné čerpadlo, elektřina, solární panely
Topení: teplovzdušní
TUV: průtokový z centrálního zásobníku tepla IZT
Další vybavení: rekuperační zařízení, zimní zahrada
Skladba stěny: směrem zvenku – dřevěný obklad, vzduchová mezera, dřevovláknité desky, Climatizer plus, desky OSB 3, Climatizer plus, omítka hliněná na diagonálním laťování
Celková tloušťka stěny: 563 mm
Hodnota U stěny: 0,092 W/m2K

Připravil: Ondřej Zaorálek
Foto: Martin Zeman
Redakčně upraveno pro web
Prohlédněte si další zajímavé redakční návštěvy dřevostaveb, které jsme navštívili.
Vaše komentáře (2)Nejnovější články v kategorii “Návštěvy dřevostaveb”
-
Zrcadlová roubenka na soutoku
Majitel této roubenky – říkejme mu třeba Martin – měl jasný cíl: postavit svým dospělým dětem dům, kam by mohly o víkendech jezdit a být mu tak i s vnoučaty nablízku. A aby to…
-
Dřevěný domov v krajině rozlehlých luk
Tento příběh připomíná dokonalou pohádku o tom, kterak Kateřina a Jiří našli svůj vytoužený klid v podhůří Krkonoš. Jejich pozemek o rozloze dvaceti tisíc metrů čtverečních je…
-
Dávno splněný sen v podobě patrové dřevostavby na míru
Některé plány a nápady potřebují čas, aby mohly uzrát. Hluboko zapustit kořeny a trpělivě čekat na tu správnou dobu. Jako v tomto případě – poprvé totiž Milan na „svou"…
-
Dřevěná vila schoulená v náručí krajiny
Každý dům nevyhnutelně mění krajinu – jakým způsobem, to už záleží na jeho majitelích. Některé stavby přetvářejí okolí podle svého obrazu, jiné se naopak snaží splynout. A…











Vytvořeno v xart.cz