Dana Jakoubková | Středa, 11. březen 2020 |
Když přijde na bydlení ve vlastním domě, motiv se různí. Někdo chce do přírody, druhý miluje atmosféru venkova, třetí chce být energeticky nezávislým. David s manželkou Monikou jej postavili na společném zájmu trávit čas mimo uzavřený prostor. Chtěli přetvářet, upravovat a krášlit okolí domu a tuto zálibu zprostředkovat i dětem.
„Dřevo mám velmi rád," začíná vyprávění David. "Kdybyste se mě ale zeptala předtím, než jsme začali stavět, určitě bych vám popsal úplně jiný objekt. Dřevostavba nebyla právě to, o čem bych byl přesvědčen. Nadchl jsem se pro ni vlastně až po prvních schůzkách s architektem.
Orientace a umístění domu na pozemku
Davidova slova potvrzuje i architekt Karel Janča: „Napřed jsme se zabývali tím zásadním – tak zvaným malým urbanismem, neboli umístěním domu a jeho orientací na pozemku. K mé radosti jsme se rozhodli pro variantu po spádnici s levitujícím štítem a pro dřevostavbu s rámovou konstrukcí.
Objekt domu svým řešením a orientací ke světovým stranám uplatňuje principy pasivního využití sluneční energie a je navržen s nadnormativním zateplením. Patrná je i snaha o vytvoření přiměřené plochy obalové schránky objektu neboli tepelně ochlazované plochy budovy.
Koncepce domu vychází z jednoduchého podélného dispozičního uspořádání, což se odráží i ve vlastní hmotové kompozici – jednoduchá kompaktní hmota završená sedlovou střechou se sklonem pětačtyřicet stupňů.

Stavba domu v Chráněné krajinné oblasti
Oříškem byla prostorová vazba střešní nosné konstrukce, Ale proti argumentačnímu boji se správním orgánem to byl ten menší problém. Dům totiž měl být umístěn na pozemku ve třetí zóně Chráněné krajinné oblasti Beskydy. Záměrem návrhu tedy bylo koncentrovat stavební program rodinného domu tak, aby stavba vyvolala co nejmenší zábor pozemků, a snaha o bydlení v souladu s přírodou, respektive návrh ekologického domu, který bude k přírodě šetrný nejen svým provozem, ale i použitím stavebních materiálů s nízkou výrobní energickou náročností, resp. materiálů z obnovitelných zdrojů."

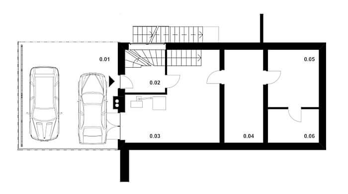
Obr.: Předobraz horské boudy - Architektura a konstrukce beskydských stavení byla už v historii srostlejší s terénem než je tomu ve většině pohraničí. Dům je na terénu osazen po spádnici a využívá vzniklého výškového rozdílu pro umístění suterénu, resp. krytého stání pro dva osobní automobily. Foto: Jiří Ernest

Obr.: Síla domu - Spočívá nejen v jeho materiálové skladbě, ale hlavně v jeho spojení s přírodou. To zprostředkovávají bohatě prosklené plochy fasád a dominantní průběžný vikýř v podkroví, který nabízí nejen nádherné výhledy do přírody, ale z podkrovních místností dělá plnohodnotné objemy. Foto: Jiří Ernest
Stavba svépomocí se zdárným koncem
„Do prostředí, kde jsme chtěli postavit, dřevo patří," navazuje David. „Dodnes tohoto rozhodnutí nelituji. Na projektu jsme společně pracovali téměř rok a jsem rád, že jsme tomu tolik času věnovali. Dnes si neuvědomuji jedinou věc, kterou bych řešil jinak.
V kontextu rčení ´i cesta je cíl´ jsem se na realizaci vlastního domu těšil. Protože pracuji ve stavebnictví, řídil jsem si dodavatelský systém i realizaci sám. Nebylo to jednoduché a dělal jsem hodně chyb, které bych si před tím nepřipustil. Ale vše jsem za technické pomoci architekta dovedl do zdárného konce."

Obr.: Kontext - Dům je postavený v kontextu, který intuitivně cítíme jako legitimní. Tvar a materiál zde (kromě CHKO) diktují i klimatické podmínky. Objekt vystupuje ze svahu, přičemž jeho přední štítová stěna jakoby levituje nad terénem. Část zapuštěná do svahu pak tvoří suterén s technickým zázemím a malým vinným sklípkem. Foto: Jiří Ernest
Komentář architekta
Práce s investorem a jeho paní byla konstruktivní, tvůrčí a vzájemně velmi korektní. Byla to další ze zakázek, kdy práce přerůstá v důvěru a osobní přátelství, to je na naší práci (architektů) vždy ta nejlepší satisfakce. Stavění končí, přátelství zůstává.

Ing. arch. Karel Janča

"Můžete mít nejkrásnější místo na světě, ale když si nerozumíte s lidmi v jeho okolí, celé kouzlo se vytrácí."

Obr.: Výhledy - Hostům se domácí chlubí klidem prostředí a výhledem, který se do exteriéru otevírá velkými prosklenými plochami. Foto: Jiří Ernest

Obr.: Souhra - Přehlídku moderně pojatých hladkých linií „narušuje" pouze schodiště, na jehož křivku navazuje velký oválný stůl. Foto: Jiří Ernest

"Propojení interiéru s exteriérem nám působí největší radost. To vám žádný byt ve městě nenabídne."

Komentář majitele
Domov tvoří lidé
O pozemku jsme měli jasno hned od začátku. Nachází se v části Rožnova, kde jsem strávil své dětství. Znám tedy velmi dobře okolí a hlavně lidi, kteří zde žijí. Čím dál více jsem přesvědčen o tom, že můžete mít nejkrásnější místo na světě, ale pokud si nerozumíte s lidmi v jeho okolí, celé kouzlo se vytrácí.
Jsem velmi rád, že moje žena sdílela mou slabost pro toto místo a můj kamarád, architekt Karel Janča zde dokázal navrhnout stavbu podle našich představ, to znamená moderní, funkční, propojující interiér s okolní přírodou, kde pokud to počasí dovolí, trávíme i s dětmi maximum možného času.
David

Obr.: Rodinný motor - V době zpracování a realizace stavby měla rodina dvě děti. Pak přibyl ještě jeden rodinný poklad, což vzhledem k objemu dětských pokojů zvládl i stávají stavební program. Dnes v pokojích „kooperují" tři dcery – energie života, která tepe celým domem. Foto: Jiří Ernest

Komentář redaktorky
Dům je pro mě příkladem toho, že podmínky CHKO nemusí nutně znamenat omezení pro tvůrčí práci architekta. Je-li pravda, že začlenění novodobých skleněných ploch, jako jsou střešní okna nebo vstupy na terasu, je v historicky i esteticky hodnotné krajině problémem, pak v tomto případě architekt odhalil svůj cit pro porozumění pojmu „harmonie".
Dana Jakoubková

Obr.: Nadstandard - Velkorysá podlahová plocha se odráží i v koupelně – saunu každý doma nemá. Foto: Jiří Ernest


Technické parametry
- Zastavěná plocha: 137 m2
- Užitná plocha: 299 m2
- Spodní stavba: betonová vana na základových pasech s bitumenovou těžkou hydroizolací
- Konstrukční systém: rámová dřevostavba s nosnými sloupky 140/60
- Tepelná izolace: dřevovláknitá Steico, minerální Rockwool
- Fasáda: dřevěná větraná (sibiřský modřín), kamenný obklad - pískovec (rovněž větraná)
- Střešní krytina: titan-zinkový plech (předzvětralá) na dvojitou drážku, Rheinzik
- Okna: dřevěná, dvojsklo, U = 0,9 w/m2K
- Podlahy: převážně dřevěná lamelová (vrstvená), keramická dlažba (zádveří, prádelna, hygiena), průmyslová stěrková v suterénu
- Teplo: kotel na tuhá paliva - peletky, kachlová kamna, TUV kotel + solární kolektory na střeše
- Skladba stěny (směrem zevnitř): sádrovláknitá deska 100 mm + dřevěný rošt + 80 mm izolace z minerálních vláken + EUROSTRAND OSB 4 TOP 120 mm na PeroDrážku s přelepením spár + min. izolace 140 mm + izolace z dřevovl. desky + dřevěný rošt 60/40 - přirozeně větraná mezera + dřevěný prkenný obklad s mezerou šíře 10 mm
- Celková tloušťka stěny: 42 cm
- Součinitel prostupu tepla U stěnou: 0,15–0,16 W/m2K
- Projekt: Ing. arch. Karel Janča, www.arch-janca.cz
- Realizace: 2012, realizováno svépomoci (s dozorem stavby) bez generálního dodavatele



Příběhy dřevostaveb se zkušenostmi stavebníků vychází v každém čísle časopisu DŘEVO&stavby



Foto: Jiří Ernest
Vaše komentáře (2)Nejnovější články v kategorii “Návštěvy dřevostaveb”
-
Zrcadlová roubenka na soutoku
Majitel této roubenky – říkejme mu třeba Martin – měl jasný cíl: postavit svým dospělým dětem dům, kam by mohly o víkendech jezdit a být mu tak i s vnoučaty nablízku. A aby to…
-
Dřevěný domov v krajině rozlehlých luk
Tento příběh připomíná dokonalou pohádku o tom, kterak Kateřina a Jiří našli svůj vytoužený klid v podhůří Krkonoš. Jejich pozemek o rozloze dvaceti tisíc metrů čtverečních je…
-
Dávno splněný sen v podobě patrové dřevostavby na míru
Některé plány a nápady potřebují čas, aby mohly uzrát. Hluboko zapustit kořeny a trpělivě čekat na tu správnou dobu. Jako v tomto případě – poprvé totiž Milan na „svou"…
-
Dřevěná vila schoulená v náručí krajiny
Každý dům nevyhnutelně mění krajinu – jakým způsobem, to už záleží na jeho majitelích. Některé stavby přetvářejí okolí podle svého obrazu, jiné se naopak snaží splynout. A…












Vytvořeno v xart.cz