Lucie Němcová | Úterý, 17. březen 2020 |
Na první pohled zaujme tato dřevostavba svým rázným tvaroslovím. Jako celek se smíšeným lesem v těsné blízkosti skutečně působí jako usedlost. Rozhodně však ne z minulého století. Snoubí tradiční představu o bydlení na vesnici s novodobým komfortem a estetikou. Co jí říkáte?
Vždycky jsem chtěl dům. Bydlel jsem v pražském bytě a věděl jsem, že je to dočasné. Prošel jsem ale určitým vývojem. Dospíval jsem v 90. letech a tenkrát frčely satelity jako synonymum určitého životního luxusu. Od té doby se věci změnily, ale tehdy to tak bylo. Koupil jsem zhruba před 15 lety pozemek právě v satelitu. V té době to bylo spíš pole. Nezačal jsem stavět hned a mezitím si majitelé v okolí na svých pozemcích zrealizovali své „sny". Jednou to byla roubenka, podruhé supermoderní skleněný palác. Výsledkem byl totální chaos – každá fasáda i střecha jiná, orientace domů nedávaly smysl... Pozemek jsem ještě nezastavěný prodal a dnes jsem za to rozhodnutí moc rád.

Pozemek: Velikost pozemku je dána původní chatovou oblastí, kde jsou běžné několika tisícové rozlohy parcely pro každý objekt. Příjemná tedy je nejen velikost vlastního pozemku, ale i dostatek prostoru mezi jednotlivými usedlíky. Foto: Martin Zeman

Bydlení u lesa
Parcela, na níž stojí náš současný dům, je rodinným darem a přišla v pravý čas. Plní mi sen o bydlení přímo u lesa. Je výjimečná mimo jiné svojí rozlohou kolem 4000 m2. Vzhledem k velikosti jsem ji nechtěl zastavět pouze jedním domem, ale využít ji pro vícegenerační řešení, nechat otevřenou možnost přistavovat další stavby. Nejen další obydlí, ale třeba i stavby technické, wellness a podobně. Výsledné rozmístění hmot, objektů a ploch mělo jako celek dávalo pocit usedlosti, ne solitérního domu. Na jazyku jsem měl pojem „moderní tvrz".

Bytelná zeď: Oddělení obytné části je naznačeno betonovou zdí. Před ní, čelem ke vstupu na pozemek, je technické zázemí s garáží a stáním a za ní pak již plně soukromá část pro bydlení. Foto: Martin Zeman


Ložnice: Výhled do borového lesa náleží ložnicím. V tomto křídle domu najdeme také dětské pokoje s malými galeriemi pod pultovou střechou. Foto: Martin Zeman

Důležitý průvodce na cestě za vysněnou dřevostavbou
S architektem jsme se potkali přibližně již před 15 lety. Tenkrát se zmiňoval, že až dostuduje, bude se věnovat dřevostavbám. Řadu let jsme se pak neviděli a setkali se až náhodou na veletrhu, kde prezentoval svoji firmu. Líbilo se mi, že u svého přesvědčení vytrval. Oslovil jsem jej a začala naše spolupráce na novém domě. Vždy jsem chtěl architekta, nikdy ne pouze typový dům, i když jsem pochopitelně prohlížel různé nabídky, abych si ujasnil, co se mi líbí.

Sny usazené do reality
Mojí původní představou byl srub z kulatiny, postupně jsem se však přesvědčil, že tudy cesta nepovede. V případě srubu je architektura daná materiálem a člověk nevykouzlí nic jiného než chalupu. Já naproti tomu toužil mít hodně prosklených ploch, což by po estetické stránce nefungovalo. Návrh vyplynul z požadavku rozmístění staveb na pozemku, z principu usedlosti. Dům je umístěn pouze do části parcely s tím, že na dalších plochách mohou vyrůstat další objekty.
Stavba je funkčně rozdělena do noční části s ložnicemi orientované na jih do klidného borového lesa a denní části s otevřeným obývacím pokojem a galerií. Záměrem bylo vytvořit raději jeden univerzální prostor pro různé funkce, než mít několik pro každou funkci zvlášť. Galerie se tedy dá využít pro cvičení, jako herna, případně tam lze vybudovat dva plnohodnotné pokoje s koupelnou. Rozvody jsou připraveny.


Čerstvý vzduch ve dne v noci
Ideje o energetickém fungování domu jsme příliš neměli. Dům je otevřený, jsou v něm galerie, kdybychom šli po úspoře energií, řešení by nejspíš vypadalo jinak. My jsme chtěli vzdušný dům s velkým množství prosklených ploch. Máme krb, ve kterém denně topíme, vzduchotechniku s rekuperací, kde je přitápění (nastavujeme teplotu na termostatu u rekuperace), plus máme ještě elektrické přímotopy. Ty ale spíše temperují, nefungují jako významný zdroj tepla. V případě rekuperace jsem dal na architekta a zejména v zimě jsme maximální spokojení.
Vydýchaný vzduch v ložnici, který jsem dříve zažíval v paneláku, nyní neznám. A to s námi spí v ložnici čtyři psi. Četl jsem nějaké zkušenosti o tom, že vzduchotechnika hučí a vytváří průvan, nám se to ale nepotvrdilo. V ložnici navíc netopíme, zejména kvůli psům. Ve velkém teple se jim špatně dýchá, běžně tedy spíme i ve 13 stupních a nevadí nám to. Obecně nám vyhovují nižší teploty. Pro normální život je optimální 17, 18 stupňů, pro klidné sezení u televize přibližně 20.

Interiér: Interiéru dominuje dřevo. Odhalené nosné panely z masivního dřeva jsou ošetřené světlou lazurou, aby byla zachována jejich světlá barva. Nechybí také masivní podlaha. Detaily interiéru jako zábradlí a koupelny jsou dílem architekta, kuchyně a schodiště jsou již z pera designérky. Foto: Martin Zeman

Mlynářské schodiště: Původně majitelé hodně zvažovali toto řešení. Prý je mlynářské schodiště velmi nepohodlné. Nakonec ale praxe potvrdila opak a jsou nadšení. Pochopitelně, velkou roli hraje zvyk, ale prý jim nechybí ani zábradlí, jelikož je schodiště dostatečně široké. Foto: Martin Zeman

Zkušenosti s odstupem času
Pokud bych měl udělat něco jinak, byla by to zateplená garáž. A také úložných prostor není nikdy dost, ale nemohu říct, že bych je řešil jinak. Jsou adekvátní k proporci domu. V budoucnu ovšem budeme potřebovat více místa na různé potřeby k zahradničení a dalším našim koníčkům a radostem spojeným s životem na vesnici.
Považujeme si, že je dům do L a je vidět z ložnic do obýváku. Z postele člověk vidí, co se děje v kuchyni, i když jej dělí dvě okenní plochy. Senzační jsou také světelné efekty. Když někdo svítí svíčkou nebo lampičkou, osvětluje současně druhé křído domu. Je to příjemné. Tyto nejrůznější průhledy si užíváme a jsou takovým nečekaným překvapením tohoto bydlení.

Krb: Masivní těleso krbu a komína je nejen funkční, ale výrazně také estetickou součástí stavby evokující tradiční tvrz. Foto: Martin Zeman

Průhledy: Možnost vidět do druhé části domu vytváří kouzelný pocit, který lze ochutnat až při samotném obývání stavby. Koncepce hmot dala vzniknout klidnému soukromému dvoru, kde se může odehrávat barevný život rodiny. Foto: Martin Zeman

Zkušenosti architekta
Čím se pro vás tento dům stal nezapomenutelným?
Dům vznikl pro mého dobrého známého, který mě oslovil s prosbou, abych mu navrhl dům, jehož koncept bude vycházet ze starých zemanských tvrzí. Nadchla mě také rozloha pozemku a to, že volně přechází v les.
Odkud pramenila inspirace pro výslednou podobu domu?
Inspirace vycházela ze starých zemanských tvrzí. Tento dům je vlastně tvrz, přepsaná do moderní architektury. Betonová zeď evokuje pocit hradby. Před ní je technické zázemí objektu, které má evokovat podhradí a pak je vnitřní obytná část, která má dokonalé soukromí.
Jaké technické či architektonické řešení by nemělo uniknout naší pozornosti? Přinesla realizace nějakou cennou zkušenost?
Tento dům není čistou dřevostavbou. Je kombinací betonové stavby s dřevostavbou. Zajímavé bylo fázování stavby. Nejdříve se postavilo komínové těleso, pak dřevostavba (obytná část), poté betonová stěna a na závěr technické zázemí.

Ing. arch. Václav Zahradníček
Prodesi


Technické parametry
- Zastavěná plocha: 233 m2
- Užitná plocha: 198 m2
- Konstrukční systém: masivní dřevěné panely (CLT)
- Teplo a větrání: přímotopy, rekuperace, krbová kamna
- Skladba stěny: 84 mm panel Novatop Solid, 180 mm minerální izolace Orsil Osik, provětrávaná mezera, 33 mm modřínové palubky
- Součinitel prostupu tepla stěnou: U = 0,202 W/m2K
- Projekt: Prodesi, v.o.s., autor Ing. arch. Václav Zahradníček, spolupráce Ing. arch. Michal Kotlas, projektant Jan Švarc
- Realizace: Domesi, s.r.o., www.domesi.cz, 2015

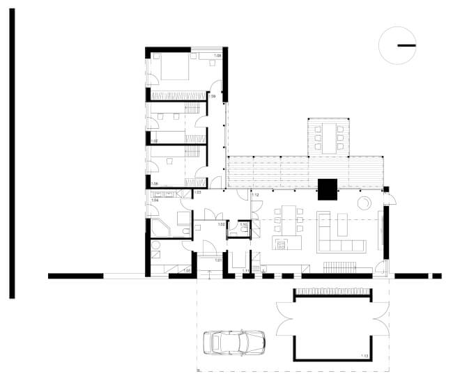
Obr.: Půdorys 1. NP

Obr.: Půdorys 2. NP
Vaše komentáře (1)Nejnovější články v kategorii “Návštěvy dřevostaveb”
-
Zrcadlová roubenka na soutoku
Majitel této roubenky – říkejme mu třeba Martin – měl jasný cíl: postavit svým dospělým dětem dům, kam by mohly o víkendech jezdit a být mu tak i s vnoučaty nablízku. A aby to…
-
Dřevěný domov v krajině rozlehlých luk
Tento příběh připomíná dokonalou pohádku o tom, kterak Kateřina a Jiří našli svůj vytoužený klid v podhůří Krkonoš. Jejich pozemek o rozloze dvaceti tisíc metrů čtverečních je…
-
Dávno splněný sen v podobě patrové dřevostavby na míru
Některé plány a nápady potřebují čas, aby mohly uzrát. Hluboko zapustit kořeny a trpělivě čekat na tu správnou dobu. Jako v tomto případě – poprvé totiž Milan na „svou"…
-
Dřevěná vila schoulená v náručí krajiny
Každý dům nevyhnutelně mění krajinu – jakým způsobem, to už záleží na jeho majitelích. Některé stavby přetvářejí okolí podle svého obrazu, jiné se naopak snaží splynout. A…












Je důležité najít odborníky, na které se můžete spolehnout. Měli jsme skvělého stavbyvedoucího, který nepustil nic, co nebylo podle jeho představ. Tento pocit důvěry je nenahraditelný.
Vytvořeno v xart.cz