Lucie Němcová | Pondělí, 28. září 2020 |
Některé domy čekají na svůj čas. Na fázi života, která zkrátka přinese jiné potřeby, sny a přání. Dřevostavba na okraji Prahy dostala fyzické obrysy, když už bylo dost dojíždění za přírodou a klidem, dost života v centru města a dost přizpůsobování podkrovním šikminám střechy. Nastal čas mít doma tam, kde je zkrátka dobře a není třeba nikam odjíždět.
Naším útočištěm byl půdní byt v centru Prahy, ze kterého jsme každý víkend prchali na chatu směrem na Vlašim. Cesta se stávala stále komplikovanější a vlivem rekonstrukce dálnice časová ztráta rostla, až jsme i díky dalším faktorům dospěli k rozhodnutí udělat změnu. Byt i chatu jsme prodali a postavili na místo toho dřevostavbu.
Dřevostavba bez finanční půjčky
S nápadem na dřevostavbu přišel manžel. Pár našich známých už v ní bydlí a viděli jsme, že se jim bydlí dobře a jsou spokojení. Zpětná vazba od nich byla výborná. Zásadní pro naše rozhodnutí byla ale hlavně rychlost výstavby. Prodali jsme byt i chatu a na přechodnou dobu se přestěhovali k mým rodičům do poměrně stísněných podmínek. Díky tomu jsme mohli celý proces zvládnout bez jakékoli finanční půjčky, ale rychlost realizace pro nás hrála významnou roli. Do třetice pro nás byla důležitá dobrá schopnost izolace.

Dodavatele dřevostavby jsme vybrali na veletrhu
Dodavatelskou společnost jsme vybírali na veletrhu v Holešovicích. V našem hledáčku byly spíše malé firmy. Obecně mám raději, když vidím, že se kolektiv vzájemně zná a nejde o velkou společnost s mnoha odděleními. Následovala také návštěva některých realizovaných staveb a výroby. Bylo jasno. Zvolili jsme následně typový projekt a upravili některé dispoziční detaily.
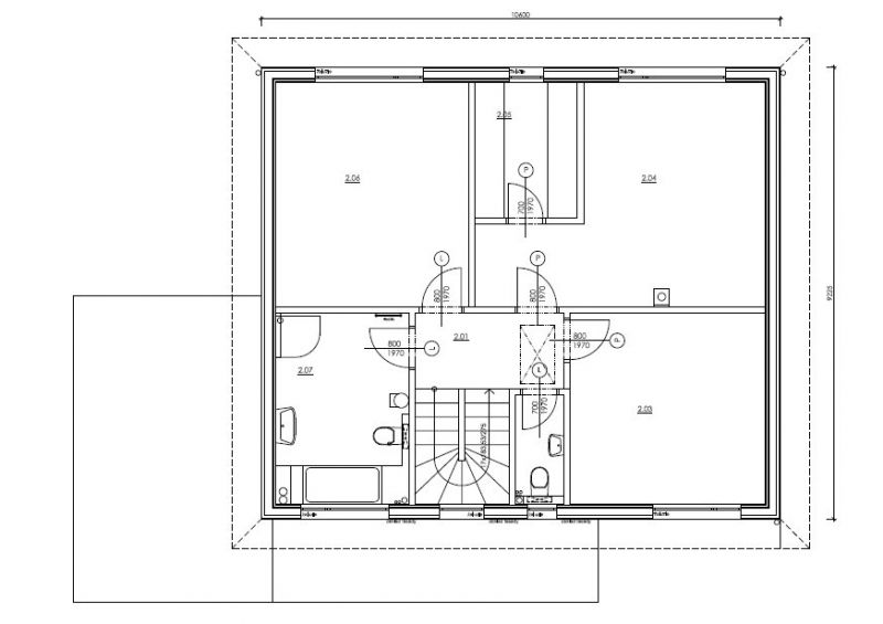
Po zkušenosti s bydlením v podkroví jsme si přáli dvě plnohodnotná patra. Už jsme znovu nechtěli zkosenou střechu. S návrhem domu jsme si dali práci, a jelikož jsme už měli zkušenosti z chaty, některé věci jsme vychytali už tam a nemuseli je znovu opakovat.

Vstup: Zastřešení hlavního vchodu do domu je důležitým prvkem, který v budoucnu majitelé jistě mnohokrát ocení. Foto: Martin Zeman

Foto: Martin Zeman
Dřevostavba za čtyři měsíce
Realizace začala základovou deskou již v listopadu. Samotnou dřevostavbu začali montovat v lednu z připravených panelů a 1. května jsme se stěhovali. Dům byl v tu chvíli hotový, až na pár detailů. Hodně práce nás pochopitelně čekalo na zahradě.

obr.: Zkosené střechy nejsou pro dlouhodobé bydlení komfortní, zvláště je-li byt malý. Foto: Martin Zeman
Z papíru do reality
Určitou výzvou bylo představit si všechny detaily ve skutečnosti. Člověk má tendenci si věci trošku idealizovat, když je vidí pouze na papíře. Spoustu prvků jsme vybrali ve vzorkovně a posléze změnili názor a ještě vyměňovali či vraceli, na základě rad řemeslníků, kteří mají praktickou zkušenost a vidí více souvislostí. Třeba koupelnovou baterii nahradila kvalitnější. Během realizace pak padala řada otázek – v jaké výšce chceme vypínače a zásuvky, jak přesně chceme doladit nejrůznější detaily... ne na vše jsem byla v tu danou chvíli připravená.

Kuchyně: Místo, které si majitelé velmi užívají. Za linkou je použito sklo, velmi oblíbené a praktické řešení v dnešních moderních kuchyních. Foto: Martin Zeman

Vinyl: Podlaha přízemí se skvěle osvědčila. Vinyl lepený přímo na betonovou podlahu s teplovodním vytápěním. Zrání podlah sice trošku prodloužilo dobu realizace, ale výsledek za to stojí. Foto: Martin Zeman
Pro teplo dřevostavby
Teplo v domě zajišťuje teplovodní podlahové vytápění zabudované v betonové podlaze. V přízemí je pokryta lepeným vinylem, který je perfektní. Trošku zklamáním je pak laminátová podlaha v horním patře. Akusticky to přeci jen není to pravé ořechové, zejména když vstává někdo z nás dřív. Chození po ní je prostě slyšet.
Zdrojem tepla pro topení i užitkovou vodu je elektřina. Velkou změnou je pro nás léto – uvnitř domu je příjemně. Pokud zatáhneme žaluzie a přes den nevětráme, v domě je dobře. Velký rozdíl v porovnání s našimi zkušenostmi z podkroví. Zkrátka je zde po celý rok stabilní teplota – jak v létě, tak v zimě.

obr.: Konstrukční systém ze dřeva není nijak patrný, což bylo naším záměrem. Foto: Martin Zeman
Potěšení z nového
Po dlouhé době teď konečně máme hotovou terasu – dokončenou zámkovou dlažbu a moc si ji užíváme. Co nevidět přibude i kovová pergola, která celé posezení doladí. Považujeme si také horní koupelny a kuchyně. Tepelné stability uvnitř v zimě i v létě. Zkrátka si užíváme celý dům. Je to něco úplně jiného. Už není třeba nikam prchat.

Foto: Martin Zeman

Zvolte nejhezčí dřevostavby v anketě Dřevostavby roku
Pomozte nám zvolit nejhezčí dřevostavby! Každý rok vyhlašujeme čtenářskou anketu Dřevostavba roku, ve které soutěží domy představené v časopisech DŘEVO&stavby a sruby&roubenky. V anketě nevyhrávají pouze soutěžící, ale i hlasující účastníci. Hlasujte a získejte atraktivní ceny...
Hlasovat v anketě
Komentář redaktorky
Baví mě rozmanitost cest vedoucích k bydlení, jež si majitelé pochvalují a kde se jim dobře žije. A taky flexibilita konstrukčních systémů ze dřeva, která uspokojí milovníky přírodních materiálů i ty, kteří raději dřevostavbu v utajení a v interiéru si užijí bílou barvu, kov, sklo, vinyl a další podobné materiály. Montované dřevostavby mě také vždycky udiví rychlostí realizace. I v tomto případě byl dům připraven k nastěhování za čtyři měsíce, nepočítáme-li betonování základové desky. A to není vůbec špatné.

Ing. arch. Lucie Němcová
redaktorka

Koupelna: Tanec kovu, skla a keramiky v šedé a bílé. Koktejl barev a materiálů, který se prolíná celým domem. Ne každá dřevostavba o sobě dává vědět – ať už uvnitř, nebo vně. foto: Martin Zeman
Komentář projektanta
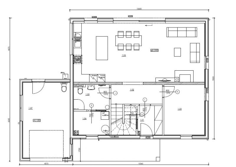
Tento dům vycházel z konceptu projektového domu KLASIK 148. Projekt prošel určitými změnami, přibyla garáž, cihlový obklad a zastřešení vchodu. Vnitřní dispozice byla také upravena na základě přání a požadavků klientů. Vlastní stavba a realizace probíhala velice dobře a lehce, nechyběly pravidelné kontrolní dny, kde bylo budoucím majitelům průběžně vysvětlováno vše potřebné. Dobrá spolupráce se, doufejme, promítla i do dokončené dřevostavby a je tak naplněn další sen o domě se zahradou.

Petr Podlaha
ALFAHAUS s.r.o.
Technické parametry
- Typ domu: nízkoenergetický
- Zastavěná plocha: 123 m2
- Užitná plocha: 178 m2
- Konstrukční systém: ALFADIFU (montovaná dřevostavba)
- Teplo a větrání: teplovodní podlahové vytápění včetně regulace bez nuceného větrání
- Součinitel prostupu tepla stěnou: U: 0,161 W/m2K
- Projekt: www.projektydomu.cz
- Realizace: ALFAHAUS s.r.o., www.alfahaus.cz, 2016



Zaujaly vás tyto moderní typové domy? Zašlete dodavateli dotaz nebo nezávaznou poptávku!
Společnost ALFAHAUS s.r.o. se specializuje na nízkoenergetické a pasivní montované dřevostavby, které projektuje na míru individuálním požadavkům zákazníků, což je zárukou špičkového poměru mezi užitnou hodnotou a vlastní cenou nízkoenergetického domu. Firma také nabízí typové projektové domy. Zatímco dřevostavby řady KLASIK představují designové projektové domy určené pro náročnejší klienty, řada EKONOMY je určená zejména mladým rodinám jako startovací bydlení.
Firma je členem Asociace dodavatelů montovaných domů.
Zaslat dotaz nebo nezávaznou poptávku
Nejnovější články v kategorii “Návštěvy dřevostaveb”
-
Zrcadlová roubenka na soutoku
Majitel této roubenky – říkejme mu třeba Martin – měl jasný cíl: postavit svým dospělým dětem dům, kam by mohly o víkendech jezdit a být mu tak i s vnoučaty nablízku. A aby to…
-
Dřevěný domov v krajině rozlehlých luk
Tento příběh připomíná dokonalou pohádku o tom, kterak Kateřina a Jiří našli svůj vytoužený klid v podhůří Krkonoš. Jejich pozemek o rozloze dvaceti tisíc metrů čtverečních je…
-
Dávno splněný sen v podobě patrové dřevostavby na míru
Některé plány a nápady potřebují čas, aby mohly uzrát. Hluboko zapustit kořeny a trpělivě čekat na tu správnou dobu. Jako v tomto případě – poprvé totiž Milan na „svou"…
-
Dřevěná vila schoulená v náručí krajiny
Každý dům nevyhnutelně mění krajinu – jakým způsobem, to už záleží na jeho majitelích. Některé stavby přetvářejí okolí podle svého obrazu, jiné se naopak snaží splynout. A…












Dodavatelskou společnost ALFAHAUS s.r.o. jsme vybrali na veletrhu dřevostaveb v pražských Holešovicích. Bylo nám sympatické, že se jedná o menší firmu. Následovala návštěva některých jejich realizovaných dřevostaveb a výroby a bylo rozhodnuto. Zvolili jsme si typový projekt, ve kterém jsme upravili některé dispoziční detaily. Realizace domu začala základovou deskou již v listopadu. Samotnou dřevostavbu začali montovat v lednu z připravených panelů a 1. května jsme se stěhovali. Dům byl v tu chvíli až na pár detailů kompletně hotový. Zkrátka si užíváme celý dům. Je to něco úplně jiného. Už není třeba nikam prchat.
Vytvořeno v xart.cz