Dana D. Daňková | Pátek, 20. listopad 2020 |
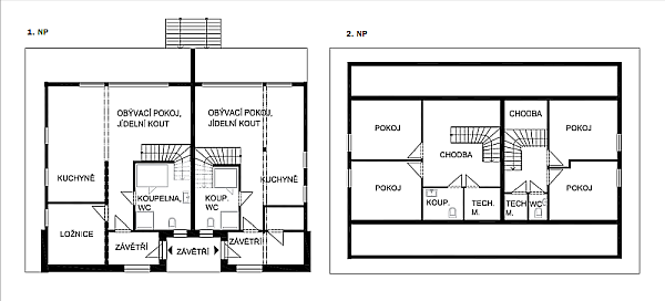
V poloroubence pobývají Michaela a Tomáš již rok. Obklopeni šumavskou přírodou a tichem relaxují o víkendech po každotýdenním shonu běžných dní. Dům je rozdělen na dvě téměř identické poloviny. A to nejen z hlediska materiálu a konstrukce, dvojakost je i v dispozicích. Jako siamská dvojčata jsou spojeni dva shodní jedinci - dva vchody do obývacího pokoje s kuchyní a jídelnou, dvě koupelny, dvoje schody, dvakrát dva pokoje v podkroví...
Představu měli jasnou - byla to již druhá stavba, takže věděli, co chtějí a co již ne. Firmu vybrali na základě průzkumu trhu a referencí a ukázalo se, že dobře. „Důvodem výběru firmy byl i kvalitní rakouský materiál," říká Tomáš, „byli jsme přesvědčeni, že stavba z vysušeného dřeva bude rychlá a dům stabilní. Složitější byla pouze příprava, protože původně jsme si dům nechali projektovat od jiné firmy, projekt tedy bylo třeba přepracovat."
Poloroubenka na vysněném pozemku u Lipna
„Pozemek jsme koupili od obce, byla to spíše náhoda - obec nám tuto parcelu nabídla", pokračuje Tomáš, „a protože se nám místo na první pohled líbilo, koupili jsme ji. Chtěli jsme nějaké místo blízko Lipna, ale ne v turistickém centru přímo u jezera, ale spíše někde na okraji. Tohle údolí nás nadchlo i tím, že na rozdíl od Lipna, kde hodně fouká a je tam chladněji, je v závětří a současně je zde o tři nebo čtyři stupně tepleji, než u vody."
Stavět začali na podzim 2015. V létě toho roku byla dokončena základová deska, prvního října zahájila firma hrubou stavbu a v únoru 2016, když byly hotové podlahy, už tam natěšeně spali ve spacácích i s dětmi, pro něž to bylo velké dobrodružství. V květnu sice ještě nebyla stavba dokončena do všech detailů, avšak byla již obyvatelná, takže rodina začala dům využívat, kdykoli to bylo možné.
„My jsme samozřejmě chtěli dřevěný dům", vysvětluje Tomáš, „ve dřevě se krásně spí i bydlí, dům pěkně voní, navíc jsme v příjemném místě, kde je zatím absolutní klid. V malé osadě je trvale osídlených jen několik chalup, tudíž se zde velmi dobře relaxuje. I když k odpočinku bylo zatím jen málo příležitostí." „Ano, loni byly zdejší pobyty spíše pracovní“, přidává se Michaela, „protože jsme dodělávali, co bylo potřeba.“
obr.: Terasa obou polovin domu plynule a zcela přirozeně přechází v trávník a potažmo zahradu, kde převažuje volný prostor, který mohou využívat především děti. V zahradě je vysazen živý plot z habrů, na pozemku nad domem pak jehličnany. Foto: Martin Zeman
Vertikální poloroubenka
Konstrukčně jde o poloroubenku, ovšem ne klasickou se spodní zděnou a horní dřevěnou částí. Severní stěna a spodní příčka, oddělující obě poloviny domu, jsou zděné. Všechny ostatní obvodové stěny jsou roubené a příčky tvoří sendvičové konstrukce.
„Od začátku jsme plánovali, že to bude dvojdomek, který budeme využívat jako víkendové bydlení a případně pronajímat. Později by se mohl změnit v naše trvalé bydlení. Původně jsme nechtěli podkroví, ale protože zdejší oblast spadá do chráněné zóny, museli jsme dodržet sklon střechy, kromě toho by vycházel dům velmi neekonomicky kvůli velké nevyužité půdě. Takže jsme se rozhodli pro obytné podkroví a aby byl prostor co nejvíce otevřený a vzdušný, zvolili jsme nadkrokevní izolaci. Komunikace s firmou byla příjemná, od počátku panovala výborná souhra – doporučili technické řešení, které jsme dokázali přijmout a raději jsme zvolili cestu kvalitní a prověřené realizace. Jediné, v čem jsme se neshodli, byly ochozy kolem domu – terasy. Oproti navrhované železné konstrukci jsme chtěli dřevěnou. Vypadá velmi dobře, a životnost snad bude také v pořádku."

obr.: Při návrhu umístění stavby na pozemku Michaela s Tomášem nechtěli situovat dům v linii se silnicí, rozhodli se respektovat svah a kopírovat terén. Foto: Martin Zeman
obr.: Majitelé jsou velmi spokojeni s prosklenými jižními stěnami, které mohou otevřít a spojit interiér s exteriérem. Dům tak získá vzdušnost a jeho obyvatelé dokonalý, ničím nerušený výhled do přírody... Foto: Martin Zeman

obr.: Masivní dřevostavba je vlastně les v jiné podobě. Foto: Martin Zeman
Ekonomický a hospodárný
Podloží je skalnaté, a tedy stabilní. Přivedena je sem pouze elektřina, vodu mají majitelé z vlastní studny - vrt je hluboký 37 metrů, naštěstí vydatný a kvalitní. Voda se střechy je svedena do vsakovací jímky. Vytápění je zajištěno tepelným čerpadlem systém vzduch/voda, přičemž dům je rozdělen na dva samostatné topné okruhy.
„V přízemí máme naistalováno podlahové topení, v podkroví jsou radiátory. V zimě jsme radiátory zapínali spíše z důvodu cirkulace vzduchu, protože když začne topit podlahové topení, stoupá teplý vzduch vzhůru a tlačí dolů chladný vzduch shora. A protože prostor je zde velmi otevřený, docházelo k nežádoucí cirkulaci. Než se dům prohřeje, je nezbytné tedy topit i v podkroví. Ale celkově jsme zatím příliš topit nemuseli."
Protože je dům situovaný k jihu, přispívají k tepelnému komfortu i hliníková okna s izolačním dvojsklem, která propouštějí do domu teplo ve slunečných dnech i v zimě.
Foto: Martin Zeman

Foto: Martin Zeman
obr.: Dvorana a obytný prostor s kuchyní, jídelnou a obývacím pokojem v jednom. Stačí krok a obejme vás šumavská krajina. A když prší, posunete jen trochu židli a říkáte si, jak jste na déšť jako ta chytrá horákyně pěkně vyzráli... Foto: Martin Zeman
obr.: Chtěli dřevěný dům. Dřevěný dům s velkou terasou, kde najdou příjemný koutek pro posezení i v největším horku. Foto: Martin Zeman
Co bychom dnes udělali jinak...
Příště už bychom nekombinovali zdivo s dřevem. Přinášelo to určité konstrukční problémy, které bylo nutné řešit, současně se tím i prodražila stavba, protože všechny obklady se musely dělat truhlářsky na míru. Ale kdyby byl dům celý dřevěný, bylo by možná dřeva již příliš... Také nám tu trochu chybí kachlová kamna, ale protože chceme dům pronajímat a ne každý v nich umí dobře topit, zatím jsme je nepořizovali.
obr.: Majitelé zvolili k zateplení střechy nadkrokevní izolaci, aby zachovali v podkrovním prostoru co největší vzdušnost a dostatek světla. Podařilo se jim tak též setřít dojem „množství dřeva" v prostoru. Foto: Martin Zeman
obr.: V prostorné koupelně si celá rodina nejvíce užívá velkorysý sprchový kout. Šedý odstín obkladů je v ideální symbióze s bílými stěnami a dřevem stropu. Foto: Martin Zeman
Který kout naší poloroubenky máme nejraději?
Nejvíce asi oceňujeme terasu, která vede okolo celého domu. Když fouká nebo je velké horko, máme kam se schovat a můžeme přitom zůstat venku. V domě, kde trvale bydlíme, máme naopak terasu do tvaru písmene „L" a na jih, před sluníčkem tak nikam neutečeme. Proto jsme při návrhu tohoto domu terasu dobře promysleli. O zastřešení jsme zatím neuvažovali. Díky ní jsme od března víceméně stále venku - když alespoň trochu svítí sluníčko, lze na ní pobývat, i když je ještě okolo sníh. Navíc tmavá stěna více akumuluje teplo, takže je u ní příjemně. A dále nám vyhovuje bezbariérový sprchový kout, není tam žádný schod ani plastová vanička, je velmi prostorný, a skleněné stěny dodávají koupelně vzdušnost...

Michaela a Tomáš s rodinou
majitelé
Technické parametry
- Zastavěná plocha: 199 m2
- Užitná plocha: 105,41 m2
- Konstrukční systém: poloroubená stavba, vysušené, lepené BSH hranoly od firmy Hasslacher
- Ošetření stěn: přírodní olej, přírodní lazura Würth
- Teplo: tepelné čerpadlo Vaillant vzduch/voda
- Součinitel prostupu tepla stěnou: 0,3 W/m2K
- Projekt: Kanadské sruby Tábor
- Realizace: OK PYRUS, s.r.o., ww.okpyrus.cz www.lipno-dvorecna.cz


Chcete si také postavit dřevem vonící roubenku? Zašlete dodavateli dotaz nebo nezávaznou poptávku!
Po svém založení v roce 1992 se společnost OK PYRUS specializovala na stavební průzkumy a opravy (sanace) historických dřevěných konstrukcí a šikmých střech. Od roku 1995 se jako první firma v ČR zabývá projektováním a výstavbou srubových domů z kulatin a následně i moderních roubenek ze sušeného, lamelového dřeva.
OK PYRUS je firma se specializací na certifikované dřevostavby z masivu - sruby a roubenky. Pro toho, kdo chce bydlet zdravě a s nízkými náklady na vytápění, má řešení: vyvinula novou technologii pro realizaci nízkoenergetických roubenek.
Zaslat dotaz nebo nezávaznou poptávku
Vaše komentáře (4)
Nejnovější články v kategorii “Návštěvy dřevostaveb”
-
Zrcadlová roubenka na soutoku
Majitel této roubenky – říkejme mu třeba Martin – měl jasný cíl: postavit svým dospělým dětem dům, kam by mohly o víkendech jezdit a být mu tak i s vnoučaty nablízku. A aby to…
-
Dřevěný domov v krajině rozlehlých luk
Tento příběh připomíná dokonalou pohádku o tom, kterak Kateřina a Jiří našli svůj vytoužený klid v podhůří Krkonoš. Jejich pozemek o rozloze dvaceti tisíc metrů čtverečních je…
-
Dávno splněný sen v podobě patrové dřevostavby na míru
Některé plány a nápady potřebují čas, aby mohly uzrát. Hluboko zapustit kořeny a trpělivě čekat na tu správnou dobu. Jako v tomto případě – poprvé totiž Milan na „svou"…
-
Dřevěná vila schoulená v náručí krajiny
Každý dům nevyhnutelně mění krajinu – jakým způsobem, to už záleží na jeho majitelích. Některé stavby přetvářejí okolí podle svého obrazu, jiné se naopak snaží splynout. A…












Vytvořeno v xart.cz