Lucie Němcová | Neděle, 15. listopad 2020 |
Rostislav s Petruší trénovali svoji fyzičku na schodišti do třetího patra bytového domu dlouhá léta, až se jednou pohár naplnil a dozrál čas na nový domov; přízemní a pohodlný. Že bude konstrukčně ze dřeva, bylo jasné jako facka, protože dřevostavba je prý „nejlepší barák".
Jsem profesí stavař a určité prostředí oboru a postupy znám. Dřevostavba je podle mě ideální. Je rychle postavená a parametry stěn jsou – co se týče energetických úspor a kvality vnitřního prostředí – skvělé.
První volba, nejlepší volba
Bydlení v bytě s padesáti schody už nás dost vyčerpávalo. Zkuste si do nich minimálně třikrát denně vynést desetikilového psa nebo plné tašky s nákupem na čtrnáct dní. Jezdili jsme pravidelně do centra vzorových domů v Brně a nakukovali, co by se nám tak líbilo. Chuť postavit si dřevostavbu rostla. Vlastně nám hned zpočátku padl do oka konkrétní dům, ale prozkoumávali jsme dál. Nasbírané zkušenosti ale jen potvrzovaly první volbu. Opět se ukázalo, že co se líbí na první dobrou, je to pravé.

Regulace: Podle místních předpisů musí být v dané lokalitě pouze přízemní domy. Zástavba je na okraji obce a záměrem je, aby plynule přecházela v krajinu. Foto: Martin Zeman
Den ve vzorkovně
Padlo rozhodnutí realizovat montovaný dům z panelů, firma byla vybraná a mohli jsme začít ladit konkrétní podobu a detaily. V září jsme podepsali smlouvu a zhruba za šest týdnů bylo možné zahájit realizaci základové desky. Do té doby jsme ale ještě dolaďovali typový projekt a vybírali veškeré vybavení ve vzorkovně – všechno možné od barev stěn po baterie v koupelně.

Bazén: Když už, tak komfort se vším všudy a místo, kde se dá svlažit i protáhnout tělo.. V těsné blízkosti bazénu je také prostor pro grilování a zahradní domek pro úschovu potřebného náčiní. Foto: Martin Zeman
Úpravy na tělo
Pár věcí jsme v domě chtěli jinak. První a zásadní byl komín pro budoucí krbová kamna (jak říkávala babička: „barák bez komínu a kamen není barák, co když přijde válka"). Pak také větší okno do ložnice, to aby nás ráno probouzelo slunce, a chtěli jsme i okno do garáže. U té mohu s odstupem říci, že jsme ji měli udělat širší; špatně se totiž vylézá z auta.
Změnili jsme také terasu – je prodloužena až k ložnici, dům se dá tedy oběhnout kolem dokola po zpevněné ploše a suchou nohou, protože je pod přesahem střechy. Vyjít ráno na terásku přímo z postele není problém. To vymyslela moje žena a je to bezvadné řešení.

Střecha: Dešťová voda z velké střešní plochy steče jedna dvě a je uschována pro zalévání v nádrži velké čtyři kubíky. Foto: Martin Zeman

Terasa: Pohodlná teráska kolem domu krytá přesahem je praktická a pohodlná. Ráno z ložnice můžete rovnou vyjít ven protáhnout se a nadýchat čerstvého vzduchu. Foto: Martin Zeman
Šokující přesnost dřevostavby
Základová deska nás nečekaně zdržela. Buď sněžilo, pršelo nebo mrzlo a realizace se stále oddalovala. Montáž domu nakonec začala až šestého dubna. Pak se ale rozběhl koncert. Nikdy jsem neviděl, že by se jednotliví řemeslníci dokázali vystřídat v rámci jednoho dne a ihned navázat, někdy i v řádu hodin.
Chtěl jsem být neustále na místě a sledovat dění, až mě někdy řemeslníci vyháněli ven, abych se jim tam nepletl. Někdy byla preciznost taková, že jsem to považoval až za zbytečné, to když sádrokartonáři vyměřovali každý milimetr. Ale prý je to důležité pro následnou montáž, kdy řemeslníci přesně na milimetr ví, kam se trefit šroubkem. A taky že ano.
Tahle přesnost mě fascinuje dodnes. Její důležitost se ukázala i později, při kompletaci kuchyně. Přivezli ji bez předchozího vyměření a rovnou osadili, bez ořezu desky. Automaticky mají k dispozici výkresy domu a vše připravili, aniž by zde předtím jedinkrát byli. To je v mém světě stavařiny a zděných staveb nepředstavitelné.

Jídelní kout: Posezení plynule navazuje na kuchyni, takže není třeba jídlo někam přenášet. Foto: Martin Zeman
Nejlepší vychytávka v dřevostavbě
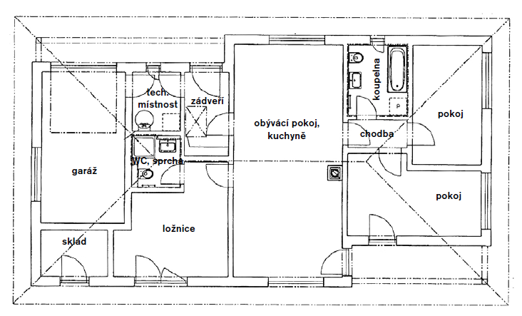
Vnitřní dispozice zůstala téměř stejná jako v původním projektu – hlavní je obývák s kuchyní, kde jsem si jako bývalý obkladač vydobyl i kus dlažby v kuchyňské podlaze a obložil komín ke kamnům. Musí to být to první, o co člověk zavadí očima, když vstoupí. V sousedství ložnice je menší koupelna se sprchovým koutem a pak je zde ještě jedna větší s vanou.
Dvě toalety jsou k nezaplacení, na to nedáme dopustit. Snad jediné, co nás občas trápí, je taková zdejší specialita – velký vítr, který vane od severozápadu přes otevřené pláně a krásně se sklouzne přes mělké údolí. Vymýšlíme, jak odstínit terasu a už mám v hlavě plán s paravánem.
Teď se ale těšíme, až dokončíme zahradu a budeme si moci lehnout k bazénu a odpočívat. Schůdky k němu jsou díky bohu ty jediné schody, které teď doma musíme zdolávat.

Obývací pokoj: Tradiční obytný prostor s dominantou krbových kamen s komínem. Kamenný obklad rukou majitele zde prostě nemohl chybět. Foto: Martin Zeman

Ložnice: Jedna z koupelen je přímo v ložnici majitelů. Foto: Martin Zeman
Co si majitelé na dřevostavbě pochvalují
- Terasu orientovanou na severovýchod – ideální pro letní období, protože není třeba stínění.
- Dvě toalety – komfort k nezaplacení, ano, i ve dvou lidech!
- Sušičku – už žádné sušáky, věšení a sundávání prádla.
- Tepelnou stabilitu domu – ať je venku +30 °C nebo -20 °C.
- DVD s veškerými informacemi o rozvodech v domě, třeba když je třeba přidělat obrázek.

Rostislav a Petruše
majitelé dřevostavby

Koupelna: Větší a romanticky řešená koupelna s vanou. Foto: Martin Zeman
Komentář redaktorky
Tato montovaná panelová dřevostavba potvrdila tvrzení o rychlé realizaci a pozadu nezůstává ani s kvalitou. Že bude tento systém tolik bavit o generaci starší stavebníky, navíc z oboru stavebnictví, mě mile překvapilo. Není pochyb, že dům je svou praktičností a nároky na údržbu jako stvořený i na stáří, zvlášť v této bezbariérové podobě. Jsem ale zvědavá, zda si majitelé nevzali příliš velké sousto ve velikosti zahrady. Každopádně děkuji za osvěžující a srdečnou návštěvu!

Ing. arch. Lucie Němcová
redaktorka
Všechny fotografie dřevostavby k vidění ve foto videospotu na YouTube kanále
Technické parametry
- Typ domu: nízkoenergetický
- Zastavěná plocha: 134,10 m2
- Užitná plocha: 107,77 m2
- Konstrukční systém: montovaná panelová dřevostavba Thermo Protect Premium
- Skladba stěny: rámová konstrukce s dvojitým opláštěním a termofasádou v difuzně uzavřeném systému
- Teplo a větrání: plynový kondenzační kotel
- Součinitel prostupu tepla stěnou: U = 0,14 Wm2/K
- Projekt: RD Project & Partners s.r.o
- Realizace:Haas Fertigbau Chanovice s.r.o., www.haas-fertigbau.cz


Zaujala vás tato dřevostavba a zajímala by vás její cena? Zašlete dodavateli dotaz nebo nezávaznou poptávku!
Společnost Haas Fertigbau se specializuje na výstavbu certifikovaných rodinných a bytových domů v běžném, nízkoenergetickém a pasivním standardu v provedení od hrubé stavby až po stavbu na klíč.
Původně ryze česká výrobní a stavební společnost s prvorepublikovou tradicí se v devadesátých letech 20. století stala součástí rodinného koncernu Haas Group, který s více než 30 pobočkami působí po celé Evropě.
Firma je členem Asociace dodavatelů montovaných domů. Veškeré prvky a konstrukce používané při výstavbě rodinných domů Haas Fertigbau jsou atestovány a certifikovány v ČR i v zahraničí.
Zaslat dotaz nebo nezávaznou poptávku
Vaše komentáře (4)
Nejnovější články v kategorii “Návštěvy dřevostaveb”
-
Zrcadlová roubenka na soutoku
Majitel této roubenky – říkejme mu třeba Martin – měl jasný cíl: postavit svým dospělým dětem dům, kam by mohly o víkendech jezdit a být mu tak i s vnoučaty nablízku. A aby to…
-
Dřevěný domov v krajině rozlehlých luk
Tento příběh připomíná dokonalou pohádku o tom, kterak Kateřina a Jiří našli svůj vytoužený klid v podhůří Krkonoš. Jejich pozemek o rozloze dvaceti tisíc metrů čtverečních je…
-
Dávno splněný sen v podobě patrové dřevostavby na míru
Některé plány a nápady potřebují čas, aby mohly uzrát. Hluboko zapustit kořeny a trpělivě čekat na tu správnou dobu. Jako v tomto případě – poprvé totiž Milan na „svou"…
-
Dřevěná vila schoulená v náručí krajiny
Každý dům nevyhnutelně mění krajinu – jakým způsobem, to už záleží na jeho majitelích. Některé stavby přetvářejí okolí podle svého obrazu, jiné se naopak snaží splynout. A…












Vytvořeno v xart.cz