Lucie Němcová | Úterý, 25. srpen 2020 |
Dva roky hledání místa, dva roky příprav na realizaci, která nakonec trvala pouhý půlrok. Že je to celkově dlouhá doba? Možná. Když se pak ale člověk prochází hotovým domem, vnímá každý promyšlený a propracovaný detail, vidí, jak do sebe vše zapadá a vytváří harmonický celek, mluví se spokojenými majiteli, kteří se nemuseli potýkat s žádnými významnými problémy během stavby, a podařilo se jim téměř do puntíku naplnit jejich představy, nezbývá než uznat, že dobrý dům musí (v hlavě a na papíře) prostě uzrát.
Jsme oba z hor a o lokalitě pro naše bydlení jsme měli jasnou představu. Najít ji trvalo zhruba dva roky. Tohle místo je součástí zahrádkářské kolonie. Nerostou zde velké domy, prostor to nedovoluje a to nám konvenuje. Navíc je tu vzrostlá zeleň. Nestavíte na poli, kde nic není a všechno musí vyrůst, což trvá třeba 15, 20 let.
V době koupě pozemku jsme bydleli v bytě, a protože vůbec nejsme bytoví, rozhodli jsme se postavit si naši „boudu" – zahradní domek 8 × 4 metrů. Skoro dva roky jsme zde bydleli a dá se říct, že nám nic nechybělo. Střádali jsme vše potřebné pro stavbu domu. Chtěli jsme mít i všechny finanční prostředky pohromadě, protože v průběhu realizace už není možné šetřit, stavba dřevostavby jde rychle.
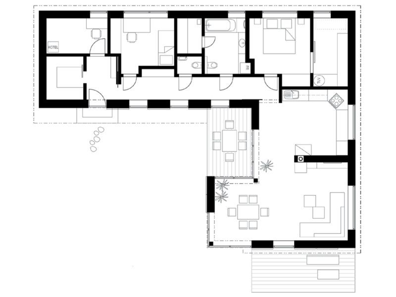
Dřevostavbu jsme si nakreslili sami
Byli jsme takový obtížný klient, dům jsme si nakreslili sami. Přesně jsme věděli, jak by měl vypadat. Během diskuzí s paní architektkou jsme změnili jen asi dvě věci. Primárně jsme architekta vlastně ani nehledali, spolupráce se rozvinula na základě reference námi vybrané dodavatelské firmy. Úzce s tímto ateliérem spolupracují, architekti znají daný konstrukční systém a umí s ním ve statické i projektové přípravě dobře pracovat. Celkově je jejich spolupráce během celého procesu od plánování po realizaci zaběhnutá a prověřená, což potvrzuje i naše zkušenost a výsledek.

Foto: Martin Zeman
Jedinečný materiál dřevostavby
Dřevostavba je příjemná, teplá a dřevo je nám blízké. Je to materiál, který se neokouká a velmi příjemně se v něm bydlí. Nic není studené. I když je venku zima, zatopíte v kamnech a do půl hodiny je zde teplo. V létě tu díky venkovním žaluziím zůstává chládek, zvlášť když jsme důslední a nepouštíme dovnitř teplý vzduch.

"Panely vyžadují opravdu přesné plánování, ale díky tomu během realizace nevznikaly žádné problémy a zdržování."

Foto: Martin Zeman
Bungalov uprostřed zahrady
Vyrostli jsme oba v domě, takže víme, co nám vyhovovalo a naopak vadilo. Věděli jsme, že chceme bungalov, hodně zapuštěný do zahrady. A taky přístup do zahrady odkudkoli z domu, abychom s ní během celého roku neztráceli kontakt. Chtěli jsme co nejvíce prosklený a otevřený dům. Mimo jiné proto, že máme mnoho pokojových rostlin.
Úložné prostory jsou vymyšleny tak, aby zde nemusely být skříně. Jsou po ruce, ale zároveň schované. Nejsme úplně fanoušci otevřených obytných prostor – spojených kuchyní s obývacím pokojem. Všimla jsem si, že mnozí jsou pak bezradní se zařizováním takového interiéru. Není se čeho chytit. Končí to třeba gaučem v prostoru, kde se ale člověk nikdy nebude cítit dobře.
Postrádá to útulnost, není to ten bezpečný kout, nejste chráněni. Takhle jsme to nechtěli, proto je mezi kuchyní a obývákem částečná stěna. Dopředu jsme přesně zvažovali, kam dáme nábytek. Opravdový komfort jsme si dopřáli saunou. Je to takový náš pravidelný rituál, který si moc užíváme.

Terasa: Na útulnou krytou terasu zasvítí letní slunce až po třetí hodině. Do té doby je zde krásný chládek. Potřeba dalšího stínění zde tedy nevzniká. Foto: Martin Zeman

Foto: Martin Zeman
Sázka na dobrou izolaci a precizní detail
Zvažovali jsme i pasivní dům s rekuperací, ale nakonec jsme ho zavrhli. Máme pořád otevřená okna a přísun čerstvého vzduchu tímto způsobem je pro nás základ. Také ekonomicky nám to nevycházelo zase tak výhodně; ani nepříliš levná rekuperace ani čerpadlo (při naší malé spotřebě). Navíc to někdo musí vyrobit a někam dovézt, takže ekologie je taktéž sporná. Nakonec jsme zvolili zlatou střední cestu – nízkoenergetický standard, dobrou izolaci a provedení. Takhle nám to stačí, jsme v tomto ohledu maximálně spokojení.

Obývací pokoj: Kamna, která prošla testovacím provozem již v malé dřevostavbě na pozemku před vznikem samotného domu, bezvadně slouží dál. Polička pod televizí je vlastní výroba z kamenů z rodného kraje a pohovka česká výroba podle vlastního návrhu. Nečekaně levnější než mnohé hotové kousky. Foto: Martin Zeman

obr.: V supermoderním domě se snadno stane, že jsou majitelé v celém prostoru najednou ti nejméně dokonalí. Foto: Martin Zeman
Tady je difuzně otevřeno
Dlouho jsme váhali, zda zvolit difuzně uzavřenou, nebo otevřenou skladbu stěny. Nikdy bychom nevěřili, že z hlediska klimatu v interiéru je mezi nimi tak velký rozdíl, kdybychom si to nezažili na vlastní kůži v našem zahradním domku. V prvním případě musíte mít pořád otevřené okno, je to jako v igelitovém pytli. Nyní máme difuzně otevřenou konstrukci – masivní dřevěný panel spojovaný šrouby a dřevovláknitou izolaci. Vzduch je zde úplně jiný.

Kuchyně: Kdo by to byl na první pohled řekl, že kuchyni vlastnili majitelé dřív, než byly hotové základy domu. Zkrátka jim padla do oka, a když zjistili, že její výroba už nebude pokračovat, zakročili (tedy zakoupili). Dnes jsou nadšeni, že tento krok učinili. Foto: Martin Zeman

Nábytek: Kvalitní dubové dřevo ošetřeno olejem a česká výroba. Na některé kousky interiérového vybavení si majitelé počkali, než našli to pravé, zato teď do sebe vše krásně zapadá. Majitelé chtěli k jídelnímu stolu pohodlná křesílka. Když se hoduje a štěbetá, Češi prostě většinou sedí u jídelního stolu, tak ať je to příjemné. Foto: Martin Zeman
Interiér z českých zdrojů
Interiérové řešení je také podle našich idejí. Součástí plánování dispozice bylo místo pro rostliny. Jsou to velké solitérní kousky, které vyžadují dostatek prostoru. Svoje místo mají hlavně v jídelně, ty menší pak na policích v chodbě. Kytky prostor jedinečně zabydlí, takže pak lze mít minimum nábytku.
Některé části jsme řešili, až když dům stál, abychom stoprocentně vnímali daný prostor. Prioritou bylo najít co nejvíc produktů od lokálních firem. Jsme v tomhle takoví patrioti, a když se podaří získat něco pěkného původem z Čech, máme vždycky dobrý pocit.

Sauna: Dřevo se prolnulo také do koupelny a vytváří s šedivou a bílou skvělé trio. Bonbonkem celého domu je sauna, malé a zasloužené wellness pro majitele. Foto: Martin Zeman
Jak se vám bydlí?
Bydlíme tu necelý rok a jsme moc spokojeni. Bylo až magické vidět, jak se zhmotňují naše promyšlené vize, které jsme tak důvěrně znali. Když máme zmínit konkrétní věci, které si na domě užíváme, vlastně nevíme, líbí se nám všechno. Teď se můžeme těšit, jak se dům bude proměňovat spolu s rostoucí zahradou, která bude třeba za dest let vypadat tak, jak je naplánovaná.

Foto: Martin Zeman
Komentář architekta
V čem se lišil průběh navrhování a realizace tohoto domu?
Majitelé přišli s vlastním půdorysem a představami, nějaký čas jsem se snažila „protlačit" do návrhu svůj názor na bydlení, ale marně. Měla jsem třeba problém s pokoji na sever a chodbou k jihu nebo přístupem do obýváku přes otevřenou kuchyni... Majitelé si ale své myšlenky „obhájili" a pevně si za nimi stáli. Nakonec se nám podařilo vyladit se na stejnou vlnu. Snažili jsme se být těmi nejlepšími průvodci a přinést zajímavé nápady z našich jiných návrhů. Bylo trochu neobvyklé, že během návrhu paní majitelka hodně přemýšlela o umístění rostlin na různých místech v interiéru – je to její velký koníček.
Bylo náročné připravit projekt klientům, kteří mají hodně přesnou představu svého domu?
Upřímně, klient s vlastním půdorysem je spíš noční můra každého architekta, ale když se o návrhu spolu začneme bavit a zjišťujeme, že ono to opravdu funguje a vše je perfektně promyšlené, tak prostě klobouk dolů. Nezbývá, než odhodit ego a pomoci na svět krásnému domu. I tak nás čekala spousta práce na ztvárnění hmoty domu či řešení pohledových konstrukcí.
Co konkrétně máte na této stavbě nejraději?
Mám moc ráda skryté dveře zapuštěné v dřevěné stěně v hale a přiznané masivní trámy v obytném prostoru. Ale asi nejbáječnější je umístění kryté terasy v zálivu u kuchyně. To ten prostor tak pěkně prolamuje... Jsem nadšená, že majitelé přistoupili i k výběru vybavení s velkým citem a o zahradě se snad ani zmiňovat nemusím.

Ing. Irena Truhlářová
ARCHCON atelier s.r.o.

Foto: Martin Zeman
Komentář dodavatele
Díky investorům byl tento projekt jedinečný. Práce vás baví, když pracujete s lidmi, kteří mají daný cíl a jdou si za ním. Jasná představa majitelů stojí i za materiálem na dřevěnou fasádu. Obkladové palubky jsou hodně široké, což jsme majitelům rozmlouvali vzhledem k rozměrovým změnám během ročního období a možné tvarové nestálosti.
Když však přistoupíte ke dřevu a k jeho vlastnostem v jeho přirozené podobě, budete spokojeni, a pokud vím, tak majitelé jsou velmi spokojeni a mně se fasáda také moc líbí. Jsem rád, že se majitelé nesnažili potlačit dřevo, ale nechali ho přirozeně vyniknout. V kombinaci s pěknou zahradou pohled na výsledek zahřeje. Přeji majitelům spokojené bydlení.

Ing. Jaroslav Jiruška
DŘEVOSTAVBY BISKUP s.r.o

Ložnice: Severní strana pro spánek? Proč ne. O nějaký ten stupeň nižší teplota je vítána a okno stačí pouze malé, aby na severu nevznikaly velké tepelné ztráty. Díky jeho výšce a okolní zeleni je vyřešeno i soukromí. Samozřejmostí je šatna při ruce. Foto: Martin Zeman
Komentář redaktorky
Někdy získávám pocit, že už mě po těch desítkách navštívených domů nemůže nic překvapit, ale evidentně může! Třeba tento dům. A je to právě proto, že každý majitel a každá rodina do svého bydlení vnáší svůj příběh a svoji osobnost. Když si dají záležet, projeví se tato jedinečnost v návrhu i mnoha detailech. Čím lépe znají sami sebe a svoje potřeby ve vztahu k prostoru, tím lepší a osobitější dům je. Taková stavba nikdy nemůže být stejná a vždycky je něčím zajímavá. Nenásleduje vždycky parametry té nejlepší dispozice, ale specifická přání a charakter obyvatel. Takový výsledek je prostě jiný a pociťují to nakonec nejen majitelé, ale i návštěvníci.

Ing. arch. Lucie Němcová
redaktorka
Technické parametry
- Typ domu: nízkoenergetický
- Zastavěná plocha: 159,61 m2
- Užitná plocha: 142,19 m2
- Konstrukční systém: masivní dřevěné panely (DEKPANEL), pohledové i skryté krokve, dřevovláknitá tepelná izolace
- Teplo: vytápění a příprava teplé užitkové vody – elektrický kotel DAKON DALINE PTE 8, příkon 8 kW
- Projekt: ARCHCON atelier, s.r.o., www.archcon.cz
- Realizace: DŘEVOSTAVBY BISKUP, s.r.o., www.drevostavbybiskup.cz


Líbí se vám tato moderní dřevostavba a chystáte se stavět? Zašlete dodavateli dotaz nebo nezávaznou poptávku!
Historie firmy DŘEVOSTAVBY BISKUP se začala psát již před více než 25 lety. Zabývá se převážně individuální výstavbou nízkoenergetických a pasivních dřevostaveb. Díky nasbíraným zkušenostem tak kromě standardních domů realizuje i složité a unikátní projekty. Spolu s architekty a projektanty z ARCHCON atelier tvoří sehraný profesionální tým pro stavbu prémiových staveb.
Zaslat dotaz nebo nezávaznou poptávku
Nejnovější články v kategorii “Návštěvy dřevostaveb”
-
Zrcadlová roubenka na soutoku
Majitel této roubenky – říkejme mu třeba Martin – měl jasný cíl: postavit svým dospělým dětem dům, kam by mohly o víkendech jezdit a být mu tak i s vnoučaty nablízku. A aby to…
-
Dřevěný domov v krajině rozlehlých luk
Tento příběh připomíná dokonalou pohádku o tom, kterak Kateřina a Jiří našli svůj vytoužený klid v podhůří Krkonoš. Jejich pozemek o rozloze dvaceti tisíc metrů čtverečních je…
-
Dávno splněný sen v podobě patrové dřevostavby na míru
Některé plány a nápady potřebují čas, aby mohly uzrát. Hluboko zapustit kořeny a trpělivě čekat na tu správnou dobu. Jako v tomto případě – poprvé totiž Milan na „svou"…
-
Dřevěná vila schoulená v náručí krajiny
Každý dům nevyhnutelně mění krajinu – jakým způsobem, to už záleží na jeho majitelích. Některé stavby přetvářejí okolí podle svého obrazu, jiné se naopak snaží splynout. A…











Byli jsme takový obtížný klient, dům jsme si nakreslili sami. Přesně jsme věděli, jak by měl vypadat. Během diskuzí s paní architektkou jsme změnili jen asi dvě věci. Primárně jsme architekta vlastně ani nehledali, spolupráce se rozvinula na základě reference námi vybrané dodavatelské firmy. Úzce s tímto ateliérem spolupracují, architekti znají daný konstrukční systém a umí s ním ve statické i projektové přípravě dobře pracovat. Celkově je jejich spolupráce během celého procesu od plánování po realizaci zaběhnutá a prověřená, což potvrzuje i naše zkušenost a výsledek.
Vytvořeno v xart.cz