Dana D. Daňková | Středa, 21. duben 2021 |
Jsou místa, která v nás i při prvním setkání vyvolají pocit, že tam patříme. Ne všichni během života na takové místo narazíme, Leoš Mallat to štěstí měl. Jeho srdeční záležitostí je Policko, konkrétně obec s krásným názvem Slavný. Další „věcí srdce" je srub. A on tahle dvě osudová setkání spojil ve svůj životní cíl.
Se srubem ho seznámil Ernest Thompson Seton v příbězích vydávaných v Rodokapsech. Původně toužil po chaloupce u lesa, bez vody, bez elektřiny, s věkem však nároky na komfort vzrostly.
Za vším hledej ženu i za stavbou srubu
Leoš Mallat si zde pronajal statek, myšlenka na srub ho však neopustila. „Manželka mi řekla – jestli je srub tvůj sen, tak ho postav, žijeme jen jednou." A jak řekli, tak udělali a postavili si srub na míru. Prostorný, patrový srub zatím slouží jako víkendový dům, časem by se sem však majitelé chtěli přestěhovat nastálo. V duchu trampských zásad se srub také čas od času stává útočištěm okolojdoucích pocestných. „Hodně nám tady pomáhali při stavbě a i nyní pomáhají kamarádi trempíci, tady mají proto na oplátku zázemí," vysvětluje Leoš Mallat.

obr.: Srub je zapuštěný do svahu, ve spodní části vznikly relaxační prostory, je tam dílna majitele domu i technická místnost, horní podlaží je obytné. Foto: Martin Zeman
Pro potěchu ducha i těla
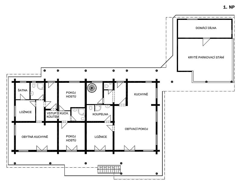
Srub je zasazený ve svahu a hlavní vstup je situován v horním podlaží v zadní části dřevostavby na úrovni terénu. Z opačné strany jde však o druhé nadzemní podlaží a lze do něj vstoupit po schodech v přední části srubu. Je zde veliká kuchyně s jídelnou a obývacím pokojem, dále ložnice, koupelna a sociální zázemí, vše bezbariérové.
„Na tomto podlaží jsou také hostinské pokoje, svou ložnici tu má i babička. Všechny pokoje jsou propojeny terasou, která je hlavním komunikačním koridorem. Díky ní máme soukromí my i naši hosté. A máme zde i snídaňové místo, v létě je tu velmi příjemně. Ke srubu nám chodí srnky a jeleni, je to kouzelný kraj. V dolní části stavby je kulečník a společenská místnost, kde se scházíme jednou za čas s kamarády. Mám tam také svou dílnu."
V tomto prostoru je též zázemí domu – v technické místnosti jsou dvě tisícilitrové nádrže k vytápění, dřevostavba má vlastní vodu a čistírnu odpadních vod, je vybavena rekuperací.

obr.: Ochoz je hlavním komunikačním kanálem v domě, lze na něj vyjít ze všech místností v patře. Domácí i hosté tak mají zajištěno soukromí. Foto: Martin Zeman

Srub navzdory
Od počátku byly se stavbou srubu problémy. Pozemek se nachází ve III. zóně ochrany CHKO Broumovsko, v zastavitelném území obce. „V roce 2007 jsem se na CHKO informoval, zda je možné zde postavit srub," vysvětluje Leoš Mallat.
„Tehdy jsem dostal souhlasnou odpověď. V roce 2010 jsem tady koupil pozemky o rozloze 5000 m2, polovina byla stavební parcela, zbylá část louka. Vybral jsem stavební firmu a podal na CHKO tentokrát již oficiální žádost. Dozvěděl jsem se však, že předběžné stanovisko, které mi vydali dříve, neplatí. Ale protože se od vydání předběžného rozhodnutí nic nezměnilo, nechtěl jsem si to nechat líbit. Sruby tu navíc nejsou neobvyklé, v okolí jich je sedmnáct, některé dokonce v pásmu s vyšším stupněm ochrany, než máme zde."
Leoš Mallat tedy požádal o stavební povolení na roubenou stavbu z hraněných trámů s povrchovou úpravou v přirozeném odstínu dřeva. Zastřešení objektu měla zajistit sedlová konstrukce o sklonu střešních rovin 20° s vegetačním krytem.
Povolení bylo vydáno v červnu 2013, ovšem při kontrole v září téhož roku bylo zjištěno, že je stavba prováděna z kulatiny. Stavební úřad podmínil další postup dodržením projektu, na nějž bylo vydáno stavební povolení, a požadoval provedení úpravy stavby – ořezání přesahů nároží a úpravu stěn z kulatiny na plochu, a to vše bylo nutné doložit statickým posouzením.
Leoš Mallat současně musel podat žádost o dodatečné povolení provedené změny stavby. Z doloženého statického posudku však vyplynulo, že požadované seříznutí obvodových trámů z kulatiny ani přesahů nároží není vhodné. V červnu 2014 oznámil stavební úřad zahájení řízení o odstranění stavby.
Žádost o dodatečné povolení stavby byla navíc na základě vydaného nesouhlasného závazného stanoviska dotčeného orgánu – Agentury ochrany přírody a krajiny, odd. Správa CHKO Broumovsko, a dále přezkoumaného Ministerstvem životního prostředí – stavebním úřadem zamítnuta.
Tento verdikt zvrátilo dovolání Leoše Mallata, nález byl zrušen a vrácen k novému projednání. V únoru 2015 byly zaprotokolovány změny stavby oproti projektové dokumentaci, místo povolené konstrukce z hraněných trámů byla schválena konstrukce z kulatiny, v domě byly povoleny některé dílčí změny.
Leoš Mallat podal v březnu 2015 novou žádost o dodatečné povolení stavby se změnami provedenými v rozporu se stavebním povolením a projektovou dokumentací. V prosinci 2015 stavební úřad dodatečně povolil provedené změny v I. PP, a současně zamítl část žádosti o dodatečné povolení stavby (její části), týkající se změny konstrukce I. NP a části střechy. Leoš Mallat se opět odvolal.
Krajský úřad rozhodnutí zrušil a stavební úřad vyzval Leoše Mallata k odstranění nedostatků žádosti o dodatečné povolení stavby a zároveň přerušil řízení o dodatečné povolení stavby. Po doplnění požadovaných dokladů v dubnu 2018 vydala Agentura ochrany přírody a krajiny na základě úpravy projektové dokumentace souhlasné stanovisko s tím, že kromě jiných dílčích úprav musí být srubové přesahy obvodových stěn obloženy hoblovanými prkny na celou šířku. Všechny požadované úpravy byly provedeny a objekt byl po mnoha letech a peripetiích zkolaudován.
To však ještě není konec. S opatřením totiž nesouhlasí realizační firma, která ho považuje za „nepřípustný a zcela neodborný zásah do stavby". Dotčená Správa CHKO se do vydání tohoto článku k problému nevyjádřila.
TIP: Pozemek pro srub a roubenku: Výběr vyžaduje své

obr.: Spodní část domu je zděná a obložená pískovcem. Foto: Martin Zeman

obr.: Původně měla být v centrální části obytného podlaží i pracovna, ale nakonec zvítězila kuchyně propojená s obývacím pokojem. Stačilo vyříznout dělicí stěnu a místnosti propojit. V rohu je umístěno torzo rodového stromu, své místo na něm mají Leoš Mallat s manželkou, jejich děti a na zadní straně je vzkaz pro vnoučata... Foto: Martin Zeman

Foto: Martin Zeman
"Když jsem sem v roce 1984 přišel poprvé, seděl jsem na stráni nad vesnicí a říkal jsem si, že tady bych chtěl jednou umřít."

Foto: Martin Zeman

obr.: Útulný hostinský pokoj nabízí stejně jako ochoz krásný výhled do krajiny. Foto: Martin Zeman

Foto: Martin Zeman

Foto: Martin Zeman
Vychytávky ve srubu
- Máme všude vodní podlahové topení, ve srubu jsou instalována dvoje krbová kamna – ve společenské místnosti a v části s hostinskými pokoji, natápíme tak nádrže, jež pak vytápějí dřevostavbu tři nebo čtyři dny. A když tu nejsme, máme v nádržích záložní topná tělesa, která se sepnou, když teplota vody klesne pod určitou hodnotu, a temperují dům. Časem bychom tuto soustavu chtěli propojit se solárním systémem elektrickým i teplovodním.
- Za pozornost stojí čistička – chtěli jsme původně recyklační uzavřený okruh, ale pak jsme se rozhodli pro dvoustupňové čištění. Voda tak jde do vsaku a zůstává všechna na pozemku – využíváme ji na zálivku.

obr.: Ve společenské místnosti ve spodní části domu se Leoš Mallat schází s kamarády trampy. Zde mohou hrát a bavit a se a nikoho neruší. Stůl a lavice jsou stejně jako postel v ložnici jeho práce, artefakty na zdech si sami vytěžili, nařezali, brousili i leštili... Foto: Martin Zeman

obr.: V další části přízemí je prostor pro kulečník, je zde infrasauna a jednou by tu měla být ještě vířivka. Foto: Martin Zeman

obr.: Koupelna působí díky kombinaci materiálů a barev elegantně. Přechody nesámovaných prken a sruboviny pod stropem jsou překryty lanem. Foto: Martin Zeman
Technické parametry
- Zastavěná plocha: 200 m2 plus terasa 68 m2
- Užitná plocha: 400 m2
- Konstrukční systém: srubový
- Ošetření stěn: exteriér Kreidezeit – nová medová, interiér Kreidezit – přírodní odstín
- Teplo: dvoje krbová kamna s výměníkem + elektrokotel 2×7,5 kW
- Projekt: Ing. arch. Petr Jaroš
- Realizace: SRUBY RAJEC, s.r.o., www.srubyrajec.cz, 2018
Vaše komentáře (0)
Nejnovější články v kategorii “Návštěvy dřevostaveb”
-
Zrcadlová roubenka na soutoku
Majitel této roubenky – říkejme mu třeba Martin – měl jasný cíl: postavit svým dospělým dětem dům, kam by mohly o víkendech jezdit a být mu tak i s vnoučaty nablízku. A aby to…
-
Dřevěný domov v krajině rozlehlých luk
Tento příběh připomíná dokonalou pohádku o tom, kterak Kateřina a Jiří našli svůj vytoužený klid v podhůří Krkonoš. Jejich pozemek o rozloze dvaceti tisíc metrů čtverečních je…
-
Dávno splněný sen v podobě patrové dřevostavby na míru
Některé plány a nápady potřebují čas, aby mohly uzrát. Hluboko zapustit kořeny a trpělivě čekat na tu správnou dobu. Jako v tomto případě – poprvé totiž Milan na „svou"…
-
Dřevěná vila schoulená v náručí krajiny
Každý dům nevyhnutelně mění krajinu – jakým způsobem, to už záleží na jeho majitelích. Některé stavby přetvářejí okolí podle svého obrazu, jiné se naopak snaží splynout. A…














Srub je ze smrkového dřeva, těženého na Slovensku, realizační firma si s výběrem i se stavbou dala práci, dům je kvalitní, chtěl jsem tmelit spáry, ale usoudili jsme, že je to zbytečné.
Vytvořeno v xart.cz