Dana Jakoubková | Úterý, 04. únor 2020 |
Architekti byli vždy fascinováni možností zaplavit prostor přirozeným světlem a propojit interiér s okolním světem. Denní světlo je totiž nejpříjemnější, nejlevnější a pro člověka nejzdravější. Jednou ze základních myšlenek tvůrců kvalitního bydlení proto je: dát lidem slunce a světlo. A Ruud Visser a Fumi Hoshino z RV Architecture to vzali opravdu z gruntu, když na základě katalogového domu navrhli toto prosklené „prizma" l'esprit nouveau. Řečeno slovy německého architekta Heinricha Tessenowa: „Prostá koncepce není vždy nejlepší, ale to nejlepší je vždy prosté."
V Holandsku je většina realizovaných domů katalogová. Podobně jako auta se i katalogové domy prodávají v různých typech. Zvláště populárním je stodolový typ, postavený obvykle ze dřeva a s velkou sedlovou střechou.
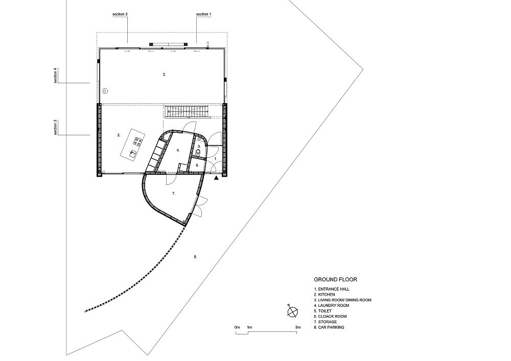
U této dřevostavby kryje tradiční sedlová střecha dva kontrastní svazky o celkové ploše 180 metrů čtverečních: polovinu domu s plnými stěnami, do které je situována kuchyně v přízemí a ložnice s koupelnou v patře, a ohromující „skleník" otevřený až do krovu, na jehož „dně" je rozložený obývák s jídelnou. Plnou stěnu domu navíc protíná křivka dřevěné hmoty v podobě nepravidelného oválu, ve kterém je schovaná prádelna, toaleta, komora a šatna. Křivka končí jako zahradní plot, oddělující slunnou jižní terasu od vchodu a parkovacího stání pro auta.

Obr.: Mimikry - Pohled z ulice na záda dřevostavby nenaznačuje, že by se dům od svých katalogových sousedů v něčem lišil. Foto: René de Wit

Obr.: Křivka - Jediným pevným prvkem v interiéru dřevostavby je dřevěný ovál, prostupující stěnou a ukrývající potřebné zázemí. V oblině stěny oválu je vytvořená nika, která poskytla prostor pro vsazení kuchyňské linky. Schodiště instalované v jeho zákrytu tak neruší výhled ani na jednu stranu domu. Foto: René de Wit
Domy se tradičně umísťují na pozemku blíže k ulici, aby bylo zachováno maximální soukromí zahrady. V tomto případě ale nebylo možné tradici dodržet z důvodu trojúhelníkovitého tvaru pozemku. Architekti proto zvolili odlišný koncept a usazením domu doprostřed parcely získali kromě zahrady i předzahrádku. Obyvatelé dřevostavby si mohou vybrat, zda budou trávit čas v jihozápadním slunci, které ohřívá záda domu, nebo krásným výhledem na pole a lesy přes prosklenou fasádu k severovýchodu, která je tak přirozeně stíněná domem samotným a v létě se nepřehřívá, přitom dovoluje rozptýlenému světlu proniknout maximálně dovnitř.

Obr.: Čitelnost - Hřeben střechy rozděluje dřevostavbu na dvě části. Jedna je zcela otevřená do krovu, druhá zahrnuje i uzavřené patro s ložnicemi a koupelnou. Aby byl zachován i výhled do předzahrádky, dokázali se architekti oprostit od potřeby vnitřních stěn. Interiér je tak prostý dělících prvků v plné šířce deseti metrů. Foto: René de Wit
Základním stavebním prvkem „stodoly" jsou čtyři dřevěné trámy, které sedí na horní straně plných bočních stěn a na dvou vnitřních stěnách mezi ložnicemi. Mezi těmito paprsky jsou menší vaznice, což činí střechu tuhou. V prosklené polovině dřevostavby podporují střechu dva dřevěné sloupy, umístěné pod úhlem třiceti stupňů, a jedno bytelné „véčko". Sloupy jsou umístěné tak, aby co nejméně rušily výhled přes prosklené stěny.

"Vysokou úroveň přirozeného osvětlení a vizuální průhlednost udržují čisté a nepřetržité konstrukční linie."

Obr.: Kontrastní spojení - Skleněná polovina dřevostavby tvoří transparentní spojení mezi budovou a její zahradou. „Skleník" je tak lehký a transparentní, jak je to jen možné. Rozsáhlé prosklení také vytváří kontrast s masivní hmotou a patrná je i jistá spirituálnost ve vyznění celku prosklené stavby. Foto: René de Wit

Obr.: Subtilní, ale pevný - V jedné polovině domu drží nosnou konstrukci střechy plné stěny, zatímco v prosklené polovině ji podporují dřevěné, pod úhlem postavené sloupy. Kromě tří dřevěných posuvných okenních rámů je sklo instalováno přímo do konstrukce. Je vidět smysl i pro romantickou polohu domu v krajině. Foto: René de Wit


Tento článek vyšel v časopisu DŘEVO&stavby 3/2019
Objednejte si krásně vonící výtisk časopisu s kvalitními fotografiemi pouze za 85 Kč
koupit časopis

Návrh: Ruud Visser a Fumi Hoshino, RV Architecture (www.rvarchitectuur.nl)
Foto: René de Wit
Mohlo by vás zajímat:
Nejnovější články v kategorii “Návštěvy dřevostaveb”
-
Zrcadlová roubenka na soutoku
Majitel této roubenky – říkejme mu třeba Martin – měl jasný cíl: postavit svým dospělým dětem dům, kam by mohly o víkendech jezdit a být mu tak i s vnoučaty nablízku. A aby to…
-
Dřevěný domov v krajině rozlehlých luk
Tento příběh připomíná dokonalou pohádku o tom, kterak Kateřina a Jiří našli svůj vytoužený klid v podhůří Krkonoš. Jejich pozemek o rozloze dvaceti tisíc metrů čtverečních je…
-
Dávno splněný sen v podobě patrové dřevostavby na míru
Některé plány a nápady potřebují čas, aby mohly uzrát. Hluboko zapustit kořeny a trpělivě čekat na tu správnou dobu. Jako v tomto případě – poprvé totiž Milan na „svou"…
-
Dřevěná vila schoulená v náručí krajiny
Každý dům nevyhnutelně mění krajinu – jakým způsobem, to už záleží na jeho majitelích. Některé stavby přetvářejí okolí podle svého obrazu, jiné se naopak snaží splynout. A…












Vytvořeno v xart.cz