Dana Jakoubková | Středa, 28. srpen 2019 |
Jak dosáhnout toho, aby moderní dům naplnil individuální potřeby stavebníka a současně harmonicky rozšířil „rodinu" tradičních venkovských chalup v místě výstavby? Častá otázka osvícených investorů, vyžadující individuální projekt a citlivý přístup architekta. On sám k tomu dodává, že ocenit je třeba i konstruktivní přístup investora k řešeným tématům v celém procesu návrhu, projektu i realizace a velice přátelskou atmosféru při spolupráci.
Dřevostavba stojí na mírně svažitém pozemku, který podporuje krásný výhled na Tatry. Na první pohled je zřejmé, že jde o současnou architekturu, čerpající z archetypálního tvarosloví a reagující sedlovou střechou s vikýřem na historicky ověřenou formu, která dává domu nejlepší ochranu před drsným podhorským počasím.

Ing. arch. Václav Zahradníček
Prodesi / Domesi s.r.o.
„Vzpomínám si na žádost investora vidět z domu na vrchol Západních Tater – Baranec," uvádí architekt Václav Zahradníček. „Stavebník je totiž vášnivým skialpinistou."
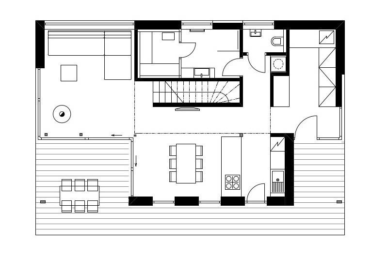
Základním půdorysným tvarem dřevostavby je obdélník. Na něj jsou usazena dvě nadzemní podlaží, dispozičně zkoncipovaná racionálně a důmyslně. Denní pobytová část se nachází na úrovni parteru a noční klidová část je umístněná na poschodí.

Členění: Oříškem byl poměrně úzký pozemek, se kterým se architektonický návrh vyrovnal dobře. Tvar domu odkazuje jednoduchostí na původní urbanistickou strukturu, dispozice pak vychází z logického členění prostorů v přízemí i v patře kolem středové galerie. Foto: Milan Hutera

Omezení: Přestože se z pohledu architekta jednalo o velmi vzácně zachovalou urbanistickou strukturu obce, regulativy ze strany úřadů omezily projekt dřevostavby paradoxně pouze u plechové sedlové střechy. Ta ve fázi realizace architekta trochu potrápila, protože vykazovala akustické problémy v extrémním větru, který je v místě celkem obvyklý. Foto: Milan Hutera
"Tvarem domu jsme chtěli reagovat na bezprostřední okolí, ale také dát stavbě soudobý architektonický ráz."

Citlivý přístup: Při návrhu rodinného domu se architektům a stavitelům povedlo citlivé začlenění moderní dřevostavby mezi okolní tradiční „chalupy" v obci velmi dobře. Foto: Milan Hutera

Spojení: Přidanou hodnotou přízemí je rozsáhlá, zasklená terasa, která navozuje atmosféru příjemného rekreačního místa a umožňuje obyvatelům domu jedinečně úzké spojení s okolním prostředím i v čase nepříznivého počasí. Foto: Milan Hutera
„Do patra jsme umístili větší dětský pokoj, na atraktivní výhledové straně ložnici a vedle ní meditační místnost," pokračuje architekt. „Požadavek byl také na otevřený obytný prostor přes obě podlaží a na krytou terasu." Všeho se podařilo docílit. Vstupní krytý prostor se propojil pod přesahem střechy s terasou, k jejímuž zasklení došlo později. Vznikla tak zimní zahrada, velmi efektivní ochrana proti dešti i větru a zároveň akumulační prostor sluneční energie pro ohřev vnitřních prostorů domu. „Zasklení krytých částí domu považuji za jeho nejzajímavější část," doplňuje Zahradníček," ale potěšilo mě i to, jak velmi dobře stavebník zvládl dotažení interiéru, který je pro celkovou kvalitu domu velmi důležitý."

Kvalita: Pohledová kvalita stěn z dřevěných panelů Novatop a stropů s přiznanými trámy (KVH hranoly) určuje zásadním způsobem vizuální a vjemový charakter interiéru. Převaha dřevěných ploch naplňuje vnitřek dřevostavby vlídnou a osobitou atmosférou. Foto: Milan Hutera

Zvolte nejhezčí dřevostavbu v anketě Dřevostavba roku.
Hlasujte v aktuálním vydání a vyhrajte zajímavé ceny!

Členění prostoru: Kuchyňskou část od jídelny odděluje linka s vestavěnou varnou deskou, barovým sezením pro dva a úložným prostorem ze strany jídelny. Prostor kuchyně je dostatečně prosvětlený bočními dveřmi, umožňujícími přístup na terasu. Foto: Milan Hutera

Útulno: Ležérního a útulného charakteru místností se podařilo dosáhnout doplněním o nábytkové zařízení ve světlých a přírodních odstínech bílé, béžové, šedé. Žluté akcenty pak vnáší do prostoru jas a přívětivý tón. Foto: Milan Hutera

Světlo: Proslunění a výjimečné světelné scény vnáší do interiéru dřevostavby střešní okna, umístěná nad galerií v poschodí. Foto: Milan Hutera

Teplo: Dřevostavba je řešena v nízkoenergetickém standardu. Vytápění objektu podlahovým elektrickým topením, přímotopy a konvektory doplňují krbová kamna. Foto: Milan Hutera
Technické parametry
- Typ domu: nízkoenergetický
- Zastavěná plocha: 80,35 m2 + terasa 30,44 m2
- Užitná plocha: 130 m2
- Konstrukční systém: masivní dřevěné panely Novatop
- Zdroj energie / teplo: podlahové elektrické vytápění + přímotopy a konvektory; krb jako doplňkový zdroj tepla, příprava na solární panely
- Větrání: řízené s rekuperací – jednotka NILAN VP18 K WT s možností chlazení
- Součinitel prostupu tepla stěnou: U = 0,13 W/(m2K)
- Autor arch. návrhu: Ing. arch. Václav Zahradníček, Ing. arch. Hana Bartoňová, Prodesi / Domesi, www.prodesi.cz
- Autor projektu: Monika Moravcová, Prodesi / Domesi, www.prodesi.cz
- Realizace stavby: 2016, Domesi Slovensko, s. r. o., www.domesi.cz


Nejnovější články v kategorii “Návštěvy dřevostaveb”
-
Zrcadlová roubenka na soutoku
Majitel této roubenky – říkejme mu třeba Martin – měl jasný cíl: postavit svým dospělým dětem dům, kam by mohly o víkendech jezdit a být mu tak i s vnoučaty nablízku. A aby to…
-
Dřevěný domov v krajině rozlehlých luk
Tento příběh připomíná dokonalou pohádku o tom, kterak Kateřina a Jiří našli svůj vytoužený klid v podhůří Krkonoš. Jejich pozemek o rozloze dvaceti tisíc metrů čtverečních je…
-
Dávno splněný sen v podobě patrové dřevostavby na míru
Některé plány a nápady potřebují čas, aby mohly uzrát. Hluboko zapustit kořeny a trpělivě čekat na tu správnou dobu. Jako v tomto případě – poprvé totiž Milan na „svou"…
-
Dřevěná vila schoulená v náručí krajiny
Každý dům nevyhnutelně mění krajinu – jakým způsobem, to už záleží na jeho majitelích. Některé stavby přetvářejí okolí podle svého obrazu, jiné se naopak snaží splynout. A…












Vytvořeno v xart.cz