Dana Jakoubková | Pondělí, 06. leden 2020 |
Jistě existuje spousta lidí, kteří leží v otomanu s rukama pod hlavou a fantazírují o pětkovém BMW. Když ale přijde na věc, nechají se zlákat cenou a pořídí si Fiat. Radan, majitel domu s manželkou, k nim nepatří. Šli bez odboček za vysněnou kvalitou i pohodlím. Kdyby, tak jako na auta, existoval bazar na domy, byl by ten jejich model CLT i po desítkách let provozu v cuku letu pryč. Svezení je totiž jako v limuzíně, nájezd kilometrů dalece za hranicí představ, spotřeba nízká a navíc exceluje v crash testech. Tep vám sice nezvedne, zato poskytne výbornou službu a celé rodině působivě dlouho ochranu.
Hledání ideálního pozemku
Už trochu chápu stavebníky, kteří jsou ochotni postavit si dům na miniaturní rovině, vytržené ze spárů řepkového pole. Radan se s takovým řešením ale spokojit nehodlal. Prohlédl si třicet pozemků s předem jasnou vizí – do hodiny od Prahy kvůli dostupnosti z bytu i do práce při příležitostném dojíždění; kopcovitý terén, aby potěšil oko i ducha; v nízké nadmořské výšce kvůli mírnějšímu klimatu; hodně lesů kvůli zdravému vzduchu, procházkám a troše divočiny a žádná pole, kde by tekla chemie proudem, v létě burácely kombajny, nebo se časem proměnila ve stavební pozemky. Žádná z parcel ale nebyla zcela vyhovující.
„Uvědomil jsem si, že ideální pozemek neexistuje. A pokud ano, pak je strašně drahý," dodává Radan. „Když už jsme nevěděli, jak dál, objevil se tenhle na Slapech a byl na horním limitu našich finančních možností. Krajina kolem je opravdu překrásná, kopce roztrhané roklemi, lesy, louky, pastviny, velká vodní plocha v pěší dostupnosti a absolutní klid obohacený zpěvem ptáků a ržáním koní. Parcela téměř dokonalá s připraveným ´antoníčkem´ pro elektřinu, potokem na hranici pozemku i studnou. Dva tisíce metrů čtverečních v malinké vesničce, dosažitelné po asfaltu i v zimě. Ideál samoty a klidu je však vykoupen neexistencí občanské infrastruktury v obci. Jako manželé středního věku jsme byli srozuměni s nutností všechno dovážet automobilem. Nakonec autobus z Prahy zastavuje jen tři kilometry daleko."
TIP: Jak vybrat vhodný pozemek pro dřevostavbu

Foto: Martin Zeman

Foto: Martin Zeman
Nejprve volba materiálu, pak architekt
Radan měl od počátku jasno v tom, že dům bude z CLT panelů. Ne, není z oboru stavebnictví. Jeho volba byla založena pouze na pečlivém pátrání, z čeho lze dřevostavbu postavit. Až poté, co si vybral konstrukční systém a jeho výrobce, začal hledat firmu, která by mu dům navrhla i postavila.
„Panel Novatop jsem vybral proto, že křížem lepené masivní dřevo dává konstrukci stálost, větší pevnost a odolnost, uvádí Radan. „Třeba rámová konstrukce ´two by four´ na mě působí subtilněji. Ani v případě, že praskne voda, se panel nezkroutí. A má také dobrou zvukovou izolaci."
Konstrukční prvky z CLT ale vyrábí a dodává více firem. Proč si Radan vybral právě Novatop? „Když chcete mít přiznané dřevo v interiéru, stačí využít jeho stěnu, která má pohledovou kvalitu," pokračuje Radan.
„Tahle kvalita ale může být pohledná různě, více, či méně. Když chcete mít ale hezkou kresbu dřeva, tak si musíte připlatit. U Novatopu jsme to měli v základní ceně, respektive tento konstrukční panel je už tak pěkný, že není třeba připlácet za interiérové desky. A také je to česká firma." Najít firmu, která staví dřevostavby z CLT, pak už nebylo složité, moc jich není. A těch, které mají současně vlastního architekta, anebo architektonický atelier má vlastní stavební divizi, je ještě méně.
TIP: Jak konstrukční systém dřevostavby ovlivňuje interiér?

Respekt: Rozlehlý pozemek, orientovaný k jihovýchodu, je osázený zatím téměř neviditelnými stromky a keři, které si s venkovem rozumí; túje byste tu hledali marně. Přesto, že se k tomu plocha zahrady nabízí, nenajdete tu ani bazén, který by působil příliš maloměšťácky, ani jezírko. Majitelům to přišlo jako moc velký zásah do terénu a shodli se spíše na dřevěném koupacím sudu v koutu zahrady, někdy v budoucnu. Foto: Martin Zeman

"Měli jsme dva roky pronajatý letní dům zděný. Ať jsme přijeli kdykoli, tak v něm byla zima. Proto jsme volili dřevostavbu a dálkové ovládání topení přes mobil. Teplo je konstantní a žádné střídání teplot, vlhkosti a sucha."

Zkušenosti: O tom, že se investorům vyplatí dát na cit a zkušenost technického dozoru, svědčí i fakt, že ještě před tím, než přijely bagry, doporučil dům lehce posunout od příjezdové cesty a zapustit ho o dvacet centimetrů hlouběji. Tato úprava si sice vyžádala terénní úpravy v podobě kamenných zídek, ale dům nyní dle majitelů v zahradě pěkně „sedí". U zídek, vystavěných z modrošedého kamene z nedalekého lomu, se zase ukázala velká zkušenost jejich zhotovitele Antonína Peprníčka, který poradil kam je umístit a jak je svažovat. Foto: Martin Zeman
Co si prosadili majitelé dřevostavby
Představu měli stavebníci poměrně konkrétní a při diskuzích s architektem si většinou padli do noty. Někdy udělal architekt varianty dvě a vysvětlil plusy a mínusy každé, jindy od svého záměru ustoupil. Například když navrhl jako designový prvek plechovou střechu navazující na plechové opláštění fasády celého patra. Majitelům se to příliš nezamlouvalo a rozhodli se pro klasickou červenou tašku a fasádní modřínové palubky bez povrchové úpravy.
„Ne že bychom to měli v plánu, ale když nám spočítali, že jeden nátěr fasády vyjde na 45 000 korun a bude ho třeba ob tři, čtyři roky obnovovat, přišlo nám to jako zbytečně vyhozené peníze," dodává Radan. „Modřín dokáže stárnout do krásy přirozeně a vydrží desítky let i bez nátěru. Nestejná barevnost vlivem povětrnostních podmínek a UV záření nám nijak nevadí. Naopak, přijde nám to ve vztahu k venkovskému prostředí a přirozeně zarostlému okolí i vhodnější."
TIP: Fasáda dřevostavby - kdy a jak se o ni starat?

Foto: Martin Zeman
Na co se zapomnělo
„Nechtěli jsme řízené větrání s rekuperací, přišlo nám to jako zbytečný náklad, když jde o rekreační dům, kam se možná přestěhujeme až na důchod a do té doby zde budeme bydlet dlouhodobě maximálně přes léto," pokračuje Radan. „Navíc když máme tolik oken, která jsou v létě prakticky stále otevřená, a dům je dobře křížově provětráván. Jenže jedna místnost, ta nejmenší v domě, má okno neotvíravé. Bez řízeného větrání je tedy odvětratelná jen těžko, ventilátor s odsáváním na to nestačí, a ještě k tomu je uvnitř horko. Protože pan architekt navrhuje převážně domy s řízeným větráním, tahle drobnost s oknem mu bohužel unikla a my jsme si toho také nevšimli. Takže nás čeká výměna."

Klima: V přízemí chrání před sluncem celodřevěná okna s trojsklem stříška terasy, v patře pak dodatečně instalované hliníkové žaluzie s funkcí samovytažení v případě větru. Zkušenost majitelů potvrzuje, že ani bez přesahu střechy se dům nemusí přehřívat. Křížové provětrávání okny udržuje v létě vnitřní teplotu kolem 24 stupňů a v případě nutnosti dokážou žaluzie snížit teplotu interiéru o dalších pět. Foto: Martin Zeman

Foto: Martin Zeman
Dřevostavba nad všechna očekávání
„Měl jsem vysoké očekávání poté, co jsem viděl několik realizovaných dřevostaveb od pana architekta a stavební firmy," hodnotí Radan stavbu svého domu. „A naplnila se. V komunikaci, v perfektních nápadech, v precizním přístupu ke stavbě. Je dobře, že jsem stavbu zadal na klíč a že firma zajišťuje jak architektonickou část, tak realizaci. Evidentně je plusovými body, že ona provázanost dává architektovi každodenní zpětnou vazbu od realizační jednotky a ten pak nevymýšlí věci, které realizační tým není sto splnit. Dřevostavbu z CLT panelů mají zmáknutou a pracovní týmy šlapou jako dobře seřízené hodinky."

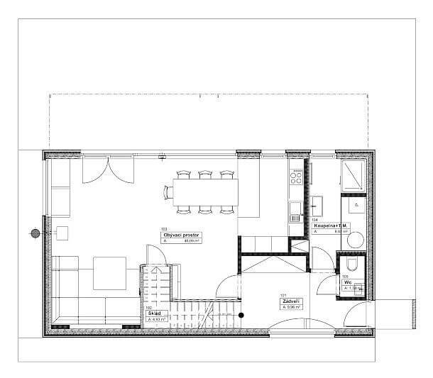
Potřeby: Osmimístný jídelní stůl z teakového dřeva byl – stejně jako velkorysá plocha terasy – jedním z požadavků stavebníků. Přání bylo diktováno velkou bližší rodinou a spoustou přátel, kteří majitele často navštěvují. Návrh kuchyně je rovněž dílem architekta, doplněný praktickým přímým vstupem z kuchyně na terasu. Foto: Martin Zeman

Útulno: Kout určený ke společenskému posezení je architektonickým bonbonkem. Snížený strop, odlišený spolu s čelní stěnou od zbytku obýváku jinou materialitou povrchu, a vedlejší stěny v pohledové kvalitě konstrukčního panelu určují jeho dynamiku, podtrženou velkou, na míru vyrobenou pohovkou a dekorativní nikou. O atmosféru se pak starají poctivá ocelová krbová kamna české výroby s externím přívodem vzduchu zvenčí a malým výkonem (2–4 kW), aby se interiér nepřehříval. V zimě využívají majitelé ovládání elektrického podlahového topení přes internet. Pětistupňová udržovací teplota se tak zvedne na komfortní úroveň dříve, než přijedou. Vzhledem k dobré izolaci domu se teplo dlouho udrží bez nutnosti dům dodatečně vytápět. Na jaře a na podzim využívají solární zisky skrze velká okna. I bez puštěného topení je v dřevostavbě průměrně o
Komentář architekta
Dům je v krásném prostředí, které samo o sobě bylo velkou inspirací a navrhování bylo doslova zábavou. Jelikož měl sloužit především k rekreaci a předpokládalo se, že při častých návštěvách zde bude více osob, kladl jsem důraz zejména na společné pobytové prostory. Díky tomuto požadavku jsem hlavní obytný prostor maximálně propojil s velkou venkovní terasou a zahradou, čímž se shromažďovací prostor opticky i provozně značně zvětšil.
Jedním z „návrhových oříšků" pak bylo zajistit, aby hluk z pobytových prostor neomezoval osoby v klidové části v patře domu. Z tohoto důvodu byl například nástup na schodiště umístěn do chodby, aby přes něj nedocházelo k přenosu hluku do klidové části domu. Zároveň „kšilt" nad terasou slouží nejen k zastínění v letních měsících, ale má také velmi významný vliv na odstínění hluku z terasy směrem k oknům ložnic v patře. Myslím si, že s klienty jsme byli na stejné vlně, a proces navrhování byl plodným dialogem, který vyústil v hezký dům, se kterým jsou spokojeni jak majitelé, tak já.

Ing. arch. Lukáš Pejsar
3AE, s.r.o.

Nápad: Masivní, křížem lepená, třívrstvá podlaha napuštěná olejem zdobí celý dům ve stejném dekoru (dvě vrstvy smrk, finální vrstva jasan). Problematická je pouze tmavá barva, na které je vidět každé smítko a šrám, a co do údržby se po zkušenostech paní domácí jeví jako nepraktická. Kromě knihovny v přízemí navrhl architekt i kout pro čtení v chodbě patra, který bude ještě doplněný pěkným ušákem. Foto: Martin Zeman

Foto: Martin Zeman
Čeho si v návrhu architekta stavebníci cení nejvíce
- Že orientoval dům k jihovýchodu, kde je v zorném poli les, a ne k jihu s výhledem na sousední dům.
- Že navrhl střechu bez přesahů a k odstínění proskleného přízemí zvolil plochou stříšku nad terasou v celé šířce jihovýchodní fasády.
- Jak se vypořádal s velkým společenským prostorem přízemí a pohrál si s různou materialitou, tvarem i výškovou úrovní stropu.
- Že na požadavek mít hodně oken reagoval v podstatě celou prosklenou stěnou a úžasným „pozorovacím" oknem v boku domu.
- Že doporučil situovat schodiště do patra mimo obývák, aby se hluk z něj nešířil do klidové zóny horního podlaží, hlavně večer do ložnic.
- Jak vymyslel systém pěti vestavěných skříní, elegantně integrovaných do interiéru a v ložnicích plnicích i zvukově izolační funkci.
- Že navrhl využít chodbu v patře i jako knihovnu s čítárnou.
- Že doporučil – vzhledem k charakteru stavby na rekreaci – elektrické podlahové vytápění.
- Že se snažil maximálně vyjít vstříc jejich potřebám.

Plus: Umístění schodiště mimo obývací prostor považují majitelé za praktické řešení. Foto: Martin Zeman
Čeho majitelé rozhodně nelitují
Najali si takzvaný technický dozor investora – inženýra Tomáše Nedbala, který kontroloval jak stavební firmu, tak místního dodavatele základové desky a kamenných zídek v zahradě. „Poradil mi dobrou věc, a to zaizolovat více stěnu, ve které jsou vedené odpady z patra, aby nebylo slyšet, když se někdo sprchuje či splachuje. A je to fakt, neslyšíme nic. Pochvaloval si také, na základě měření elektronickou vodováhou, jak mají dřevostavbaři všechno neuvěřitelně přesné," zakončuje Radan.

Specifikum: Samostatná toaleta s bidetem se často v domech nevidí. Kromě vyššího hygienického standardu je bezpapírové WC přívětivější i k čističce odpadních vod. Hlavní koupelna, umístěná stejně jako tři ložnice v patře, si vyžádala specifický návrh stropu s částečnou šikminou. Majitel domu totiž měří bez mála dva metry a normové požadavky minimální stropní výšky mu nedostačovaly. Atypickému stropu byly podřízené i všechny vestavěné skříně v patře, které, dle návrhu architekta, fungují i jako zvuková izolace mezi místnostmi. Foto: Martin Zeman

"Od počátku jsme zamýšleli postavit dům patrový. Později nám pan architekt potvrdil, že oproti „bungalovu" je jeho energetická náročnost nižší a vstupní náklady vyjdou o několik set tisíc levněji."

Foto: Martin Zeman
Podívejte se na redakční návštěvu této nízkoenergetické dřevostavby z CLT panelů v našem videu
Technické parametry
- Typ domu: nízkoenergetický
- Zastavěná plocha: 85,31 m2 + terasa 59,67 m2
- Užitná plocha: 139,45 m2
- Konstrukční systém: křížem vrstvené panely z masivního dřeva (CLT) NOVATOP
- Teplo: elektrické topné kabely Fenix ADPSV a rohože FENIX CM150; elektrické přímotopy v koupelnách; OT navržena s elektrickou topnou spirálou a s regulátorem FORTE; doplňkový zdroj – teplovzdušná krbová kamna
- Větrání: přirozené okny + ventilátory s odtahem v koupelnách a na WC
- Součinitel prostupu tepla stěnou: U = 0,22 W/m2K
- Studie a projekt: Ing. arch. Lukáš Pejsar
- Realizace: 3AE, s.r.o., www.3ae.cz, 2018




Líbí se vám tato dřevostavba? Zašlete dodavateli dotaz nebo nezávaznou poptávku!
Společnost 3AE s.r.o. byla založena v roce 2010. Od svého vzniku se firma soustředila na navrhování a realizaci především pasivních domů z konstrukčního systému Novatop. Od počátku existence bylo klíčové spolupracovat s předními architekty a odborníky se zaměřením na pasivní dřevostavby. V roce 2012 firma vytvořila platformu značkových typových domů NOVAHOME, navržených architekty. Tato platforma sdružuje architekty se zájmem o navrhování domů z konstrukčního systému Novatop.
Zaslat dotaz nebo nezávaznou poptávku
Nejnovější články v kategorii “Návštěvy dřevostaveb”
-
Zrcadlová roubenka na soutoku
Majitel této roubenky – říkejme mu třeba Martin – měl jasný cíl: postavit svým dospělým dětem dům, kam by mohly o víkendech jezdit a být mu tak i s vnoučaty nablízku. A aby to…
-
Dřevěný domov v krajině rozlehlých luk
Tento příběh připomíná dokonalou pohádku o tom, kterak Kateřina a Jiří našli svůj vytoužený klid v podhůří Krkonoš. Jejich pozemek o rozloze dvaceti tisíc metrů čtverečních je…
-
Dávno splněný sen v podobě patrové dřevostavby na míru
Některé plány a nápady potřebují čas, aby mohly uzrát. Hluboko zapustit kořeny a trpělivě čekat na tu správnou dobu. Jako v tomto případě – poprvé totiž Milan na „svou"…
-
Dřevěná vila schoulená v náručí krajiny
Každý dům nevyhnutelně mění krajinu – jakým způsobem, to už záleží na jeho majitelích. Některé stavby přetvářejí okolí podle svého obrazu, jiné se naopak snaží splynout. A…












„Měl jsem vysoké očekávání poté, co jsem viděl několik realizovaných dřevostaveb od pana architekta a stavební firmy, a naplnila se. V komunikaci, v perfektních nápadech, v precizním přístupu ke stavbě.
Vytvořeno v xart.cz