Lucie Němcová | Středa, 26. únor 2020 |
Proč všichni tak houževnatě toužíme po vlastním domě? Je to velikost prostoru? Zahrada? Soukromí? Potřeba něco vlastnit? Pro Tomáše a Gabrielu to byl hlavně nový rámec pro rostoucí rodinu a její měnící se potřeby. Logický a smysluplný krok, který život naznačil. Nyní s odstupem Tomáš říká, že mohl začít klidně o deset let dřív. Bydlení v novém totiž dodalo životu nezaměnitelnou kvalitu.
Pojem dřevostavba je pro Tomáše něco zcela přirozeného. Vyrůstal totiž v tradičním okálu a v oboru pracuje. Chvíli dřevostavby i realizoval, a tak je zná pěkně skrz naskrz. „Věděl jsem, že chci pro své bydlení pouze dřevostavbu. Líbí se mi její přesnost, energetické parametry a s tím související provozní náklady, které mne přesvědčily ze všeho nejvíc. Z vlastní zkušenosti také vím, jak jsou dobře udělané dřevostavby kvalitní."
O podobě domu rozhodly vlastní nároky, regulativy a finance
Uskutečnění snu, který byl na pozadí téměř vždy, odstartoval vhodný pozemek v městské zástavbě. Jak říká Tomáš, mantinely nenastavil pouze jeho úzký tvar, ale také stavební úřad a finanční strop.
„Výchozím bodem byl typový projekt, který se nejvíce blížil našim představám. Ten pak formovaly naše nároky, požadavky legislativy a pochopitelně rozpočet." Výsledkem je přes všechny limity moderní dům s některými tradičními prvky, jako je sedlová střecha.

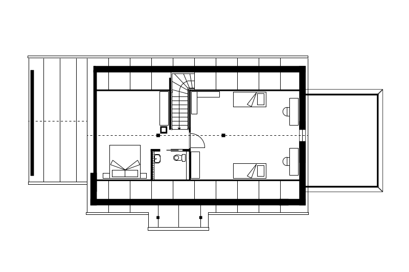
Tvorba dispozice: Výchozí typový projekt přízemního domu byl transformován přáními majitelů a limity legislativy. Přibylo obytné podkroví, schodiště a garáž a změněna celá řada detailů. Foto: Martin Zeman

Zimní zahrada: Majitelé využili faktu, že je dřevostavba snadno přestavitelná a dům po letech doplnili ještě o zimní zahradu. Foto: Martin Zeman

obr.: Posezení v zimní zahradě je ideálním místem k relaxaci a odpočinku. Foto: Martin Zeman

Okno jako obraz: Velké okno v zimní zahradě nabízí nejúchvatnější výhled v zimě, kdy je krajina zasněžená, uvnitř je teplo a vy jen s horkým nápojem nasáváte klidnou pohádkovou scenérii. Foto: Martin Zeman

obr.: Zimní zahrada je místo, kam lze uniknout před mumrajem obývacího prostoru. Foto: Martin Zeman
Klíčové vlastnosti domu
Požadavky na stavbu se odvíjely od potřeb čtyřčlenné rodiny. Zatímco druhé patro je územím dětí, přízemí je naopak navrženo zejména pro rodiče. Proto zde najdeme i ložnici. „Až tu zůstaneme na stáří sami, budeme mít k dispozici bezbariérové přízemí." Nejvíce času prozatím stejně všichni tráví ve velkém centrálním obytném prostoru. Také z toho důvodu mu byla v návrhu přidělena štědrá plocha.

obr.: Kuchyně je chytře oddělena od obývacího pokoje. Foto: Martin Zeman

Kuchyně: S jistotou její červenou nepřehlédnete. Dispozice do L řadí všechny potřebné funkce a spotřebiče. Horizontální okno poskytuje výhled ven do ulice i během vaření, což je příjemná drobnost. Foto: Martin Zeman

Obývací prostor: Dostatečně velký pro společně strávený čas, navíc standardně co nejvíce opticky propojený se zahradou. Foto: Martin Zeman

obr.: Druhé patro domu je věnováno především dětem, kde mají své království. Foto: Martin Zeman

Ložnice: Nudnou ložnici v tomto domě opravdu nehledejte. Foto: Martin Zeman

Koupelna: Šťavnatý žlutý akcent v kontrastu s černou je příjemným zpestřením v záplavě většinových neutrálních koupelen. Foto: Martin Zeman
Zahrada u domu je k nezaplacení
Důležité bylo navrhnout venkovní zázemí pro malé kluky – hřiště a zahrada celkově jsou k nezaplacení. „Je to obrovský rozdíl oproti bytu, odkud chodíte pouze na procházky. Tady jsou v létě pořád otevřené dveře, interiér je propojený se zahradou a jste pořád venku. Žití tak má úplně jiný charakter. Jíme venku, děti si tu hrají, trávíme zde večery... Život je tím zase o něco svobodnější."

obr.: Zahrada je pro celou rodinu dostatečně velkým a ideálním místem pro trávení volného času. Foto: Martin Zeman

obr.: Z obývacího pokoje a kuchyně zároveň je krásně vidět na zahradu na kterou je možné přímo vstoupit. Foto: Martin Zeman

obr.: Součástí domu a celé zahrady je i pergola, která je především využívána v letních měsících. Foto: Martin Zeman
Vytápění dřevostavby
O způsobu vytápění měl Tomáš jasno: „Byl jsem už před lety přesvědčen, že do dřevostavby, která má ztrátu zhruba čtyři kilowatty, patří jedině elektřina. Rozhodně žádný plyn, voda nebo oběhová čerpadla. Nic mechanického. Máme tedy elektrické podlahové vytápění, jehož podlahová plocha je dost velká, aby vytopila objekt na 23 stupňů s úplně minimálním ohřevem podlahy. Z naší strany pouze stačí nastavit termostaty na 23 stupňů. O nic jiného se nestaráme."
Dalším tradičním zdrojem tepla měla být krbová kamna, která však zatím nejsou osazena: „Když jsem zjistil, že protopím zhruba o dvě třetiny méně než v bytě, dostala kamna mnohem nižší prioritu na úkor zahrady, pergoly a dalších potřebných věcí. Kamna budou, komín je připraven, ale už teď víme, že více na parádu než na vytápění."
Fotovoltaická elektrárna
Z technologií to však není vše. Dva termické solární panely pomáhají s ohřevem teplé užitkové vody. Díky menší investici a dotaci ze Zelené úsporám se peníze do pěti let vrátí. Poslední tři roky je dům doplněn také o fotovoltaickou elektrárnu. V garáži je baterka, třífázový střídač a 12 panelů na střeše.
„Musím ale říct, že se nic závratného ve spotřebě elektřiny nestalo," sdílí poznatky Tomáš. „Dům je tak dokonale udělaný s nízkou spotřebou, že jakákoli technologie už nezpůsobí velký rozdíl. Máme k fotovoltaice různé grafy a pravidelně její fungování vyhodnocujeme. Účinnost se pohybuje kolem 15 procent, takže roční úspora je kolem dvou až tří tisíc."

Dům nemá omezovat
V době inteligentních domů a nekonečné řady důmyslných technologii měl Tomáš jasný záměr: „O dům se chci co nejméně starat. Přeji si hlavně bydlet a minimálně řešit provozní záležitosti jako každoroční výměny filtrů, revize či seřizování systémů. Tento záměr se skutečně naplňuje, topení je poslední čtyři roky nastaveno pořád stejně a báječně funguje, aniž bychom na něj museli sáhnout. Komfort není mít tisíce možností a neustále něco nastavovat. Komfort je nic nedělat."
Zkušenost majitelů
„Co bych udělal jinak? S rozhodnutím stavět dům bych nečekal tak dlouho. Člověk se bojí udělat tenhle zásadní krok – zadlužit se. Jakmile se vám ale splní sen, říkáte si, že jste to neudělali už před deseti lety. Není jednoduché zavázat se na 30 let, když člověk neví, co bude za půl roku. Ale s odstupem času musím říct, že to bylo nejlepší rozhodnutí v životě," dodává spokojeně Tomáš.

Gabriela a Tomáš s dětmi
majitelé domu
Technické parametry
- Typ domu: nízkoenergetický
- Zastavěná plocha: 139,72 m2
- Užitná plocha: 151,67 m2
- Konstrukční systém: prefabrikovaná dřevostavba
- Teplo a větrání: elektrické podlahové vytápění, elektrické odvětrání koupelen a kuchyně pomocí ventilátorů
- Součinitel prostupu tepla stěnou: U = 0,140 W/m2K
- Projekt a realizace: RD Rýmařov s.r.o., www.rdrymarov.cz, 2014



Chtěli byste bydlet v podobné dřevostavbě? Zašlete dodavateli dotaz nebo nezávaznou poptávku!
Společnost RD Rýmařov je největším výrobcem dřevostaveb v rámci celé České republiky. Působí na českém stavebním trhu 50 let a má za sebou 25 tisíc realizovaných staveb v ČR i zahraničí. S historií firmy je neodmyslitelně spojen průmyslový rozvoj moderního stavění na bázi lehké prefabrikace dřeva. Dodávané montované dřevostavby se vyznačují nízkými energetickými nároky a díky tomu je lze zařadit do kategorie energeticky úsporných domů.
Zaslat dotaz nebo nezávaznou poptávku
Nejnovější články v kategorii “Návštěvy dřevostaveb”
-
Zrcadlová roubenka na soutoku
Majitel této roubenky – říkejme mu třeba Martin – měl jasný cíl: postavit svým dospělým dětem dům, kam by mohly o víkendech jezdit a být mu tak i s vnoučaty nablízku. A aby to…
-
Dřevěný domov v krajině rozlehlých luk
Tento příběh připomíná dokonalou pohádku o tom, kterak Kateřina a Jiří našli svůj vytoužený klid v podhůří Krkonoš. Jejich pozemek o rozloze dvaceti tisíc metrů čtverečních je…
-
Dávno splněný sen v podobě patrové dřevostavby na míru
Některé plány a nápady potřebují čas, aby mohly uzrát. Hluboko zapustit kořeny a trpělivě čekat na tu správnou dobu. Jako v tomto případě – poprvé totiž Milan na „svou"…
-
Dřevěná vila schoulená v náručí krajiny
Každý dům nevyhnutelně mění krajinu – jakým způsobem, to už záleží na jeho majitelích. Některé stavby přetvářejí okolí podle svého obrazu, jiné se naopak snaží splynout. A…












Vytvořeno v xart.cz