
Dřevěnou přístavbou navázali na stávající zděný dům. Získali tak nový prostor, kterým ušetřili peníze
Dana Jakoubková | Středa, 28. duben 2021 |
Chceme-li ve stavebnictví vytvořit nápadný objem, je beton první volbou. Pokud nám jde ale o netuctovou stavbu, můžeme volit třeba kontrastní párování materiálů. Jednou z obzvláště populárních je kombinace betonu, respektive cementu a dřeva, která spojuje dva základní stavební materiály. Příkladem takové povedené shody je přístavba Tomáše a Markéty zakotvená v kontextu původního domu z 80. let minulého století.
Dřevěná přístavba bude to pravé
Je poněkud překvapivé, že si mladý pár nepostavil rovnou celý nový dům. Ale důvod je jednoduchý: „Nešlo ani o to, že s přístavbou jsme ušetřili něco peněz," vysvětluje Tomáš. „Především jsme chtěli zůstat ´na dohled´ rodičům, se kterými jsme ještě několik let po narození dětí žili ve starém domě, a pak máme silnou vazbu na místo. Jak děti rostly, začali jsme vnímat naši polovinu domu jako prostorově nedostatečnou a zároveň jsme si uvědomovali, že náklady na provoz zděného bydlení nás finančně zbytečně zatěžují a neposkytují nijak dobrý uživatelský komfort. Rozhodli jsme se proto pro přebudování stávající bytové jednotky."
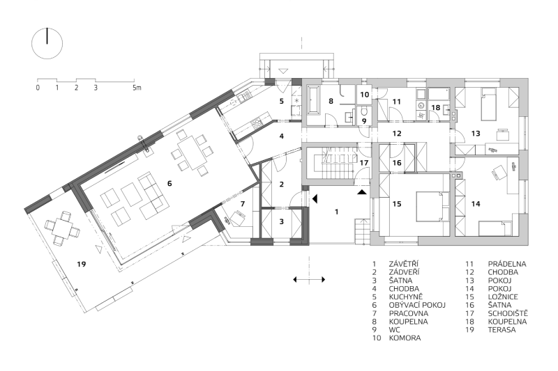
Pro její návrh oslovili manželé architekta, který jim s ohledem na prostorové i energetické požadavky, velikost a tvar pozemku a ochranná pásma technické infrastruktury doporučil propojit stávající bydlení s jednopodlažním objektem v zalomeném tvaru na úrovni řešeného podlaží.
Dispozici a tvar dřevěné přístavby určila představa o otevřeném prostoru, o pohybu „malých pokladů", orientace ke světovým stranám, vazba na výhledy do okolí, terénní konfigurace zahrady, umístění dětského hřiště i poloha hospodářské části.

Zrcadlení: Terasa ze sibiřského modřínu na ocelových válcovaných profilech slouží jako pohodlné závětří a volnočasový prostor. Její strop zachovává jednotu cementořískového podhledu po vzoru interiéru a má i stejnou výškovou úroveň. Foto: Jakub Sobotka
Uživatelský koncept
Tomáš s Markétou měli ve starém domě k dispozici celé přízemí. Na něj chtěli přístavbu navázat tak, aby ve zděné části vznikla pomocí stavebních úprav klidová část, kde tráví méně času a kde není nutné naplno topit celý den, tedy ložnice se šatnou, dva dětské pokoje, dvě koupelny a prádelna.
Do energeticky úsporné dřevostavby pak přesunuli společenskou část – kuchyni, obytný prostor s jídelnou a pracovnu. Uspořádání místností na jednom podlaží pak podporuje soudržnou interakci činností v souladu s rutinou obyvatel domu.

Jinakost: Jedním ze současných trendů je uplatnění konstrukcí a materiálů, které byste v interiérech občanských staveb neočekávali. K nim patří i stropní podhled z heraklitu, kterému majitelé podomácku říkají „vrabčí hnízdo". Desky z dřevité vlny pojené cementem plní nejen funkci estetickou, ale jejich otevřená struktura mimořádně dobře pohlcuje zvuk, funguje jako tepelný izolant a chrání konstrukci před ohněm. V domácnostech se běžně nepoužívá ani bezespárá polyuretanová stěrka na podlaze. Hospodyňkám není třeba vysvětlovat, proč je tak praktická. Navíc je měkká, příjemná na dotek a podle majitelů i skvělá na podlahové topení. A konečně rohové bezrámové okno typu výloha nabízí v tomto případě skutečně úchvatný výhled do zahrady a dál do přírody. Foto: Jakub Sobotka

Interiérový design: Jedním z dominantních zařizovacích a zároveň dekorativních prvků jsou akumulační krbová kamna s rohovým prosklením určená speciálně pro nízkoenergetické domy. Jejich konstrukce i při sníženém tepelném výkonu napomáhá dosáhnout vysoké účinnosti a tím nízkých nákladů na provoz. Centrální přívod externího vzduchu do spalovací komory pak představuje důležitou konstrukční část kamen, díky které nedochází k ovlivňování odtahu digestoře ani – pokud by jej měli – řízeného větrání. Oheň navíc neodebírá kyslík z místnosti. I přes tyto benefity nejsou kamna primárním zdrojem vytápění a zapalují se spíše pro radost v chladnějších dnech. Foto: Jakub Sobotka

Zadní vrátka: Zalomení domu je dobře patrné v kuchyni, která má vlastní výstup do zahrady k hřišti dětí, bylinkové zahradě, králíkům, vajíčkům a jiným vymoženostem. Foto: Jakub Sobotka

Tento článek vyšel v časopisu DŘEVO&stavby 2/2021
Objednejte si krásně vonící výtisk časopisu s kvalitními fotografiemi pouze za 95 Kč
koupit časopis
Párování stavebních materiálů
Logické uspořádání uživatelského konceptu je posíleno výběrem stavebních materiálů. Vnější plášť v šedém odstínu cementovláknitých desek doplňují modřínové palubky, které časem získají obdobnou šeď přirozenou cestou od slunce a povětrnosti.
Vnitřní „podšívka" pláště domu pokračuje v materialitě kombinací bílé výmalby a smrkové biodesky na straně jemné a betonového ztraceného bednění za krbem spolu s cementotřískovým podhledem stropu na straně hrubé. Vše dohromady s vhodnou volnou zařizovacích předmětů podle invence architekta vytváří působivou interakci průmyslově surového i útulně teplého designu.
Dřevěné plochy vedle hmotných cementových prvků vedou k odlehčení jinak těžkého stavebního prvku a okry dřeva kombinované s průmyslovou šedí vnášejí do domu teplo a rovnováhu.

Foto: Jakub Sobotka
"Světlost, přehlednost, prostornost a kompaktnost obytného prostoru s optickou i fyzickou vazbou na zahradu jsou základními atributy domu."

Dynamika: Jedním z důkazů konstrukčního zvládnutí stavby je statická část střešní konstrukce v kombinaci s bezrámovým prosklením (tedy nenosná část stěny), která musí být stabilní, ale přitom „pružná". Snahu o maximalizaci denního světla pak prezentují dřevěná okna s trojsklem – v tomto případě čím více formátů, tím větší dynamika. Foto: Jakub Sobotka

Živost: Pro ochranu obvodové konstrukce před účinky povětrnosti zvolil architekt cenově dostupný fasádní odvětraný systém z cementotřískových desek CETRIS. Jejich přirozeností je nestejný vzhled, který podtrhuje živost materiálu vnější obálky a časem s ním splyne menšinová plocha modřínového obkladu. Foto: Jakub Sobotka

Tento dům soutěží v anketě Dřevostavba roku 2021
Pomozte nám zvolit nejhezčí dřevostavby! Tato dřevěná přístavba se uchází o váš hlas v anketě Dřevostavba roku pod názvem "Dokonalý pár.". Hlasujte a získejte atraktivní ceny...
Hlasovat v anketě
Komentář architekta
Stavebníci – mladí manželé – byli při předložení navrhované koncepce možná překvapeni, ale záhy si ji osvojili, oblíbili a poté nám plně důvěřovali. Navždy si zapamatuji připodobnění heraklit a vrabčí hnízdo. Těší mě, že majitelé přistupují s nadhledem k otázkám typu: Kdy se omítne heraklitový podhled, kdy se natře obklad ze sibiřského modřínu nebo kdy už položíte na stěrkovou podlahu koberec. Nic z toho samo sebou Tomáš s Markétou neplánují, respektive stávající stav je záměrný. Ne každý inves tor ale dokáže přijmout sousedská šťouchnutí s úsměvem.

Ing. arch. Karel Janča
janca architect
Technické parametry
- Typ domu: nízkoenergetický
- Zastavěná plocha přístavby: 100,7 m2 (včetně terasy)
- Obytná plocha: 53,2 m2 (přístavba) + 77 m2 (stávající zděná část domu)
- Konstrukční systém: difuzně otevřený rámový (Two by Four) s nosníky Steico Wall; minerální a dřevovláknitá izolace
- Zdroj energie / teplo: kotel na plyn a na dřevo v původním objektu s rozvody podlahového teplovodního topení i do přístavby + doplňkově krbová kamna; příprava pro tepelné čerpadlo a fotovoltaiku
- Větrání: přirozené okny
- Součinitel prostupu tepla stěnou U: 0,12 W/m2K
- Autor arch. návrhu a projektu: Ing. arch. Karel Janča a Martin Kaňák, janca architect, www.arch-janca.cz

Nejnovější články v kategorii “Návštěvy dřevostaveb”
-
Zrcadlová roubenka na soutoku
Majitel této roubenky – říkejme mu třeba Martin – měl jasný cíl: postavit svým dospělým dětem dům, kam by mohly o víkendech jezdit a být mu tak i s vnoučaty nablízku. A aby to…
-
Dřevěný domov v krajině rozlehlých luk
Tento příběh připomíná dokonalou pohádku o tom, kterak Kateřina a Jiří našli svůj vytoužený klid v podhůří Krkonoš. Jejich pozemek o rozloze dvaceti tisíc metrů čtverečních je…
-
Dávno splněný sen v podobě patrové dřevostavby na míru
Některé plány a nápady potřebují čas, aby mohly uzrát. Hluboko zapustit kořeny a trpělivě čekat na tu správnou dobu. Jako v tomto případě – poprvé totiž Milan na „svou"…
-
Dřevěná vila schoulená v náručí krajiny
Každý dům nevyhnutelně mění krajinu – jakým způsobem, to už záleží na jeho majitelích. Některé stavby přetvářejí okolí podle svého obrazu, jiné se naopak snaží splynout. A…











Vytvořeno v xart.cz