Michal Babor | Úterý, 25. květen 2021 |
Rodinu, jejíž pozvání k návštěvě rodinného domu jsme přijali koncem léta, můžeme směle nazvat světoběžníky: Eva je Češka, Sean je Kanaďan, a po světě cestovali v době, kdy to bylo ještě možné, nejen za odpočinkem, ale i za prací. Poslední pracovní povinnosti plnili v Dubaji a přivezli si odtud několik kusů originálního nábytku. Jenže kam s nimi? Rozhodně do nového domu, jakého jiného než dřevěného!
Tři generace pod jednou střechou
Cesta za rodinným domem vedla přes doporučení známých, kteří stavěli před nedávnem a s vybranou dodavatelskou firmou byli velmi spokojeni. Protože stavební pozemek s krásným výhledem nedaleko Prahy už vlastnili z dřívější doby, měli celý proces jednodušší.
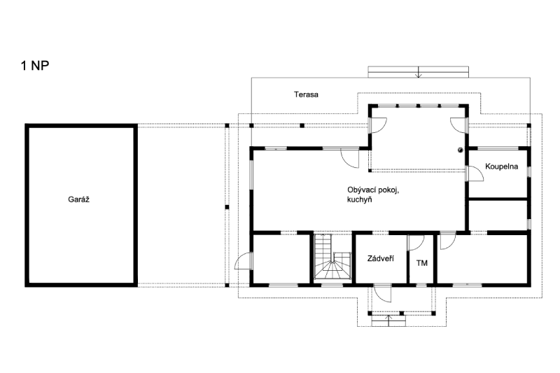
Stačilo si vybrat dům a případně upravit jeho dispozice, aby v něm pětičlenná rodina měla dost prostoru nejen pro společný život, ale i každý své soukromí. Počítat se muselo také s babičkou, takže vybraný typový dům se zvětšoval o rovných třicet čtverečních metrů.
„Protože naši přátelé byli s kvalitou domu i s rychlostí stavby moc spokojeni, věřili jsme, že i v našem případě proběhne všechno hladce," říká Sean. „Náš předpoklad vyšel, dům rostl neuvěřitelně rychle. Během čtyř týdnů byla dokončena hrubá stavba, dokončovací práce trvaly pár měsíců, ale to už tak bývá."

obr.: Plechová střešní krytina dobře koresponduje s výraznou kresbou lepených hranolů vyrobených z jemnoleté borovice. Foto: KONTIO

obr.: Prostor mezi samostatně stojící garáží a domem je prakticky zastřešený a slouží většinou jako carport. Foto: KONTIO

obr.: Hustota letokruhů finské jemnoleté borovice je větší než borovice středoevropské, proto má dřevo lepší tepelněizolační vlastnosti. Foto: KONTIO

obr.: Okraj obce a sousedství rozlehlých lánů znamená i trochu větrnější podmínky, proto přijde občas vhod i posezení v závětří na terase. Foto: KONTIO
Dominantní prvky masivní dřevostavby
Jednoznačně nejatraktivnějším prvkem je prosklený rizalit v delší straně domu. Otevírá pohledy z interiéru do zahrady a do prostoru uvnitř domu přivádí nadstandardní množství denního světla. To je v domě z masivního dřeva důležité, protože dřevo část světla pohlcuje.
V tomto případě je ale opak pravdou, protože v obytném prostoru, jehož součástí je i kuchyně, je kromě několika standardních oken i okno francouzské spojující interiér s terasou a zahradou. Kromě toho se v přízemí nachází ještě pokoj pro hosty, který hojně využívá při svých návštěvách babička. I proto je jeho součástí samostatná koupelna.

obr.: Katedrálový strop je otevřen do štítu. Kontaktním místem obou podlaží je galerie, která zajišťuje propojení domu a kontakt všech členů rodiny. Foto: KONTIO

obr.: Lihový krb je primárně designovým prvkem, jeho výhřevnost je nižší než u zdrojů spalujících dřevo, nicméně částečně interiér vyhřát dokáže. Dělicí stěny v interiéru mají sloupkovou konstrukci a jsou opláštěny log panely se stejným dezénem jako stěny obvodové. Foto: KONTIO

obr.: Jemnoletá severská borovice si díky zvýšenému obsahu plných pryskyřic dlouho zachovává krásnou vůni. Foto: KONTIO

obr.: V dispozici obytného prostoru je kuchyně situována tak, aby odtud byl přehled o veškerém dění, a zároveň v dostatečné vzdálenosti od televizního posezení, aby provoz spotřebičů tolik nerušil. Foto: KONTIO
Vzhůru do patra dřevostavby
Obě podlaží propojuje transparentní schodiště. Vystoupá se po něm nejprve do galerie, která obě podlaží propojuje a zároveň díky katedrálovému stropu slouží i jako malá rozhledna do okolí. Zároveň se může stát i pomyslným kapitánským můstkem, odkud může každý, kdo momentálně pobývá v podkroví, pohodlně komunikovat s osobami v přízemí, aniž by musel po schodech dolů. V patře najdeme ještě tři dětské pokoje se společnou koupelnou a ložnici, která má koupelnu vlastní.

obr.: Schodiště umístěné ve výklenku je plně prosvětleno samostatným oknem. Foto: KONTIO

obr.: Komunikační prostor v podkroví je nejen spojnicí mezi jednotlivými místnostmi v patře, ale i bodem pro vertikální kontakt s přízemím. Foto: KONTIO

obr.: Rodičovská ložnice v podkroví má vlastní koupelnu. Foto: KONTIO

Foto: KONTIO

Tento dům soutěží v anketě Dřevostavba roku 2021
Pomozte nám zvolit nejhezčí dřevostavby! Tato kouzelná roubenka se uchází o váš hlas v anketě Dřevostavba roku pod názvem "Tři generace pod jednou střechou". Hlasujte a získejte atraktivní ceny...
Hlasovat v anketě

obr.: V menší koupelně, která je příslušenstvím k dětským pokojům, se našlo místo pro dubajský mobiliář. Foto: KONTIO

Foto: KONTIO

Tento článek vyšel v časopisu sruby&ROUBENKY 2/2021
Objednejte si krásně vonící výtisk časopisu s kvalitními fotografiemi pouze za 69 Kč
koupit časopis
Technické parametry
- Zastavěná plocha: 210 m2
- Užitná plocha: 179 m2
- Konstrukce: v přízemí roubená konstrukce z lepených hranolů (finská borovice), v podkroví sendvičová konstrukce s opláštěním palubkami
- Vytápění: podlahové plynové, v patře přímotopy, plynový krb
- Realizace: Finutea s.r.o. – dřevěné domy Kontio, www.drevostavby-kontio.cz

Líbí se vám dřevostavby a zajímalo by vás k nim více informací? Zašlete nám dotaz!
Zaslat přímý dotaz dodavateli této dřevostavby
Vaše komentáře (1)
Nejnovější články v kategorii “Návštěvy dřevostaveb”
-
Zrcadlová roubenka na soutoku
Majitel této roubenky – říkejme mu třeba Martin – měl jasný cíl: postavit svým dospělým dětem dům, kam by mohly o víkendech jezdit a být mu tak i s vnoučaty nablízku. A aby to…
-
Dřevěný domov v krajině rozlehlých luk
Tento příběh připomíná dokonalou pohádku o tom, kterak Kateřina a Jiří našli svůj vytoužený klid v podhůří Krkonoš. Jejich pozemek o rozloze dvaceti tisíc metrů čtverečních je…
-
Dávno splněný sen v podobě patrové dřevostavby na míru
Některé plány a nápady potřebují čas, aby mohly uzrát. Hluboko zapustit kořeny a trpělivě čekat na tu správnou dobu. Jako v tomto případě – poprvé totiž Milan na „svou"…
-
Dřevěná vila schoulená v náručí krajiny
Každý dům nevyhnutelně mění krajinu – jakým způsobem, to už záleží na jeho majitelích. Některé stavby přetvářejí okolí podle svého obrazu, jiné se naopak snaží splynout. A…














Vytvořeno v xart.cz