Dana Jakoubková | Středa, 29. září 2021 |
Říká se, že aby mohl architekt dát tvar vašim úvahám o domě, je potřeba mu záměr jasně specifikovat. Jaroslava s Pavlem ale měli jen unifikovanou představu o ložnici v patře, otevřené kuchyni a velké terase. Prostě klasika, na kterou by stačil typový dům z katalogu. Přesto architekta oslovili a přesvědčili se o tom, že ten dobrý dokáže udělat i „z prdu kuličku".
Že nechtějí dům z katalogu, věděli Jarka s Pavlem od samého začátku. Obcházeli veletrhy, prohledávali internet, ale stále si nedokázali vybrat. „Po dlouhé době jsme viděli v časopise pěkný dům a u něj adresu architektů kousek od manželova pracoviště," vypráví Jarka.
„Hned jsme tam zašli s tím, že máme představu hlavně o tom, jak se chceme v domě cítit. A světe div se, stačilo pár vět s architektem a už jsme neměli důvod hledat dál. V kreativitě jsme ho nechtěli nijak omezovat a díky tomu teď máme dům, ze kterého se nám ani hostům nechce odjíždět."
Architektův talent uchopit nevyřčené byl prý až zarážející. Z místa budoucí stavby, kde tou dobou byly jenom bramborové brázdy, byl tak nadšený, že stavebníci nechápali. Přesto mohli za šest týdnů nad hotovou studií říct jenom: přesně to nám padne do noty.
Ruční práce
Jelikož byl přístup na pozemek pro těžkou techniku komplikovaný, probíhala přímo na staveništi montáž tradiční rámové konstrukce (sloupkové). Staveništní výstavba vyžaduje zkušené řemeslníky, aby práce probíhaly rychle a bez komplikací.
„Začínali jsme stavět na přelomu září a října a daly se čekat podzimní deště," vzpomíná Jarka. „Hrubá stavba ale byla pod střechou raz dva. Kdyby se nezdržela dodávka velkoformátových oken, která – jak se později ukázalo – byla pro subdodavatele technickým oříškem, mohli jsme se nastěhovat za tři měsíce."

Foto: Martin Zeman

Foto: Martin Zeman
Dřevostavba k dokončení
Stavebníci zpočátku na výstavbu nijak nepospíchali. Jestli bude postaveno za měsíc, nebo za šest, je netrápilo, protože plánovali dům využívat zatím jen rekreačně. Problém s okny ale posunul dokončení hrubé stavby na termín, kdy už měla dodavatelská firma plánovanou jinou stavbu. „Přesto se ale snažila posílat nám sem dělníky průběžně, aby se dům i po termínu dokončil co nejdříve," upřesňuje Jarka.
„Nestavěli jsme na klíč, dodavatelská firma se postarala o hrubou stavbu, výplně otvorů, střechu, fasádu a řízené větrání s ohřevem teplé vody. Zbytek jsme si zařizovali sami formou subdodávek." Šlo například o rozvody vody a elektřiny, instalace sádrokartových desek, položení podlahové krytiny, interiérové dveře nebo obložení schodiště dřevem.
„To jediné bychom příště udělali jinak," doplňuje Jarka. „Je totiž úzké a moc zatočené. Lepší by bylo s podestou. Ale jinak bychom na domě nezměnili nic."

Foto: Martin Zeman
Fasáda dřevostavby jako rodinné stříbro
Jako fasádní obklad si Jarka s Pavlem vybrali dub z nedalekého lesa. Ne proto, že by chtěli utratit víc peněz, ale protože dub je trvanlivý, rozumí si s místními klimatickými podmínkami a především proto, že les patří do rodiny. „Tak, jak to na vesnicích bývalo, rodiče měli statek a kus lesa po předcích," pokračuje Jarka.
„Dvě části z něj byly dubové a otec nám z nich dvaadvacet stromů věnoval. Nechali jsme je vybrat lesníkem, porazit a vysušit až u Vlašského Meziříčí na Moravě. Udělat to správně totiž není nic jednoduchého. To se musí opravdu umět. A nějaký ten kilometr navíc nehrál roli. Z dubu tedy máme nejen fasádu, ale i podlahu, obklady, schody, terasu a drobné detaily zařizovacích prvků."

Styl: Odvětraná fasáda z rodinného dubu bez povrchové úpravy je na severní terase, mansardovém vikýři a nad hlavním vstupem doplněna cementotřískovými deskami CEMBRIT. Foto: Martin Zeman

Zkušenost: Majitelé měli v plánu jen terasu směrem na západ. Architekt k ní přidal ještě jednu na severní straně domu. Prý ji určitě ocení. A měl pravdu. I když je velká jen na stůl a židle, dnes na ní tráví rodina většinu letního času. Na té západní ale Pavel rád relaxuje vleže. Když je unavený, jen se natáhne na podlahu a splyne s rodinným dubem. Foto: Martin Zeman
Čerstvý vzduch a tepelná pohoda
Instalaci řízeného větrání s aktivní rekuperací doporučil stavebníkům architekt po zhlédnutí pozemku. „Všude kolem nás jsou totiž domy vytápěné pevnými palivy a na podzim při inverzi bychom si nemohli otevřít okno – spaliny by byly okamžitě v domě," vysvětluje Jarka.
„Větrání využíváme na maximum. O jeho chod se vůbec nestaráme. Systém je tak tichý, že ani neregistrujeme provoz. Nastavený je tak, aby v domě neustále udržoval čerstvý vzduch. Kontroluje i jeho vlhkost, úroveň těkavých látek (VOC) a hladinu CO2. Nevypínáme ho, ani když máme v létě prakticky stále dokořán na terasu. Automaticky se sám přizpůsobí podmínkám a je-li potřeba, interiér i vychladí. Jednotka ohřívá také vodu pro kuchyni a koupelnu. Vytápění je navrženo jako elektrické, ale konvektory zapínáme málokdy. Bohatě postačuje zavlažit krbovými kamny. Máme zkušenost ze zděného domu, kde po zatopení dlouho trvalo, než se dům vytopil a ráno bývala zima. V dřevostavbě je prakticky konstantně příjemné klima."

Vychytávka: Krbová kamna mají otáčivé ohniště a nízký výkon (4 kW), aby se interiér nepřehříval. Foto: Martin Zeman

Čas: Každý víkend si majitelé říkají, co udělají práce. Ale jakmile zasednou za velký dubový stůl a zakoukají se na horizont, prolelkují spoustu času. Foto: Martin Zeman

Vaření: Venkovní kuchyni Jarka nechtěla. Pokud vařit, tak s pocitem, jako by venku byla. Toto přání splnila prosklená stěna beze zbytku. Foto: Martin Zeman

Tento dům soutěží v anketě Dřevostavba roku 2021
Pomozte nám zvolit nejhezčí dřevostavby! Tato moderní dřevostavba se uchází o váš hlas v anketě Dřevostavba roku pod názvem "Pod rodinným stromem". Hlasujte a získejte atraktivní ceny...
Hlasovat v anketě
Stavět dřevostavbu bez stresu
Jarka i Pavel pocházejí ze stejné vesnice. Těší se, až se sem na stáří přestěhují natrvalo. „Když jsme před čtyřmi lety dům dokončovali, už bylo znát, že dřevostavby jedou a firmy mají dost zakázek," bilancuje Jarka.
„A už tehdy byl boj o řemeslníka. Neumím si představit, že bychom stavěli dnes. Řemeslníky už neseženete vůbec a k tomu nejsou ani materiály. Nyní, když víme, co stavba obnáší, jsme rádi, že se nám to povedlo s předstihem. V čase důchodu už bychom na to nejspíš neměli elán."

Zábava: Hala v patře slouží jako domácí „kino", ve kterém promítají sice jen jeden film, zato každý den v jiných barvách a dynamice. Atmosféru skvěle doplňují zapuštěná světla pod oknem. Foto: Martin Zeman

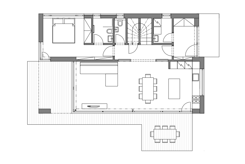
Kouzlo: Ložnici předpokládali manželé automaticky v patře. Architekt ji ale umístil do přízemí. Samotné by je to nenapadlo, ale kdykoli do ní vejdou, blahořečí mu za to, že nemusí po schodech. Jako bonus mají kouzelný výhled z postele – Pavel rád kouká k lesu, Jarka k horám a na rybník. Foto: Martin Zeman

Foto: Martin Zeman
Kdo v dřevostavbě bydlí?
Neměli jsme žádný sen o vlastním domě, nechali jsme vše plynout a postupovali krok za krokem. Za dva roky od první myšlenky jsme se mohli posadit v našem krásném domě a nechtěli uvěřit, že se povedlo něco tak úžasného. Ještě dnes se nad tím občas pozastavíme.

Jaroslava a Pavel
majitelé dřevostaveb

Sklo: Posuvný okenní systém vyplňuje celou stěnu s přilehlou západní terasou a pokračuje za roh na terasu severní. Přiznaná konstrukční táhla mají nejen stabilizační funkci, ale působí i jako designový prvek, který materiálem a barvou koresponduje s venkovními žaluziemi. Dřevěná okna s izolačním trojsklem jsou natřena přírodní světlou lazurou a v prvním patře je okno osazeno vrstveným bezpečnostním sklem s vnější VSG fólií CONEX (při rozbití skla zůstanou střepy přilepené na fólii). Foto: Martin Zeman
Komentář architekta
Rodinný dům jsme na přání klientů navrhovali coby klasický venkovský dům, ale z moderních materiálů. Stavebním prvkem, se kterým běžně nepracujeme, byl obklad z dubu. Dubové dřevo je tvrdší než klasický modřín, který běžně používáme na obklad, což bylo třeba zohlednit při kotvení. Dalším specifikem byla téměř bezrámová okna, kde bylo třeba propracovat všechny detaily. Vizuální efekt zasklení bez rámů je patrný hlavně v dolní prosklené části. Nahoře jsou zvýrazněny rámy otvíravých částí, zbytek je zasazený do konstrukce. Mým oblíbeným prvkem u tohoto domu je krytá část terasy v přízemí, která slouží k posezení.

Ing. arch. Václav Zahradníček
Prodesi/Domesi

Hrouda: Na vyrovnání svahu pozemku padly desítky tater zeminy. Vedlejším efektem obrovského množství hlíny je spousta záhonů se stovkami květin i zeleniny a prostorný sklep, který si stejně jako opěrné zídky postavil za pomoci tchána Pavel vlastníma rukama. Foto: Martin Zeman
Technické parametry
- Typ domu: nízkoenergetický
- Zastavěná plocha: 107,98 m2
- Užitná plocha: 145,04 m2
- Dispozice: 4+1
- Konstrukční systém: rámová konstrukce Two by Four – letmá montáž
- Teplo: elektrické přímotopy + temperace podlahy elektrickými rohožemi v koupelnách
- Větrání a teplá voda: rekuperační jednotka NILAN
- Součinitel prostupu tepla stěnou: 0,16 W/m2K
- Architektonický návrh: Ing. arch. Václav Zahradníček, Ing. arch. Hana Viskupičová, www.prodesi.cz
- Projekt: Bc. Jan Švarc Di.S., www.domesi.cz
- Realizace stavby: Domesi s. r. o., 2016, www.domesi.cz


Zdroj půdorysů: Prodesi/Domesi

Tento článek vyšel v časopisu DŘEVO&stavby 5/2021
Objednejte si krásně vonící výtisk časopisu s kvalitními fotografiemi pouze za 95 Kč
koupit časopis
Nejnovější články v kategorii “Návštěvy dřevostaveb”
-
Zrcadlová roubenka na soutoku
Majitel této roubenky – říkejme mu třeba Martin – měl jasný cíl: postavit svým dospělým dětem dům, kam by mohly o víkendech jezdit a být mu tak i s vnoučaty nablízku. A aby to…
-
Dřevěný domov v krajině rozlehlých luk
Tento příběh připomíná dokonalou pohádku o tom, kterak Kateřina a Jiří našli svůj vytoužený klid v podhůří Krkonoš. Jejich pozemek o rozloze dvaceti tisíc metrů čtverečních je…
-
Dávno splněný sen v podobě patrové dřevostavby na míru
Některé plány a nápady potřebují čas, aby mohly uzrát. Hluboko zapustit kořeny a trpělivě čekat na tu správnou dobu. Jako v tomto případě – poprvé totiž Milan na „svou"…
-
Dřevěná vila schoulená v náručí krajiny
Každý dům nevyhnutelně mění krajinu – jakým způsobem, to už záleží na jeho majitelích. Některé stavby přetvářejí okolí podle svého obrazu, jiné se naopak snaží splynout. A…











Vytvořeno v xart.cz