Dana Jakoubková | Středa, 16. únor 2022 |
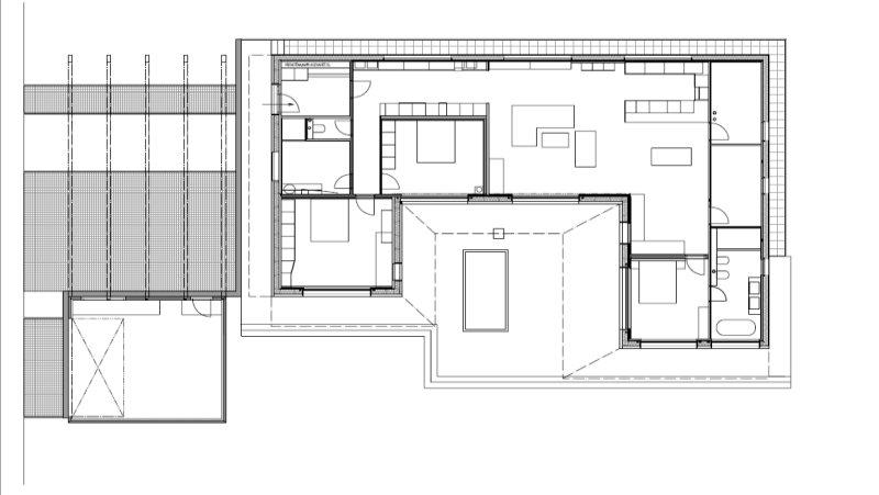
V měřítku staveniště existují různé strategie pro spojení formy domu s prostorem kolem něj. Tato architektonická konfigurace stojí na tvaru písmene U, který už z principu svádí k výsledku stát se honosným. Přesto, i když se jedná o rozlehlý dům, dokázali mu tvůrci zachovat introvertní vzhled ve vztahu k lokalitě, aby jeho ambice plně rozbalili až v nitru jako otevřenou pozvánku k pospolitosti.
Někteří stavebníci dokážou své představy o komfortu utopit v moři stejnosti. Oliver s Ingrid je sympaticky přenesli do nenápadnosti kvality provedení stavby a ztvárnění interiéru. Čím hlouběji pronikám do sofistikovaných materiálů a uvolněné, zdrženlivé estetiky, tím častěji nahrazuji slovo odiv výrazem obdiv. Design a funkce i toho nejmenšího detailu byly pečlivě vyváženy a dávkovány do porcí, kterými se člověk „nepřejí", ale ani nemá pocit typu „ještě bych si něco dal". Dojem, že je tu všechno a všeho tak akorát, naznačuje, že si s přípravou, promyšleností a provedením všichni zúčastnění skutečně vyhráli.
Otevřený půdorys v dřevostavbě
Díky inovacím ve stavebních materiálech a technologiích jsou dnes otevřené dispozice obytného prostoru mnohem snadněji realizovatelné. Vysoce pevnostní panely z křížem lepeného dřeva (CLT) umožňují překlenout i rozlehlé místnosti a dát jim horizontálně i vertikálně obdivuhodné parametry. V uživatelské i estetické rovině pak tento materiál dalece přesahuje požadavky na moderní bydlení. Nabídky produktů stavební evoluce proto využili majitelé domu maximálně.
Na druhou stranu, zatímco tradiční rozdělení dispozice na účelové místnosti obyvatelům život zjednodušuje (stačí jen zavřít dveře), myšlenka otevřeného interiéru přináší kromě lehkosti a neformálnosti i nutnost určité střídmosti a uživatelské disciplíny. Klidná, elegantní a vzdušná atmosféra nemá v takových prostorách konstantní rys a může velmi snadno sklouznout do podoby přeplněného koše na prádlo.
S tím byli Oliver s Ingrid srozuměni a vysloveně si přáli odstranit z návrhu domu maximum vnitřních dveří. Že věděli přesně, co a proč chtějí, dokládá fakt, že by svůj záměr neměnili ani po dvouletých zkušenostech. Opačně je to s dveřmi v obvodových stěnách, kterými jsou opatřeny všechny pobytové místnosti směřující do elegantního atria, které kromě dostatku prostoru nabízí především soukromí před očima „ulice" a posiluje rodinné pouto.
Komentář majitele – Vzduch
„Žijeme v jedné z nejčistších lokalit na Moravě, tak proč si vzduch filtrovat. Vyzkoušeli jsme různé čističky vzduchu, abychom ověřili přítomnost polétavého prachu a kvalitu vnitřního vzduchu obecně. A byl naprosto v pořádku, s kondicí konzistentní po celý rok. Nepatřím k fanouškům řízeného větrání. Vzduch vysušuje a nevěřím, že se dá i při správné údržbě stoprocentně eliminovat jeho zdravotní nezávadnost. Trvale zde žijeme dva, takže si těch pět set kubíků vzduchu jen tak nevydýcháme."
Komentář architekta
Laskavý lidský přístup, to je to, co nejlépe vystihuje majitele domu. Spolupráce s nimi byla pro mě velkou výzvou. Je to totiž první dům, který byl podle mého návrhu a přesně i podle představ realizován z panelů NOVATOP, které jako jediné na trhu dovolují vyhovět tak vysokým nárokům na kvalitu. Architektura, kterou vytváříme v naší kanceláři, je současná, funkční a příjemná pro bydlení. Pro mě je však největší odměnou, když dům funguje v různých ročních obdobích, je energeticky úsporný, technologií nabitý a zároveň se v něm jeho uživatelé cítí komfortně a bezpečně. Estetická a energetická udržitelnost domů – to je budoucnost.

Ing. arch. Aleš Makový
Dokonalé „účko"
Konfigurace vertikálních rovin písmene U má schopnost definovat pole prostoru, které je zaměřeno dovnitř i ven. Až teprve směrem k otevřenému konci se toto pole stává v podstatě extrovertním. Otevřený konec „účka" je vlastně nejlepším vyjádřením požadavku na vizuální a prostorovou kontinuitu s navazujícím exteriérem. Dokonalost „U" je ovšem i ve tvaru samotném, v jeho symbolice. Ať už sáhneme do antiky, nebo matematických definic, „účko" může být studnou nebo lůnem – zdroji života, je symbolem pro potenciální energii a představuje i téma sjednocení. V českém pojetí dokáže také utěšit i uklidnit. Jednoduše „U" rovná se útočiště a útočištěm je pak domov.
Komentář majitele – Stínění
„Na přesah střechy jsem zvláště pyšný. Přirozeně chrání zavěšenou modřínovou fasádu před přímým sluncem a deštěm, což mnohonásobně prodlužuje jak její estetickou, tak faktickou životnost. Hlavním významem však je přirozená ochrana velkých okenních ploch před přímým slunečním svitem, které by jinak mělo za následek fatální přehřívání domu.
Nezbytnou součástí tohoto komplexního řešení jsou také kvalitní venkovní žaluzie. Na to bohužel současná architektura ráda zapomíná a upřednostňuje „čistý design" před neošiditelnými zákony fyziky. Výsledkem pak není nic jiného, než horko na terase a přehřátý dům, na rozdíl od příjemného klimatu jak uvnitř domu, tak v atriu v průběhu celé sezóny, kdy dům používáme jako přirozenou součást exteriéru. Nikoli obráceně!"
Komentář dodavatele
Od první chvíle, kdy nás klient oslovil s přáním realizovat tuto stavbu, jsme věděli, že se bude jednat o velmi náročnou, ale o to zajímavější a krásnou stavbu. Průběh výstavby se nesl v přátelském duchu, jelikož jsme měli od klienta veškerou důvěru, což je vždy obrovská motivace pro celý náš tým. Velice si vážíme toho, že jsme byli pro komplexní realizaci vybráni a jsme opravdu hrdí na precizní provedení díla. Výsledek může každý posoudit sám. S konstrukčním systémem NOVATOP pracujeme řadu let; je prověřený, sami v něj máme velkou důvěru a vnímáme i vzrůstající oblibu u klientů.
Komentář majitele – Zvuk
„Stavební a prostorová akustika byla pro nás důležitým bodem. Na tuto nezbytnou veličinu architekti často nemyslí a pak může jít o akustický horor – subtilní konstrukce, hladké odrazivé plochy (stěny, sklo, nábytek, podlaha). Přitom se dá akustika velmi efektivně řešit, pokud je na ni myšleno už v projektu. Optimalizovat ji dodatečně nevede k dobrému výsledku. Kromě stropních panelů, které řeší akustický komfort v interiéru jednotlivých pokojů, jsme příčku u ložnice a pokojů pojali ve specifické skladbě, kde je z obou stran CLT panelu přidaná izolace tak, aby se jednotlivé plochy vzájemně nedotýkaly a zvuk se nepřenášel přes konstrukci."
Komentář odborníka
S Oliverem a Ingrid se znám již z předchozí realizace jejich bytu. Už tehdy mě oslovil jejich přátelský, ale zároveň velmi profesionální a otevřený přístup k realizaci. Potěšilo mě, když mě oslovili znovu. Hned na první schůzce jsem věděl, že to bude velmi zajímavý dům. Dostal jsem jejich plnou důvěru od komplexního návrhu interiérů přes výběr materiálů až po ladění posledních detailů. Když se dnes dívám na úplně první návrh interiéru, jsem sám mile překvapen, že zaznamenal jen minimum změn. To je pro mě jasný signál, že jsem dokázal pochopit a nacítit, co přesně Oliver a Ingrid chtějí. Jsem spokojen, že se zde cítí doma.

Martin Sučan
interiérový designér
Komentář majitele – Teplo
„Krb miluji odjakživa. V každém předchozím domě jsem měl dokonce otevřený krb a byla to neodmyslitelná součást bydlení. V tomto perfektně izolovaném domě si to ale dopřát nemohu. Ukázalo se, že i jeden a půl kilowaty výkonu je hodně. Už za hodinu nám tu není příjemně. Musel bych podlahové teplovodní topení ráno vypnout, aby spadla teplota natolik, aby bylo snesitelné teplo od krbu. Hodně lidí mi říkalo předem, že kamna budou moc. Ale já měl svoji hlavu a teď jim musím dát za pravdu . Pohled do ohně si tedy necháme na chatu, kde vzduch přirozeně cirkuluje netěsnostmi, a kamna asi někomu věnuji. Anebo nám poslouží v době nadcházející energetické krize."
Komentář majitele – Energie
„Fotovoltaika je můj koníček. Pořídil jsem ji hlavně proto, abych se na ní něco naučil, a chci to aplikovat dál, rozvíjet, včetně elektromobilu, který v současném pojetí sice považuji pouze za krátkodobé a přechodné řešení, ale chci ho vyzkoušet, než dojde k výpadkům elektrické sítě a dojdou zdroje na výrobu autobaterií. Pro provoz domu se fotovoltaika v podobě, jak ji navrhl odborník, neosvědčila. Baterie nastřádá energii tak na den provozu – rychle se vybije. V létě máme obrovský přebytek, který můžeme prodávat jen ČEZu za dvacetník kilowatu, takže ho raději „utápím" v bazénu. V zimě systém nefunguje, pokud nesvítí slunce, takže musím proud dokupovat.
Když to shrnu – úspora je jasná, vyrobíme hodně proudu, ale v době, kdy obvykle není nikdo doma, a tudíž není odběr. Řešením je pouze dohoda o zpětném odkupu nadbytečného proudu s poskytovatelem,či jeho redistribuce na jiné místo, případně aktivní spolupráce s baterií elektromobilu. Takový systém již existuje a je cílem našeho dalšího rozvoje a bližšího pochopení smysluplného využití solární energie."
Co bych udělal jinak
„Podlahové topení a teplá tekoucí voda v garáži mi opravu chybí."

Tento dům soutěží v anketě Dřevostavba roku 2022
Pomozte nám zvolit nejhezčí dřevostavby! Tato do detailu promyšlená dřevostavba se uchází o váš hlas v anketě Dřevostavba roku 2022 pod názvem "Evoluční prototyp". Hlasujte a získejte atraktivní ceny...
Hlasovat v anketě
Co zaujalo redaktorku v domě Olivera a Ingrid?
Digestoř v lustru
Kruhová svítidla by sama o sobě nebyla až tak originální. Ovšem protáhnout kruhem lustru tubus digestoře, to už mi přijde hodně nápadité.
Akustický panel
S tímto řešením prostorové akustiky jsem se na návštěvě setkala poprvé. Mohla jsem tak na vlastní uši prověřit jeho funkčnost a Oliver mi rád předvedl zvučnost svého hlasu. Pokud hovor probíhal v perimetru panelu, mohu potvrdit, že byl jeho dozvuk znatelně utlumen, odhadem více než z poloviny. Stačilo ustoupit o krok stranou a už se jeho slova „nesla".
Z hlediska funkce i estetiky si neumím představit, jak by se prostor dal odhlučnit lépe, zvláště pak mezi stavebníky v tak oblíbené dispoziční trojkombinaci obývák-kuchyně-jídelna. Oliver s Ingrid jím vyřešili ozvěnu nejen v ložnicích, ale u společných prostor v ploše mnohem větší, než jsem zvyklá v domech vídat. K výše zmíněným zónám u nich totiž patří ještě dvě chodby a pracovní kout, dohromady v ploše 99 metrů čtverečních.
Panel může být instalován jak ve svislé, tak vodorovné poloze. Oliver zvolil panel stropní. Nezabírá tak ani centimetr cenné podlahové plochy. Vyrobený je z vícevrstvé desky z rostlého dřeva a absorbéru z dřevovlákna. Pohledová kvalita vybrané dřeviny, v tomto případě smrku, a individuální volba perforace (profilu i jeho poměru v ploše) z něj dělá i designový prvek.
Plastická stěna
Italský, respektive benátský štuk použitý na dvou protilehlých stěnách je dekorativní sám o sobě. V tomto případě si ale designér pohrál s plasticitou tak, že jedna stěna prostoru dominuje. Je to dáno jednak tím, že její plocha má různou hloubku (není v jedné rovině), a pak vzniklé vertikální „proluky" vedené pod nestejnými úhly jsou ještě dozdobeny masivními dubovými profily. Velmi autorské a elegantní řešení, které současně přispívá k rozbití zvukové vlny šířící se prostorem.

Dana Jakoubková
redaktorka
Technické parametry
- Typ domu: nízkoenergetický
- Zastavěná plocha: 239,3 m2 (bez garáže)
- Užitná plocha: 199,3 m2 (bez garáže)
- Dispozice: 4+kk
- Konstrukční systém: panely CLT NOVATOP SOLID (stěny) + ELEMENT (strop a střecha) + STATIC (přesah střechy)
- Zdroj energie / teplo: tepelné čerpadlo vzduch-voda, teplovodní podlahové topení
- Větrání: přirozené křížové provětrávání
- Součinitel prostupu tepla stěnou U: 0,13 W/m2K
- Okna, dveře: okna dřevěná, trojsklo; zvukotěsné dveře SAPELI
- Akustické panely: NOVATOP Acoustic
- Autor arch. návrhu a projektu: Ing. arch. Aleš Makový, www.dumnazelenou.cz
- Design interiéru: Ing. Martin Sučan, www.sucandesign.cz
- Realizace stavby: 2019, Dřevostavby MC Novák s.r.o., www.drevostavby-mc.cz
- Foto se souhlasem pro časopis DŘEVO&stavby 1/2022: Ondřej Pavlačík

Tento článek vyšel v časopisu DŘEVO&stavby 1/2022
Objednejte si krásně vonící výtisk časopisu s kvalitními fotografiemi pouze za 99 Kč
koupit časopis
Nejnovější články v kategorii “Návštěvy dřevostaveb”
-
Zrcadlová roubenka na soutoku
Majitel této roubenky – říkejme mu třeba Martin – měl jasný cíl: postavit svým dospělým dětem dům, kam by mohly o víkendech jezdit a být mu tak i s vnoučaty nablízku. A aby to…
-
Dřevěný domov v krajině rozlehlých luk
Tento příběh připomíná dokonalou pohádku o tom, kterak Kateřina a Jiří našli svůj vytoužený klid v podhůří Krkonoš. Jejich pozemek o rozloze dvaceti tisíc metrů čtverečních je…
-
Dávno splněný sen v podobě patrové dřevostavby na míru
Některé plány a nápady potřebují čas, aby mohly uzrát. Hluboko zapustit kořeny a trpělivě čekat na tu správnou dobu. Jako v tomto případě – poprvé totiž Milan na „svou"…
-
Dřevěná vila schoulená v náručí krajiny
Každý dům nevyhnutelně mění krajinu – jakým způsobem, to už záleží na jeho majitelích. Některé stavby přetvářejí okolí podle svého obrazu, jiné se naopak snaží splynout. A…




























Vytvořeno v xart.cz