Lucie Němcová | Úterý, 25. říjen 2022 |
Radislav a Erika už spolu jeden útulný domov vybudovali. Postupně po mnoho let rekonstruovali a zvelebovali starý dům po předcích. Stále se však hlásila o slovo touha po větší zahradě s jezírkem, kde by mohli naplno realizovat svou vášeň – zahradničení. Odvaha pustit se do akce byla podložena hlavně důvěrou a intuicí, přestože ostatním byli za blázny. Dnes si doma užívají s pocitem dovolené u moře. Štěstí zkrátka přeje odvážným.
Naše první bydlení byl domeček z roku 1930, který jsme zdědili. Pustili jsme se do renovace, zůstali jen zdi a vše ostatní jsme budovali znovu. Po 23 letech ale dům potřeboval další opravy za nemalé náklady. Navíc byl ve staré zástavbě s malou zahradou. Jelikož milujeme tvořit a pečovat o rostliny, lákal nás větší prostor, kam by se vešlo koupací jezírko a kam bychom mohli sázet další zelené přírůstky. Děti nám téměř odrostly, dcera opustila hnízdo a to byl silný impulz začít novou fázi.
Skoro na stejném místě
Spontánně jsme prodali do té doby pronajímaný byt v Praze a začali hledat pozemek. Obě děti chtěly, abychom zůstali ve stejné lokalitě, protože zde mají přátele. Proto jsme začali pátrat v okolí. Povedlo se najít stavební parcelu o dvě ulice vedle. Tohle místo bylo celé roky zarostlé a zpustlé. Pozemek neměl kromě elektřiny žádné přípojky, což jej prodražovalo, a nikdo o něj neměl zájem. Až my.
Hlavně svižně
Z doslechu jsme věděli, že existují stavby na klíč a také dřevostavby, ale neměli jsme zkušenosti s žádnou firmou. Nebyli jsme ochotni absolvovat klasickou zděnou stavbu, kterou jsme zažili v minulosti. Důležitá pro nás byla rychlost. Vstupenkou ke spolupráci nakonec byl typový projekt z internetu, který splňoval všechny naše požadavky. Do měsíce jsme měli schůzku ve vzorovém domě firmy, což naše nadšení a rozhodnutí jen potvrdilo.
Odměna za trpělivost
Následoval rok a půl zařizování a vyčkávání na všechna povolení úřadů. Mezitím jsme vykáceli, pročistili a zkultivovali pozemek, což posloužilo zároveň jako terapie v covidové době. Jakmile jsme dostali povolení, firma nastoupila do 14 dní a za čtyři a půl měsíce jsme drželi v rukou klíče od hotového domu, dokončeného do fáze k nastěhování (bez kuchyně, světel a nábytku).
Každý den v průběhu realizace jsme se chodili dívat, co je nového, a byli z procesu nadšeni. Party řemeslníků se střídaly, navazovaly na sebe a objekt se rychle měnil před očima. Tahle podívaná doslova měnila náš úhel pohledu a neblahou zkušenost s řemeslnými profesemi. Jelikož bylo možné financování postupně podle míry zhotoveného, zvolili jsme variantu prodeje našeho původního domu během výstavby. Byl to adrenalin, ale kupodivu nám vyšel perfektně. Peníze přišly akorát před splátkou. Klapl nám i plán ponechat si část financí na zahradu a jezírko. Jsme moc rádi, že jsme celý proces zvládli bez hypotéky.
Interiér a jeho finální podobu jsme tvořili vlastními silami, jelikož nás interiérový design i drobné řemeslné dodělávky moc baví.
Realizace pro radost
Teplo v domě rozvádí teplovodní podlahové topení a doplňkovým zdrojem jsou krbová kamna, která nás nadchla. Pro rychlé zatopení v nečekaně studených dnech jsou k nezaplacení. A co radíme budoucím stavebníkům? Realizované věci si vždy pečlivě zkontrolujte. I ten sebelepší řemeslník není neomylný. Drobnosti se dějí. Když se nesrovnalosti zachytí včas, jejich náprava je hračka.
Celkově je pro nás dům odměnou. Máme rádi krásno kolem sebe a to jsme si splnili do puntíku. Životní prostor, ze kterého neustále vidíme jezero i zahradu a jsme s exteriérem propojeni velkými okny, je fantastický. Přáli bychom všem, aby měli veškeré potřebné zdroje si takový sen splnit.

Tento dům soutěží v anketě Dřevostavba roku 2022
Pomozte nám zvolit nejhezčí dřevostavby! Tato dřevostavba se uchází o váš hlas v anketě Dřevostavba roku 2022 pod názvem "Sny se plní mimo komfortní zónu". Hlasujte do 14.11. 2022 v tomto kole a získejte atraktivní ceny...
Hlasovat v anketě
Otázky pro dodavatele
Jaké faktory a požadavky nejvíce formovaly návrh stavby?
Klienti přišli s celkem jasnou představou, jak má jejich budoucí dům vypadat. Vybrali si náš typový dům, který se až na pár detailů zásadně neměnil. Jejich snem bylo směřovat všechna francouzská okna na jih, kde měli v plánu do budoucna vytvořit koupací jezírko.
Které detaily nebo vlastnosti by neměly ujít naší pozornosti?
Dům je sám o sobě zařízen v čistém a jednoduchém konceptu. Pozornosti určitě neunikne již zmiňované koupací jezírko, které umocňuje příjemný prožitek z pobytu na zahradě. Klienti si přáli život rodiny co nejvíce propojit právě se zahradou, což se nakonec díky velkým oknům a terase po celé jedné straně domu opravdu povedlo.

Ing. arch. Hana Kulová
LUCERN dřevostavby s.r.o.
Technické parametry
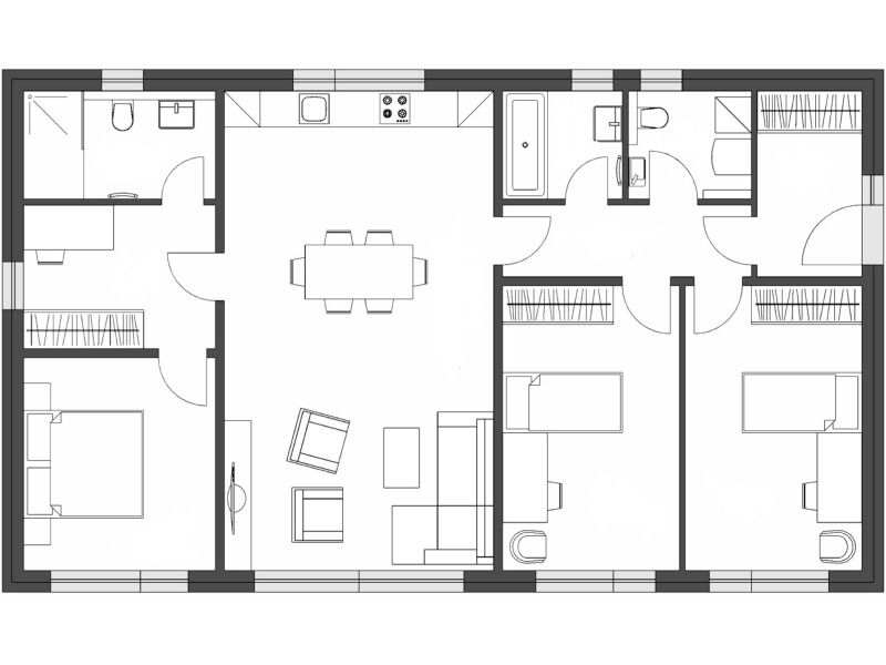
- Typ domu: nízkoenergetický
- Zastavěná plocha: 128,36 m2
- Užitná plocha: 106 m2
- Konstrukční systém: 2 by 4 – LUCERN EKO plus
- Teplo a větrání: podlahový systém REHAU + TČIVT voda – vzduch
- Součinitel prostupu tepla stěnou: 0,134 W/m2K
- Projekt a realizace: 2019–2021, LUCERN dřevostavby s.r.o., www.lucern.cz

Tento článek vyšel v časopisu DŘEVO&stavby 5/2022
Objednejte si krásně vonící výtisk časopisu s kvalitními fotografiemi pouze za 99 Kč
koupit časopis
Nejnovější články v kategorii “Návštěvy dřevostaveb”
-
Zrcadlová roubenka na soutoku
Majitel této roubenky – říkejme mu třeba Martin – měl jasný cíl: postavit svým dospělým dětem dům, kam by mohly o víkendech jezdit a být mu tak i s vnoučaty nablízku. A aby to…
-
Dřevěný domov v krajině rozlehlých luk
Tento příběh připomíná dokonalou pohádku o tom, kterak Kateřina a Jiří našli svůj vytoužený klid v podhůří Krkonoš. Jejich pozemek o rozloze dvaceti tisíc metrů čtverečních je…
-
Dávno splněný sen v podobě patrové dřevostavby na míru
Některé plány a nápady potřebují čas, aby mohly uzrát. Hluboko zapustit kořeny a trpělivě čekat na tu správnou dobu. Jako v tomto případě – poprvé totiž Milan na „svou"…
-
Dřevěná vila schoulená v náručí krajiny
Každý dům nevyhnutelně mění krajinu – jakým způsobem, to už záleží na jeho majitelích. Některé stavby přetvářejí okolí podle svého obrazu, jiné se naopak snaží splynout. A…











.jpg)
.jpg)
.jpg)
.jpg)
.jpg)
.jpg)
.jpg)
.jpg)
.jpg)
.jpg)
Důležitá pro nás byla rychlost. Vstupenkou ke spolupráci s realizační firmou LUCERN byl nakonec jejich typový projekt LUCERN 122, který splňoval všechny naše požadavky. Do měsíce jsme měli schůzku ve vzorovém domě firmy, což naše nadšení a rozhodnutí jen potvrdilo. Jakmile jsme dostali povolení, firma nastoupila do 14 dní a za čtyři a půl měsíce jsme drželi v rukou klíče od hotového domu, dokončeného do fáze k nastěhování (bez kuchyně, světel a nábytku).
Vytvořeno v xart.cz