Markéta Kristová | Pátek, 05. květen 2023 |
Když nás Markéta, čtenářka našeho časopisu, srdečně pozvala na návštěvu do své moderní roubenky nedaleko Karlových Varů, byla jsem velmi zvědavá, jaký příběh se za stěnami této designové dřevostavby ukrývá. Už do telefonu mi totiž prozradila, že celou výstavbu sama organizovala ze Švýcarska, kde má trvalý pobyt.
Místo, na kterém naše roubenka stojí, je pro mě takovým nostalgickým návratem do dětství. Kdysi jsme tady nedaleko vlastnili zděnou chalupu, kde jsme společně trávili volné chvíle. Jak ale čas ubíhal, rodina se nám rozrostla a chalupa nám začala být malá. Nakonec jsme se ji rozhodli prodat a odstěhovat se natrvalo do Švýcarska.
Po nějaké době jsem si ale řekla, že by bylo fajn postavit chalupu novou, nejlépe ze dřeva a v modernějším stylu. Abychom se měli kde potkávat s přáteli a rodinou, když přijedeme zpátky do Čech. Hned, jak jsem se začala poohlížet po parcele, se na mě usmálo štěstí. Na původně holé louce s krásným výhledem na Hřebečnou se zasíťovaly nové pozemky určené výhradně pro výstavbu dřevostaveb. Neváhala jsem ani minutu. A tím se začala psát nová kapitola v tom kousku země, který je mně a mé rodině tak blízký.
Moderní dřevostavba s nádechem severu
V době, kdy jsem se začala více zajímat o dřevostavby, mi byl váš časopis o dřevostavbách velkou inspirací. Právě listování v něm mi pomohlo ucelit představy o podobě domu, a dokonce jsem narazila na šikovného dodavatele, kterého jsem si vybrala pro vypracování projektové dokumentace. Chtěla jsem tu postavit moderní dřevostavbu v severském stylu, která bude protkána denním světlem a útulnou atmosférou a nebude připomínat klasickou chalupářskou roubenku. Další z mých požadavků byl otevřený krov s galerií v patře a světlý nátěr v interiéru i exteriéru. To se mi hodně líbilo u jiných realizací, kterými jsem se inspirovala.
Výstavba dřevostavby na dálku
Po vypracování vizualizace byl projekt předán z finančních důvodů do rukou jiného dodavatele, který se postaral o hrubou stavbu dřevěné konstrukce. Vše ostatní, včetně základové desky, jsem si zařizovala subdodavatelsky svépomocí s regionálními firmami, na které jsem většinou dostala doporučení. Byla to pro mě velká výzva, protože jsem si vše organizovala a korigovala na dálku ze Švýcarska, což si žádalo velkou dávku důvěry v řemeslníky a všechny, kteří se na stavbě podíleli. Z velké části musím říct, že jsem měla opravdu štěstí při jejich výběru a vše se obešlo bez větších komplikací. Pro jistotu jsem měla sehnaný odborný technický dozor, a to celému procesu i mému svědomí hodně pomohlo. Po dvou letech prací jsme tu v roce 2020 společně oslavili naše první Vánoce.
Kdybych stavěla příště, tak bych jednoznačně volila dodávku na klíč. I když jsem tak do výstavby našeho prázdninového domu vložila kus sebe, stálo mě to hodně energie, času i peněz. Určitě bych dnes neváhala kontaktovat třeba i ověřené architektonické studio zaměřené na návrhy dřevostaveb, které by bylo ideálně přímo provázané s konkrétním dodavatelem.
Slovo majitelky
Mou hlavní myšlenkou bylo vytvořit moderní dům, který přirozeně splyne s okolní přírodou Krušných hor. Musím se přiznat, že realizace v době pandemie byla velmi náročná, přesto se tu díky spolupráci s ověřenými subdodavateli povedlo vytvořit vše podle mých představ. Do budoucna tu chci vybudovat ještě saunu s venkovním wellness, na které se už moc těším. Vznikne tak ucelený objekt určený k odpočinku a aktivnímu lenošení.

Markéta
majitelka domu (zdroj foto: se souhlasem majitelky)
Méně v interiéru je někdy více
Moc jsem se těšila na zařizování interiéru, který jsem měla výhradně ve své kompetenci. Nechtěla jsem nic přehánět, minimalismus byl v tomto případě jasnou volbou. Veškerý nábytek je na zakázku vyrobený a dovezený z Holandska. Snažila jsem se dbát na kvalitní materiály a nešetřit na detailech. Každý vybraný kus je originál, ale přitom neubírá prostoru na otevřenosti a vzdušnosti.
Původně jsem plánovala, že budou v kuchyni kachlová kamna s pecí, to jsem však přehodnotila ve chvíli, kdy jsem si uvědomila, kolik místa by zabrala. Přízemí jsem od začátku vnímala jako otevřenou společenskou místnost, ve které se pouze společně vaří a jí. Patro s obývacím pokojem je věnováno odpočinku a klidnému rozjímání u krbových kamen. Komín jsme neobezdívali, krásně se tu šíří teplo. Podlahové topení také udělá své.
Do budoucna se možná do roubenky přestěhujeme natrvalo, do té doby nám bude místem, kam se můžeme jezdit rekreovat a užívat si čas strávený spolu tak, jako tomu bylo dříve.
Prosklený štít je jako velkoplošná obrazovka. Při relaxování v podkroví přitahuje pozornost každého návštěvníka.

Tato dřevostavba soutěží v anketě DŘEVOSTAVBA ROKU 2023
Pomozte nám zvolit nejhezčí dřevostavby! Tato moderní roubenka se uchází o váš hlas v anketě Dřevostavba roku 2023 pod názvem "Sen řízený na dálku". Hlasujte do 9.7. 2023 v tomto kole a získejte atraktivní ceny...
Hlasovat v anketě
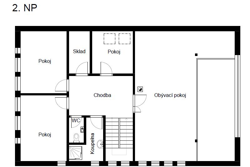
Technické parametry
- Užitná plocha: 280 m2
- Zastavěná plocha: 490 m2
- Konstrukce: roubená konstrukce přízemí + štíty v patře řešené jako sendvičová dřevostavba
- Vytápění: podlahové vytápění + krbová kamna v patře
- Venkovní nátěr: voskový nátěr Remmers Antik šedý
- Vnitřní nátěr: vosková lazura ADLER bělený dub
- Realizace: 2018-2020, dokončení stavby řešila investorka individuálně s regionálními subdodavateli
Nejnovější články v kategorii “Návštěvy dřevostaveb”
-
Zrcadlová roubenka na soutoku
Majitel této roubenky – říkejme mu třeba Martin – měl jasný cíl: postavit svým dospělým dětem dům, kam by mohly o víkendech jezdit a být mu tak i s vnoučaty nablízku. A aby to…
-
Dřevěný domov v krajině rozlehlých luk
Tento příběh připomíná dokonalou pohádku o tom, kterak Kateřina a Jiří našli svůj vytoužený klid v podhůří Krkonoš. Jejich pozemek o rozloze dvaceti tisíc metrů čtverečních je…
-
Dávno splněný sen v podobě patrové dřevostavby na míru
Některé plány a nápady potřebují čas, aby mohly uzrát. Hluboko zapustit kořeny a trpělivě čekat na tu správnou dobu. Jako v tomto případě – poprvé totiž Milan na „svou"…
-
Dřevěná vila schoulená v náručí krajiny
Každý dům nevyhnutelně mění krajinu – jakým způsobem, to už záleží na jeho majitelích. Některé stavby přetvářejí okolí podle svého obrazu, jiné se naopak snaží splynout. A…














.jpg)
.jpg)
.jpg)
.jpg)
.jpg)
.jpg)
.jpg)
.jpg)


Vytvořeno v xart.cz