Dana Jakoubková | Středa, 20. březen 2024 |
Pokud bych měla podat inzerát na prodej tohoto domu, zněl by asi takto: Rodinný dům navržený s myšlenkou na komfort, styl a harmonii, nabízí místo, kde se každý den budete cítit jako na dovolené. Ačkoli je jeho design jednoduchý, důraz na detail a kvalitu provedení jako rozhodující prvky, které odlišují dobře navrženou stavbu od průměrné, je zcela zřejmý. Jestliže umíte ocenit nadprůměr, pak je tato vizuálně působivá dřevostavba tou správnou volbou právě pro vás.
Architektonický koncept domu je sám o sobě i v širším kontextu přírodního okolí jedinečný svým prostorovým řešením. Není to jen dům do „el" na rovinatém pozemku. Byť se to laikovi na první dojem nemusí tak jevit, otevřenost roviny není jednoduchá v řešení, kdy chceme obyvatelům poskytnout maximální soukromí. V tomto případě jde tedy o promyšlený návrh několika budov včetně garáže a domu pro hosty poskládaných do tvaru U.
Hlavní dům pak navíc reflektuje dynamiku každodennosti z obou stran okenní tabule, ale i tam, kde průhledům sklo nebylo dáno. Plochy, svislice, úhly, barvy, textury, světlo i vzduch cyklicky přecházejí jedna do druhé a nasávají spontánnost událostí a procesů, které se dějí v rodině i ve velmi asketické, přesto vlastně k domu dokonale padnoucí přírodní zahradě.
„Je to už má druhá zkušenost s dřevostavbou", vzpomíná Jan, majitel domu. „Rozhodujícím faktorem pro mě bylo to, jak se v dřevostavbě cítím, jak ji vnímám, její harmonie, vůně a pak klima, které v interiéru dokáže být – v létě příjemný chládek, v zimě zase příjemné teplo za nízké náklady. Při porovnání se zděnou stavbou je rozdíl zcela zásadní ve prospěch dřeva. A ačkoliv jsem věděl, co lze od dřevostavby čekat, opět jsem mile překvapen, protože tento dům je v mnohém originální."
Správný výběr dodavatele dělá zázraky
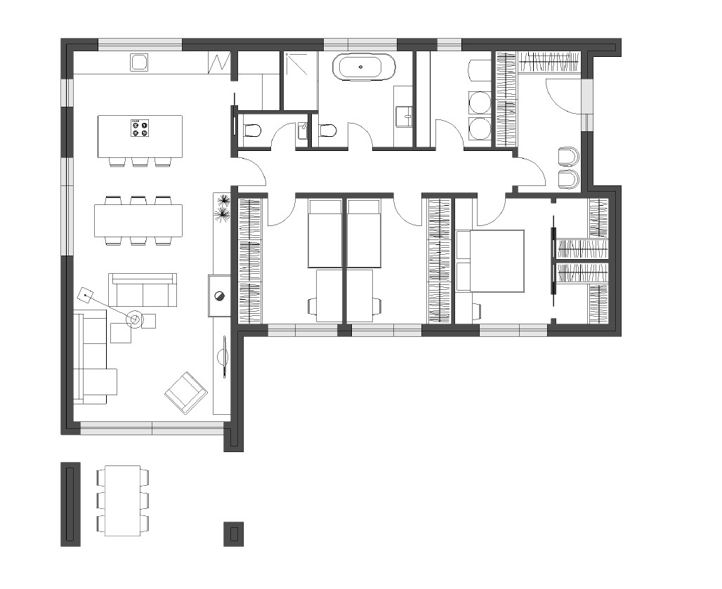
Návrh domu vycházel z myšlenky jednopatrového objektu se dvěma pravoúhle uspořádanými křídly, kde vnější vzhled každého charakterizují odlišné materiály, architektonické prvky, barvy i různé výšky. Ve vnitřním prostoru pak tato křídla oddělují společenskou část domácnosti od klidové, intimní s ložnicemi. „Měl jsem v hlavě určitý nápad a vizualizaci, ale ocenil jsem i vhled mého kamaráda architekta Jaromíra Pizingera," upřesňuje Jan.
„Zkombinovat průmyslový design interiéru s útulností a praktičností bych sám nedokázal. Jinak s domem mi pomohla hlavně projektantka dodavatele stavby. Vybral jsem – jako napoprvé – firmu Lucern, protože navrhují domy hezké a promyšlené a měl jsem s nimi výbornou zkušenost. Nešlo jen o cenu a kvalitu. Milé bylo třeba to, že nepožadují zálohy, základová deska, projektová dokumentace či velká technická zařízení jako větrání nebo topení nejsou příplatkovou položkou, ale jsou automaticky v ceně domu na klíč. A samo sebou to nejdůležitější – na jejich slovo se dá spolehnout."
"Nabídce domu na klíč se vším všudy a postaveného i v době covidu za šest měsíců se nedalo odolat."
Dřevostavba prošpikovaná kvalitními technologiemi
S kvalitní dřevostavbou se pojí kvalitní technologie, které se starají o váš komfort. Druhý dům chtěl mít Jan maximálně vyladěný. „Dodavatel stavby nabízel v základu špičkové technologie od renomovaných výrobců. Jejich kombinaci měl prověřenou mnohaletými zkušenostmi, takže jsem pasáž větrání, topení, teplá voda a systém ovládání inteligentní domácnosti mohl pustit z hlavy," dodává Jan.
Je důležité, aby systém podlahového topení byl správně navržen a instalován, aby mohl efektivně fungovat a poskytovat maximální výhody. Také je nutné vzít v úvahu izolaci domu, protože účinnost podlahového topení je výrazně vyšší v dobře izolovaných prostorách. Totéž platí o větrání. Systém musí být správně dimenzován, aby se předešlo problémům například s přetlakem nebo nedostatečnou výměnou vzduchu.
„Vše v domě je na elektřinu, a kdybych vybíral technologie sám, nejsem si jistý, zda bych volil správnou kombinaci. Že byla zvolena dodavatelem dobře dokladuje mimo pobytového komfortu i účet za elektřinu, který ukazuje roční spotřebu domu 4 830 kWh. A s tím jsem naprosto spokojený," uzavírá Jan.
Co mě na dřevostavbě zaujalo?
Strop nad kuchyní
Kromě toho, že jde o jedinou, navíc plošně nepatrnou stropní část áčkového křídla, je zcela mimo moji běžnou zkušenost jeho ocelová konstrukce zaklopená trapézovým plechem. Nejenom, že odráží individuální styl majitele, ale vizuálně přitažlivý vzhled koresponduje s ocelovými a betonovými prvky ve zbytku místnosti. Černá barva v tak velkém zastoupení pak odkazuje na zkušené oko architekta a Janovu velkou odvahu k experimentům.

Dana Jakoubková
redaktorka

Tato dřevostavba soutěží v anketě DŘEVOSTAVBA ROKU 2024
Pomozte nám zvolit nejhezčí dřevostavby! Tato dřevostavba se uchází o váš hlas v anketě Dřevostavba roku 2024 pod názvem "Dynamicky, přesto klidný". Hlasujte do 26.3. 2024 v tomto kole a získejte atraktivní ceny...
Hlasovat v anketě
Technické parametry
- Typ domu: pasivní
- Zastavěná plocha: 166,76 m2
- Užitná plocha: 122,19 m2
- Dispozice: 4+kk
- Konstrukční systém: lehkým skelet – sendvičový panel LUCERN Eco Plus, difuzně uzavřená skladba
- Zdroj energie / teplo: tepelné čerpadlo IVT vzduch-voda
- Větrání: nucené s rekuperací Zehnder
- Součinitel prostupu tepla stěnou: U = 0,134 W/m2K
- Systém chytré domácnosti: LOXONE
- Autor arch. návrhu a projektu: LUCERN dřevostavby s.r.o., www.lucern.cz
- Realizace: 2021, LUCERN dřevostavby s.r.o.

Tento článek vyšel v časopisu DŘEVO&stavby 1/2024
Objednejte si krásně vonící výtisk časopisu s kvalitními fotografiemi pouze za 99 Kč
koupit časopis
Nejnovější články v kategorii “Návštěvy dřevostaveb”
-
Zrcadlová roubenka na soutoku
Majitel této roubenky – říkejme mu třeba Martin – měl jasný cíl: postavit svým dospělým dětem dům, kam by mohly o víkendech jezdit a být mu tak i s vnoučaty nablízku. A aby to…
-
Dřevěný domov v krajině rozlehlých luk
Tento příběh připomíná dokonalou pohádku o tom, kterak Kateřina a Jiří našli svůj vytoužený klid v podhůří Krkonoš. Jejich pozemek o rozloze dvaceti tisíc metrů čtverečních je…
-
Dávno splněný sen v podobě patrové dřevostavby na míru
Některé plány a nápady potřebují čas, aby mohly uzrát. Hluboko zapustit kořeny a trpělivě čekat na tu správnou dobu. Jako v tomto případě – poprvé totiž Milan na „svou"…
-
Dřevěná vila schoulená v náručí krajiny
Každý dům nevyhnutelně mění krajinu – jakým způsobem, to už záleží na jeho majitelích. Některé stavby přetvářejí okolí podle svého obrazu, jiné se naopak snaží splynout. A…

























Vytvořeno v xart.cz