Redakce | Středa, 25. červen 2025 |
Zadání téhle návštěvy u Zlína bylo jasné jako facka. Srub uprostřed zahrady přece nemůžu minout. Jenže navigace najednou hlásila konec cesty a já byla uprostřed vsi, kde silnici lemovaly rodinné domy natěsnané na sobě. Co teď? Zkontrolovala jsem adresu, ale všechno sedělo. Nezbylo než se otočit a pomalu se vrátit po vlastních stopách. Druhý pokus už byl o něco úspěšnější – mezi dva rodinné domky byla vklíněná brána, přes kterou z dálky vykukovala podezřelá střecha.
V doprovodu tříbarevné kočky jsem prošla zahradou až ke dveřím dvoupodlažního srubu, kde mě přivítal usměvavý Richard spolu s místní psí hlídačkou. Zavedl mě do velké obytné místnosti spojené s kuchyní, fungující jako srdce domu i rodiny. Přestože ve srubu panovalo ticho a klid, dětský koutek a záplava fotografií prozradily, že tu díky třem trpaslíkům běžně bývá mnohem živěji. „Pomalu každý víkend tu s námi bydlí i jejich kamarádi. Naposledy jsem to počítal. Devět jich tu bylo!" směje se Richard.
Místnosti dominují a částečně ji i rozdělují krbová kamna, která jsou ale spíše dekorací. „Máme plynový kotel a podlahové topení, v krbu jsme topili všehovšudy dvakrát," vysvětluje. „Z něj je horko, že se tu pak nedá vydržet. Ale mít vlastní zdroj tepla nezávislý na sítích se hodí vždycky." Dnes tu Richard s rodinou spokojeně žije už téměř deset let. Což je shodou okolností stejně dlouhá doba, jaká uběhla mezi koupí pozemku a počátkem stavby. Za deset let se může změnit mnohé, třeba samotná vize vysněného domu. O srub tady totiž na začátku vůbec nešlo.

obr.: Prostorný gauč pojme všechny návštěvy, jak ty dětské, tak dospělé. Své místo zde má i fenka labradora, která může pohodlně sledovat dění v domě a skrze prosklené dveře i na terase. Foto: Martin Zeman
Času dost
„Původně jsem chtěl roubenku," začíná své vyprávění Richard. „Pak jsem se ale nadchnul pro srub." Jenže cesta k vlastní masivní dřevostavbě nebyla bez zádrhelů. „Mám tady ve vsi firmu, a když u téhle parcely tehdy v roce 2004 realitka věšela plakát, šel jsem zrovna okolo." Přestože se mu výběr pozemku, jednu z často nejzáludnějších obtíží, podařilo vyřešit prakticky lusknutím prstu, na stavbu se ještě finančně necítil. Navíc, koupený pozemek v té době ani nebyl celý vedený jako stavební parcela. Existoval zde sice územní plán, ale vyústil v jisté spory o území, a bylo tedy třeba vypracovat nový.
A zatímco léta plynula, dozrávala i konkrétní podoba snu o vlastním bydlení. Mezitím se také konečně změnil územní plán vsi, což nakonec umožnilo stavbu realizovat. Nejprve však bylo třeba najít dodavatele. „Oslovil jsem tři nebo čtyři firmy, a když se ohlédnu, vybral jsem si snad ty úplně nejhorší. Ale ony se samy docela rychle vybarvily," směje se Richard. Věděl sice, že by chtěl roubenku, ale konkrétnější představu neměl.
„První byla firma tady z Moravy. Vzali mě i na nějaké své realizace a já byl odhodlaný s nimi začít stavět," vzpomíná. „Udělali mi nějakou náhledovou studii, za kterou chtěli zaplatit dříve, než se na něco sáhlo. Tak jsem se o ně začal více zajímat. Oni ten srub nebo roubenku někde koupili, postavili a přirazili si k tomu sto procent. Chtěl jsem se podívat k nim do výroby, ale ta v podstatě neexistovala. Měli dobrý marketing, ale to bylo tak všechno."

obr.: Dřevěný interiér citlivě doplňuje řada kovaných doplňků, jako jsou lustry a lampy v přízemí, zábradlí nebo krásné zrcadlo v patře zdobené kovovými lístky.
Foto: Martin Zeman
Osudová přitažlivost
Tím hledání zdaleka nekončilo. Ani u dalších oslovených firem však Richard s vytouženou roubenkou nepochodil. „Měli velmi laxní přístup, jako by vůbec neměli zájem. V jedné mi sice dali kontakt na nějakého architekta nebo projektanta, ale ten stejně nakonec nepřijel," krčí rameny. „Zkusil jsem pak oslovit ještě další dvě firmy, ale ty se pro změnu neozvaly vůbec."
Jenže pak během cesty do Polska viděl úplnou náhodou srub, který zamíchal kartami. Jen díky tomu se Richard namísto dodavatelů roubenek začal zaměřovat na sruby a v tu chvíli se na něj konečně usmálo štěstí. „Našel jsem na internetu pana Urbana a ten mi na zprávu zareagoval prakticky hned," vzpomíná. „O srubech jsem v té době nevěděl vůbec nic. Nechal mě ale prohlédnout si jeho vlastní srub, který se mi moc líbil. A tak pro mě nakonec postavil v podstatě ten samý, jen s malými úpravami. On má v patře pět malých pokojů, já chtěl jen dva. Měl jsem už dvě dospělé děti a jedno malé, tak jsem myslel, že to bude stačit." Jenže člověk míní a život mění. Do dětského pokojíčku přibyli totiž časem ještě dva sourozenci.

obr.: Částečně zastřešená terasa s venkovním sezením a dětskou houpačkou poskytne vyžití dětem i dospělým. Gril navíc pomůže dlouhé letní večery provonět lahodnou vůní pečených dobrot. Foto: Martin Zeman
Slovo dodavatele
Když si se zákazníkem sedneme, tak každá stavba proběhne k jeho spokojenosti. Jsme spolehlivým dodavatelem kvalitních srubů v nejvyšším standardu, čehož si zákazníci cení. Je však důležité nezapomenout, že si nepořizujete hermeticky uzavřenou stavbu. V dnešní době se hodně řeší otázka energetiky a tepelných ztrát, ale správně zpracovaná masivní dřevostavba těmto kritériím plně vyhoví. Plusem jsou také zdravotní benefity masivních dřevostaveb, jelikož masivní dřevo je pro člověka přirozeně asi to nejlepší, co může být, a má prokazatelně pozitivní vliv na náš organismus.

Jiří Urban
Sruby Urban, s.r.o.
Srub vlastníma rukama
Jakmile bylo rozhodnuto o dodavateli, projekt se mohl konečně posunout vpřed. „Na jaře jsme se domluvili a já už pak nic ohledně návrhu neřešil," pokračuje Richard. Jelikož šel cestou dodávky hrubé stavby dokončené svépomocí, celý proces od počátku prací až po nastěhování trval téměř dva roky. Z důvodu námitek jednoho z účastníků stavebního řízení se trochu protáhlo stavební povolení, ale na podzim 2013 se konečně začaly kopat základy.
Krátce po Novém roce pak na pozemku vyrostla hrubá stavba se střechou a konstrukcí terasy. Přestože se Richard s ohledem na cenu rozhodl pro dokončení svépomocí, dodavatel mu poskytl kontakty na ověřené řemeslníky. Sám si pak obstaral místní zedníky, elektrikáře a instalatéra. S nejstarším synem se pustil do dokončení terasy a časem na pozemku vybudoval i garáž. „To byly časy. Až se mi dneska nechce věřit, co všechno a v jakém čase jsme zvládli. Dneska už se mi do ničeho moc nechce," dodává s úsměvem.

Foto: Martin Zeman
Bydlení téměř bez starostí
Jelikož stavba i veškeré dokončovací práce proběhly naprosto bez problémů, v září 2015 se mohl Richard i s rodinou nastěhovat. Obával se klesání srubu kvůli oknům a dveřím, dodavatel ho však ujistil, že má vše přesně vypočítané. A uklidňující slova se následně potvrdila, jelikož k žádným problémům během sedání nedošlo. I když bylo potřeba pohyb dřeva pozorovat a včas jednat. „Ze začátku, ten první rok, klesala kulatina strašně rychle a bylo nutné poměrně často povolovat rektifikační šrouby. To trvalo asi pět let, teď už to nebylo zapotřebí dlouho," přemýšlí.
Za důležité Richard považuje zhruba každých pět let obnovit venkovní nátěr. Sám od dokončení stavby srub zatím natíral pouze jednou, přiznává, že kvůli dětem a dalším povinnostem na to zkrátka není čas. Naopak kvituje, že v interiéru obnova nátěru zatím potřeba nebyla. „Docela dost se tu práší, ale to je u masivní dřevostavby, která z logiky věci není hermeticky uzavřená, asi normální," dodává. Moc sil nezbývá ani na výraznější udržování zahrady. „Na začátku jsem si najal firmu, aby ji osázela stromky, ale brzy z nich tak desetina uschla. Ovocné stromy, které přežily, by letos potřebovaly prořezat, některé zřejmě i ošetřit proti nemocem, ale přiznám se bez mučení, nejsem moc dobrý zahradník," krčí rameny.

obr.: Veškeré stromky na zahradě přišly až po stavbě srubu. Dříve se o zahradu starala paní domu, s příchodem nejmladšího dítěte už na ni ale nezbývá čas.
Foto: Martin Zeman
Spokojenost nade vše
Život ve srubu si i po těch bezmála deseti letech Richard nemůže vynachválit. „Nikdy jsem tu žádný problém neměl, jen spotřebiče už pomalu odchází," povzdychne si. S prací dodavatele je ale maximálně spokojený. „Jsem vážně rád, že jsem si vybral zrovna tuhle realizační firmu. Celé jednání bylo velmi profesionální, i všichni dělníci na stavbě byli skvělí," pochvaluje si. „Líbilo se mi také, že s nimi na stavbě dělal přímo pan Urban. To mi u firem přijde důležité. Po těch zkušenostech si myslím, že jsem narazil na toho nejlepšího. Je to člověk na správném místě, víc takových kumštýřů, jako je on!"

obr.: Nábytek v selském stylu si majitel nechal vyrobit na míru. Od stejného výrobce pochází i dveře a zárubně. Foto: Martin Zeman
Co by s dnešními zkušenostmi změnil, je snad jen velikost domu. „Potřebovali bychom více místa. Těžko uvěřit, ale náš srub není nafukovací," směje se. „Přemýšlel jsem o přístavbě, ale to se u srubového domu realizuje přeci jen trochu obtížně. Ve hře je i samostatná menší stavba na pozemku, ale to jsou zatím jen takové vzdušné zámky," dodává. V průběhu našeho povídání se k nám připojila i paní domu, která pohotově dodala, že by si k úplné dokonalosti uměla představit lepší akustiku.

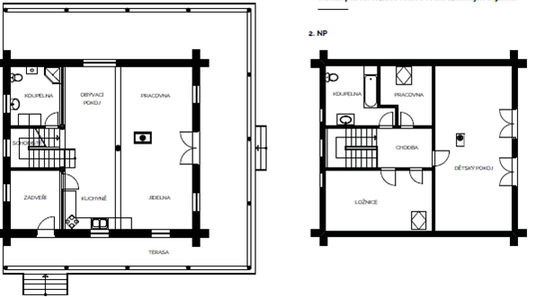
obr.: Oproti původní předloze má srub v patře pouze dva pokoje. Díky světlému interiéru a vhodně umístěným oknům působí ložnice rodičů velmi vzdušným dojmem. Foto: Martin Zeman
Jelikož vše má opravdu svůj čas, nakonec se Richardovi splnil i jeho původní sen. „V roce 2016 jsem na sjezdovce koupil chatu z 50. let, kterou jsem zboural a postavil místo ní roubenku určenou ke krátkodobému pronájmu. Jsou tam čtyři apartmány, každý v trochu jiné barvě," chlubí se nadšeně a ukazuje mi na počítači fotky. A já musím uznat, že na tohle přání se opravdu vyplatilo si počkat.

obr.: V patře nechybí ani prostorná koupelna s velkorysou vanou, ve které lze rychle smýt starosti všedních dní i dlouze relaxovat.
Foto: Martin Zeman

Tato dřevostavba soutěží v anketě DŘEVOSTAVBA ROKU 2025
Pomozte nám zvolit nejhezčí dřevostavby! Tato roubenka se uchází o váš hlas v anketě Dřevostavba roku 2025 pod názvem "Srub namísto roubenky". Hlasujte do 7.7.2025 v tomto kole a získejte atraktivní ceny...
Hlasovat v anketě
Technické parametry
- Zastavěná plocha: 103 m²
- Užitná plocha: 129 m²
- Dispozice: 3 + kk
- Konstrukční systém: smrková kulatina o středovém průměru 40 cm
- Venkovní a vnitřní nátěr: olejová lazura Diotrol
- Střecha: betonová krytina Bramac Tegalit
- Vytápění: plynový kotel, podlahové vytápění, krb s výměníkem
- Větrání: přirozené
- Realizace: 2013, Sruby Urban s.r.o., www.ju-sruby.cz

Zdroj půdorysu: Sruby Urban, s.r.o.

Tento článek vyšel v časopisu sruby&ROUBENKY 2/2025
Objednejte si krásně vonící výtisk časopisu s kvalitními fotografiemi pouze za 99 Kč
koupit časopis
AUTOR ČLÁNKU: KAROLÍNA SVĚCENÁ pro časopis sruby&ROUBENKY
Vaše komentáře (0)Nejnovější články v kategorii “Návštěvy dřevostaveb”
-
Zrcadlová roubenka na soutoku
Majitel této roubenky – říkejme mu třeba Martin – měl jasný cíl: postavit svým dospělým dětem dům, kam by mohly o víkendech jezdit a být mu tak i s vnoučaty nablízku. A aby to…
-
Dřevěný domov v krajině rozlehlých luk
Tento příběh připomíná dokonalou pohádku o tom, kterak Kateřina a Jiří našli svůj vytoužený klid v podhůří Krkonoš. Jejich pozemek o rozloze dvaceti tisíc metrů čtverečních je…
-
Dávno splněný sen v podobě patrové dřevostavby na míru
Některé plány a nápady potřebují čas, aby mohly uzrát. Hluboko zapustit kořeny a trpělivě čekat na tu správnou dobu. Jako v tomto případě – poprvé totiž Milan na „svou"…
-
Dřevěná vila schoulená v náručí krajiny
Každý dům nevyhnutelně mění krajinu – jakým způsobem, to už záleží na jeho majitelích. Některé stavby přetvářejí okolí podle svého obrazu, jiné se naopak snaží splynout. A…












Vytvořeno v xart.cz