| Název: | BOREK - dřevostavba na klíč |
| Kategorie: | Projekty dřevostaveb - katalog dřevostaveb na klíč |
| Společnost: | Origis s.r.o. |
| Charakteristika domu: |
|
| Počet podlaží: | jednopodlažní |
| Generačnost: | jednogenerační |
| Konstrukční systém: |
|
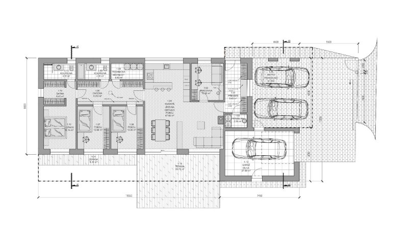
| Podlahová plocha (užitná): | 139,00 m² |
| Zastavěná plocha: | 238,00 m² |
| Dispozice: | 5+kk / 5+1 |
Aktuální ceny naleznete na stránkách, případně na dotaz u prezentované společnosti.
Pasivní, přízemní dřevostavba z CLT panelů v blízké dostupnosti Prahy.
Dispozice domu 5+kk s garáží nabízí velký prostorový komfort pro 4člennou rodinu. Vnitřní dispozice domu je rozdělena na společenskou a klidovou část. Z prostorné předsíně je přístupný obývací pokoj s kuchyní a jídelnou a pracovna. Přímo z předsíně je pak také samostatná prádelna.
Na obytnou část navazuje chodba, ze které jsou přístupné ostatní (klidové) místnosti domu – pokoje a koupelny. Chodba je prosvětlena přirozeným denním světlem přes světlovody Lightway. Díky nim je světlo dovedeno na místo, kde by ho jinak byl nedostatek. Hlavní ložnice je umístěna jako poslední místnost a má také svou vlastní šatnu a koupelnu.
Veškeré obytné místnosti mají francouzská okna, kterými je umožněn vstup na terasu. Terasa je krytá větším přesahem střechy.
Zastavěná plocha včetně garáže ... 238 m2
Užitná plocha domu ... 139 m2
Užitná plocha garáže ... 27 m2
|
Oznámkujte |
Oblíbené: 0 |
|
Chata v Jizerských horách - dřevostavba na klíč
3AE s.r.o.
LUCERN 116 - dřevostavba na klíč
LUCERN dřevostavby s.r.o.
Užitná plocha: 103.1 m²
Dispozice: 4+kk / 4+1
Dům venkovského stylu
EKOPANELY SERVIS s.r.o.
Užitná plocha: 153 m²
Dispozice: 4+kk / 4+1
EKONOMY MS 04 - dřevostavba na klíč
MS HAUS s.r.o.
Užitná plocha: 85 m²
Dispozice: 4+kk / 4+1
Nízkoenergetická dřevostavba
EKOPANELY SERVIS s.r.o.
Užitná plocha: 115 m²
Dispozice: 4+kk / 4+1
Rodinný dům Tábor - dřevostavba na klíč
ALFAHAUS s.r.o.
Užitná plocha: 137 m²
Dispozice: 4+kk / 4+1
Pavo 111 - dřevostavba na klíč
A T R I U M, s.r.o.
Užitná plocha: 111.03 m²
Dispozice: 5+kk / 5+1
Optimal 02 - dřevostavba na klíč
PENATUS s.r.o.
Užitná plocha: 124 m²
Dispozice: 4+kk / 4+1
Futura Freestyle - dřevostavba na klíč
Prodesi I Domesi
Užitná plocha: 107.8 m²
Dispozice: 3+kk / 3+1
Rodinný dům 307 - dřevostavba na klíč
MARTINICE GROUP s.r.o.
Užitná plocha: 130 m²
Dispozice: 5+kk / 5+1
Bennet
KANADSKÉ SRUBY TÁBOR, s.r.o.
Užitná plocha: 177 m²
Dispozice: 5+kk / 5+1
Lesníkova roubenka
EKOPANELY SERVIS s.r.o.
Užitná plocha: 260 m²
Dispozice: 5+kk / 5+1
RD Mnichovice
EKOPANELY SERVIS s.r.o.
Užitná plocha: 124.3 m²
Dispozice: 3+kk / 3+1
Ekologická dřevostavba
EKOPANELY SERVIS s.r.o.
Užitná plocha: 128 m²
Dispozice: 3+kk / 3+1
Dům se sloupy z douglasky
ARCHCON atelier, s.r.o., DŘEVOSTAVBY BISKUP, s.r.o.
Užitná plocha: 118.44 m²
Dispozice: 4+kk / 4+1
Proč jste na portále DŘEVO&stavby?
Copyright © 2026 Českobrodská 35, 190 12 Praha 9 - Dolní Počernice Kontakt
