| Název: | Dům se zeleným srdcem |
| Kategorie: | Projekty dřevostaveb - katalog dřevostaveb na klíč |
| Společnost: | DŘEVOSTAVBY BISKUP, s.r.o., ARCHCON atelier, s.r.o. |
| Charakteristika domu: |
|
| Počet podlaží: | vícepodlažní |
| Generačnost: | jednogenerační |
| Konstrukční systém: |
|
| Podlahová plocha (užitná): | 229,70 m² |
| Obytná plocha: | 93,30 m² |
| Zastavěná plocha: | 219,30 m² |
| Obestavěný prostor: | 1,140.60 m³ |
| Místnost navíc: |
|
| Dispozice: | 5+kk / 5+1 |
| Orientace vstupu: | SV |
Aktuální ceny naleznete na stránkách, případně na dotaz u prezentované společnosti.
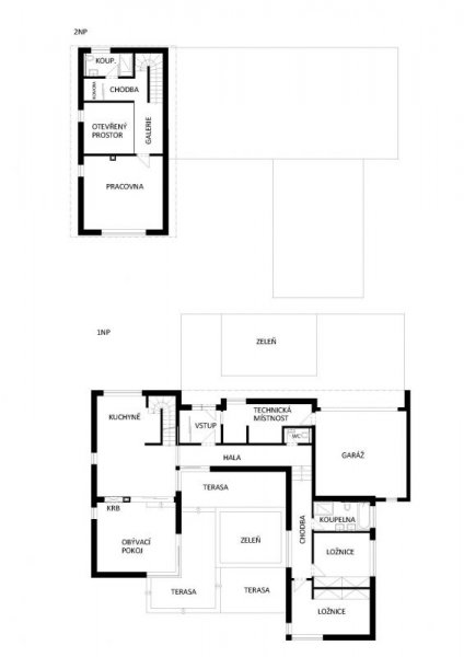
Dřevostavbu navrhujeme jako tři hmoty v různých výškových úrovních uspořádané kolem jádra domu – patia - s částečně krytou terasou a vzrostlou zelení. Hlavním prvkem patia je vzrostlá zeleň, která je hlavní motiv této dřevostavby. Hlavní hmota – denní část – je dvoupodlažní se sedlovou střechou. Dolní podlaží dřevostavby sleduje svažitost terénu, díky které je rozčleněno na dvě výškové úrovně. Prostor nad jídelnou je otevřen do horního podlaží, odkud je interiér prosvětlen. Hmota orientovaná rovnoběžně s komunikací – servisní část – je jednopodlažní s plochou střechou. Přesah střechy na vstupní straně kryje vstup do domu a do garáže a na straně patia vytváří velkorysý krytý venkovní obytný prostor. Na servisní část navazuje ve snížené úrovní noční část s ložnicemi a hygienickým zázemím. Tato hmota je pojednána minimalisticky s plochou ozeleněnou střechou bez přesahů, tak abychom omezili stínění patia. Patio je rozčleněno na tří výškové úrovně.
Jedná se o individuální dřevostavbu a tyto stavby mají individuální ceny. Ceny staveb nezveřejňujeme, chráníme tím soukromí majitelů. V případě zájmu o dřevostavbu nás prosím kontaktujte. Rádi Vám zpracujeme nabídku po osobním setkání a seznámení se s Vašimi požadavky.
|
Oznámkujte |
Oblíbené: 0 |
|
Rodinný dům 307 - dřevostavba na klíč
MARTINICE GROUP s.r.o.
Užitná plocha: 130 m²
Dispozice: 5+kk / 5+1
Futura Freestyle - dřevostavba na klíč
Prodesi I Domesi
Užitná plocha: 107.8 m²
Dispozice: 3+kk / 3+1
Bennet
KANADSKÉ SRUBY TÁBOR, s.r.o.
Užitná plocha: 177 m²
Dispozice: 5+kk / 5+1
EKONOMY MS 04 - dřevostavba na klíč
MS HAUS s.r.o.
Užitná plocha: 85 m²
Dispozice: 4+kk / 4+1
Optimal 02 - dřevostavba na klíč
PENATUS s.r.o.
Užitná plocha: 124 m²
Dispozice: 4+kk / 4+1
Lesníkova roubenka
EKOPANELY SERVIS s.r.o.
Užitná plocha: 260 m²
Dispozice: 5+kk / 5+1
Ekologická dřevostavba
EKOPANELY SERVIS s.r.o.
Užitná plocha: 128 m²
Dispozice: 3+kk / 3+1
Dům se sloupy z douglasky
ARCHCON atelier, s.r.o., DŘEVOSTAVBY BISKUP, s.r.o.
Užitná plocha: 118.44 m²
Dispozice: 4+kk / 4+1
Dům venkovského stylu
EKOPANELY SERVIS s.r.o.
Užitná plocha: 153 m²
Dispozice: 4+kk / 4+1
Rodinný dům Tábor - dřevostavba na klíč
ALFAHAUS s.r.o.
Užitná plocha: 137 m²
Dispozice: 4+kk / 4+1
LUCERN 116 - dřevostavba na klíč
LUCERN dřevostavby s.r.o.
Užitná plocha: 103.1 m²
Dispozice: 4+kk / 4+1
Nízkoenergetická dřevostavba
EKOPANELY SERVIS s.r.o.
Užitná plocha: 115 m²
Dispozice: 4+kk / 4+1
Pavo 111 - dřevostavba na klíč
A T R I U M, s.r.o.
Užitná plocha: 111.03 m²
Dispozice: 5+kk / 5+1
RD Mnichovice
EKOPANELY SERVIS s.r.o.
Užitná plocha: 124.3 m²
Dispozice: 3+kk / 3+1
Moderní roubenka v trampské osadě
OK PYRUS, s.r.o.
Užitná plocha: 117 m²
Proč jste na portále DŘEVO&stavby?
Copyright © 2026 Českobrodská 35, 190 12 Praha 9 - Dolní Počernice Kontakt
