| Název: | EKONOMY MS 15 - dřevostavba na klíč |
| Kategorie: | Projekty dřevostaveb - katalog dřevostaveb na klíč |
| Společnost: | MS HAUS s.r.o. |
| Charakteristika domu: |
|
| Počet podlaží: | jednopodlažní |
| Generačnost: | jednogenerační |
| Konstrukční systém: |
|
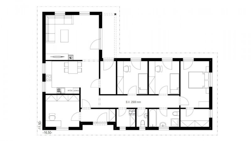
| Podlahová plocha (užitná): | 115,00 m² |
| Zastavěná plocha: | 147,00 m² |
| Dispozice: | 5+kk / 5+1 |
| Cena hrubé stavby (vč. DPH): | 2 269 410 Kč Spočítat financování |
| Cena dřevostavby na klíč (vč. DPH): | 4 367 125 Kč Spočítat financování |
| Cena včetně základové desky: | Ano |
Aktuální ceny naleznete na stránkách, případně na dotaz u prezentované společnosti.
Dřevostavba na klíč MS 15 Ekonomy, která vznikla jako odpověď na poptávku klientů po příjemném, relativně jednoduchém a především cenově zajímavém domku pro velkou rodinu s bohatým technickým zázemím a krytým venkovním posezením, které je součástí domu.
Dřevostavba je navržena jako bungalow s valbovou střechou o sklonu 25°. Při návrhu bylo dbáno a velkou variabilitu, kterou dům svými rozměry nabízí, což podporuje naši myšlenku o tom, že každou dřevostavba z naší produkce si zákazník může dle svých představ upravit tak, aby vyhovovala právě jemu. Dále byl kladen důraz na to, aby v dřevostavbě bylo vše, co je potřebné pro velice komfortní bydlení čtyřčlenné rodiny a s tím spojené technické zázemí.
V základní variantě této dřevostavby jsou dva dětské pokoje, ložnice s připojenou šatnou bezprostředně propojeny se zahradou, dále pracovna, obytná kuchyň s jídelnou komunikačně propojená se spíží a přístupem ven a neposlední řadě obývací pokoj. Dále je v domě samozřejmě WC, technická místnost, koupelna a zádveří. Vnitřní dispozici domu lze však dle přání klienta upravovat.
|
Oznámkujte |
Oblíbené: 1 |
|
Ekologická dřevostavba
EKOPANELY SERVIS s.r.o.
Užitná plocha: 128 m²
Dispozice: 3+kk / 3+1
Dům se sloupy z douglasky
ARCHCON atelier, s.r.o., DŘEVOSTAVBY BISKUP, s.r.o.
Užitná plocha: 118.44 m²
Dispozice: 4+kk / 4+1
Moderní roubenka v trampské osadě
OK PYRUS, s.r.o.
Užitná plocha: 117 m²
RD Mnichovice
EKOPANELY SERVIS s.r.o.
Užitná plocha: 124.3 m²
Dispozice: 3+kk / 3+1
Dům venkovského stylu
EKOPANELY SERVIS s.r.o.
Užitná plocha: 153 m²
Dispozice: 4+kk / 4+1
Pavo 111 - dřevostavba na klíč
A T R I U M, s.r.o.
Užitná plocha: 111.03 m²
Dispozice: 5+kk / 5+1
EKONOMY MS 04 - dřevostavba na klíč
MS HAUS s.r.o.
Užitná plocha: 85 m²
Dispozice: 4+kk / 4+1
Bennet
KANADSKÉ SRUBY TÁBOR, s.r.o.
Užitná plocha: 177 m²
Dispozice: 5+kk / 5+1
Rodinný dům Tábor - dřevostavba na klíč
ALFAHAUS s.r.o.
Užitná plocha: 137 m²
Dispozice: 4+kk / 4+1
Rodinný dům 307 - dřevostavba na klíč
MARTINICE GROUP s.r.o.
Užitná plocha: 130 m²
Dispozice: 5+kk / 5+1
Nízkoenergetická dřevostavba
EKOPANELY SERVIS s.r.o.
Užitná plocha: 115 m²
Dispozice: 4+kk / 4+1
Futura Freestyle - dřevostavba na klíč
Prodesi I Domesi
Užitná plocha: 107.8 m²
Dispozice: 3+kk / 3+1
Optimal 02 - dřevostavba na klíč
PENATUS s.r.o.
Užitná plocha: 124 m²
Dispozice: 4+kk / 4+1
Lesníkova roubenka
EKOPANELY SERVIS s.r.o.
Užitná plocha: 260 m²
Dispozice: 5+kk / 5+1
LUCERN 116 - dřevostavba na klíč
LUCERN dřevostavby s.r.o.
Užitná plocha: 103.1 m²
Dispozice: 4+kk / 4+1
Proč jste na portále DŘEVO&stavby?
Copyright © 2026 Českobrodská 35, 190 12 Praha 9 - Dolní Počernice Kontakt
