| Název: | LIGHT 03 - dřevostavba na klíč |
| Kategorie: | Projekty dřevostaveb - katalog dřevostaveb na klíč |
| Společnost: | GOOPAN |
| Charakteristika domu: |
|
| Počet podlaží: | jednopodlažní |
| Generačnost: | jednogenerační |
| Konstrukční systém: |
|
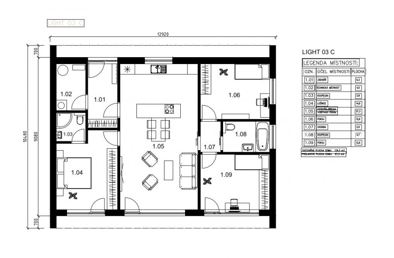
| Podlahová plocha (užitná): | 97,00 m² |
| Dispozice: | 3+kk / 3+1 |
Aktuální ceny naleznete na stránkách, případně na dotaz u prezentované společnosti.
Třetí dům z řady LIGHT s podlahovou plochou 85m2 až 97,3m2 vytvoří ideální domov menší rodině nebo jednotlivci. Dispozice 3+kk nebo 4+kk je elegantně rozčleněná do dvou pomyslných částí.
Levá část, při pohledu z jihu, náleží pánům domu. Dominantou této části je hlavní ložnice s přímým vstupem do zahrady. Na ložnici přímo navazuje průchozí šatna a koupelna s toaletou.
Pravou část domu tvoří pokoj, druhá koupelna s toaletou a technická místnost. Koupelna sice není přístupná rovnou z pokoje, ale přímo s ním sousedí, takže komfort obyvatele je zajištěn.
Obě části spojuje, jak je pro naše domy typické, kuchyň s jídelnou a obývacím pokojem o velkorysé výměře 31,5 m2. Francouzské okno vpouští do místnosti dostatek světla a zprostředkovává příjemný pohled do zeleně za každého počasí.
Zvenku dům zaujme svým nadčasovým designem a zajímavým detailem na jižní fasádě.
|
Oznámkujte |
Oblíbené: 0 |
|
EKONOMY MS 04 - dřevostavba na klíč
MS HAUS s.r.o.
Užitná plocha: 85 m²
Dispozice: 4+kk / 4+1
Rodinný dům Tábor - dřevostavba na klíč
ALFAHAUS s.r.o.
Užitná plocha: 137 m²
Dispozice: 4+kk / 4+1
Dům venkovského stylu
EKOPANELY SERVIS s.r.o.
Užitná plocha: 153 m²
Dispozice: 4+kk / 4+1
Futura Freestyle - dřevostavba na klíč
Prodesi I Domesi
Užitná plocha: 107.8 m²
Dispozice: 3+kk / 3+1
Moderní roubenka v trampské osadě
OK PYRUS, s.r.o.
Užitná plocha: 117 m²
Pavo 111 - dřevostavba na klíč
A T R I U M, s.r.o.
Užitná plocha: 111.03 m²
Dispozice: 5+kk / 5+1
Ekologická dřevostavba
EKOPANELY SERVIS s.r.o.
Užitná plocha: 128 m²
Dispozice: 3+kk / 3+1
Chata v Jizerských horách - dřevostavba na klíč
3AE s.r.o.
Optimal 02 - dřevostavba na klíč
PENATUS s.r.o.
Užitná plocha: 124 m²
Dispozice: 4+kk / 4+1
Nízkoenergetická dřevostavba
EKOPANELY SERVIS s.r.o.
Užitná plocha: 115 m²
Dispozice: 4+kk / 4+1
Rodinný dům 307 - dřevostavba na klíč
MARTINICE GROUP s.r.o.
Užitná plocha: 130 m²
Dispozice: 5+kk / 5+1
Dům se sloupy z douglasky
ARCHCON atelier, s.r.o., DŘEVOSTAVBY BISKUP, s.r.o.
Užitná plocha: 118.44 m²
Dispozice: 4+kk / 4+1
RD Mnichovice
EKOPANELY SERVIS s.r.o.
Užitná plocha: 124.3 m²
Dispozice: 3+kk / 3+1
Bennet
KANADSKÉ SRUBY TÁBOR, s.r.o.
Užitná plocha: 177 m²
Dispozice: 5+kk / 5+1
LUCERN 116 - dřevostavba na klíč
LUCERN dřevostavby s.r.o.
Užitná plocha: 103.1 m²
Dispozice: 4+kk / 4+1
Proč jste na portále DŘEVO&stavby?
Copyright © 2026 Českobrodská 35, 190 12 Praha 9 - Dolní Počernice Kontakt
