| Název: | MS 110a - dřevostavba na klíč |
| Kategorie: | Projekty dřevostaveb - katalog dřevostaveb na klíč |
| Společnost: | MS HAUS s.r.o. |
| Charakteristika domu: |
|
| Počet podlaží: | vícepodlažní |
| Generačnost: | jednogenerační |
| Konstrukční systém: |
|
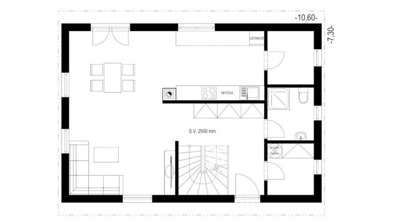
| Podlahová plocha (užitná): | 122,00 m² |
| Zastavěná plocha: | 77,00 m² |
| Tvar střechy: | sedlová |
| Dispozice: | 5+kk / 5+1 |
| Cena hrubé stavby (vč. DPH): | 2 390 045 Kč Spočítat financování |
| Cena dřevostavby na klíč (vč. DPH): | 4 523 870 Kč Spočítat financování |
| Cena včetně základové desky: | Ano |
Aktuální ceny naleznete na stránkách, případně na dotaz u prezentované společnosti.
Dřevostavba na klíč s velmi úsporným půdorysným řešením s maximálně využitelným podkrovím. Dispoziční řešení této dřevostavby umožňuje variabilní osazení na pozemku ve vztahu ke světovým stranám. Minimální výška podkrovních místností je 120 cm, což umožňuje plné využití podlahové plochy. Samozřejmostí je balkon a propojení obytných prostor přes terasu se zahradou, dům je určen pro čtyř- až pětičlennou rodinu, ve variantě až šestičlennou. Tato dřevostavba na klíč je nízkoenergetická. Konstrukční řešení je navrženo tak, aby umožňovalo širokou paletu změn. Kuchyň v přízemí je možno oddělit, na úkor velkého obývacího pokoje je možno zřídit pokoj pro hosty vč. malé koupelny. Dům je možno zpestřit arkýřem či zimní zahradou. Jeho funkčnost lze doplnit carportem či garáží. Další z dřevostaveb na klíč od společnosti MS HAUS s velmi příznivou cenou do 3 milionů korun.
|
Oznámkujte |
Oblíbené: 0 |
|
Optimal 02 - dřevostavba na klíč
PENATUS s.r.o.
Užitná plocha: 124 m²
Dispozice: 4+kk / 4+1
Rodinný dům 307 - dřevostavba na klíč
MARTINICE GROUP s.r.o.
Užitná plocha: 130 m²
Dispozice: 5+kk / 5+1
Ekologická dřevostavba
EKOPANELY SERVIS s.r.o.
Užitná plocha: 128 m²
Dispozice: 3+kk / 3+1
LUCERN 116 - dřevostavba na klíč
LUCERN dřevostavby s.r.o.
Užitná plocha: 103.1 m²
Dispozice: 4+kk / 4+1
Rodinný dům Tábor - dřevostavba na klíč
ALFAHAUS s.r.o.
Užitná plocha: 137 m²
Dispozice: 4+kk / 4+1
RD Mnichovice
EKOPANELY SERVIS s.r.o.
Užitná plocha: 124.3 m²
Dispozice: 3+kk / 3+1
Dům se sloupy z douglasky
ARCHCON atelier, s.r.o., DŘEVOSTAVBY BISKUP, s.r.o.
Užitná plocha: 118.44 m²
Dispozice: 4+kk / 4+1
Chata v Jizerských horách - dřevostavba na klíč
3AE s.r.o.
Moderní roubenka v trampské osadě
OK PYRUS, s.r.o.
Užitná plocha: 117 m²
Futura Freestyle - dřevostavba na klíč
Prodesi I Domesi
Užitná plocha: 107.8 m²
Dispozice: 3+kk / 3+1
Lesníkova roubenka
EKOPANELY SERVIS s.r.o.
Užitná plocha: 260 m²
Dispozice: 5+kk / 5+1
Nízkoenergetická dřevostavba
EKOPANELY SERVIS s.r.o.
Užitná plocha: 115 m²
Dispozice: 4+kk / 4+1
Bennet
KANADSKÉ SRUBY TÁBOR, s.r.o.
Užitná plocha: 177 m²
Dispozice: 5+kk / 5+1
Pavo 111 - dřevostavba na klíč
A T R I U M, s.r.o.
Užitná plocha: 111.03 m²
Dispozice: 5+kk / 5+1
Dům venkovského stylu
EKOPANELY SERVIS s.r.o.
Užitná plocha: 153 m²
Dispozice: 4+kk / 4+1
Proč jste na portále DŘEVO&stavby?
Copyright © 2026 Českobrodská 35, 190 12 Praha 9 - Dolní Počernice Kontakt
