| Název: | RD Chotilsko |
| Kategorie: | Projekty dřevostaveb - katalog dřevostaveb na klíč |
| Společnost: | 3AE s.r.o. |
| Charakteristika domu: |
|
| Počet podlaží: | vícepodlažní |
| Generačnost: | jednogenerační |
| Konstrukční systém: |
|
| Podlahová plocha (užitná): | 140,00 m² |
| Zastavěná plocha: | 86,00 m² |
| Dispozice: | 5+kk / 5+1 |
| Cena hrubé stavby (vč. DPH): | 5 152 000 Kč Spočítat financování |
| Cena dřevostavby na klíč (vč. DPH): | 11 060 000 Kč Spočítat financování |
| Cena včetně základové desky: | Ano |
Aktuální ceny naleznete na stránkách, případně na dotaz u prezentované společnosti.
Dispozice tohoto domu byly nejvíce ovlivněny požadavkem investora na společné prostory. Jelikož dům nyní slouží převážně k rekreačním účelů a klient požadoval možnost posezení většího množství lidí, je tomuto požadavku podřízen obytný prostor, který je zároveň propojen s venkovní velkou terasou. Terasa je zastřešena „kšiltem", který dovolí ji užívat i během deštivých dnů. Zároveň slouží v letních měsících jako pasivní stínění prosklené stěny obývacího pokoje. Další nesporná výhoda tohoto zastřešení je fakt, že odstíní hluk bavící se společnosti na terase a neruší tak spící v pokojích v patře. Krom zádveří a skladu se v přízemí nachází koupelna, která je hojně využívána hlavně v letních měsících. V koupelně je za posuvnými panely schováno technické zázemí. Aby bylo docíleno segregace klidové a pobytové části, byl vstup na schodiště umístěn do zádveří, čímž došlo k eliminaci přenosu hluku z pobytové části přes schodiště do patra.
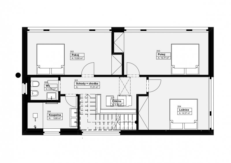
V patře je součástí chodby malá čítárna s knihovnou. Je zde samostatné wc, koupelna, ložnice a dva velké pokoje. V podhledu chodby jsou umístěny stahovací schody, po kterých je přístup do půdního prostoru, jenž skýtá velké úložné prostory.
Stavba je na pozemku umístěna s ohledem na stávající zástavbu a v návaznosti na přilehlou komunikaci. Dům je otevřen směrem k jihu do zahrady, čímž dodává vnitřnímu prostoru domu patřičnou intimitu a umožňuje v zimních měsících využití nemalých tepelných zisků ze slunečního záření. V letních měsících jsou tyto zisky eliminovány zavěšeným zastíněním z dřevěné konstrukce. Nosný systém RD - stěny tvoří lepené masivní dřevěné panely Novatop Solid tl. 84 mm. Nosný systém GARÁŽE - stěny tvoří lepené masivní dřevěné panely Novatop Solid tl. 62 mm.
|
Oznámkujte |
Oblíbené: 0 |
|
EKONOMY MS 04 - dřevostavba na klíč
MS HAUS s.r.o.
Užitná plocha: 85 m²
Dispozice: 4+kk / 4+1
Chata v Jizerských horách - dřevostavba na klíč
3AE s.r.o.
RD Mnichovice
EKOPANELY SERVIS s.r.o.
Užitná plocha: 124.3 m²
Dispozice: 3+kk / 3+1
Moderní roubenka v trampské osadě
OK PYRUS, s.r.o.
Užitná plocha: 117 m²
Pavo 111 - dřevostavba na klíč
A T R I U M, s.r.o.
Užitná plocha: 111.03 m²
Dispozice: 5+kk / 5+1
Rodinný dům Tábor - dřevostavba na klíč
ALFAHAUS s.r.o.
Užitná plocha: 137 m²
Dispozice: 4+kk / 4+1
Ekologická dřevostavba
EKOPANELY SERVIS s.r.o.
Užitná plocha: 128 m²
Dispozice: 3+kk / 3+1
LUCERN 116 - dřevostavba na klíč
LUCERN dřevostavby s.r.o.
Užitná plocha: 103.1 m²
Dispozice: 4+kk / 4+1
Nízkoenergetická dřevostavba
EKOPANELY SERVIS s.r.o.
Užitná plocha: 115 m²
Dispozice: 4+kk / 4+1
Bennet
KANADSKÉ SRUBY TÁBOR, s.r.o.
Užitná plocha: 177 m²
Dispozice: 5+kk / 5+1
Optimal 02 - dřevostavba na klíč
PENATUS s.r.o.
Užitná plocha: 124 m²
Dispozice: 4+kk / 4+1
Futura Freestyle - dřevostavba na klíč
Prodesi I Domesi
Užitná plocha: 107.8 m²
Dispozice: 3+kk / 3+1
Dům se sloupy z douglasky
ARCHCON atelier, s.r.o., DŘEVOSTAVBY BISKUP, s.r.o.
Užitná plocha: 118.44 m²
Dispozice: 4+kk / 4+1
Dům venkovského stylu
EKOPANELY SERVIS s.r.o.
Užitná plocha: 153 m²
Dispozice: 4+kk / 4+1
Rodinný dům 307 - dřevostavba na klíč
MARTINICE GROUP s.r.o.
Užitná plocha: 130 m²
Dispozice: 5+kk / 5+1
Proč jste na portále DŘEVO&stavby?
Copyright © 2026 Českobrodská 35, 190 12 Praha 9 - Dolní Počernice Kontakt
