| Název: | Roubenka Zuzana - roubenka na klíč |
| Kategorie: | Projekty dřevostaveb - katalog dřevostaveb na klíč |
| Společnost: | Haniš srubové domy s.r.o. |
| Charakteristika domu: |
|
| Počet podlaží: | vícepodlažní |
| Generačnost: | jednogenerační |
| Konstrukční systém: |
|
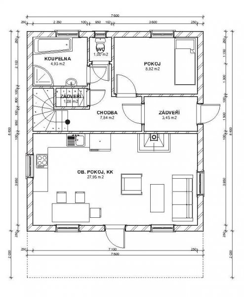
| Podlahová plocha (užitná): | 109,00 m² |
| Zastavěná plocha: | 66,00 m² |
| Dispozice: | 4+kk / 4+1 |
| Cena hrubé stavby (bez DPH): | 1 362 000 Kč Spočítat financování |
| Cena dřevostavby na klíč (bez DPH): | 4 115 000 Kč Spočítat financování |
| Cena včetně základové desky: | Ne |
Aktuální ceny naleznete na stránkách, případně na dotaz u prezentované společnosti.
Dispozičně je roubenka na klíč Zuzana řešena pro rekreační účely i rodinné bydlení pro 4.-6. osob. Roubenkana klíč Zuzana je svými rozměry vhodná i na střední stavební parcely od 900 m2. Roubenka na klíč Zuzana je svým tradičním vzhledem vhodná do podhorské i horské krajiny, CHKO i do obcí s tradiční stylovou zástavbou.
Podélné spoje - jedinečná "pero - drážka"- rohové spoje klasicky na rybinu.
Roubenku na klíč Zuzanu vyrábíme z hraněného masivu o průřezu 26/24 cm ( možnost až 30/30cm ) - splňuje technické parametry pro rodinné bydlení.
NÁŠ TIP - výhodná roubenka na klíč s bočním krytým stáním, použitelným také jako zastřešená terasa.
|
Oznámkujte |
Oblíbené: 1 |
|
LUCERN 116 - dřevostavba na klíč
LUCERN dřevostavby s.r.o.
Užitná plocha: 103.1 m²
Dispozice: 4+kk / 4+1
Lesníkova roubenka
EKOPANELY SERVIS s.r.o.
Užitná plocha: 260 m²
Dispozice: 5+kk / 5+1
Dům se sloupy z douglasky
ARCHCON atelier, s.r.o., DŘEVOSTAVBY BISKUP, s.r.o.
Užitná plocha: 118.44 m²
Dispozice: 4+kk / 4+1
Dům venkovského stylu
EKOPANELY SERVIS s.r.o.
Užitná plocha: 153 m²
Dispozice: 4+kk / 4+1
Rodinný dům 307 - dřevostavba na klíč
MARTINICE GROUP s.r.o.
Užitná plocha: 130 m²
Dispozice: 5+kk / 5+1
Optimal 02 - dřevostavba na klíč
PENATUS s.r.o.
Užitná plocha: 124 m²
Dispozice: 4+kk / 4+1
Ekologická dřevostavba
EKOPANELY SERVIS s.r.o.
Užitná plocha: 128 m²
Dispozice: 3+kk / 3+1
Moderní roubenka v trampské osadě
OK PYRUS, s.r.o.
Užitná plocha: 117 m²
Chata v Jizerských horách - dřevostavba na klíč
3AE s.r.o.
EKONOMY MS 04 - dřevostavba na klíč
MS HAUS s.r.o.
Užitná plocha: 85 m²
Dispozice: 4+kk / 4+1
Bennet
KANADSKÉ SRUBY TÁBOR, s.r.o.
Užitná plocha: 177 m²
Dispozice: 5+kk / 5+1
Futura Freestyle - dřevostavba na klíč
Prodesi I Domesi
Užitná plocha: 107.8 m²
Dispozice: 3+kk / 3+1
Pavo 111 - dřevostavba na klíč
A T R I U M, s.r.o.
Užitná plocha: 111.03 m²
Dispozice: 5+kk / 5+1
RD Mnichovice
EKOPANELY SERVIS s.r.o.
Užitná plocha: 124.3 m²
Dispozice: 3+kk / 3+1
Nízkoenergetická dřevostavba
EKOPANELY SERVIS s.r.o.
Užitná plocha: 115 m²
Dispozice: 4+kk / 4+1
Proč jste na portále DŘEVO&stavby?
Copyright © 2026 Českobrodská 35, 190 12 Praha 9 - Dolní Počernice Kontakt
