| Název: | ATYP LIBRANTICE |
| Kategorie: | Vzorové domy - dřevostavby na klíč pro veřejnost |
| Společnost: | MS HAUS s.r.o. |
| Jméno: | Ing. Jan Moravec |
| Adresa: | Librantice 246 Librantice 503 46 |
| Kraj: |
|
| Mobil: | 603 158 582 |
| E-mail: | moravec@ms-haus.cz |
| Web: | www.ms-haus.cz |
| Charakteristika domu: |
|
| Počet podlaží: | vícepodlažní |
| Generačnost: | vícegenerační |
| Konstrukční systém: |
|
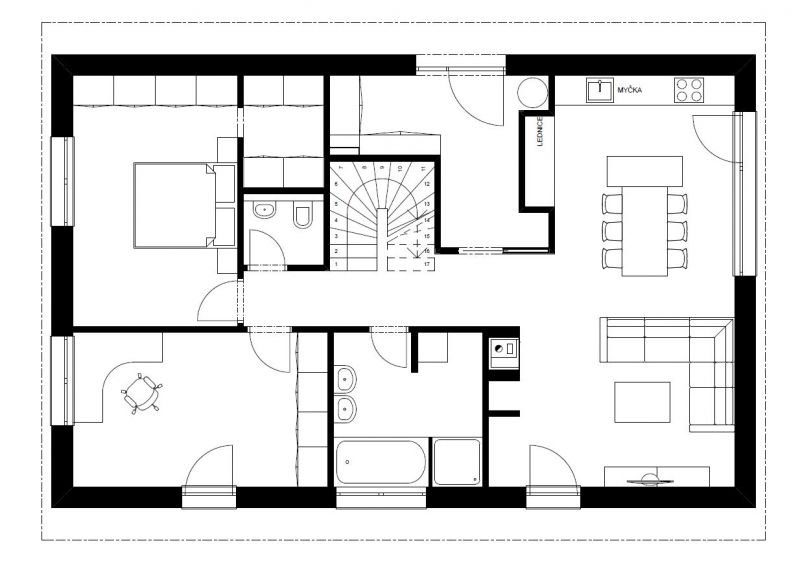
| Podlahová plocha (užitná): | 178,00 m² |
| Zastavěná plocha: | 162,00 m² |
| Dispozice: | 6+kk / 6+1 |
| Otevřeno: | 8 - 16 hod |
Atypický dům je vhodný pro úzké parcely i pro oblasti s požadavkem na větší sklon střechy. Celková dispozice 6 + kk je vytvořena tak, aby dům bylo možné do budoucna využít jako dvougenerační a obyvatelům spodního podlaží sloužila komfortně dispozice 3 + kk (ložnice, pokoj, kuchyň s obývákem, samostatné WC a koupelna) a podkroví posloužilo jako další 3 + kk (kde jsou zatím 3 prostorné pokoje, koupelna a technická místnost). Z technické místnosti je možné velmi snadno vytvořit druhou kuchyni. Každé patro má své sociální zázemí.
|
Oznámkujte |
Oblíbené: 0 |
|
Dům se sloupy z douglasky
ARCHCON atelier, s.r.o., DŘEVOSTAVBY BISKUP, s.r.o.
Užitná plocha: 118.44 m²
Dispozice: 4+kk / 4+1
EKONOMY MS 04 - dřevostavba na klíč
MS HAUS s.r.o.
Užitná plocha: 85 m²
Dispozice: 4+kk / 4+1
LUCERN 116 - dřevostavba na klíč
LUCERN dřevostavby s.r.o.
Užitná plocha: 103.1 m²
Dispozice: 4+kk / 4+1
Chata v Jizerských horách - dřevostavba na klíč
3AE s.r.o.
Futura Freestyle - dřevostavba na klíč
Prodesi I Domesi
Užitná plocha: 107.8 m²
Dispozice: 3+kk / 3+1
Dům venkovského stylu
EKOPANELY SERVIS s.r.o.
Užitná plocha: 153 m²
Dispozice: 4+kk / 4+1
Moderní roubenka v trampské osadě
OK PYRUS, s.r.o.
Užitná plocha: 117 m²
Bennet
KANADSKÉ SRUBY TÁBOR, s.r.o.
Užitná plocha: 177 m²
Dispozice: 5+kk / 5+1
Rodinný dům 307 - dřevostavba na klíč
MARTINICE GROUP s.r.o.
Užitná plocha: 130 m²
Dispozice: 5+kk / 5+1
Optimal 02 - dřevostavba na klíč
PENATUS s.r.o.
Užitná plocha: 124 m²
Dispozice: 4+kk / 4+1
Nízkoenergetická dřevostavba
EKOPANELY SERVIS s.r.o.
Užitná plocha: 115 m²
Dispozice: 4+kk / 4+1
Lesníkova roubenka
EKOPANELY SERVIS s.r.o.
Užitná plocha: 260 m²
Dispozice: 5+kk / 5+1
Pavo 111 - dřevostavba na klíč
A T R I U M, s.r.o.
Užitná plocha: 111.03 m²
Dispozice: 5+kk / 5+1
Rodinný dům Tábor - dřevostavba na klíč
ALFAHAUS s.r.o.
Užitná plocha: 137 m²
Dispozice: 4+kk / 4+1
RD Mnichovice
EKOPANELY SERVIS s.r.o.
Užitná plocha: 124.3 m²
Dispozice: 3+kk / 3+1
Proč jste na portále DŘEVO&stavby?
Copyright © 2026 Českobrodská 35, 190 12 Praha 9 - Dolní Počernice Kontakt
