NOVATOP: Navštivte na prvního máje moderní dřevostavbu!
Dagmar Šimonová | Pátek, 26. duben 2013 |
Dům na klíč z dílny 3AE si můžete přijít prohlédnout 1. května 2013 do Nové Vsi pod Pleší nedaleko Mníšku pod Brdy. Čeká na vás zajímavá prvomájová inspirace ve formě moderní dřevostavbu z dílny 3AE, ve které právě probíhají finální interiérové práce před předáním klíčů majitel. Přijet můžete kdykoliv mezi 9 – 17 hod.
Chystáte se stavět? Přijeďte si pro informace z první ruky!
![]()
Na vaše dotazy bude připraven odpovídat realizační tým 3AE a zástupce systému NOVATOP. V případě zájmu a jakýchkoliv dotazů kontaktujte pořadatele: společnost 3AE,
Tato emailová adresa je chráněna před spamboty, abyste ji viděli, povolte JavaScript
, tel.: 774 221 682.
Studie: Ing. arch. Jiří Soukup, Ing. arch. Lukáš Pejsar, Projekt pro stavební povolení, realizace na klíč: 3AE, 2013
Návštěvu domu si můžete zpestřit výletem do blízkého okolí
V blízkém okolí se vám nabízí také návštěva zámku Mníšek pod Brdy (5 km) nebo zámku Dobříš (16 km) či Karlštejnu (23 km). Turistům lze doporučit i okolí Štěchovické přehrady.
Koncepce domu
Dům je postaven na pozemku v blízkosti lesa a návrh domu citlivě reaguje na okolní krajinu. Je umístěn při severozápadní hranici pozemku a otevřen směrem k jihozápadu do zahrady, čímž dodává vnitřnímu prostoru patřičnou intimitu a umožňuje v zimních měsících využití nemalých tepelných zisků ze slunečního záření. V letních měsících jsou tyto zisky eliminovány venkovními žaluziemi.
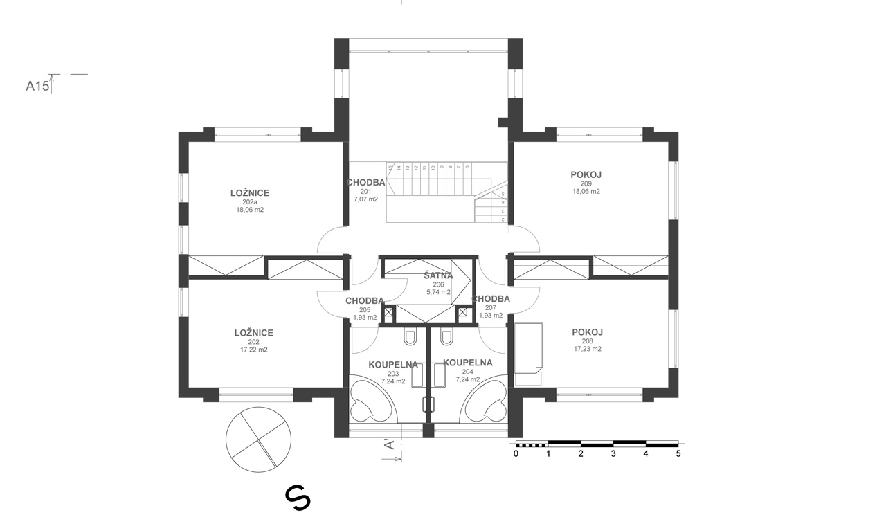
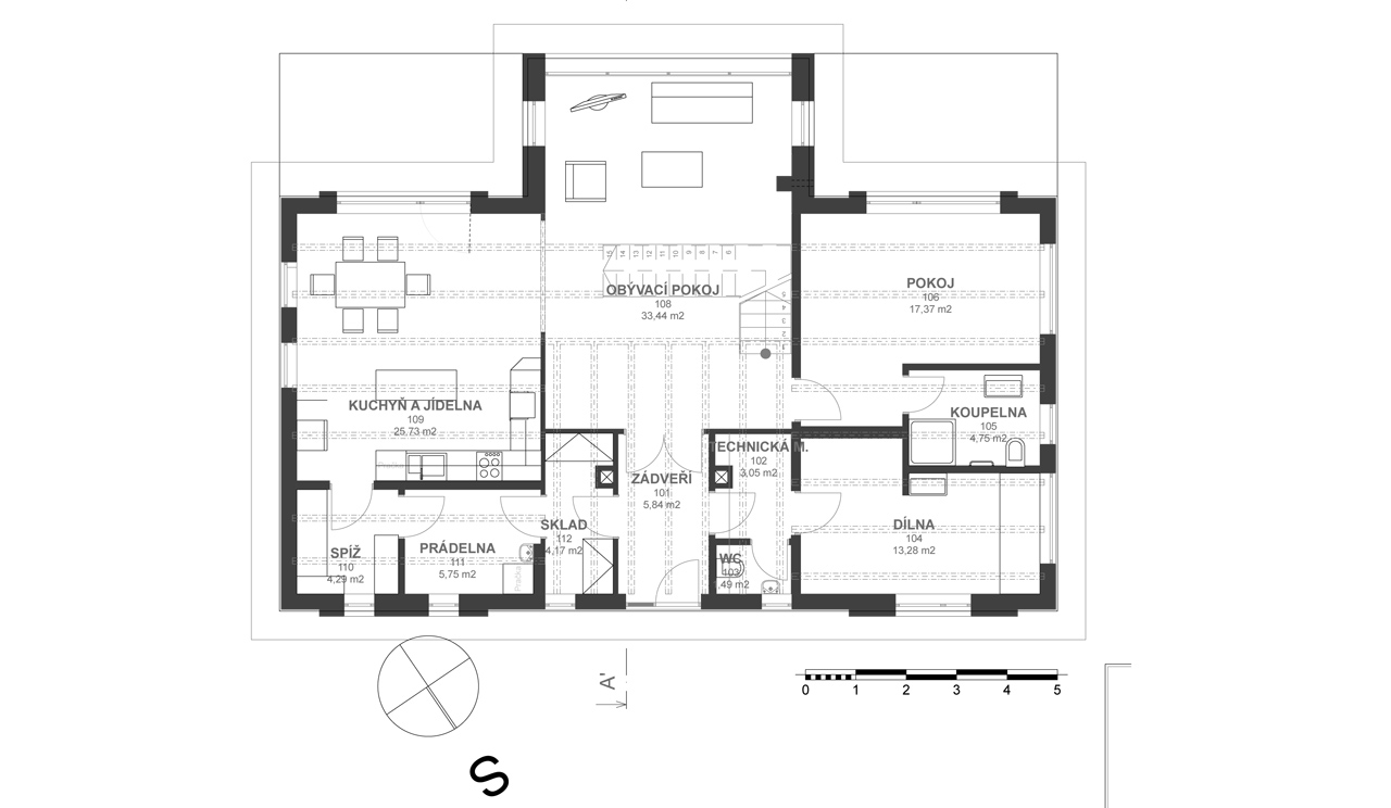
Dům je dvoupodlažní. V prvním nadzemním podlaží se nachází při východní straně vstup, technické zázemí se šatnou a vstupní hala. Zbytek podlaží tvoří prostor obývacího pokoje, jídelna s kuchyní, dílna a pokoj pro hosty. Prostor obývacího pokoje, jídelny a pokoje pro hosty je propojen se zahradou. V obývacím pokoji je schodiště vedoucí do druhého nadzemního podlaží. Tam se nachází ložnice, dva pokoje, šatna a dvě koupelny s WC.
V celém domě je ve velké míře ponechána pohledová kvalita panelů NOVATOP, které tvoří masivní konstrukci domu, a která navozuje pohodu a harmonii. Exteriérové materiály byly zvoleny tak, aby stavba harmonicky zapadla do okolní přírody. Je zde kombinována stěrková fasáda s plechovým obkladem. Střecha je navržena sedlová se skládanou střešní krytinou a sklonem 40°.
Důležitou součástí moderních domů je i technologie. Teplo domova zajišťuje podlahové vytápění v kombinaci s teplovzdušným vytápěním a rekuperací. Srdcem domu jsou akumulační nádrže napájené tepelným čerpadlem vzduch – voda s možností připojení solárních panelů. Ty budou osazeny v budoucnu, v domě je prozatím zhotovena pouze příprava na jejich osazení.
Technické parametry stavby:
- Zastavěná plocha: 142,7 m2
- Užitná plocha: 222 m2
- Obestavěný prostor: 353 m3
- Vnější stěna: U = 0,16
- Podlaha nad terénem: U = 0,17
- Střecha: U = 0,12
- Větrání: mechanické s rekuperací tepla
- Vytápění: Teplovodní podlahové v kombinaci s teplovzdušným
- Okna: Dřevěná Profil IV92 PASIV, Uw = 0,69
- Zastínění: Předokenní žaluzie
- Potřeba tepla k vytápění: 22 kWh/ m2.a
Konstrukce obvodové stěny:
84 mm NOVATOP SOLID, 160 mm NOSNÍK, 80 mm TEPELNÁ IZOLACE ISOVER UNI, 80 mm TEPELNÁ IZOLACE, ISOVER UNI, 60 mm LATĚ 60/40 HORIZONTÁLNÍ, 60 mm TEPELNÁ IZOLACE ISOVER UNI, DIFÚZNÍ FOLIE KONTAKTNÍ, 40 mm LATĚ 40/60 VERTIKÁLNÍ, 40 mm PROVĚTRÁVANÁ MEZERA, RUUKKI CLASSIC PREMIUM
V obvodové stěně je použito celkem 220 mm tepelné izolace. Na toto souvrství se přidělá difúzní fólie, pak svislé latě, které dělají provětrávanou mezeru, a na latě finální fasádní obklad.













Vytvořeno v xart.cz