Komerční sdělení | Pondělí, 14. listopad 2016 |
Montovaná dřevostavba na klíč, ale s uspořádání podle potřeb a životních plánů uživatelů? I to je možné. Katalogový dům 122 od firmy ALLSTAV nabízí tři varianty architektonického řešení domu, aniž by utrpěl uživatelský komfort v jednotlivých místnostech.
![]()
Český ALLSTAV sbíral zkušenosti s realizací ekonomických i individuálních dřevostaveb více než dvacet let, a to nejen v mírných klimatických podmínkách. Přes 1 000 domů realizovaných napříč Evropou a africkým Marokem dotvářely zkušenosti týmu profesionálů, který došel k jednoznačnému závěru: je nezbytné nabídnout zákazníkům cenově dostupné domy s možností volby. Nikdy není dopředu jasné, jakým směrem se bude životní cesta rodiny ubírat. Požadavky na životní komfort se zkrátka dotvářejí a formují s postupem času. Vyrábět tedy unifikované katalogové domy s jednotným interiérovým uspořádáním není klíčem k oslovení dnešního zákazníka.
Dřevostavba za milion?
Prvním pilířem finanční atraktivity dřevostaveb ALLSTAV je vlastní výroba panelů. Pokud výrobce rovná se zhotovitel, celý obchodně-distribuční řetězec se zkracuje o jeden článek, což výrazně šetří náklady budoucímu majiteli. Zároveň samozřejmě zhotovitel zná detailně kvalitu a vlastnosti materiálu, se kterým pracuje, čímž se zaručí uchování deklarovaných vlastností panelů po celou dobu jejich životnosti. Druhý neméně důležitý fakt je možnost zvolit si fázi rozestavěnosti, ve které chcete stavbu přebírat. Od dokončené hrubé stavby až přes kompletaci fasády, rozvodů, položení podlah a instalaci tepleného čerpadla. Katalogový dům 122 v základní variantě, tedy od projektu se stavebním povolením až po zastřešení celé hrubé stavby, pořídíte za 1 050 000 Kč s DPH. Dům lze dodat v různém stupni dokončenosti, dřevostavba na klíč pak vyjde na 2,625 mil. Kč včetně DPH.
Katalogový dům nemusí být klonem
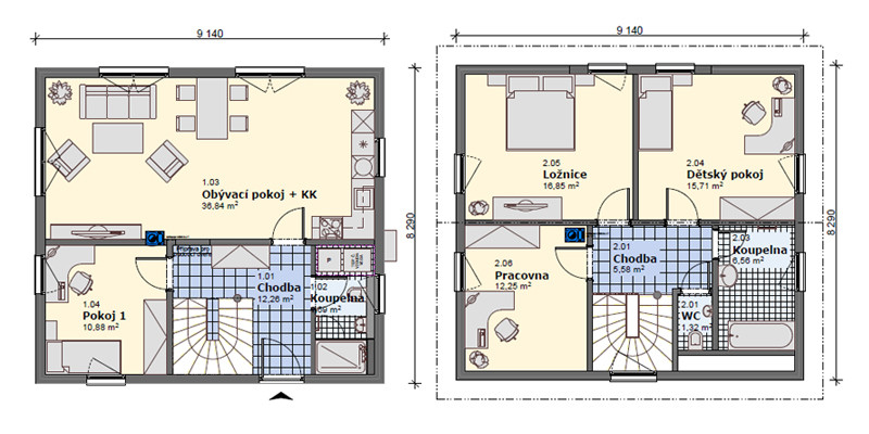
Obytná plocha 121,85 m2 nabízí útulný prostor pro život. Díky variabilitě interiéru dokážete katalogový dům přizpůsobit své představě o budoucím bydlení. Čtyřčlenná rodina, samotný pár preferující prostorné pracovny a komfortní pokoje pro hosty nebo dvě generace žijící pod jednou střechou? Velká kuchyň nebo kuchyňský kout a obývák spojený s jídelnou? Flexibilita stavby umožňuje tři architektonická uspořádání. Ve všech variantách je počítáno s dvojím sociálním zařízením. Uvažováno je i například s krbovými kamny nebo střešním arkýřem.
Varianta 1
Uspořádání ponechávající velké možnosti pro budoucí přizpůsobení se kariérní či rodinné situaci. Není nutné rozhodovat se mezi dětským pokojem a pracovnou. V přízemí je prostorný obývací pokoj spojený s kuchyňským koutem (36,84 m2), samostatná koupelna a pokoj, který může sloužit jako pracovna nebo pokoj pro hosty (10,88 m2). Prvnímu patru dominuje ložnice (16,85 m2) a dětský pokoj (15,71 m2). Obě místnosti poskytnou dostatek uživatelského komfortu a prostoru pro veškeré zařízení. Dále je v patře samostatná pracovna (12,25 m2) a koupelna (6,56 m2) s oddělenou toaletou.
Varianta 2
Tato varianta počítá se čtyřčlennou rodinou. Uvažováno je i s technickou místností (2,5 m2), která se často pro rodiny stává nezbytnou, byť s ní od počátku nebylo počítáno. Přízemí v tomto uspořádání nabídne obývací pokoj spojený s jídelnou (36,84 m2) a samostatnou kuchyň, ke které přísluší spíž (2,2 m2). Opět přízemí disponuje vlastní toaletou. První patro je rozděleno na dva dětské pokoje takřka čtvercového půdorysu (2 x 12,25 m2), prostornou ložnici (20,31 m2) a plně vybavenou koupelnu s toaletou (7,47 m2).
Varianta 3
Třetí varianta nabízí přízemí s prostornou technickou místností a koupelnou s toaletou a sprchovým koutem. Samostatná kuchyně přechází do srdce celého patra, obývacího pokoje spojeného s jídelnou (25 m2). První patro samozřejmě disponuje pohodlnou ložnicí s prostorem pro dvě sady velkých šatních skříní. Další dva pokoje téměř čtvercového půdorysu o rozměrech 12,2 m2 mohou být využity jako dětské pokoje nebo pokoje pro návštěvy. Nechybí ani prostor pro druhou plně vybavenou koupelnu, kde je dostatek místa jak pro sprchový kout, tak pro vanu.














Vytvořeno v xart.cz