DAS | Sobota, 26. listopad 2016 |
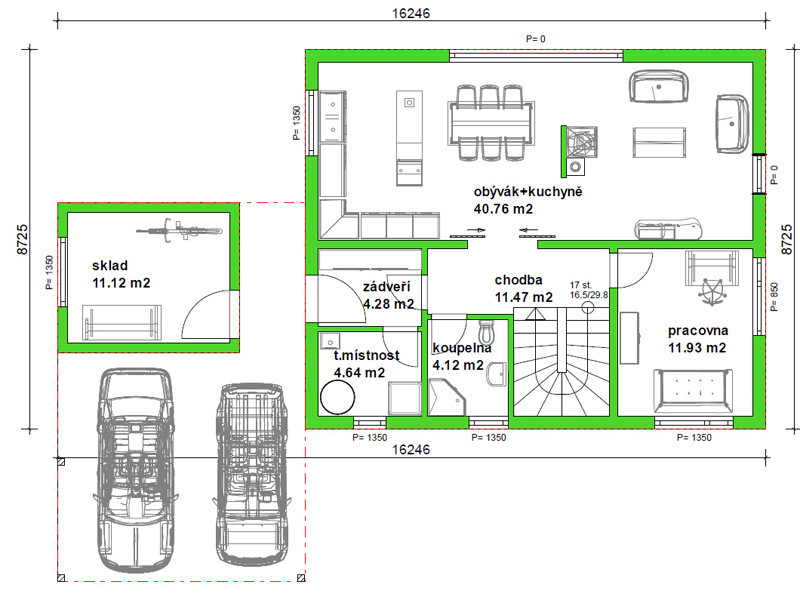
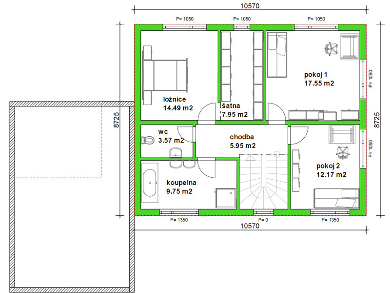
Dřevostavba KLASIK 148 je navržena tak, aby uspokojila potřeby i početnější rodiny a zároveň dopřála každému dostatek prostoru. Přízemí tohoto typového rodinného domu přímo vybízí k setkání celé rodiny u stolu či krbu. V patře dřevostavby na klíč se nachází odpočinková zóna, kde bude mít každý člen rodiny dostatek soukromí a prostoru. Z celého rodinného domu dýchá moderní styl, který si však zachoval klasické pojetí rodinného domu.
Součástí domu je také praktický venkovní sklad a přístřešek pro auto. Celková užitná plocha tohoto domu tak činí 148 m2 a společnost ALFAHAUS si za něj účtuje 2,9 mil. Kč bez DPH a základové desky.













Vytvořeno v xart.cz