DAS | Pondělí, 20. listopad 2017 |
Typový dům Futura Freestyle od společnosti Domesi si svou univerzálností získal již desítky spokojených majitelů. Díky propojení interiéru s exteriérem, chytře řešeným dispozicím i velké variabilitě umí být Futura Freestyle jak kvalitním rodinným domem, tak příjemným víkendovým bydlením.
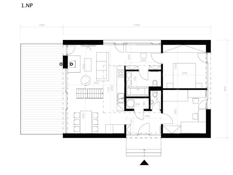
Dům je navržen pro tři až čtyři osoby s dispozicí 3+kk a užitnou plochou 76,5 m², díky platformě ve druhém podlaží je však užitná plocha rozšiřitelná až na 108 m² (4+kk).
Vyzkoušejte si bydlení v tomto domě na vlastní kůži.
Hlavní obytný prostor v přízemí je spojením obývacího pokoje, kuchyně a jídelny a za prosklenou stěnou jej prodlužuje venkovní terasa. Druhou část spodního patra tvoří pokoje a zázemí a je možné vybírat z více variant dispozic. Horní patro je možné nechat jako multifunkční otevřený prostor, ale i vybudovat zde další pokoje.
Společnost Domesi svůj vzorový dům Futura Freestyle v obci Pulečný také pronajímá, takže zde můžete strávit i celý víkend.
















Vytvořeno v xart.cz