Redakce | Čtvrtek, 05. březen 2020 |
Typový dům Futura Freestyle od architektů realizujících dřevostavby pod značkou Prodesi/Domesi si svou univerzálností získal již desítky spokojených majitelů. Díky propojení interiéru s exteriérem, chytře řešeným dispozicím i velké variabilitě umí být Futura Freestyle jak kvalitním rodinným domem, tak příjemným víkendovým bydlením.
Typový dům na míru
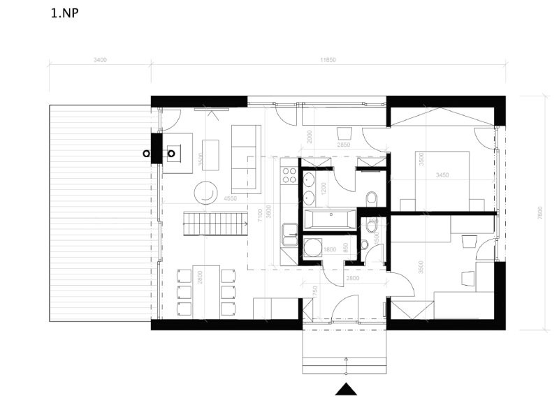
Dům je navržen pro tři až čtyři osoby s dispozicí 3+kk a užitnou plochou 76,5 m2, díky platformě ve druhém podlaží je však užitná plocha rozšiřitelná až na 108 m2 (4+kk). Hlavní obytný prostor v přízemí je spojením obývacího pokoje, kuchyně a jídelny a za prosklenou stěnou jej prodlužuje venkovní terasa.
Druhou část spodního patra tvoří pokoje a zázemí a je možné vybírat z více variant dispozic. Horní patro je možné ponechat jako multifunkční otevřený prostor, nebo zde vytvořit další pokoje.
Vzorový dům v obci Pulečný si můžete pronajmout a zažít v něm „testovací jízdu" v moderní dřevostavbě třeba o víkendu, ale i déle.



Chcete si vyzkoušet, jak se v této dřevostavbě bydlí? Navštivte vzorový dům dodavatele!
Vzorové dřevostavby slouží jako veřejně přístupné domy, které můžete navštívit a vyzkoušet si, jak se v dřevostavbě žije, zažít si jednoduše dřevostavbu na vlastní kůži. V řadě vzorových dřevostaveb můžete získat odpovědi na vaše otázky týkající se smlouvy, dodávky, stavby či technických parametrů domu přímo od odborníků na místě.
Společnost Prodesi/Domesi svůj vzorový dům Futura Freestyle v obci Pulečný také pronajímá, takže zde můžete strávit i celý víkend.
Chci si vyzkoušet vzorový dům Futura Freestyle

Technické parametry
- Projekt: Futura Freestyle - dřevostavba na klíč
- Charakteristika domu: samostatný
- Konstrukční systém: vrstvené dřevo
- Podlahová plocha (užitná): 76,00 m2
- Zastavěná plocha: 88,50 m2
- Dispozice: 3+kk / 3+1
- Realizace: Prodesi/Domesi
- Cena dřevostavby na klíč (vč. DPH): 2 598 677 Kč
- Cena za m2 podlahové plochy: 34 193,12 Kč




Zaujal vás typový dům Futura Freestyle? Zašlete dodavateli dotaz nebo nezávaznou poptávku!
Architektonický ateliér a realizační společnost Prodesi | Domesi specializující se výhradně na dřevostavby. Provede vás celým procesem stavby od první skici přes projektovou přípravu, až po předání klíčů od dokončené stavby. Mimo individuálních projektů nabízí také typové domy. Společnost funguje na trhu od roku 2002 a má na svém kontě více než stovku realizovaných dřevostaveb.












Vytvořeno v xart.cz