Jiří Kuthan | Čtvrtek, 16. duben 2020 |
Projekt dřevostavby KUBIS 74 od společnosti RD Rýmařov zůstává věrný své typové řadě. Jeho poznávacím znamením jsou jednoduché tvary, energetická úspornost a naprosto špičková výbava.
Tento typový dům je dostatečně prostorný, a přitom na parcele nezabere tolik místa. Součástí typového projektu dřevostavby KUBIS 74 je již v základu garážové stání s pultovou střechou. Dům se sedlovou střechou, se sklonem 22°, je vhodný jak do moderní, tak i starší zástavby.
V základní ceně domu KUBIS 74 je zahrnuto tepelné čerpadlo vzduch-vzduch s možností vytápění nebo chlazení splitovými klimatizačními jednotkami a nástěnné přímotopné panely.
Od poloviny srpna 2019 je součástí obvodové stěny zlepšená tepelná izolace (150 mm polystyrenu místo původních 100 mm).
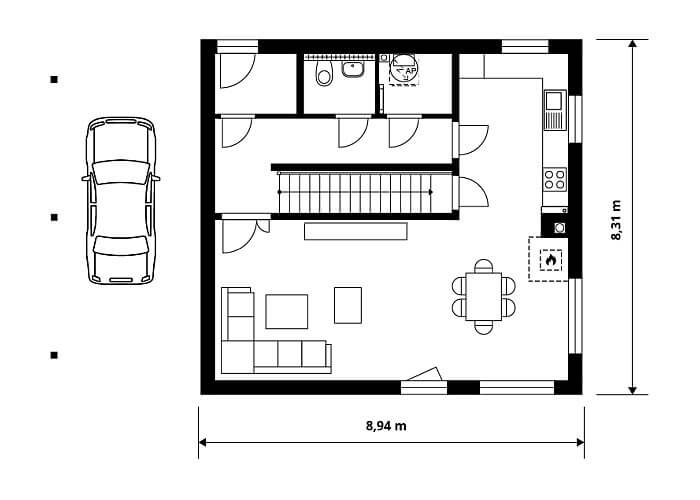
Dispozice domu KUBIS 74 zaujme svou prostorností a jednoduše řešenými dispozicemi. Nenajdete zde žádná hluchá místa a zbytečné výklenky. Čtvercový půdorys a zastavěná plocha necelých sto metrů čtverečních jsou ideální i na menší pozemky. Přesto se vám bude v tomto typovém domě pohodlně bydlet, protože poskytuje přes 117 m2 užitné plochy.
Jeho cena činí 3,6 mil. Kč včetně DPH a základové desky (rok 2019).

Obr.: KUBIS 74 - půdorys 1. NP

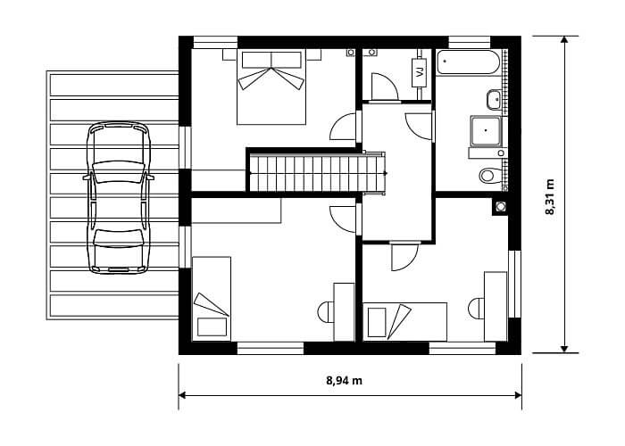
Obr.: KUBIS 74 - půdorys 2. NP


Dům KUBIS 74 byl navržen s maximálním ohledem praktický chod domácnosti.


Typový dům KUBIS 74 - shrnutí
- Dostatečně prostorný, ale nezabere příliš místa na pozemku (zastavěná plocha 2)
- Čtvercový půdorys a jednoduše řešené dispozice (užitná plocha > 117 m2)
- Součástí projektu je již v základu garážové stání s pultovou střechou
- Sedlová střecha se sklonem 22°
- Nově zlepšená teplená izolace (150 mm polystyrenu místo 100 mm)
- Cena včetně DPH a základové desky 3,6 milionu Kč (rok 2019)
- V základní ceně domu je zahrnuto tepelné čerpadlo vzduch-vzduch s možností vytápění nebo chlazení splitovými klimatizačními jednotkami a nástěnné přímotopné panely



Zaujala vás dřevostavba KUBIS 74? Zašlete dodavateli dotaz nebo nezávaznou poptávku!
Společnost RD Rýmařov je největším výrobcem dřevostaveb v rámci celé České republiky. Působí na českém stavebním trhu 50 let a má za sebou 25 tisíc realizovaných staveb v ČR i zahraničí. S historií firmy je neodmyslitelně spojen průmyslový rozvoj moderního stavění na bázi lehké prefabrikace dřeva. Dodávané montované dřevostavby se vyznačují nízkými energetickými nároky a díky tomu je lze zařadit do kategorie energeticky úsporných domů.
Zaslat dotaz nebo nezávaznou poptávku
Foto: RD Rýmařov












Vytvořeno v xart.cz